Terreno en Nucli Urbà

Барселона, Эспаррегера, Нукли Урбà, Nucli Urbà
203 000 €
Оставить отзыв
Земля под застройку Тип недвижимости
476 m² Площадь участка
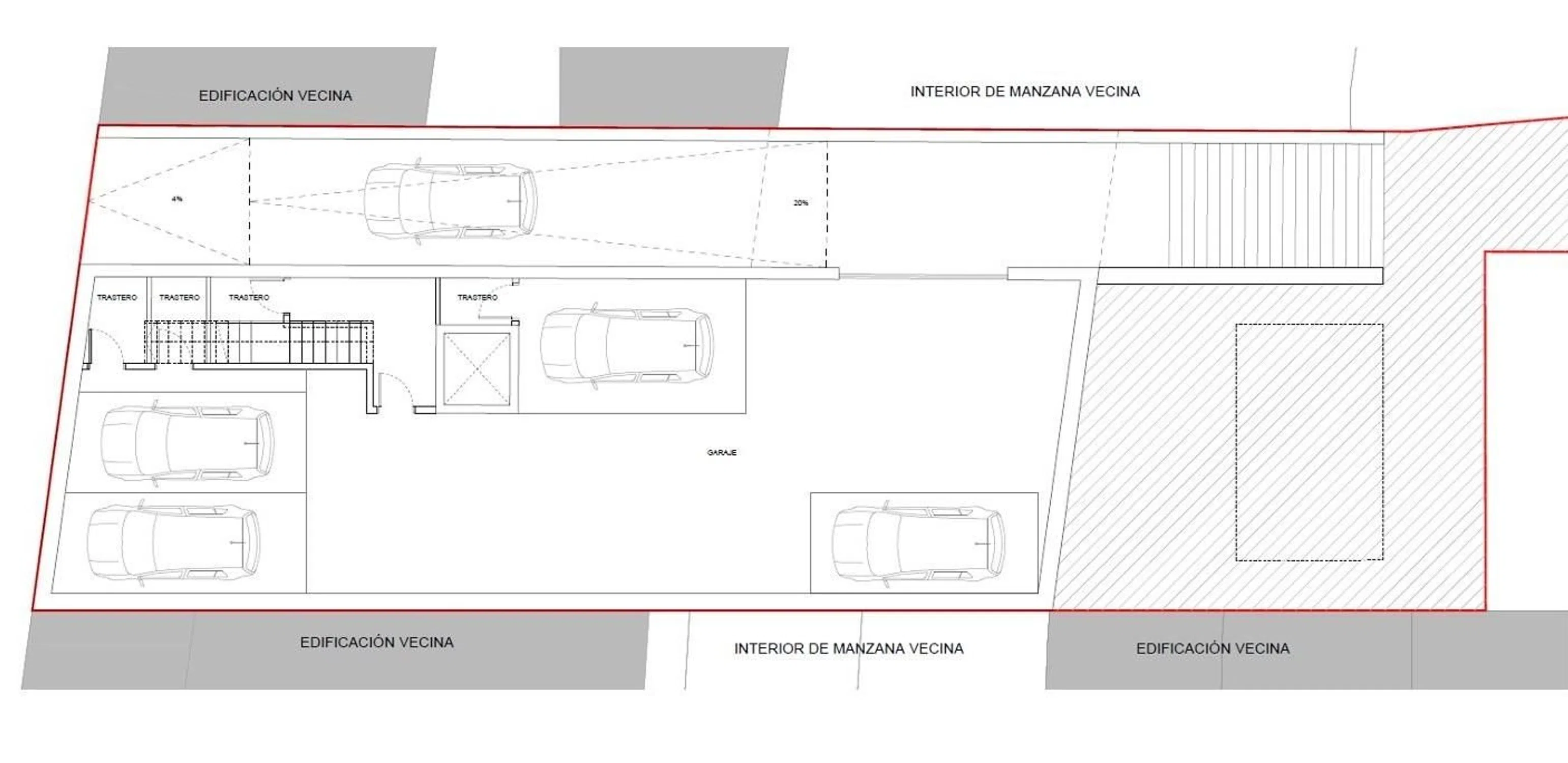
Fantástico solar con anteproyecto en venta! Ubicación privilegiada en la avenida principal del municipio, en pleno centro de Esparreguera. Excelente visibilidad y accesibilidad, ideal para promotores e inversores. Superficie de parcela: 475,72 m² (según catastro) Fachada: 11,63 m Profundidad edificable: 16 m Altura máxima: PB + 4 plantas (15,50 m) Edificabilidad total: 927,35 m² de techo aprox. Anteproyecto incluido �️ Proyecto propuesto: Edificio de 8 viviendas (2 por planta) Planta sótano con 4 plazas de parking y trasteros Zonas comunes bien distribuidas entre las viviendas Planta baja con gran jardín privado (posibilidad de piscina, según aprobación del nuevo PGO en trámite) Áticos con terrazas privadas en cubierta Local comercial de 80 m² con acceso desde la calle principal y patio interior ✔️ Máximo aprovechamiento urbanístico según normativa vigente ✔️ Oportunidad única para promoción residencial y comercial No dude a contactarnos para más información!

Характеристики недвижимости

Complex information

  • Тип недвижимости
    Земля под застройку

Данные о недвижимости

  • Тип недвижимости
    Вторичка

Площади

  • Площадь участка
    476 m²

Base

Удобства

В здании:

Подвал

Статистика рыночных цен на Terreno en Nucli Urbà

Карта

Барселона, Эспаррегера, Нукли Урбà, Nucli Urbà Поехать в это место
Оставьте отзыв о Terreno en Nucli Urbà
0
0 reviews
1
0% (0)
2
0% (0)
3
0% (0)
4
0% (0)
5
0% (0)
Finques Badia
203 000 €
Свяжитесь с рекламодателем

Для получения дополнительной информации свяжитесь с платформой

REF: 373528

Отзывы о Terreno en Nucli Urbà
Loading...

No reviews have been left for this object yet

Ближайшие объекты

Исследуйте близлежащие объекты, которые мы обнаружили неподалеку от этого местоположения.

Terreno en venta en Sant esteve Sesrovires

Барселона, Сант-Эстеве-Сесровирес
169 000 €

Suelo urbano consolidado de 1.124m2 en Sant Esteve de Sesrovira, dentro del sect...

0
0 отзывов

2 TERRENOS COLINDANTES (2124m2) EN LA URBANIZACIÓN CAMPARELLADA

Барселона, Маскефа
95 000 €

¡Gran oportunidad de inversión! Se venden dos terrenos colindantes en la prestig...

0
0 отзывов

GRAN TERRENO EDIFICABLE EN URBANIZACION CAMPARELLADA

Барселона, Маскефа
77 000 €

¡Increíble oportunidad! Se vende terreno de 1355m2 en la Urbanización Camparella...

0
0 отзывов

¡OPORTUNIDAD! TERRENO URBANO EN URBANIZACION CAMPARELLADA

Барселона, Маскефа
29 000 €

¡Oportunidad única! Se vende terreno con pendiente en la hermosa urbanización Ca...

0
0 отзывов

Terreno en Els Hostalets de Pierola

Барселона, Эльс Осталетс де Пьерола, Els Hostalets de Pierola
49 000 €

Sòl urbà en venda no consolidat als Hostalets de Pierola, província de Barcelona...

0
0 отзывов

Terreno en calle Ramon Llull, 18

Барселона, Маскефа, Calle Ramón Llull, 18
100 000 €

Se vende terreno para edificar en la urbanización de Can Parellada con transport...

0
0 отзывов

Terreno en calle Major

Барселона, Маскефа, Calle Major
175 000 €

El activo esta situado en la calle Major nº 147, al oeste del municipio de Masqu...

0
0 отзывов

Terreno en calle Major

Барселона, Маскефа, Calle Major
175 000 €

El activo esta situado en la calle Major nº 147, al oeste del municipio de Masqu...

0
0 отзывов

Terreno en Masquefa

Барселона, Маскефа, Masquefa
48 000 €

Parcela en venta en la urbanización de Can Parellada de Masquefa. Es completamen...

0
0 отзывов

Мы используем собственные и сторонние файлы cookie для анализа использования веб-сайта и показа вам рекламы, соответствующей вашим предпочтениям, на основе профиля, созданного по вашим привычкам просмотра (например, посещенные страницы). Подробнее. Вы принимаете файлы cookie?