Terreno en Barrio Zona Pueblo

Мадрид, Позуэло-де-Аларкон, Зона Пueblo, Barrio Zona Pueblo
1 270 000 €
Оставить отзыв
Земля под застройку Тип недвижимости
193 m² Площадь участка
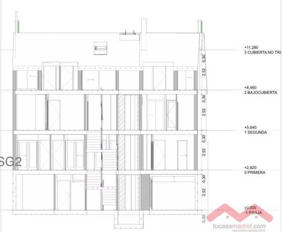
Terreno en Comunidad de Madrid, con 526 m², 193 m² metros de parcela, 6 garaje/s, urbano, ascensor. ¡EXCELENTE OPORTUNIDAD PARA PROMOTORES EN POZUELO DE ALARCÓN! ¡TERRENO CON PROYECTO Y LICENCIA CONCEDIDA! Se vende terreno urbano de 193 m² en Calle Fa, ubicado en una de las zonas más exclusivas y consolidadas de Pozuelo de Alarcón. Con proyecto arquitectónico aprobado y licencia municipal ya concedida, lo que permite comenzar la obra de inmediato, sin esperas ni trámites adicionales. El proyecto contempla la construcción de un edificio de 5 viviendas y 6 plazas de garaje, ideal para inversores que buscan rentabilidad en una ubicación privilegiada. Superficie construida sobre rasante: 526,83 m² Superficie de garaje (bajo rasante): 160,20 m² Total edificable: 687,03 m² Toda la documentación técnica y urbanística en regla. Proyecto moderno, funcional y adaptado a las exigencias del mercado actual. Excelente entorno residencial con servicios, colegios, transporte público y zonas verdes. Precio de venta: 1.390. 000 € Una ocasión única para desarrollar un proyecto inmobiliario de alta demanda en uno de los municipios con mayor calidad de vida del noroeste madrileño. Contacta ahora para más información o concertar una visita. Proyecto disponible para revisión.

Характеристики недвижимости

Complex information

  • Тип недвижимости
    Земля под застройку

Данные о недвижимости

  • Тип недвижимости
    Вторичка

Площади

  • Площадь участка
    193 m²

Base

Статистика рыночных цен на Terreno en Barrio Zona Pueblo

Карта

Мадрид, Позуэло-де-Аларкон, Зона Пueblo, Barrio Zona Pueblo Поехать в это место
Оставьте отзыв о Terreno en Barrio Zona Pueblo
0
0 reviews
1
0% (0)
2
0% (0)
3
0% (0)
4
0% (0)
5
0% (0)
tucasamadrid.com
1 270 000 €
Свяжитесь с рекламодателем

Для получения дополнительной информации свяжитесь с платформой

REF: 370077

Отзывы о Terreno en Barrio Zona Pueblo
Loading...

No reviews have been left for this object yet

Ближайшие объекты

Исследуйте близлежащие объекты, которые мы обнаружили неподалеку от этого местоположения.

Terreno en paseo de Extremadura

Мадрид, Мадрид, Латина, Paseo de Extremadura
4 000 000 €

SP SERVICIOS INMOBILIARIOS pone a la venta TERRENO de 23000 m2 incluido en la OP...

0
0 отзывов

Terreno en calle de Daniel Segovia, 43

Мадрид, Мадрид, Латина, Calle de Daniel Segovia, 43
475 000 €

Proyecto de edificio con viviendas plurifamiliares, trastero y local comercial e...

0
0 отзывов

Terreno en calle Maravilla, 12

Мадрид, Мадрид, Латина, Calle Maravilla, 12
460 000 €

Se vende terreno en Colonia Militar. Con licencia de construcción de casa unifam...

0
0 отзывов

Terreno en Barrio El Plantío

Мадрид, Мадрид, Мондлоа, Barrio El Plantío
1 874 000 €

GILMAR Pozuelo - Aravaca presenta una excelente oportunidad de construcción sobr...

0
0 отзывов

Terreno en Barrio Aravaca

Мадрид, Мадрид, Мондлоа, Barrio Aravaca
2 500 000 €

**Terreno en Venta en Aravaca - ¡Una Oportunidad Única! ** REMAX CENTRAL VENDE:...

0
0 отзывов

Terreno en avenida de Valdemarín

Мадрид, Мадрид, Мондлоа, Avenida de Valdemarín
3 000 000 €

Norma Zonal: 8.1. a Parcela mínima: 2.500€ Edificabilidad: 30% Ocupación: 20% 3...

0
0 отзывов

Terreno en calle Gobelas

Мадрид, Мадрид, Мондлоа, Calle Gobelas
2 100 000 €

Exclusiva finca urbana, llana, sin arbolado, y acceso directo a la calle, ideal...

0
0 отзывов

Terreno en avenida de Valdemarín

Мадрид, Мадрид, Мондлоа, Avenida de Valdemarín
6 000 000 €

Vivir en Valdemarín, un barrio residencial único A tan solo 15 minutos del centr...

0
0 отзывов

Terreno en Barrio Aravaca

Мадрид, Мадрид, Мондлоа, Barrio Aravaca
2 800 000 €

^**^LA JOYA DE MONCLOA: TERRENO EXCLUSIVO DE CASI 3.600M2 EN LA CAPITAL^**^ En e...

0
0 отзывов

Мы используем собственные и сторонние файлы cookie для анализа использования веб-сайта и показа вам рекламы, соответствующей вашим предпочтениям, на основе профиля, созданного по вашим привычкам просмотра (например, посещенные страницы). Подробнее. Вы принимаете файлы cookie?