Elysium Residencial

Мадрид, Виллависиоса де Одон, Эль Боске, De la Unión Europea s/n
660 000 €
2 694 € / m2
Оставить отзыв
Дуплексы Тип недвижимости
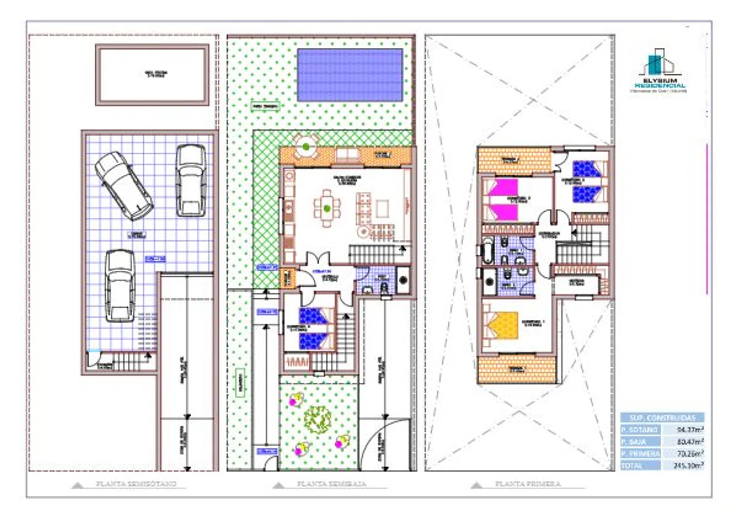
4 Спальни
2027 Год сдачи
245 m² м2 построенных
3 Ванные комнаты
Включено в цену Гараж
2 Планировка

🦋 Недвижимость в ЖК Elysium Residencial 🦋

Ваш новый дом в ЖК Elysium Residencial дарит идеальную гармонию элегантности и функциональности. Если вы ищете жилье, которое совмещает в себе роскошь, комфорт и природное окружение, то Villaviciosa de Odón — это изумительный выбор. Эти частные дома на условиях кооператива предлагают обширные зелёные зоны, идеальные для семейного отдыха — как с детьми, так и со взрослыми. Представьте себе отдых у бассейна с солёной водой, занятия на тренажёрах для взрослых или спокойное времяпрепровождение под зонтом на одном из шезлонгов.

💎 Преимущества новостройки Elysium Residencial 💎

Дома просторны и имеют гараж на цокольном этаже площадью 75 м², который может вместить три автомобиля. На первом этаже вас ждет большая площадь земельного участка, передний и задний портики, уютная гостиная и интегрированная кухня. Также на этом этаже находится спальня и ванная комната с душем. На верхнем этаже расположены три спальни, одна из которых включает просторную гардеробную и террасу. Цены на дома варьируются от 620 000 до 635 000 евро, а площадь составляет 245 м². Elysium — это не просто жилье, это настоящий оазис мира и спокойствия для всей семьи.

🍀 Жизнь в городе Villaviciosa de Odón 🍀

Если вас заинтересовало это предложение, не стесняйтесь обращаться к нам за подробной информацией. Ощутите радость от жизни в окружении природы и удобств современного комфорта.

Характеристики недвижимости

Complex information

  • Жилой комплекс
    Elysium Residencial
  • Тип недвижимости
    Дуплексы

Информация о проекте / Статус работы

  • Год сдачи
    2027

Данные о недвижимости

  • Гараж
    Включено в цену
  • Планировка
    2
  • Спальни
    4
  • Ванные комнаты
    3
  • м2 построенных
    245 m²
  • Тип недвижимости
    Новостройка

Энергетическая сертификация

  • Состояние энергетического сертификата
    В процессе оформления
  • Энергопотребление
    En trámite

Удобства

В здании:

Бассейн
Зеленые зоны
Подвал

Статистика рыночных цен на Elysium Residencial

566 056 € (2 604 €/m2)
Средняя цена на первичные Дуплексы в районе Эль Боске

Карта

Мадрид, Виллависиоса де Одон, Эль Боске, De la Unión Europea s/n Поехать в это место
Оставьте отзыв о Elysium Residencial
0
0 reviews
1
0% (0)
2
0% (0)
3
0% (0)
4
0% (0)
5
0% (0)
Doppio
Elysium Residencial
Жилой комплекс
660 000 €
от 2 694 € / m2
Свяжитесь с рекламодателем

Для получения дополнительной информации свяжитесь с платформой

REF: 227644

Отзывы о Elysium Residencial
Loading...

No reviews have been left for this object yet

Ближайшие объекты

Исследуйте близлежащие объекты, которые мы обнаружили неподалеку от этого местоположения.

Chalet pareado en venta en calle de Jorge Juan, 3

Мадрид, Боадилья дель Монте, Кортильо Сур, Calle de Jorge Juan, 3
1 125 000 €

, es la nueva propuesta de Asentis en Boadilla del Monte, Una promoción única co...

0
0 отзывов

Cailín Boadilla

Мадрид, Боадилья дель Монте, Эль Оливар де Мирабаль, Calle Cabo de Nao s/n
1 190 000 €

Элитные дома с пятью спальнями в одном из лучших районов Boadilla предоставляют...

0
0 отзывов

Новое строительство в районе Ливинг Монте-де-ла-Вилла в Вильявисьоса-де-Одон.

Мадрид, Виллависиоса де Одон, Эль Боске, Calle Ebro s/n
825 000 €

Эта новая недвижимость, строительство которой скоро начнется, расположится в жи...

0
0 отзывов

Obra nueva Living Monte de la Villa en Villaviciosa de Odón

Мадрид, Виллависиоса де Одон, Эль Боске, Calle Ebro s/n
860 000 €

En la vibrante ciudad de Madrid, ofrecemos una oportunidad única de adquirir inm...

0
0 отзывов

Chalet pareado en venta en paseo Monte de la Villa s/n

Мадрид, Виллависиоса де Одон, Эль Боске, Monte de la Villa s/n
719 000 €

¡ÚLTIMAS OPORTUNIDADES DE VIVIENDAS DISPONIBLES! Presentamos una nueva opción de...

0
0 отзывов

Obra nueva Residencial Prado Chico en Boadilla del Monte

Мадрид, Боадилья дель Монте, Кортильо Сур, Calle Jorge Juan s/n
800 000 €

Descubre tu hogar geosolar personalizado en el entorno tranquilo y exclusivo d...

0
0 отзывов

Chalet pareado en venta en paseo Monte de la Villa s/n

Мадрид, Виллависиоса де Одон, Эль Боске, Monte de la Villa s/n
719 000 €

¡ÚLTIMAS OPORTUNIDADES DE VIVIENDAS DISPONIBLES! Presentamos una nueva opción de...

0
0 отзывов

Chalet pareado en venta en calle Jorge Juan, 1

Мадрид, Боадилья дель Монте, Кортильо Сур, Calle Jorge Juan, 1
1 045 000 €

Vivir en Boadilla significa disfrutar de un lugar privilegiado rodeado de natur...

0
0 отзывов

Obra nueva Residencial Prado Chico en Boadilla del Monte

Мадрид, Боадилья дель Монте, Кортильо Сур, Calle Jorge Juan s/n
800 000 €

Descubre tu hogar geosolar personalizado en el entorno tranquilo y exclusivo d...

0
0 отзывов

Мы используем собственные и сторонние файлы cookie для анализа использования веб-сайта и показа вам рекламы, соответствующей вашим предпочтениям, на основе профиля, созданного по вашим привычкам просмотра (например, посещенные страницы). Подробнее. Вы принимаете файлы cookie?