Продажа отдельного шале в Calle Codorniz, Бенальмадена

Малага, Бенальмадена, Сантанджело, Calle Codorniz
820 000 €
3 868 € / m2
Оставить отзыв
Отдельный шале Тип недвижимости
4 Спальни
2025 Год сдачи
212 m² м2 построенных
5 Ванные комнаты
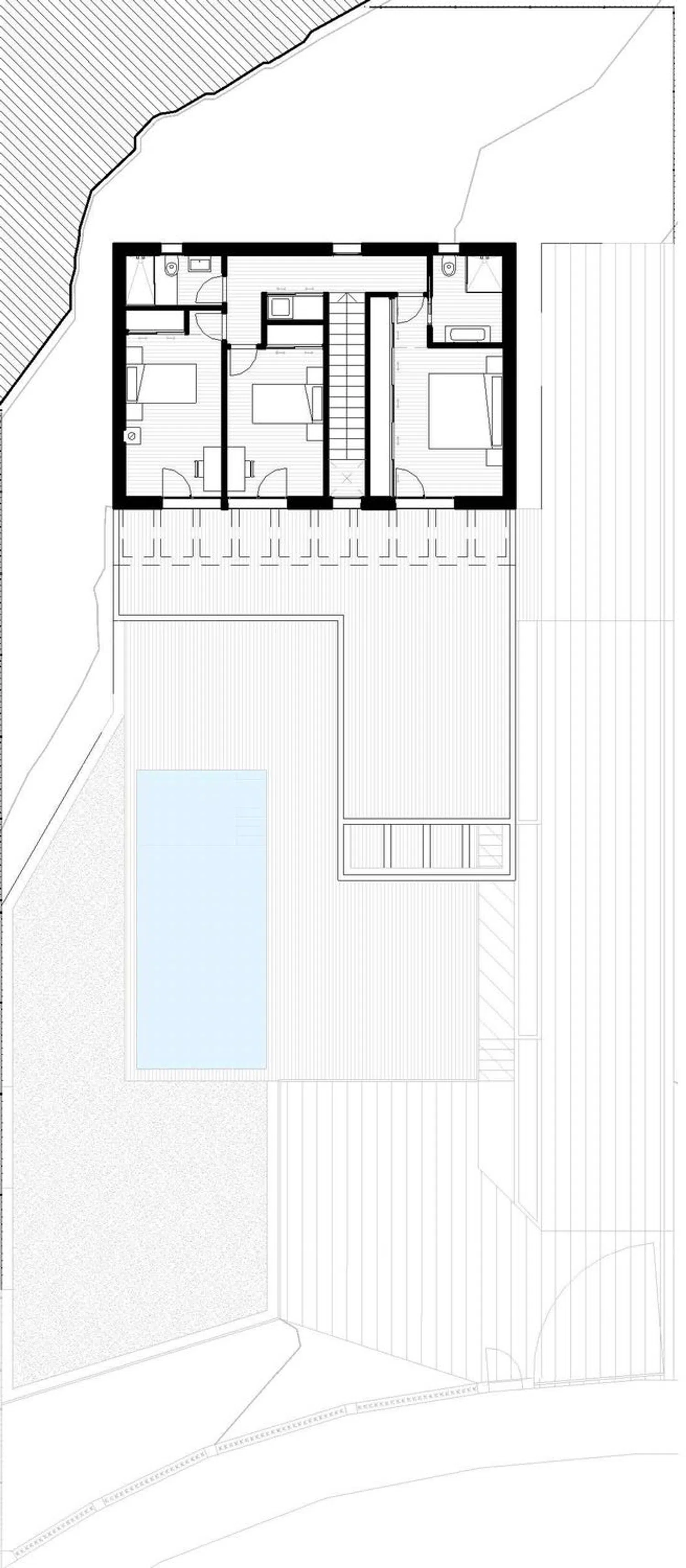
¡Esta es tu oportunidad para construir la casa de tus sueños con un proyecto completo y licencia lista! Situada en la hermosa Benalmádena, Málaga, esta vivienda unifamiliar aislada te encantará con sus inmejorables vistas y características excepcionales. Características Principales: Ubicación: Benalmádena, Málaga. Terreno: 690 m² con vistas espectaculares. Superficie Construida: Aproximadamente 212 m² distribuidos en dos plantas sobre un gran sótano. Acceso: Desde la calle se accede a la planta sótano, con escalera para los demás niveles y rampa exterior para vehículos hasta la planta baja. Distribución: Sótano: Base de la vivienda que eleva la casa a una cota superior, adaptándose al terreno y aprovechando al máximo los espacios exteriores. Primera Planta: Zona de día con cocina, comedor, salón diáfanos, aseo y estudio con baño propio. Acceso directo a la piscina exterior, creando un espacio privado y maravilloso para disfrutar. Planta Superior: Zona de noche con dos dormitorios, un baño, y un dormitorio principal con baño privado. Entrega de llaves: Septiembre 2025 Piscina: Exterior, ideal para disfrutar del buen clima de la región. Adaptación: La vivienda está diseñada para adaptarse perfectamente a las condiciones topográficas del terreno, ofreciendo comodidad y funcionalidad. Contacto: No pierdas esta increíble oportunidad de construir la casa de tus sueños en una ubicación privilegiada. Para más información y detalles sobre este proyecto completo, ¡contáctanos ahora!

Характеристики недвижимости

Complex information

  • Тип недвижимости
    Отдельный шале

Информация о проекте / Статус работы

  • Год сдачи
    2025

Данные о недвижимости

  • Спальни
    4
  • Ванные комнаты
    5
  • м2 построенных
    212 m²
  • Тип недвижимости
    Вторичка

Удобства

Удобства жилья:

Кондиционер
Терасса

В здании:

Бассейн
Сад
Частная парковка

Статистика рыночных цен на Casa independiente en calle Codorniz

Карта

Малага, Бенальмадена, Сантанджело, Calle Codorniz Поехать в это место
Оставьте отзыв о Casa independiente en calle Codorniz
0
0 reviews
1
0% (0)
2
0% (0)
3
0% (0)
4
0% (0)
5
0% (0)
820 000 €
от 3 868 € / m2
Свяжитесь с рекламодателем

Для получения дополнительной информации свяжитесь с платформой

REF: 154055

Отзывы о Casa independiente en calle Codorniz
Loading...

No reviews have been left for this object yet

Ближайшие объекты

Исследуйте близлежащие объекты, которые мы обнаружили неподалеку от этого местоположения.

Chalet independiente en Venta en Calle Abubilla, 88, Benalmádena

Малага, Бенальмадена, Сантанджело, Calle Abubilla, 88
1 500 000 €

 Представляем "La Roca" - вашу виллу в стадии строительства в Бенальмадене...

0
0 отзывов

Chalet independiente en Venta en Calle Garcia Robles , 27, Alhaurín de la Torre

Малага, Алхаурин-де-ла-Торре, Пинос-де-Альхаурин, Calle Garcia Robles , 27
560 000 €

Se vende villa nueva en Alhaurín de la Torre, una oportunidad excepcional para a...

0
0 отзывов

Chalet independiente en Venta en Avenida Del Higuerón, 21, Benalmádena

Малага, Бенальмадена, Эль Игерон - Капелланья, Avenida Del Higuerón, 21
3 250 000 €

Эта роскошная вилла предлагает инновационный дизайн с чистыми линиями и высокими...

0
0 отзывов

Chalet independiente en Venta en Terreno SP-2 Santangelo norte, 124, Benalmádena

Малага, Бенальмадена, Сантанджело, Terreno SP-2 Santangelo norte, 124
1 250 000 €

Представляем современную андалузскую виллу в процессе строительства - готова к с...

0
0 отзывов

Obra nueva Higueron West Villas en Fuengirola

Малага, Фуэнхирола, Лас Гавиотас, Calle Begoña s/n
1 500 000 €

  — это восемь новых домов с впечатляющей архитектурой, расположенных в луч...

0
0 отзывов

Obra nueva Higueron West Villas en Fuengirola

Малага, Фуэнхирола, Лас Гавиотас, Calle Begoña s/n
1 575 000 €

  — это восемь новых домов с впечатляющей архитектурой, расположенных в луч...

0
0 отзывов

Obra nueva Higueron West Villas en Fuengirola

Малага, Фуэнхирола, Лас Гавиотас, Calle Begoña s/n
1 950 000 €

  — это восемь новых домов с впечатляющей архитектурой, расположенных в луч...

0
0 отзывов

Obra nueva Higueron West Villas en Fuengirola

Малага, Фуэнхирола, Лас Гавиотас, Calle Begoña s/n
1 600 000 €

  — это восемь новых домов с впечатляющей архитектурой, расположенных в луч...

0
0 отзывов

Chalet independiente en Venta en Calle Jilguero, 24, Fuengirola

Малага, Фуэнхирола, Торребланка дель Соль, Calle Jilguero, 24
720 186 €

ЭКО-СТОЙКИЕ ВИЛЛЫ В ФУЭНХИРОЛЕ С ВИДОМ НА МОРЕ - Начало строительства февраль 20...

0
0 отзывов

Мы используем собственные и сторонние файлы cookie для анализа использования веб-сайта и показа вам рекламы, соответствующей вашим предпочтениям, на основе профиля, созданного по вашим привычкам просмотра (например, посещенные страницы). Подробнее. Вы принимаете файлы cookie?