Продажа пентхауса на Torreblanca del Sol, Фуэнхирола

Малага, Фуэнхирола, Торребланка дель Соль, Torreblanca del Sol
Распродано
Оставить отзыв
Пентхаусы Тип недвижимости
3 Спальни
2024 Год сдачи
98 m² м2 построенных
2 Ванные комнаты
В процессе строительства Состояние
Оборудованная Оборудование кухни
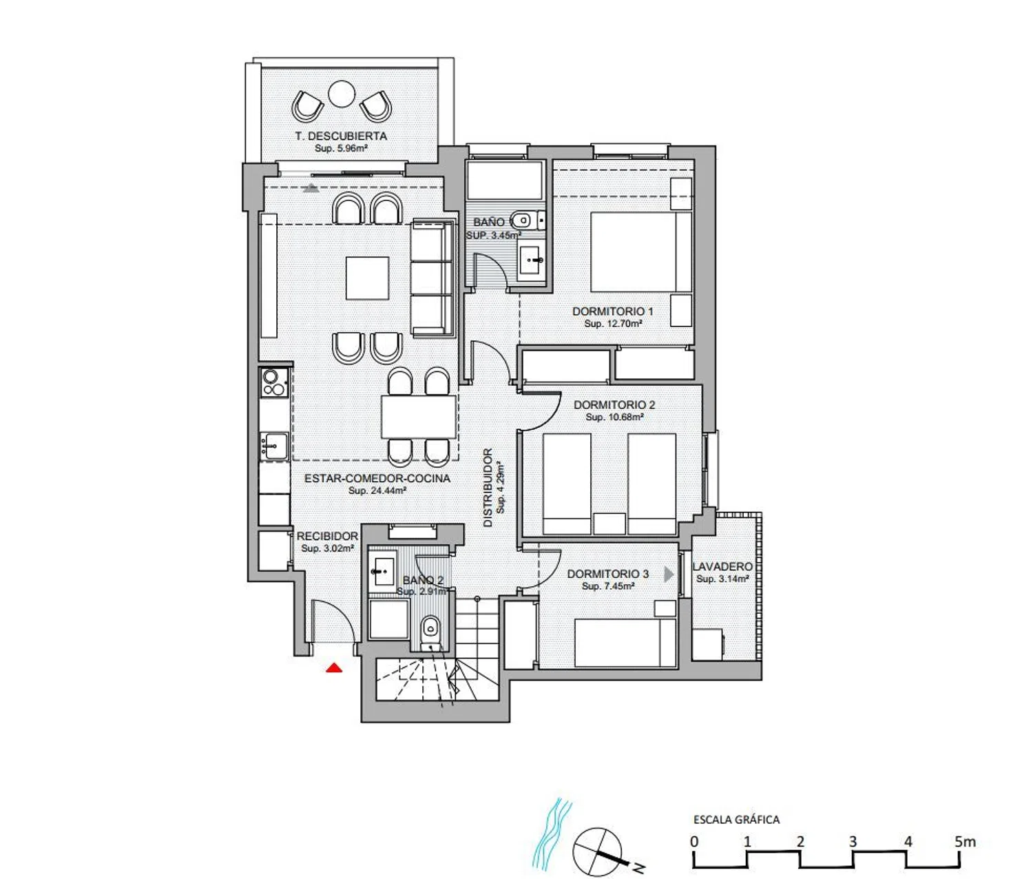
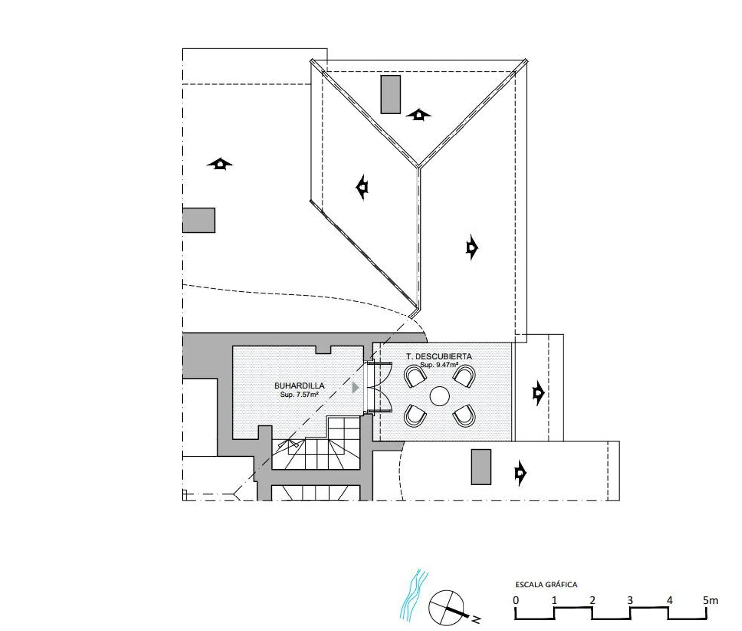
Hábitat Mediterránea le ofrece esta promoción de obra nueva de apartamentos de 3 dormitorios y 2 cuartos de baño, en los que se incluyen áticos dúplex, planta primera y planta baja, viviendas diseñadas para personas que desean invertir en calidad de vida, gracias a la distribución óptima de sus espacios, funcionalidad, luminosidad y calidad de los materiales de construcción elegidos para su desarrollo, destacando una arquitectura andaluza con un espíritu moderno que refuerza el uso de amplias terrazas y espacios con luz natural. En esta ocasión le ofrece un ático dúplex situado en la segunda planta, con una superficie de 98m² construidos interiores, distribuidos entre vestíbulo, 3 dormitorios con armarios empotrados, un amplio espacio de estar, con cocina abierta totalmente equipada, lavadero, un salón amplio con zona de comedor, 2 cuartos de baño (uno de ellos en suite con el dormitorio principal), 2 terrazas descubiertas y buhardilla. Todas las viviendas cuentan con plaza de garaje y trastero en la planta sótano, recinto cerrado, cocinas amuebladas y equipadas con campana extractora, placa de inducción y horno eléctrico, y sistemas de climatización frío/calor completamente instalados. Se localizan en Fuengirola, en la zona de Torreblanca, situada en una ubicación tranquila a un paso de las maravillosas playas, restaurantes, campo de golf y todo tipo de servicios básicos (colegios, supermercados, Centro de Salud, instalaciones deportivas, parque infantil público, centro comercial, servicios de estética o bancos, entre otros). En términos de accesibilidad, la propiedad dispone de múltiples conexiones y con acceso cercano a transporte público (parada de taxi, parada de bus, tren de cercanías), manteniendo fácil acceso a la carretera N-340 y la autovía A-7. FORMA DE PAGO: - RESERVA/DEPÓSITO: 5.500€ (incluido 10% IVA) - CONTRATO DE COMPRAVENTA: 20% + IVA (-5.500€ de reserva) - Aplazado a 1 de octubre 2024: 10% + IVA - ESCRITURA Y ENTREGA DE LLAVES: 70% + IVA Licencia de construcción: Disponible* Fin de construcción: primer o segundo trimestre de 2025* Ahora tendrá la exclusiva oportunidad de adquirir esta vivienda en una zona tranquila y familiar con todo a su alcance y a un precio inigualable. ¿la va a dejar escapar? AVISO: la información que contiene este anuncio, puede estar sujeta a errores u omisiones. Las propiedades pueden estar sujetas a cambio de precio, venta o retirada del mercado. Para más información no dude en contactar con nosotros o visitando nuestra página web CONTÁCTENOS, ESTAREMOS ENCANTADOS DE ATENDERLE. Nuestros honorarios de agencia ya están incluidos en el precio de venta por lo que no tendrá que abonar ningún tipo de gastos por gestión o asesoramiento inmobiliario y que en cumplimiento del Decreto de la Junta de Andalucía 218/2005 del 11 de Octubre, se informa que los gastos de notario, registro, ITP y otros gastos inherentes a la compraventa no están incluidos en el precio. ¿Está buscando vivienda al rededor de la Costa del Sol? Disponemos de una amplia cartera de viviendas al mejor precio en toda la provincia de Málaga. No dude en contactarnos y uno de nuestros agentes especializados estará encantado de atenderle. Puede visitar nuestra página: .

Характеристики недвижимости

Complex information

  • Тип недвижимости
    Пентхаусы

Информация о проекте / Статус работы

  • Год сдачи
    2024
  • Состояние
    В процессе строительства

Данные о недвижимости

  • Тип кухни
    Американская кухня
  • Оборудование кухни
    Оборудованная
  • Спальни
    3
  • Ванные комнаты
    2
  • м2 построенных
    98 m²
  • Тип недвижимости
    Вторичка

Удобства

Удобства жилья:

Кондиционер
Терасса

В здании:

Бассейн
Сад
Частная парковка

Статистика рыночных цен на Ático en Torreblanca del Sol

1 032 833 € (6 351 €/m2)
Средняя цена на первичные Пентхаусы в городе Фуэнхирола
884 782 € (5 135 €/m2)
Средняя цена на вторичные Пентхаусы в городе Фуэнхирола

Карта

Малага, Фуэнхирола, Торребланка дель Соль, Torreblanca del Sol Поехать в это место
Оставьте отзыв о Ático en Torreblanca del Sol
0
0 reviews
1
0% (0)
2
0% (0)
3
0% (0)
4
0% (0)
5
0% (0)
Hábitat Mediterránea .
Распродано
Свяжитесь с рекламодателем

Для получения дополнительной информации свяжитесь с платформой

REF: 151034

Отзывы о Ático en Torreblanca del Sol
Loading...

No reviews have been left for this object yet

Ближайшие объекты

Исследуйте близлежащие объекты, которые мы обнаружили неподалеку от этого местоположения.

Áticos en Venta en Calle Benahavís s/n, Mijas

Малага, Михас, Лас Лагунес, Calle Benahavís s/n
349 000 €

Новый комплекс "Резиденция Каравелла". Он состоит из 44 домов с 1, 2, 3 спальням...

0
0 отзывов

Áticos en Venta en Urb Reserva del Higuerón, 4, Fuengirola

Малага, Фуэнхирола, Эль Игерон, Urb Reserva del Higuerón, 4
655 000 €

НОВЫЕ МИНИМАЛИСТИЧЕСКИЕ КВАРТИРЫ КОНТЕМПОРНОГО ДИЗАЙНА (с видом на море, 2 и 3 с...

0
0 отзывов

Áticos en Venta en Calle Sierra Nevada s/n, Benalmádena

Малага, Бенальмадена, Торремуэль, Calle Sierra Nevada s/n
572 000 €

Alba Benalmádena - это жилой комплекс, расположенный в привилегированной среде,...

0
0 отзывов

Áticos en Venta en Calle Sierra Nevada s/n, Benalmádena

Малага, Бенальмадена, Торремуэль, Calle Sierra Nevada s/n
518 000 €

Alba Benalmádena - это жилой комплекс, расположенный в привилегированной среде,...

0
0 отзывов

Áticos en Venta en Calle Sierra Nevada s/n, Benalmádena

Малага, Бенальмадена, Торремуэль, Calle Sierra Nevada s/n
421 000 €

Alba Benalmádena - это жилой комплекс, расположенный в привилегированной среде,...

0
0 отзывов

Áticos en Venta en Calle Comunera María Pacheco, s/n, Fuengirola

Малага, Фуэнхирола, Лос Пакос, Calle Comunera María Pacheco, s/n
489 950 €

*Todas las viviendas del proyecto tienen 2 plazas de garaje y 1 trastero incluid...

0
0 отзывов

Áticos en Venta en Calle Comunera María Pacheco, s/n, Fuengirola

Малага, Фуэнхирола, Лос Пакос, Calle Comunera María Pacheco, s/n
599 950 €

*Todas las viviendas del proyecto tienen 2 plazas de garaje y 1 trastero incluid...

0
0 отзывов

Áticos en Venta en Calle Benahavís esquina Calle Almogia s/n, Mijas

Малага, Михас, Лас Лагунес, Calle Benahavís esquina Calle Almogia s/n
340 000 €

После того как в центре Фуэнхиролы был принят проект Edificio Mediterráneo, комп...

0
0 отзывов

Áticos en Venta en Calle Los Rios s/n, Mijas

Малага, Михас, Лас Лагунес, Calle Los Rios s/n
228 500 €

 Уважаемый жилой комплекс Suite Mijas находится в лучшем районе Лас Лагунас...

0
0 отзывов
Звонок

Мы используем собственные и сторонние файлы cookie для анализа использования веб-сайта и показа вам рекламы, соответствующей вашим предпочтениям, на основе профиля, созданного по вашим привычкам просмотра (например, посещенные страницы). Подробнее. Вы принимаете файлы cookie?