Terreno en calle Alora

Малага, Марбелла, Нагуелес-Миля де Оро, Calle Alora
2 800 000 €
Оставить отзыв
Земля под застройку Тип недвижимости
2 000 m² Площадь участка
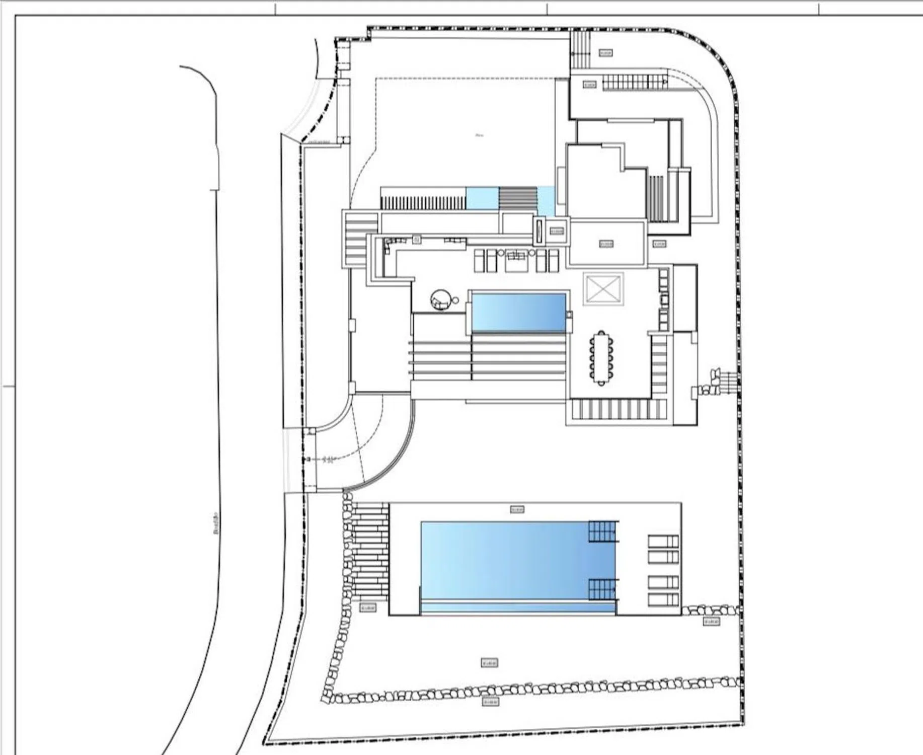
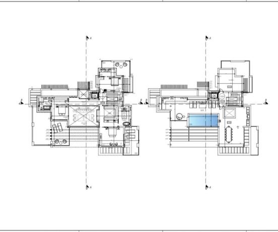
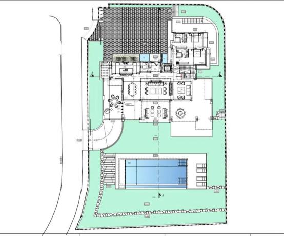
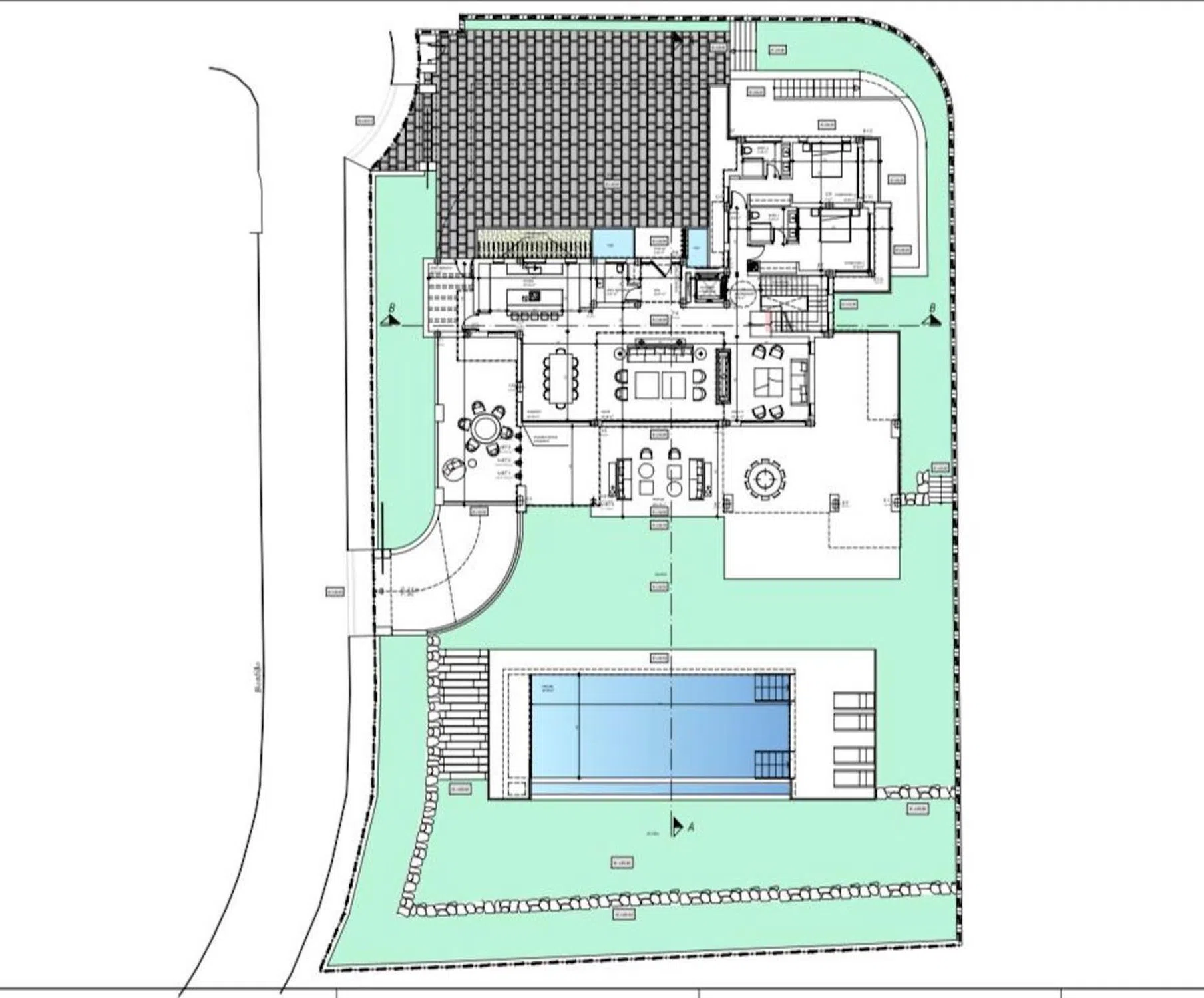
Parcela en Urbanizacion Rocio de Nagueles, situada estratégicamente en el corazón de la Milla de Oro de Marbella, por lo que ofrece unas maravillosas vistas tanto al mar como a la montaña. Cuenta con accesos directos desde de la Autovía del Mediterráneo o A7, lo que la sitúa a tan sólo 5 minutos en coche del centro de Marbella y de Puerto Banús, así como de los mejores colegios como The British International School of Marbella, campos de golf ubicados en la Costa del Sol. Todo esto, la hace un lugar ideal tanto para el descanso por su idílico entorno como para el disfrute del ocio marbellí. Ofrecemos dos parcelas de terreno adyacentes en venta, con características y precios similares. Las parcelas comparten un límite común, lo que ofrece oportunidades adicionales para el diseño arquitectónico integrado y el desarrollo. Para más información, por favor, contáctenos. Superficie de esta parcela en concreto: Superficie 2.000 m2. Edificabilidad 520 m2. Clasificación UE-4 (Unifamiliar). Se puede construir 2 plantas más sótano. Clasificación: UE-4 Superficie: 2.000, 00 m2 Edificabilidad: 0,26 (m2t / m2s) Edificabilidad m2t: 520 m2 % Ocupación: 0,25 % Ocupación m2s: 500 m2 Densidad Número de viviendas: 1.

Характеристики недвижимости

Complex information

  • Тип недвижимости
    Земля под застройку

Данные о недвижимости

  • Тип недвижимости
    Вторичка

Площади

  • Площадь участка
    2 000 m²

Base

Удобства

Дополнительные характеристики:

Строительный участок

Планы

Статистика рыночных цен на Terreno en calle Alora

Карта

Малага, Марбелла, Нагуелес-Миля де Оро, Calle Alora Поехать в это место
Оставьте отзыв о Terreno en calle Alora
0
0 reviews
1
0% (0)
2
0% (0)
3
0% (0)
4
0% (0)
5
0% (0)
LINEA INVEST ESTATES
2 800 000 €
Свяжитесь с рекламодателем

Для получения дополнительной информации свяжитесь с платформой

REF: 243793

Отзывы о Terreno en calle Alora
Loading...

No reviews have been left for this object yet

Ближайшие объекты

Исследуйте близлежащие объекты, которые мы обнаружили неподалеку от этого местоположения.

Terreno en calle Teba s/n

Малага, Марбелла, Нагуелес-Миля де Оро, Calle Teba s/n
3 700 000 €

"Discover an exclusive opportunity on Marbella's prestigious Golden Mile with th...

0
0 отзывов

Terreno en avenida del Norte

Малага, Марбелла, Нвая Андалусия, Avenida del Norte
2 800 000 €

Ubicación Prime | Vistas al Mar | Listas para Construir | Lujo en Estado Puro Pr...

0
0 отзывов

Terreno en calle Buitrago

Малага, Марбелла, Марбелья Пуэбло, Calle Buitrago
3 300 000 €

Se trata de venta de NPL en fase de subasta, siendo la deuda total de 6.400. 000...

0
0 отзывов

Terreno en Urbanizacion Real de la Quinta

Малага, Бенахавис, Эль Мадрональ, Urbanizacion Real de la Quinta
1 350 000 €

Terreno Urbano, La Quinta, Costa del Sol. Jardin/Terreno 2103 m². Posición: Cerc...

0
0 отзывов

Terreno en Barrio Valdeolletas-Las Cancelas-Xarblanca

Малага, Марбелла, Марбелья Пуэбло, Barrio Valdeolletas-Las Cancelas-Xarblanca
1 195 000 €

Parcela urbanizable de 1.493 m² a pocos minutos del centro de Marbella Les ofrec...

0
0 отзывов

Terreno en Barrio Casco Antiguo

Малага, Марбелла, Марбелья Пуэбло, Barrio Casco Antiguo
16 500 000 €

¡Felicitaciones, ha encontrado una de las mejores oportunidades de venta de parc...

0
0 отзывов

Terreno en calle Lago de la Concepción

Малага, Бенахавис, Эль Мадрональ, Calle Lago de la Concepción
7 000 000 €

Oportunidad de Inversión Exclusiva – Parcela con Proyecto Aprobado en Real de La...

0
0 отзывов

Terreno en avenida Don Jaime de Mora y Aragon, 2 j

Малага, Марбелла, Нагуелес-Миля де Оро, Avenida Don Jaime de Mora y Aragon, 2 J
8 500 000 €

Oferta de inversión única en Marbella. Se vende una parcela exclusiva de 4.873 m...

0
0 отзывов

Terreno en calle Osa Mayor

Малага, Марбелла, Нвая Андалусия, Calle Osa Mayor
6 900 000 €

Positioned in the prestigious heart of La Cerquilla, one of Marbella’s most cove...

0
0 отзывов
Звонок

Мы используем собственные и сторонние файлы cookie для анализа использования веб-сайта и показа вам рекламы, соответствующей вашим предпочтениям, на основе профиля, созданного по вашим привычкам просмотра (например, посещенные страницы). Подробнее. Вы принимаете файлы cookie?