Terreno en carretera de Lomas de Marbella, 181

Малага, Марбелла, Рио Реал-Лос Монтерос, Carretera de Lomas de Marbella, 181
690 000 €
Оставить отзыв
Земля под застройку Тип недвижимости
1 509 m² Площадь участка
2 Строительные участки
452 Застройка
Жилой Использование участка
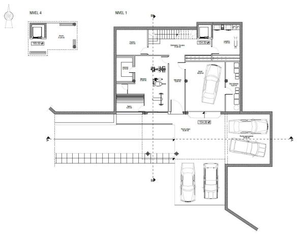
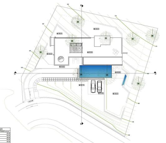
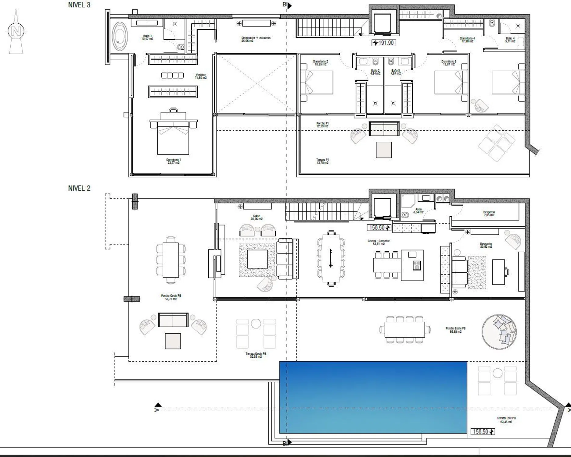
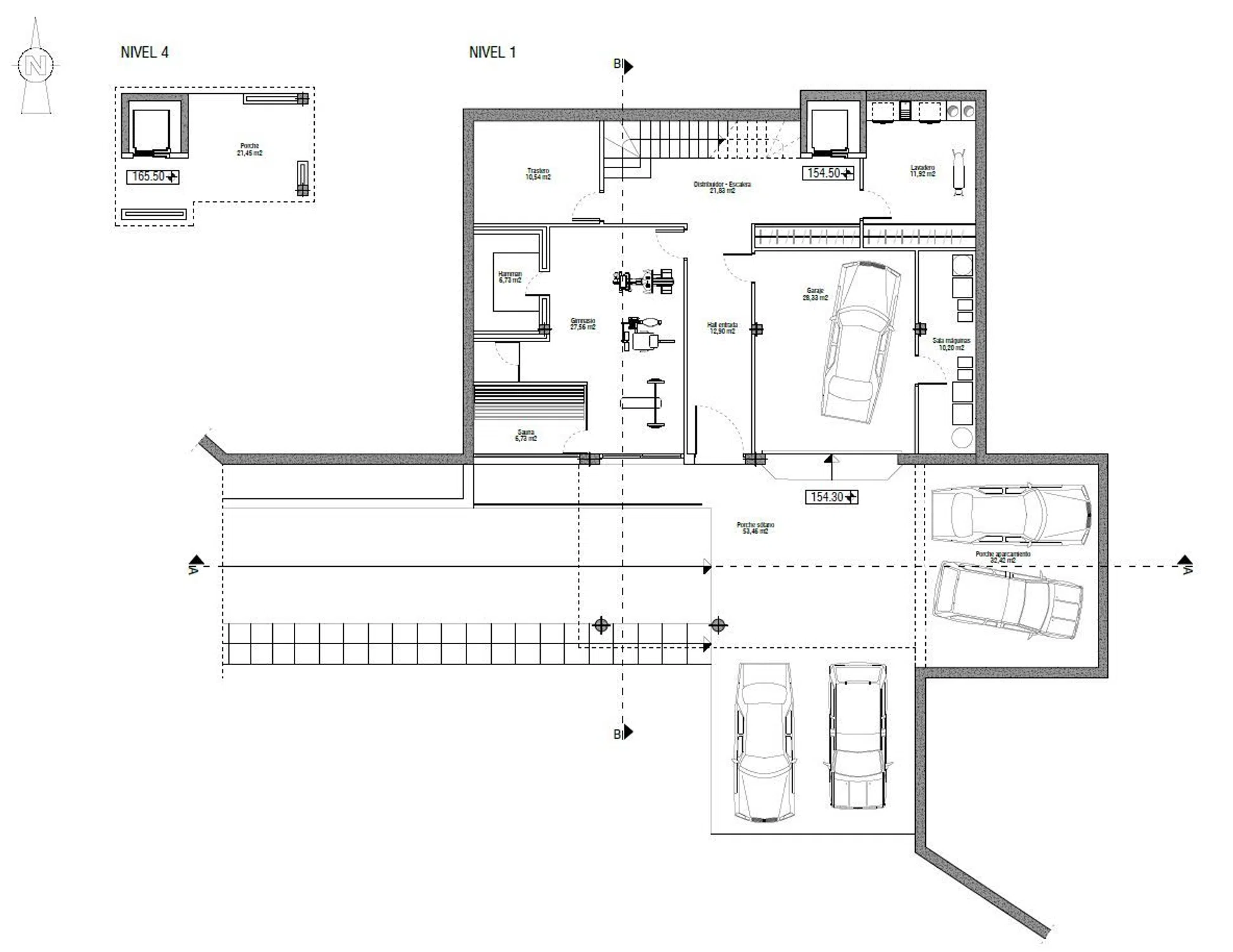
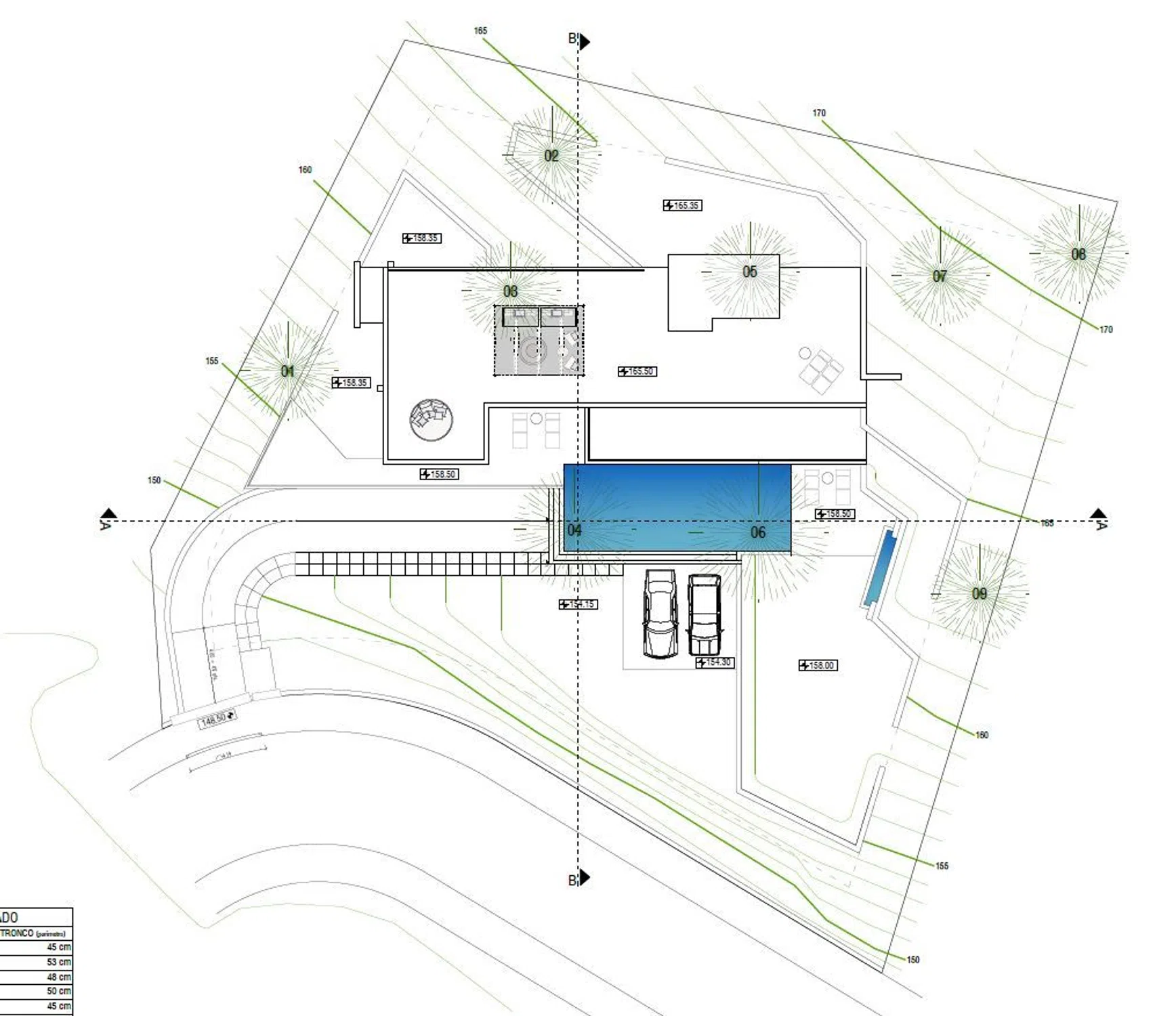
Se vende terreno en urbanización LOS ALTOS DE LOS MONTEROS Terreno 18 N2-1, MARBELLA (MÁLAGA) con vistas despejadas al mar junto con atractivo proyecto de vivienda unifamiliar de 4 plantas, la licencia de obra se está tramitando y está pronta a ser dada de alta. La licencia de obra está incluída. El proyecto de obra posee 5 estacionamientos, 3 en garaje y 2 de visita con vistas al mar. En el sótano tenemos un amplio sauna panorámico (vistas al mar), gimnasio y baño turco. Amplio trastero, sala de lavandería y escalera que conecta las 4 plantas y ascensor. En planta baja amplio salón con doble altura y chimenea led, cocina con isla americana, amplia despensa, baño de visitas y despacho. En segunda planta 4 habitaciones cada una con baño, la master room con walking closet y bañera con vistas al mar. armarios en el pasillo. En última planta amplio solar en donde se puede colocar instalaciones de barbacoa y descanso. Cuenta con 3 jardines, cada uno puede ser temático. Uso: Residencial Subtipo: Suelo Urbano Referencia Catastral: 5243107UF3454S0001LA Superficie: 1.527 m² Edificabilidad: 458 m² Los dueños están abiertos a recibir ofertas serías. Refrain real estate agents, images protected by copyright. Land for sale in LOS ALTOS DE LOS MONTEROS urbanization Plot 18 N2-1, MARBELLA (MÁLAGA) with unobstructed views of the sea along with an attractive 4-storey single-family housing project, the building permit is being processed and is soon to be issued. The construction project is included. The construction project has 5 parking spaces, 3 in the garage and 2 for visits with sea views. In the basement we have a large panoramic sauna (sea views), gym and Turkish bath. Large storage room, laundry room and staircase that connects the 4 floors and elevator. On the ground floor, a spacious living room with double height and led fireplace, kitchen with American island, large pantry, guest bathroom and office. On the second floor 4 bedrooms each with bathroom, the master room with walking closet and bathtub with sea views. closets in the hallway. On the top floor, a large solar where you can place barbecue and rest facilities. It has 3 gardens, each one can be thematic. Use: Residential Subtype: Urban Land Cadastral Reference: 5243107UF3454S0001LA Area: 1,527 m² Buildable area: 458 m² The owners are open to serious offers.

Характеристики недвижимости

Complex information

  • Тип недвижимости
    Земля под застройку

Данные о недвижимости

  • Тип недвижимости
    Вторичка

Площади

  • Площадь участка
    1 509 m²

Base

  • Минимальный участок для продажи
    1 509 m²
  • Строительные участки
    2
  • Застройка
    452
  • Использование участка
    Жилой

Удобства

Вистас:

Виды на море

Дополнительные характеристики:

Строительный участок

Планы

Статистика рыночных цен на Terreno en carretera de Lomas de Marbella, 181

Карта

Малага, Марбелла, Рио Реал-Лос Монтерос, Carretera de Lomas de Marbella, 181 Поехать в это место
Оставьте отзыв о Terreno en carretera de Lomas de Marbella, 181
0
0 reviews
1
0% (0)
2
0% (0)
3
0% (0)
4
0% (0)
5
0% (0)
Alexander España
690 000 €
Свяжитесь с рекламодателем

Для получения дополнительной информации свяжитесь с платформой

REF: 245114

Отзывы о Terreno en carretera de Lomas de Marbella, 181
Loading...

No reviews have been left for this object yet

Ближайшие объекты

Исследуйте близлежащие объекты, которые мы обнаружили неподалеку от этого местоположения.

Terreno en calle Teba s/n

Малага, Марбелла, Нагуелес-Миля де Оро, Calle Teba s/n
3 700 000 €

"Discover an exclusive opportunity on Marbella's prestigious Golden Mile with th...

0
0 отзывов

Terreno en calle Buitrago

Малага, Марбелла, Марбелья Пуэбло, Calle Buitrago
3 300 000 €

Se trata de venta de NPL en fase de subasta, siendo la deuda total de 6.400. 000...

0
0 отзывов

Terreno en Barrio Valdeolletas-Las Cancelas-Xarblanca

Малага, Марбелла, Марбелья Пуэбло, Barrio Valdeolletas-Las Cancelas-Xarblanca
1 195 000 €

Parcela urbanizable de 1.493 m² a pocos minutos del centro de Marbella Les ofrec...

0
0 отзывов

Terreno en Barrio Casco Antiguo

Малага, Марбелла, Марбелья Пуэбло, Barrio Casco Antiguo
16 500 000 €

¡Felicitaciones, ha encontrado una de las mejores oportunidades de venta de parc...

0
0 отзывов

Terreno en paseo de Austria s/n

Малага, Марбелла, Эльвирия-Кабопино, Paseo de Austria s/n
470 000 €

Unique Chance: Construye tu villa de ensueño en Elviria Bienvenido a esta hermos...

0
0 отзывов

Terreno en avenida Don Jaime de Mora y Aragon, 2 j

Малага, Марбелла, Нагуелес-Миля де Оро, Avenida Don Jaime de Mora y Aragon, 2 J
8 500 000 €

Oferta de inversión única en Marbella. Se vende una parcela exclusiva de 4.873 m...

0
0 отзывов

Terreno en calle Jubrique

Малага, Марбелла, Нагуелес-Миля де Оро, Calle Jubrique
3 500 000 €

Descubre la oportunidad de construir la casa de tus sueños en una de las zonas m...

0
0 отзывов

Terreno en calle Fernando Vii, 45

Малага, Марбелла, Марбелья Пуэбло, Calle Fernando VII, 45
380 000 €

Terreno urbano de 450 m2 aprox, en casco urbano de Marbella. Calle Fernando VII,...

0
0 отзывов

Terreno en paseo de Dinamarca, 509

Малага, Марбелла, Эльвирия-Кабопино, Paseo de Dinamarca, 509
319 000 €

Parcela Residencial en Venta en Elviria – Ideal para Vivienda Familiar o Inversi...

0
0 отзывов
Звонок

Мы используем собственные и сторонние файлы cookie для анализа использования веб-сайта и показа вам рекламы, соответствующей вашим предпочтениям, на основе профиля, созданного по вашим привычкам просмотра (например, посещенные страницы). Подробнее. Вы принимаете файлы cookie?