Terreno en carretera de Lomas de Marbella

Малага, Марбелла, Рио Реал-Лос Монтерос, Carretera de Lomas de Marbella
690 000 €
Оставить отзыв
Земля под застройку Тип недвижимости
1 509 m² Площадь участка
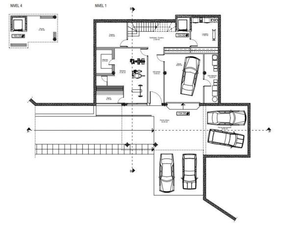
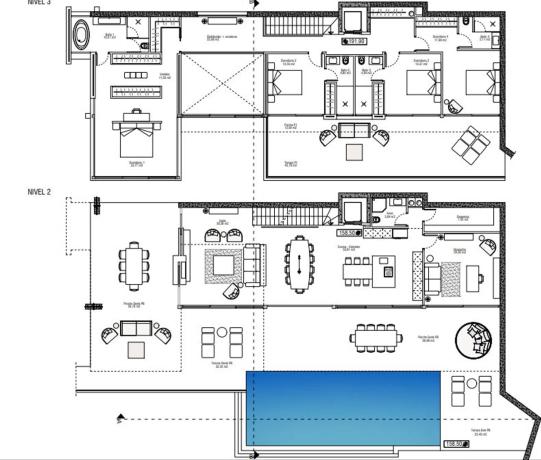
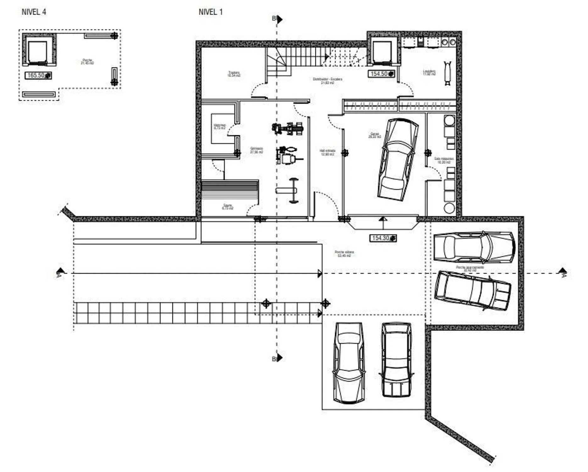
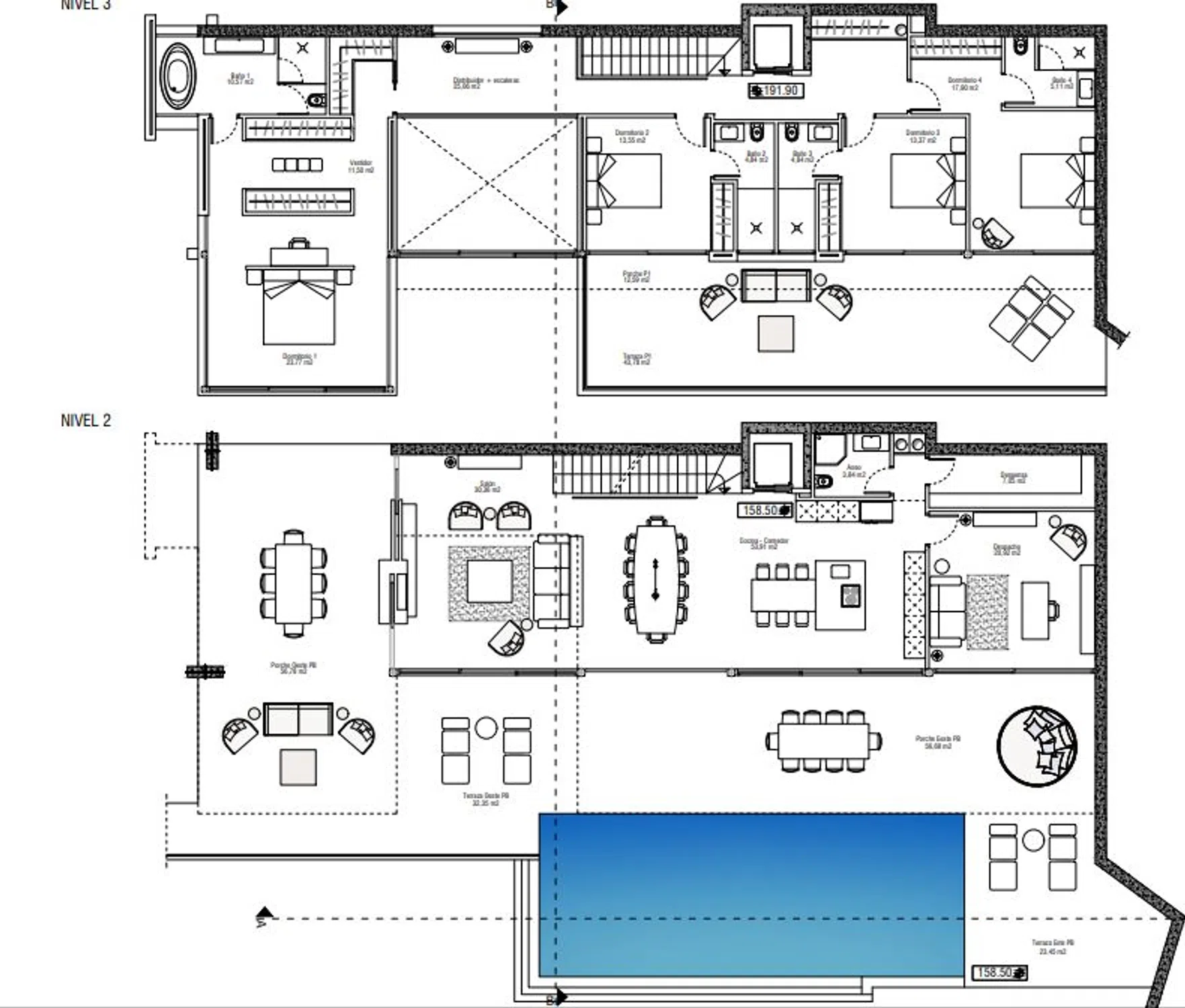
Parcela exclusiva en Altos de los Monteros, Marbella, con impresionantes vistas al mar y una privilegiada orientación sur. Esta maravillosa propiedad cuenta con 1.509 m2 de superficie y una edificabilidad del 30%, ofreciendo un sinfín de posibilidades para crear la residencia de sus sueños. El precio incluye un Proyecto Básico de 1.009 m2 construidos en total, de los cuales 498,06 m2 corresponden a la superficie interior de la vivienda y 511,35 m2 a amplios porches y terrazas, diseñados para disfrutar del clima mediterráneo y las vistas panorámicas. La Licencia de Obra ya está solicitada, y se prevé que estará lista en un plazo de 7 a 9 meses. Situada en lo alto de la montaña, esta parcela está rodeada de un entorno natural inigualable, con encinas, robles y alcornoques que aportan frescura y tranquilidad, creando la sensación de estar en plena naturaleza, pero con la comodidad de tener Marbella a pocos minutos. La urbanización se encuentra en las colinas de Marbella, perfectamente comunicada y cerca de todos los servicios esenciales: supermercados, colegios nacionales e internacionales, campos de golf como Santa María o Río Real, playas y chiringuitos como Trocadero, clubes de tenis y hospitales. Además, ofrece seguridad y servicios comunitarios de mantenimiento, garantizando una vida cómoda y exclusiva. ¡Una oportunidad excepcional para construir su hogar en uno de los enclaves más cotizados de la Costa del Sol! [IW].

Характеристики недвижимости

Complex information

  • Тип недвижимости
    Земля под застройку

Данные о недвижимости

  • Тип недвижимости
    Вторичка

Площади

  • Площадь участка
    1 509 m²

Base

Удобства

Вистас:

Виды на море

Дополнительные характеристики:

Строительный участок

Планы

Статистика рыночных цен на Terreno en carretera de Lomas de Marbella

Карта

Малага, Марбелла, Рио Реал-Лос Монтерос, Carretera de Lomas de Marbella Поехать в это место
Оставьте отзыв о Terreno en carretera de Lomas de Marbella
0
0 reviews
1
0% (0)
2
0% (0)
3
0% (0)
4
0% (0)
5
0% (0)
Marbelland
690 000 €
Свяжитесь с рекламодателем

Для получения дополнительной информации свяжитесь с платформой

REF: 245020

Отзывы о Terreno en carretera de Lomas de Marbella
Loading...

No reviews have been left for this object yet

Ближайшие объекты

Исследуйте близлежащие объекты, которые мы обнаружили неподалеку от этого местоположения.

Terreno en calle Teba s/n

Малага, Марбелла, Нагуелес-Миля де Оро, Calle Teba s/n
3 700 000 €

"Discover an exclusive opportunity on Marbella's prestigious Golden Mile with th...

0
0 отзывов

Terreno en calle Buitrago

Малага, Марбелла, Марбелья Пуэбло, Calle Buitrago
3 300 000 €

Se trata de venta de NPL en fase de subasta, siendo la deuda total de 6.400. 000...

0
0 отзывов

Terreno en Barrio Valdeolletas-Las Cancelas-Xarblanca

Малага, Марбелла, Марбелья Пуэбло, Barrio Valdeolletas-Las Cancelas-Xarblanca
1 195 000 €

Parcela urbanizable de 1.493 m² a pocos minutos del centro de Marbella Les ofrec...

0
0 отзывов

Terreno en Barrio Casco Antiguo

Малага, Марбелла, Марбелья Пуэбло, Barrio Casco Antiguo
16 500 000 €

¡Felicitaciones, ha encontrado una de las mejores oportunidades de venta de parc...

0
0 отзывов

Terreno en paseo de Austria s/n

Малага, Марбелла, Эльвирия-Кабопино, Paseo de Austria s/n
470 000 €

Unique Chance: Construye tu villa de ensueño en Elviria Bienvenido a esta hermos...

0
0 отзывов

Terreno en avenida Don Jaime de Mora y Aragon, 2 j

Малага, Марбелла, Нагуелес-Миля де Оро, Avenida Don Jaime de Mora y Aragon, 2 J
8 500 000 €

Oferta de inversión única en Marbella. Se vende una parcela exclusiva de 4.873 m...

0
0 отзывов

Terreno en calle Jubrique

Малага, Марбелла, Нагуелес-Миля де Оро, Calle Jubrique
3 500 000 €

Descubre la oportunidad de construir la casa de tus sueños en una de las zonas m...

0
0 отзывов

Terreno en calle Fernando Vii, 45

Малага, Марбелла, Марбелья Пуэбло, Calle Fernando VII, 45
380 000 €

Terreno urbano de 450 m2 aprox, en casco urbano de Marbella. Calle Fernando VII,...

0
0 отзывов

Terreno en paseo de Dinamarca, 509

Малага, Марбелла, Эльвирия-Кабопино, Paseo de Dinamarca, 509
319 000 €

Parcela Residencial en Venta en Elviria – Ideal para Vivienda Familiar o Inversi...

0
0 отзывов
Звонок

Мы используем собственные и сторонние файлы cookie для анализа использования веб-сайта и показа вам рекламы, соответствующей вашим предпочтениям, на основе профиля, созданного по вашим привычкам просмотра (например, посещенные страницы). Подробнее. Вы принимаете файлы cookie?