Terreno en Urbanizacion Nerja Golf

Малага, Нерха, Алмиджара, Urbanizacion Nerja Golf
1 609 000 €
Оставить отзыв
Земля под застройку Тип недвижимости
2 700 m² Площадь участка
Секторизированный Земля под застройку
2700 Застройка
Жилой Использование участка
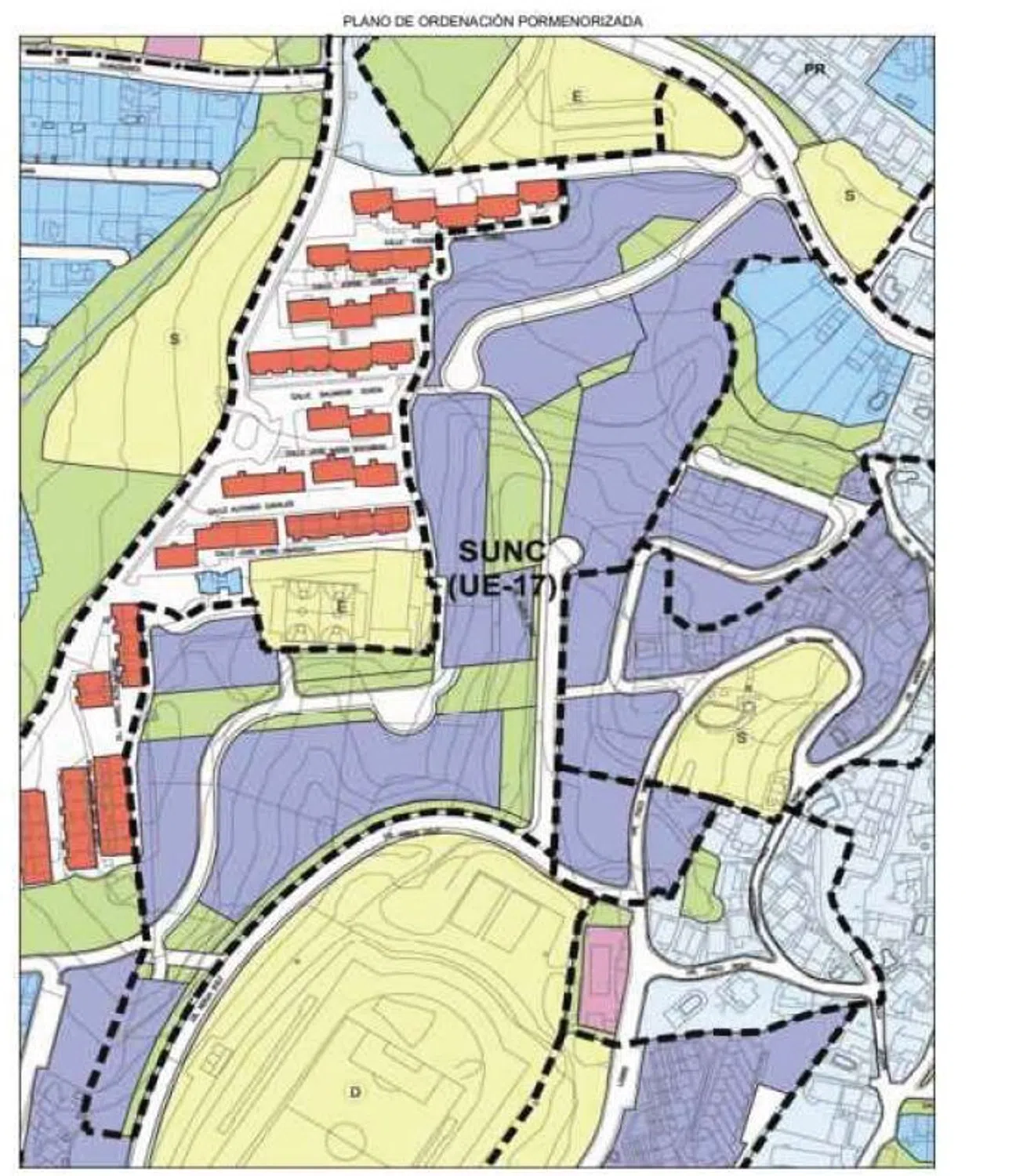
Venta de Suelo Urbano Residencial en Nerja (Málaga) Se pone a la venta una excelente parcela de suelo urbano en el término municipal de Nerja, situada en la reconocida zona de Fuente del Badén, dentro de la urbanización Nerja Golf, sector UE-17. Se trata de una oportunidad única para promotores e inversores interesados en desarrollar un proyecto residencial o turístico en una de las localidades más demandadas de la Costa del Sol. Características del inmueble: •Superficie total: 2.700 m² •Superficie gráfica catastral: 2.617 m² Referencia catastral: 2490514VF2629S0001GE Clasificación del suelo: Urbano •Uso permitido: Residencial y turístico •Edificabilidad máxima: 2.700 m² techo •Número máximo de viviendas permitidas: 27 La finca, identificada como parcela 4-1, se encuentra integrada en una zona ordenada urbanísticamente y con todos los servicios en desarrollo o próximos a consolidarse. Su entorno está conformado por parcelas residenciales ya delimitadas, lo que garantiza una adecuada integración en el tejido urbano existente. Limita: •Al norte, con parcelas destinadas a viviendas plurifamiliares. •Al sur, con otra parcela de uso residencial, identificada como 3-1. •Al este, con una zona destinada a espacios libres y parques. •Al oeste, nuevamente con parcelas de uso residencial plurifamiliar. La urbanización Nerja Golf se encuentra a escasa distancia del centro urbano de Nerja, con acceso rápido a las playas, comercios y principales vías de comunicación. La ubicación estratégica, combinada con la edificabilidad disponible y la posibilidad de construir hasta 27 viviendas, convierte esta propiedad en una opción ideal tanto para promoción de vivienda habitual como para proyectos turísticos o de segunda residencia. Para más información o concertar una visita, no dude en ponerse en contacto.

Характеристики недвижимости

Complex information

  • Тип недвижимости
    Земля под застройку

Данные о недвижимости

  • Тип недвижимости
    Вторичка

Площади

  • Площадь участка
    2 700 m²

Base

  • Минимальный участок для продажи
    2 617 m²
  • Земля под застройку
    Секторизированный
  • Застройка
    2700
  • Использование участка
    Жилой

Удобства

Дополнительные характеристики:

Строительный участок

Статистика рыночных цен на Terreno en Urbanizacion Nerja Golf

Карта

Малага, Нерха, Алмиджара, Urbanizacion Nerja Golf Поехать в это место
Оставьте отзыв о Terreno en Urbanizacion Nerja Golf
0
0 reviews
1
0% (0)
2
0% (0)
3
0% (0)
4
0% (0)
5
0% (0)
Domus RS RESIDENTIAL
1 609 000 €
Свяжитесь с рекламодателем

Для получения дополнительной информации свяжитесь с платформой

REF: 367232

Отзывы о Terreno en Urbanizacion Nerja Golf
Loading...

No reviews have been left for this object yet

Ближайшие объекты

Исследуйте близлежащие объекты, которые мы обнаружили неподалеку от этого местоположения.

Terreno en venta en El Peñoncillo

Малага, Торрокс, Эль Пеньонсилло
196 000 €

Parcela edificable en la zona de El Peñoncillo, en el URP-3 de Torrox. Esta parc...

0
0 отзывов

Terreno en calle Carolina

Малага, Нерха, Чапариль - Торресилья - Пунта Лара, Calle Carolina
1 490 000 €

NO COBRAMOS COMISIÓN DE INTERMEDIACIÓN AL COMPRADOR ¡Una oportunidad privilegiad...

0
0 отзывов

Terreno en calle Elena Martin Vivaldi

Малага, Торрокс, Эль Пеньонсилло, Calle Elena Martin Vivaldi
595 000 €

Solar para 3 villas en Torrox Amplia parcela de 1500m2 en una de las mejores ubi...

0
0 отзывов

Terreno en el pino s/n

Малага, Торрокс, Торрох Публо, El pino s/n
68 000 €

Suelo urbanizable situado en la Urbanización Cerro Lago, en la localidad de Torr...

0
0 отзывов

Terreno en El Peñoncillo

Малага, Торрокс, Эль Пеньонсилло, El Peñoncillo
520 000 €

Se venden 5 parcelas urbanas ubicadas en una de las zonas con mayor proyección u...

0
0 отзывов

Terreno en El Peñoncillo

Малага, Торрокс, Эль Пеньонсилло, El Peñoncillo
100 000 €

¿Buscas invertir en la Costa del Sol? Este terreno urbano es tu ocasión perfecta...

0
0 отзывов

Terreno en El Peñoncillo

Малага, Торрокс, Эль Пеньонсилло, El Peñoncillo
110 000 €

Se vende parcela urbana de 400 m² en la codiciada zona de El Peñoncillo, a tan s...

0
0 отзывов

Terreno en Avda Pescia - Ctra de Frigiliana

Малага, Нерха, Авда Пеския - Ктра де Фригилиана, Avda Pescia - Ctra de Frigiliana
135 000 €

Finca rústica con producción de aguacates en Loma Cuadrilla, Nerja 135.000 € Se...

0
0 отзывов

Terreno en El Peñoncillo

Малага, Торрокс, Эль Пеньонсилло, El Peñoncillo
1 200 000 €

� Ubicación estratégica en El Peñoncillo, con espectaculares vistas al mar y a s...

0
0 отзывов
Звонок

Мы используем собственные и сторонние файлы cookie для анализа использования веб-сайта и показа вам рекламы, соответствующей вашим предпочтениям, на основе профиля, созданного по вашим привычкам просмотра (например, посещенные страницы). Подробнее. Вы принимаете файлы cookie?