Terreno en Coiro - Da Costeira

Пontevedra, КанGas, Койро, COIRO - DA COSTEIRA
120 000 €
Оставить отзыв
Урбанизируемый Тип недвижимости
1 170 m² Площадь участка
600 m² Застройка
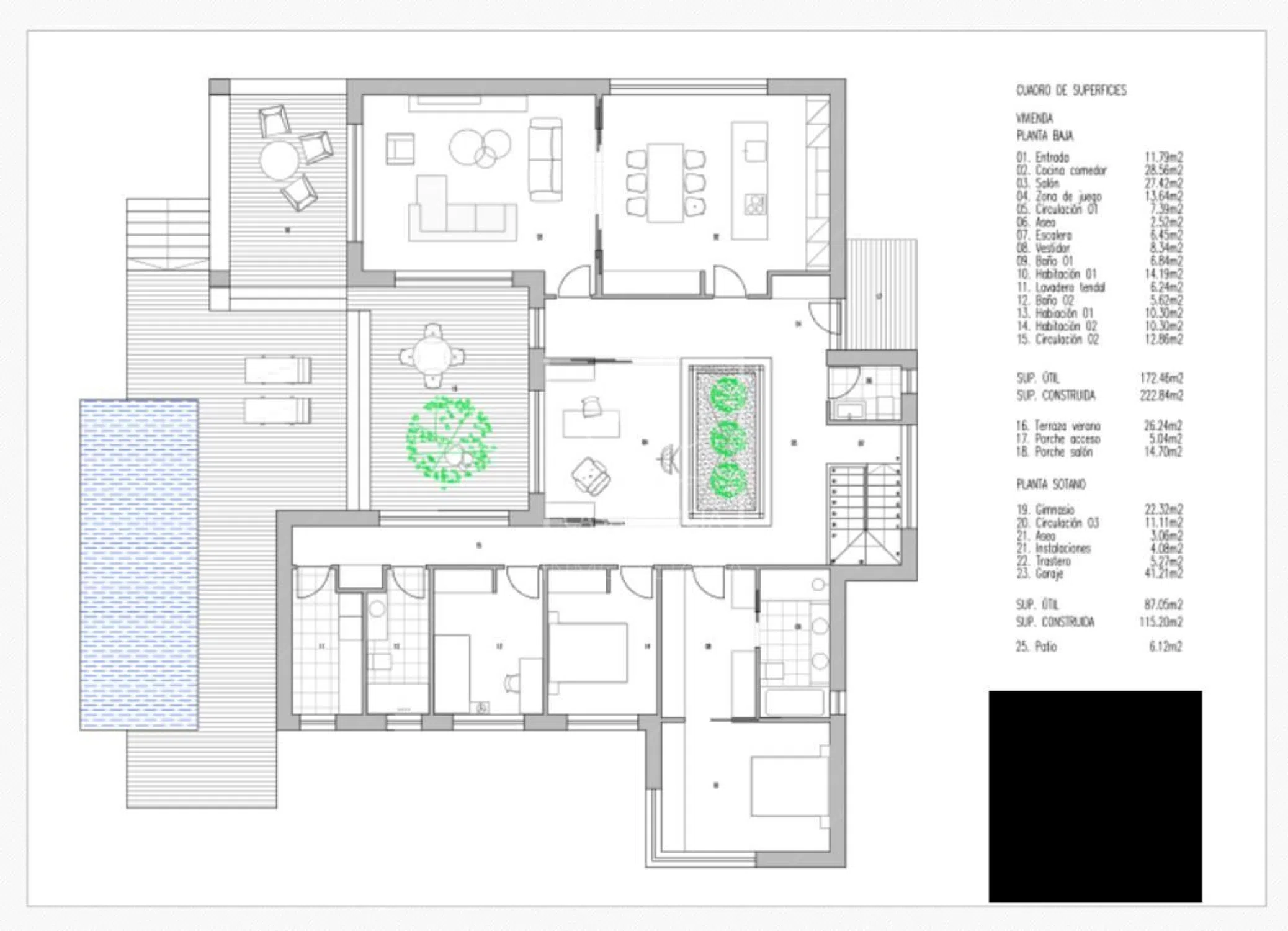
¡Descubre el lugar perfecto para construir el hogar de tus sueños! Este impresionante terreno de 1.170 m² está situado en un núcleo urbano, ofreciendo la combinación ideal entre tranquilidad y comodidad. La parcela, bañada por el sol, cuenta con licencia de construcción para una vivienda unifamiliar, lo que te permite diseñar una planta única con jardín interior, piscina, garaje y gimnasio. Imagina vivir a solo 30 minutos a pie de la hermosa playa de Rodeira y a 35 minutos del vibrante centro de Cangas. Además, el terreno ya dispone de servicios esenciales como luz y alcantarillado, y es completamente urbanizable. No dejes pasar esta oportunidad única de crear un espacio a medida en una ubicación envidiable. ¡Ven y haz realidad tu proyecto de vida!

Характеристики недвижимости

Complex information

  • Тип недвижимости
    Урбанизируемый

Данные о недвижимости

  • Тип недвижимости
    Вторичка

Площади

  • Площадь участка
    1 170 m²

Base

  • Минимальный участок для продажи
    1 170 m²
  • Застройка
    600 m²

Удобства

Суминстро:

Канализация

Статистика рыночных цен на Terreno en Coiro - Da Costeira

Карта

Пontevedra, КанGas, Койро, COIRO - DA COSTEIRA Поехать в это место
Оставьте отзыв о Terreno en Coiro - Da Costeira
0
0 reviews
1
0% (0)
2
0% (0)
3
0% (0)
4
0% (0)
5
0% (0)
Sucasagalicia
120 000 €
Свяжитесь с рекламодателем

Для получения дополнительной информации свяжитесь с платформой

REF: 382840

Отзывы о Terreno en Coiro - Da Costeira
Loading...

No reviews have been left for this object yet

Ближайшие объекты

Исследуйте близлежащие объекты, которые мы обнаружили неподалеку от этого местоположения.

Terreno en venta en avenida do Aeroporto, 24

Пontevedra, Виго, Центро урбано, Avenida do Aeroporto, 24
96 000 €

Véndese terreno edificable na zona do Calvario de Vigo. Moi preto do IES Castela...

0
0 отзывов

Terreno en Ep-1301, 53

Пontevedra, Буеu, EP-1301, 53
95 000 €

Terreno edificable de 688 m² situado en Chan de Piñeiro - Beluso (Bueu). El ter...

0
0 отзывов

Terreno en camino de Herbello a Magdalena

Пontevedra, КанGas, Дарбо, Camino de Herbello a Magdalena
115 000 €

Finca urbanizable en Cangas con vistas y gran potencial de edificación Se vende...

0
0 отзывов

Terreno en camino de Herbello a Magdalena, 139

Пontevedra, КанGas, Алдан, Camino de Herbello a Magdalena, 139
90 000 €

Parcela edificable situada en Piñeiro, Aldán, con acceso rodado y con fachada a...

0
0 отзывов

Terreno en calle da Retirosa

Пontevedra, КанGas, Койро, Calle da Retirosa
135 000 €

¡Oportunidad única en Cangas do Morrazo! Este terreno edificable de 1.100 m² es...

0
0 отзывов

Terreno en Bueu

Пontevedra, Буеu, Bueu
160 000 €

Terreno de 3160 metros con vistas al mar a menos de un kilómetro del centro de B...

0
0 отзывов

Terreno en Os Piñeiros, 1 Lugarospieiros

Пontevedra, Моанья, OS PIÑEIROS, 1 LUGAROSPIEIROS
100 000 €

Preciosa finca edificable en Moaña, Pontevedra. *Vistas panorámicas de la Ria de...

0
0 отзывов

Terreno en José María Castroviejo

Пontevedra, КанGas, Койро, José María Castroviejo
1 500 000 €

Parcela edificable en primera línea de playa en Cangas Terreno con una superfici...

0
0 отзывов

Terreno en Lugar o Cruceiro, 18

Пontevedra, Моанья, Lugar O Cruceiro, 18
75 000 €

Descubre este terreno único en Moaña de 502 m² con unas maravillosas vistas al m...

0
0 отзывов

Мы используем собственные и сторонние файлы cookie для анализа использования веб-сайта и показа вам рекламы, соответствующей вашим предпочтениям, на основе профиля, созданного по вашим привычкам просмотра (например, посещенные страницы). Подробнее. Вы принимаете файлы cookie?