Terreno en Ep-9205, 29

Пontevedra, Санксенхо, Нант, EP-9205, 29
145 000 €
Оставить отзыв
Земля под застройку Тип недвижимости
1 395 m² Площадь участка
2 Строительные участки
1 395 m² Застройка
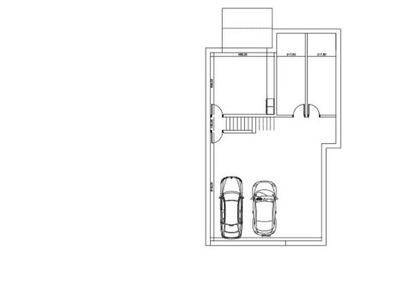
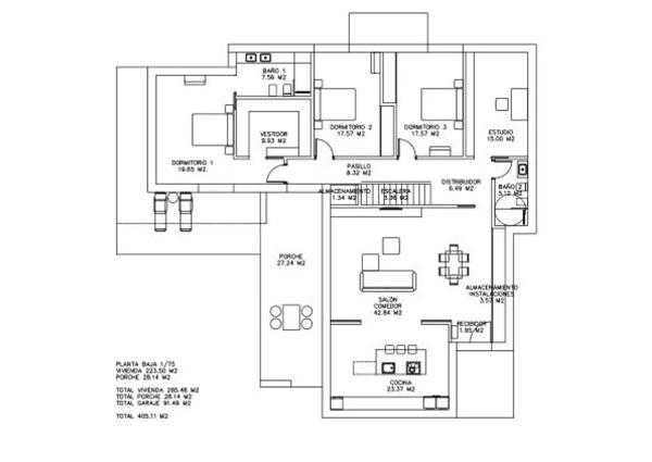
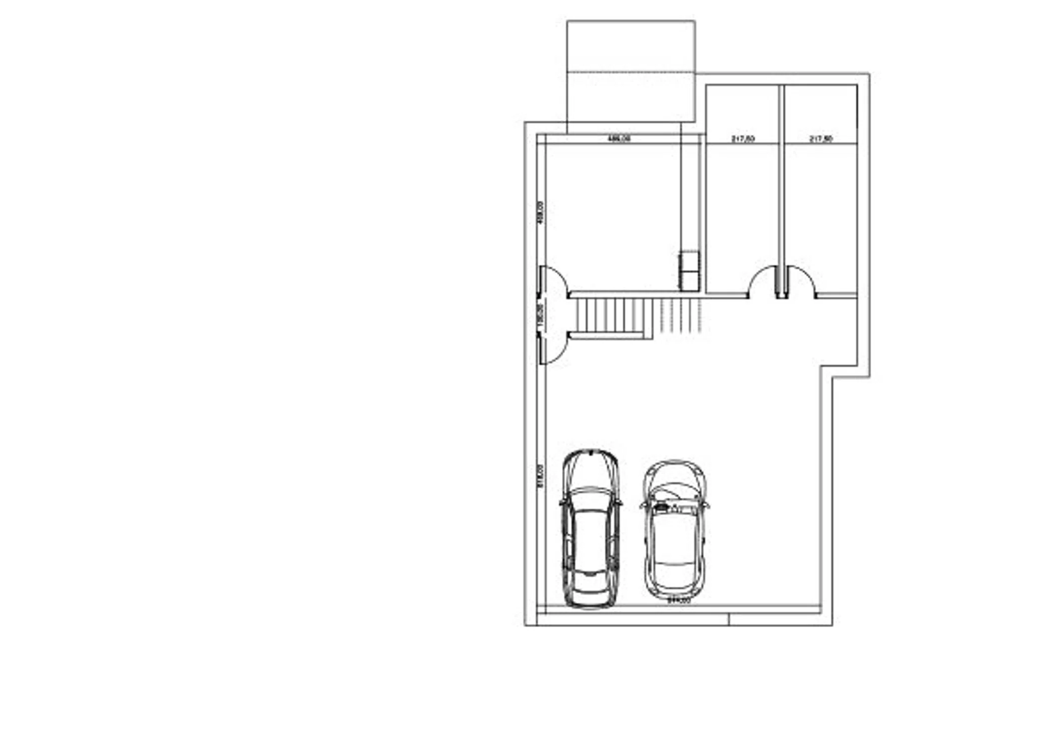
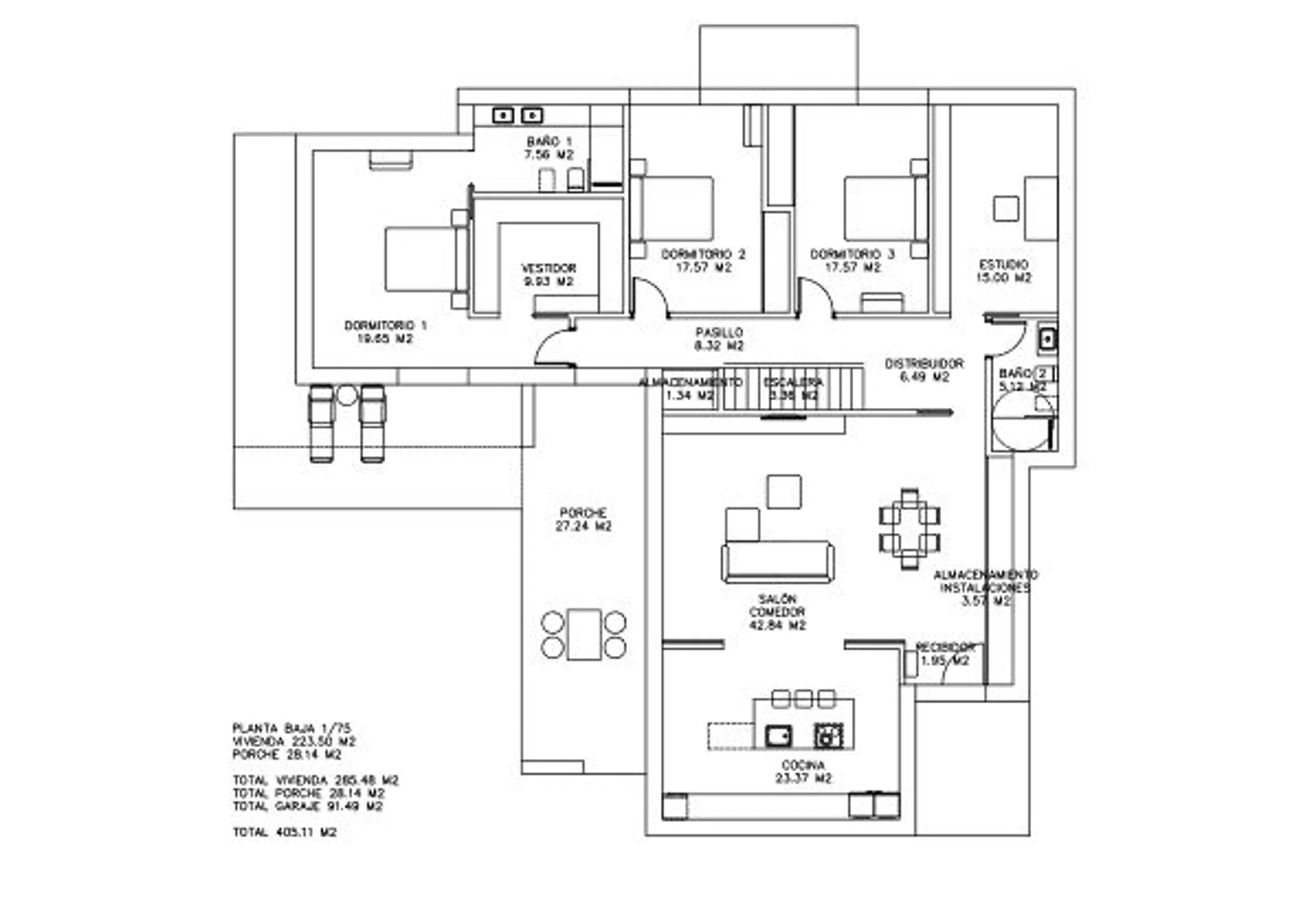
¡Descubre el terreno de tus sueños en una ubicación inmejorable en Nantes! Este amplio terreno de 1.395 m² te ofrece la oportunidad de construir la casa moderna que siempre has deseado, con un proyecto básico y de ejecución ya incluido. Con una licencia municipal en mano para una vivienda de planta baja, este espacio está listo para hacer realidad tus planes. Ubicado a menos de 2 km de Sanxenxo, disfrutarás de la tranquilidad del entorno, con impresionantes vistas a la Ensenada de la Toja y fácil acceso a playas y rutas de senderismo. El terreno cuenta con todos los servicios necesarios: agua, luz, alcantarillado y alumbrado público. Además, su acceso por carretera y su proximidad al núcleo urbano más cercano, a solo 3 km, lo convierten en una opción ideal para quienes buscan comodidad y conexión. Con un frente a la vía pública de aproximadamente 70 metros, este solar urbano es perfecto para un desarrollo residencial unifamiliar, permitiendo la construcción de hasta dos plantas. No pierdas la oportunidad de invertir en una propiedad que combina naturaleza y modernidad en un entorno privilegiado. ¡Ven y hazlo tuyo!

Характеристики недвижимости

Complex information

  • Тип недвижимости
    Земля под застройку

Данные о недвижимости

  • Тип недвижимости
    Вторичка

Площади

  • Площадь участка
    1 395 m²

Base

  • Минимальный участок для продажи
    1 395 m²
  • Градостроительная земля
    Консолидированный (Соляр)
  • Строительные участки
    2
  • Застройка
    1 395 m²

Удобства

Суминстро:

Канализация

Статистика рыночных цен на Terreno en Ep-9205, 29

Карта

Пontevedra, Санксенхо, Нант, EP-9205, 29 Поехать в это место
Оставьте отзыв о Terreno en Ep-9205, 29
0
0 reviews
1
0% (0)
2
0% (0)
3
0% (0)
4
0% (0)
5
0% (0)
INMOBILIARIA SALNES
145 000 €
Свяжитесь с рекламодателем

Для получения дополнительной информации свяжитесь с платформой

REF: 383265

Отзывы о Terreno en Ep-9205, 29
Loading...

No reviews have been left for this object yet

Ближайшие объекты

Исследуйте близлежащие объекты, которые мы обнаружили неподалеку от этого местоположения.

¡Tu rincón de paz a 6 Km de Sanxenxo!

Пontevedra, Санксенхо
280 000 €

Parcela con casita de madera y garaje independiente de 20 m2. La vivienda, de 47...

0
0 отзывов

Terreno en avenida dos Loureiros, 26 y 28

Пontevedra, Санксенхо, Адита-Портоново, Avenida dos Loureiros, 26 y 28
520 000 €

Terreno edificable en las zonas de playa de Caneliñas, Baltar y su puerto y a Si...

0
0 отзывов

Terreno en Ep-9507

Пontevedra, Мейс, EP-9507
65 000 €

En el corazón verde de Armenteira, Meis, se ofrece en venta este excepcional ter...

0
0 отзывов

Terreno en Lugar Bouza-Gondar, 3

Пontevedra, Санксенхо, Виллалонга, Lugar Bouza-Gondar, 3
65 000 €

Oportunidad. A la venta parcelas edificables. Parcelas en zona elevada, soleada...

0
0 отзывов

Terreno en Adina-Portonovo

Пontevedra, Санксенхо, Адита-Портоново, Adina-Portonovo
129 000 €

Tenemos 3 parcelas urbanizables en venta, situadas a solo 700 metros de la playa...

0
0 отзывов

Terreno en calle de Galicia

Пontevedra, Меано, Calle de Galicia
115 000 €

¿Buscas un lugar privilegiado para construir tu vivienda en las Rías Baixas? ¡Es...

0
0 отзывов

Terreno en calle de Galicia, 32

Пontevedra, Меано, Calle de Galicia, 32
240 000 €

SOLAR EN EL CENTRO DE DENA. A TAN SOLO 10 MINUTOS EN COCHE DE SANXENXO. Ideal co...

0
0 отзывов

Terreno en Sanxenxo

Пontevedra, Санксенхо, Санхенхо, Sanxenxo
350 000 €

PARCELA EDIFICABLE PARA CHALET UNICO o 2 CHALETS PARCELA SEGREGADA 165.000 € CAD...

0
0 отзывов

Terreno en Lugar Arra, 6 a

Пontevedra, Санксенхо, Адита-Портоново, Lugar Arra, 6 A
89 900 €

Terreno a 600 metros de la playa de montalvo y a 1 km de portonovo donde tienes...

0
0 отзывов

Мы используем собственные и сторонние файлы cookie для анализа использования веб-сайта и показа вам рекламы, соответствующей вашим предпочтениям, на основе профиля, созданного по вашим привычкам просмотра (например, посещенные страницы). Подробнее. Вы принимаете файлы cookie?