Obra nueva Magdalena murillo en Gelves

Распродано
Оставить отзыв
Квартиры Тип недвижимости
59 m² м2 построенных
1 Ванные комнаты
2 Спальни
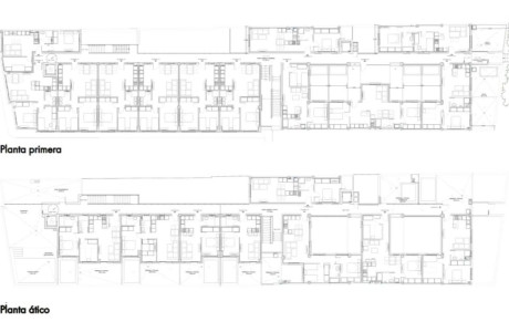
ULTIMAS 10 VIVIENDAS!Descubre una exclusiva promoción de viviendas en la calle Magdalena Murillo de Gelves. Este magnífico edificio ofrece treinta y dos viviendas diseñadas para ofrecer una experiencia de vida excepcional ofreciendo un diseño moderno y elegante. Cada una de estas espaciosas viviendas, que incluyen opciones de 1 y 2 dormitorios, algunas de estas viviendas cuenta con grandes patios o terrazas, brindando un espacio al aire libre perfecto para disfrutar del clima soleado y las vistas panorámicas. Una promoción de viviendas sin equivalente en el mercado, en un edificio que cuenta con revestimientos de primera calidad y acabados sensacionales, con la posibilidad de que cada propietario personalice su vivienda según sus gustos y preferencias. Sumérgete en un estilo de vida exclusivo y personalizado en esta promoción, que combina el confort, la comodidad y los espacios al aire libre en un entorno privilegiado.Viviendas cercanas a comercios, bares, restaurantes, institutos y transporte publico.Informamos a nuestros clientes que el precio de venta no incluye lo siguiente: Honorarios de la agencia inmobiliaria, IVA, gastos de registro, gestoría y notaria. Documento D. I. A. a disposición del consumidor según Decreto 218/2005 Junta de Andalucía.Para más información de la promoción puedes visitarnos en nuestra oficina Tecnocasa de Calle Real 34 (Gelves, Sevilla).* Garajes independiente a 15.000€ y 16.000€.

Характеристики недвижимости

Complex information

  • Жилой комплекс
    Magdalena murillo
  • Тип недвижимости
    Квартиры

Данные о недвижимости

  • Спальни
    2
  • Ванные комнаты
    1
  • м2 построенных
    59 m²
  • Тип дизайна
    Современный
  • Тип недвижимости
    Новостройка

Удобства

Удобства жилья:

Терасса

В здании:

Лифт
Бар
Спа

Статистика рыночных цен на Piso en venta en calle magdalena murillo s/n

138 229 € (2 103 €/m2)
Средняя цена на первичные Квартиры в городе Гельвес

Карта

Севилья, Гельвес Поехать в это место
Оставьте отзыв о Piso en venta en calle magdalena murillo s/n
0
0 reviews
1
0% (0)
2
0% (0)
3
0% (0)
4
0% (0)
5
0% (0)
Magdalena murillo
Жилой комплекс
Распродано
Свяжитесь с рекламодателем

Для получения дополнительной информации свяжитесь с платформой

REF: 11042

Отзывы о Piso en venta en calle magdalena murillo s/n
Loading...

No reviews have been left for this object yet

Ближайшие объекты

Исследуйте близлежащие объекты, которые мы обнаружили неподалеку от этого местоположения.

Apartamentos en Venta en Calle Pages del Corro, 95, 97, Sevilla

Севилья, Севилья, Триана, Calle Pages del Corro, 95, 97
430 000 €

DESCUBRE EL HOGAR DONDE LOS SUEÑOS SE CUMPLENMODERNO Y CLASICO SE DAN LA MANOEn...

0
0 отзывов

Apartamentos en Venta en Calle Pages del Corro, 95, 97, Sevilla

Севилья, Севилья, Триана, Calle Pages del Corro, 95, 97
306 000 €

DESCUBRE EL HOGAR DONDE LOS SUEÑOS SE CUMPLENMODERNO Y CLASICO SE DAN LA MANOEn...

0
0 отзывов

Apartamentos en Venta en Calle Pages del Corro, 95, 97, Sevilla

Севилья, Севилья, Триана, Calle Pages del Corro, 95, 97
351 000 €

DESCUBRE EL HOGAR DONDE LOS SUEÑOS SE CUMPLENMODERNO Y CLASICO SE DAN LA MANOEn...

0
0 отзывов

Apartamentos en Venta en Calle Pages del Corro, 95, 97, Sevilla

Севилья, Севилья, Триана, Calle Pages del Corro, 95, 97
389 000 €

DESCUBRE EL HOGAR DONDE LOS SUEÑOS SE CUMPLENMODERNO Y CLASICO SE DAN LA MANOEn...

0
0 отзывов

Apartamentos en Venta en Avenida Jerez s/n, Sevilla

Севилья, Севилья, Ла Пальмера - Лос Бермехалес, Avenida Jerez s/n
361 000 €

¡OBRAS INICIADAS!Selecta Bermes es un nuevo proyecto de 42 viviendas plurifamili...

0
0 отзывов

Apartamentos en Venta en Avenida Jerez s/n, Sevilla

Севилья, Севилья, Ла Пальмера - Лос Бермехалес, Avenida Jerez s/n
289 000 €

¡OBRAS INICIADAS!Selecta Bermes es un nuevo proyecto de 42 viviendas plurifamili...

0
0 отзывов

Apartamentos en Venta en Avenida Jerez s/n, Sevilla

Севилья, Севилья, Ла Пальмера - Лос Бермехалес, Avenida Jerez s/n
422 000 €

¡OBRAS INICIADAS!Selecta Bermes es un nuevo proyecto de 42 viviendas plurifamili...

0
0 отзывов

Obra nueva Edificio Olivar de la Reina en Sevilla

Севилья, Севилья, Церро Амате, Calle José María de Pereda, 21
235 000 €

Viviendas para habitar y disfrutar en el corazón del tradicional barrio sevillan...

0
0 отзывов

Obra nueva Edificio Olivar de la Reina en Sevilla

Севилья, Севилья, Церро Амате, Calle José María de Pereda, 21
158 900 €

Viviendas para habitar y disfrutar en el corazón del tradicional barrio sevillan...

0
0 отзывов

Мы используем собственные и сторонние файлы cookie для анализа использования веб-сайта и показа вам рекламы, соответствующей вашим предпочтениям, на основе профиля, созданного по вашим привычкам просмотра (например, посещенные страницы). Подробнее. Вы принимаете файлы cookie?