Terreno en calle dels Tarongers, 21 -1

Валенсия, Массагрель, Calle dels Tarongers, 21 -1
60 000 €
Оставить отзыв
Земля под застройку Тип недвижимости
175 m² Площадь участка
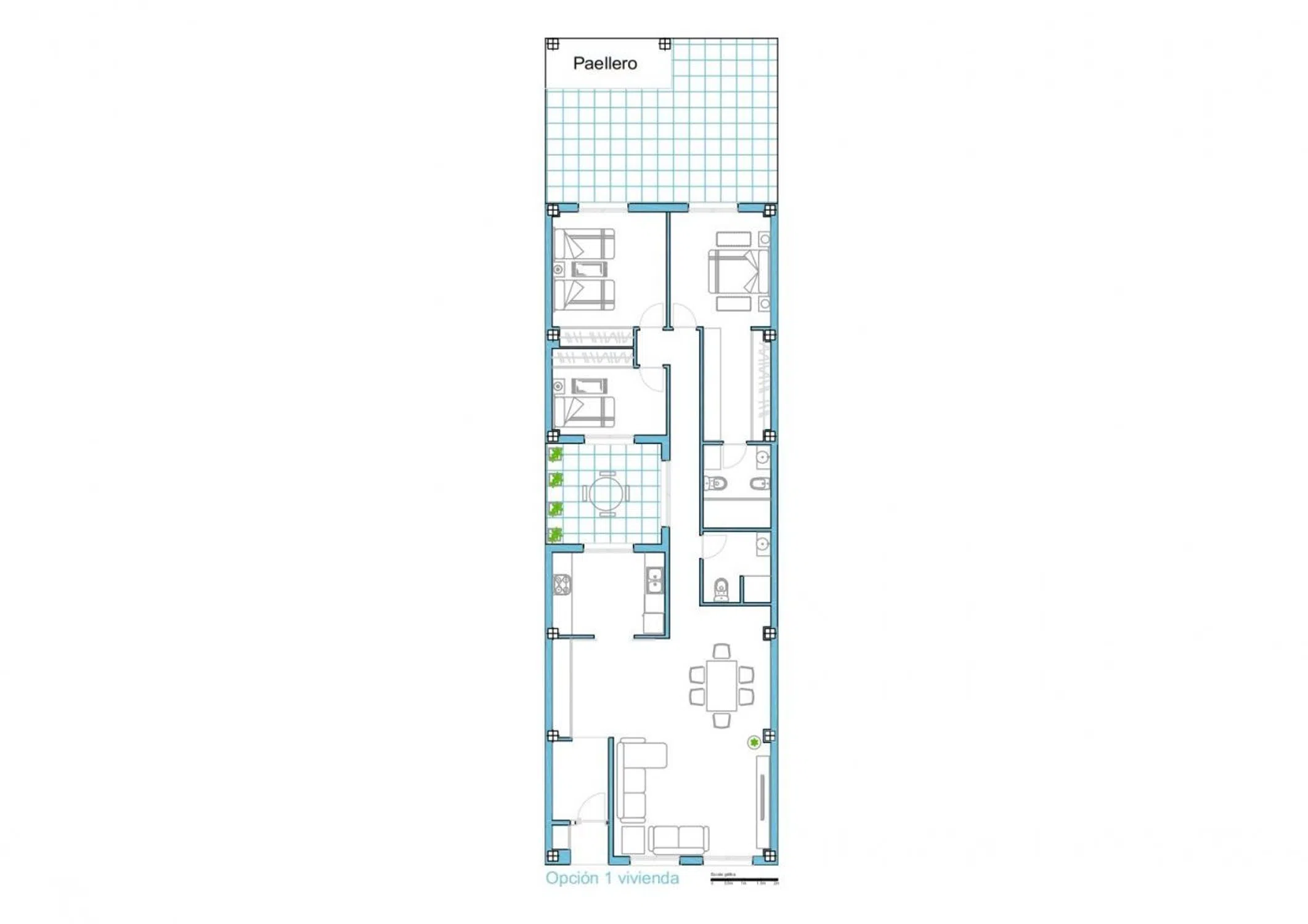
Se presenta en exclusiva la oportunidad de adquirir un solar urbano con cimentación y parte de la estructura ya ejecutadas, ideal para edificar. Este solar, de forma rectangular, cuenta con una fachada de 7 metros y una superficie total de 175 m² en planta, lo que permite la construcción de una finca familiar de hasta 3 plantas, con un total de 345 m² edificables. Alternativamente, representa una excelente inversión para desarrollar una promoción de 3 viviendas. El solar está dotado de todos los servicios necesarios a pie de parcela, incluyendo cimentación, solera y pilares de planta baja ya instalados, con las esperas correspondientes para continuar con la construcción. Esta es una oportunidad única para diseñar un hogar a medida, con la posibilidad de crear una vivienda por planta, permitiendo a las familias vivir juntas pero con la privacidad que cada uno necesita. Ubicado en una tranquila calle del barrio de la Magdalena en Massamagrell, el solar goza de una excelente comunicación con la CV-32, situándose a tan solo 26 minutos en coche del centro de Valencia y a 14 minutos de la playa de La Pobla de Farnals. Además, ofrece la posibilidad de disfrutar de un patio interior privado, ideal para el cultivo de flores y plantas, permitiendo una conexión con la naturaleza en un entorno urbano. Cabe destacar que la descripción del inmueble y los planos adjuntos tienen un carácter meramente informativo y no contractual. Por mandato expreso del propietario, este inmueble se comercializa en exclusiva, garantizando un servicio de calidad, un trato directo y un proceso ágil y sin interferencias de terceros. Por ello, se solicita no molestar al propietario, ocupantes, vecinos o conserjes del edificio o urbanización, si los hubiera. Agradecemos su comprensión y, si usted es una agencia inmobiliaria con un cliente interesado, no dude en contactarnos; estaremos encantados de colaborar en esta y otras operaciones. El propietario ha otorgado exclusiva para la comercialización lo que le garantiza información completa, veraz, servicio de calidad, trato fácil y un proceso sin interferencias de terceros.Se ruega no molestar al propietario,ocupantes,vecinos o conserjes.Las agencias inmobiliarias pueden contactar para colaborar y los compradores pueden delegar la búsqueda en Keller Williams Cpi gestión que con más de 25 años en el mercado inmobiliario,cuenta con seguro de responsabilidad profesional y caución.Registrada como Agencia Inmobiliaria 1.153 en el Registro de la C.V,Agente de la Propiedad Inmobiliaria Colegiada 1.501 y Agencia Inmobiliaria Colaboradora de la Generalitat Valenciana HDAIC_8_2022_V.Confíe sólo en profesionales cualificados,registrados,con garantías y con domicilio abierto al público para ejercer sus derechos.La oferta está sujeta a cambios de precio o retirada del mercado.Salvo que en el anuncio se indique expresamente lo contrario,el precio no incluye:honorarios de agencia,impuestos,notaría,gestoría y registro.Corresponde al vendedor el derecho a elegir notario.Este anuncio no es vinculante y puede contener errores.Se muestra a título informativo,no contractual.Para verificar detalles como medidas,circunstancias físicas,jurídicas o cualquier otra info requerida por normativas estatales y autonómicas,contacte con el agente inmobiliario anunciante.

Характеристики недвижимости

Complex information

  • Тип недвижимости
    Земля под застройку

Данные о недвижимости

  • Тип недвижимости
    Вторичка

Площади

  • Площадь участка
    175 m²

Base

  • Градостроительная земля
    Консолидированный (Соляр)

Статистика рыночных цен на Terreno en calle dels Tarongers, 21 -1

Карта

Валенсия, Массагрель, Calle dels Tarongers, 21 -1 Поехать в это место
Оставьте отзыв о Terreno en calle dels Tarongers, 21 -1
0
0 reviews
1
0% (0)
2
0% (0)
3
0% (0)
4
0% (0)
5
0% (0)
KW CPI Gestión
60 000 €
Свяжитесь с рекламодателем

Для получения дополнительной информации свяжитесь с платформой

REF: 381433

Отзывы о Terreno en calle dels Tarongers, 21 -1
Loading...

No reviews have been left for this object yet

Ближайшие объекты

Исследуйте близлежащие объекты, которые мы обнаружили неподалеку от этого местоположения.

Terreno en venta en Partida Drago, 2

Валенсия, Масальфасар
60 000 €

Excelente terreno de 1757 m2 en el término de Massalfasar junto a la itv y el pa...

0
0 отзывов

Terreno en venta en Tramuntana s/n

Валенсия, Наукера, Эль Корралет - Бонанса - Трес Рутас, Tramuntana s/n
2 200 000 €

Suelo industrial esquinero muy visible, consolidado y con todos los servicios. T...

0
0 отзывов

Fantástico solar. Ubicado en la calle San Miguel, Puzol.

Валенсия, Пучоль
40 000 €

Si alguna vez pensaste en comprar un terreno para poder hacer la casa de tus sue...

0
0 отзывов

Terreno en Partida Pla de Pavia

Валенсия, Альбалат дельс Тарончерс, Partida Pla de Pavia
39 000 €

¿Eres de los que buscas un trosset para desconectar del día a día o de los ruido...

0
0 отзывов

Terreno en paseo de levante

Валенсия, Сагунто, Лос Монастерийос - Эль Пикайо - Урбанисасьонес, Paseo de levante
100 000 €

Monserrate Inmobiliaria les ofrece una estupenda parcela en la exclusiva urbaniz...

0
0 отзывов

Terreno en El Corralet - Bonanza - Tres Rutas

Валенсия, Наукера, Эль Корралет - Бонанса - Трес Рутас, El Corralet - Bonanza - Tres Rutas
416 000 €

Ref. 40073S GIC Real Estate | GRUPOINVERCASA dispone en venta de un suelo con un...

0
0 отзывов

Terreno en El Corralet - Bonanza - Tres Rutas

Валенсия, Наукера, Эль Корралет - Бонанса - Трес Рутас, El Corralet - Bonanza - Tres Rutas
110 000 €

P5104018: Parcela rústica en venta en Alhaurín de la Torre Se vende 2 parcelas c...

0
0 отзывов

Terreno en calle Rosella, 3

Валенсия, Бетера, Ками Патерна-Ллома дель Кальдерер, Calle Rosella, 3
675 000 €

Se ofrece terreno urbano con acceso a la autopista AP7, bien comunicada con Líne...

0
0 отзывов

Terreno en calle Tentadero Paz

Валенсия, Наукера, Эль Корралет - Бонанса - Трес Рутас, Calle Tentadero Paz
32 000 €

Parcela de terreno rústica con una superficie de 10803 m², situada en la localid...

0
0 отзывов

Мы используем собственные и сторонние файлы cookie для анализа использования веб-сайта и показа вам рекламы, соответствующей вашим предпочтениям, на основе профиля, созданного по вашим привычкам просмотра (например, посещенные страницы). Подробнее. Вы принимаете файлы cookie?