Terreno en calle Lepanto

Валенсия, Пайпорта, Calle Lepanto
165 000 €
Оставить отзыв
Земля под застройку Тип недвижимости
118 m² Площадь участка
236 m² Застройка
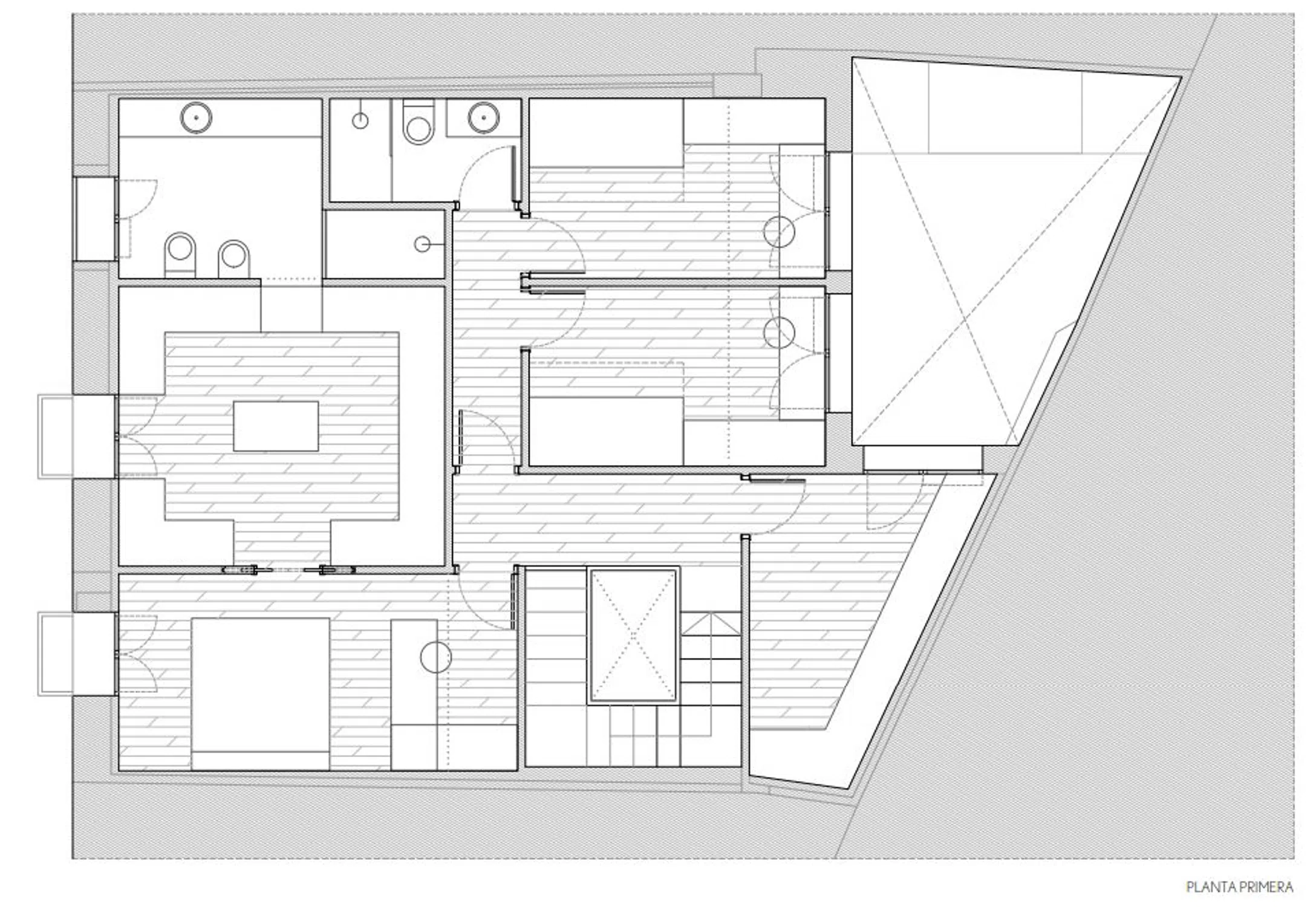
★ SENYERA INMOBILIARIA ★ SE VENDE PARCELA URBANA – OPORTUNIDAD ÚNICA PARA CONSTRUIR TU HOGAR IDEAL Cuenta ya con un proyecto y permiso de obra. Parcela de 118m² perfectamente ubicada, ideal para construir la casa de tus sueños. Proyecto viable para una vivienda 1 planta + buhardilla con la siguiente distribución: - 3 habitaciones amplias y luminosas - 2 baños completos - Salón comedor espacioso y confortable - Terraza con piscina privada para disfrutar al máximo del buen tiempo - Buhardilla ideal para despacho/oficina o zona de lectura La parcela se encuentra en una zona céntrica, con fácil acceso a todos los servicios: colegios, supermercados, transporte público y zonas verdes. � Excelente inversión para vivir o construir para alquilar. � ¡Contáctanos hoy mismo para más información y visita sin compromiso! ↳ Estamos en la Plaza Iglesia San Jordi, Paiporta. Para cualquier información no dudes en llamarnos al ☎ ☎ + Nuestra agencia esta registrada en el Registro de Agentes de Intermediación Inmobiliaria de la Comunidad Valenciana RAICV 3215 +Este inmueble está sujeto a cambios de precio o retirada del mercado sin previo aviso. +La información de este anuncio en su totalidad (Fotos, texto o cualquier otro contenido del mismo) se muestra a título informativo y no contractual y no es vinculante, dado que la información es ofrecida por terceros y puede contener errores. +El precio no incluye lo siguiente: honorarios de la agencia inmobiliaria, ITP y otros gastos de la Compraventa (Notaria, Gestoría y registro).

Характеристики недвижимости

Complex information

  • Тип недвижимости
    Земля под застройку

Данные о недвижимости

  • Тип недвижимости
    Вторичка

Площади

  • Площадь участка
    118 m²

Base

  • Минимальный участок для продажи
    118 m²
  • Застройка
    236 m²

Статистика рыночных цен на Terreno en calle Lepanto

Карта

Валенсия, Пайпорта, Calle Lepanto Поехать в это место
Оставьте отзыв о Terreno en calle Lepanto
0
0 reviews
1
0% (0)
2
0% (0)
3
0% (0)
4
0% (0)
5
0% (0)
SENYERA
165 000 €
Свяжитесь с рекламодателем

Для получения дополнительной информации свяжитесь с платформой

REF: 381739

Отзывы о Terreno en calle Lepanto
Loading...

No reviews have been left for this object yet

Ближайшие объекты

Исследуйте близлежащие объекты, которые мы обнаружили неподалеку от этого местоположения.

Terreno en venta en Patraix

Валенсия, Валенсия, Патрайкс
320 000 €

Disponemos de un solar muy cercano a la playa, ideal para construir hasta 4 altu...

0
0 отзывов

Terreno en venta en calle del Perú

Валенсия, Торрент, Зона Авениды Альта - Аудиторио, Calle del Perú
145 000 €

OPORTUNIDAD EN VENTA SUELO URBANOEspectacular parcela de 614 m2 en una de las me...

0
0 отзывов

Terreno en venta en La Torre

Валенсия, Ла Торре
1 879 000 €

¿Buscas tu nuevo suelo urbano residencial? Nosotros lo tenemos. Excelente oportu...

0
0 отзывов

Terreno en venta en calle de Moraira, 3

Валенсия, Валенсия, Поблатс Маритимс, Calle de Moraira, 3
200 000 €

PARCELA DE SUELO URBANO EN NAZARET (VALENCIA). ¡PRECIO DE SALIDA: 200.000€! Proc...

0
0 отзывов

Terreno en plaza Numero 1

Валенсия, Седа́ви, Plaza Numero 1
12 000 €

Suelo Rústico en Sedaví. Cuenta con una superfície de 645 m2.

0
0 отзывов

Terreno en calle de Mossén Eusebio Gimeno

Валенсия, Альбаль, Calle de Mossén Eusebio Gimeno
180 000 €

SOLAR PARA EDIFICAR UNIFAMILIAR, JUNTO A ZONA UNV. FLORIDA DE CATARROJA Y POLIDE...

0
0 отзывов

Terreno en calle de la Palmera, 25

Валенсия, Альбаль, Calle de la Palmera, 25
260 000 €

Solar Urbano de 797 metros en la Urbanización Santa Ana de Albal. No divisible....

0
0 отзывов

Terreno en 8 de Març s/n

Валенсия, Пиканья, 8 de Març s/n
165 000 €

Se vende parcela urbana en el municipio de Picanya para construir la casa de tus...

0
0 отзывов

Terreno en San Ramón y Monte de Piedad

Валенсия, Хиривелья, Сан-Рамон и Монтe-де-Пьедад, San Ramón y Monte de Piedad
250 000 €

Solar en la arteria principal de Xirivella 232 m² ¡Oportunidad única para inver...

0
0 отзывов

Мы используем собственные и сторонние файлы cookie для анализа использования веб-сайта и показа вам рекламы, соответствующей вашим предпочтениям, на основе профиля, созданного по вашим привычкам просмотра (например, посещенные страницы). Подробнее. Вы принимаете файлы cookie?