Gewerbeimmobilien zu verkaufen in Alcoi, Alicante

40 Angebote von verfügbaren Gewerbeimmobilien zum Kauf und zur Entwicklung eines jeden Unternehmens, finden und prüfen Sie Preise von Immobilien von Privatpersonen, Agenturen und Banken.

Preisbereich

-

Fläche m2

-

Jahr

-

Immobilienart

Energieausweis

Wohnungskomfort

Im Gebäude

Aussichten

Ausstattungen des Lokals

Loading...
Local en calle Lluís Braille, 7
55 000 €

Local en calle Lluís Braille, 7

Bäder: 2 m² gebaut: 140 m² Immobilienstatus: Renovierungsbedürftig Stromversorgung: Ja

Se vende local para comercio o cafetería (antigua heladería Aitana). 140m2 construidos, 120 m2 útiles con luz y agua dadas de alta, techo muy alto, con altillo, ventana trasera a patio inter...

Local en calle Músic Serrano, 4
62 000 €

Local en calle Músic Serrano, 4

Bäder: 1 m² gebaut: 217 m² Immobilienstatus: Guter Zustand

Local comercial con garaje en zona santa Rosa. La propiedad dispone de entrada principal al local donde dispone de unas oficinas para uso inmediato y con posibilidad de redistribuir a la ne...

Local en plaza Plaça Centenari
49 990 €

Local en plaza Plaça Centenari

Bäder: 1 m² gebaut: 85 m² Immobilienstatus: Guter Zustand

Se vende local muy luminoso en plaza centenari en la zona de SANTA ROSA. Tiene una superficie de 85 m2, es diafano con baño. Posibilidad de hacer un cambio de uso para vivienda. Es exterior,...

Local en calle Oliver, 54
47 500 €

Local en calle Oliver, 54

Bäder: 2 m² gebaut: 145 m² Immobilienstatus: Guter Zustand

Local totalmente equipado, con 2 baños, oficina, altillos para almacenaje. Dispone de 2 puertas a la calle Oliver, una peatonal y otra para vehículos, así como ventanales recayentes tanto a...

Local en calle Oliver, 25
70 000 €

Local en calle Oliver, 25

Bäder: 1 m² gebaut: 140 m² Immobilienstatus: Guter Zustand

Se vende o se alquila por 450€ local comercial bien situado en Alcoy (Alicante).

Local en calle Xixona, 28
115 000 €

Local en calle Xixona, 28

Bäder: 2 m² gebaut: 140 m² Immobilienstatus: Guter Zustand

Local muy luminoso y soleado, hace chaflan situado a 25 metros del colegio Romeral, las persianas del local son automaticas, entrada adaptada para minusvalidos, cuenta con 2 aseos, y un desp...

Local en calle Murillo, 9
150 000 €

Local en calle Murillo, 9

Bäder: 3 m² gebaut: 544 m² Immobilienstatus: Guter Zustand

Local de 587m2 a pie de calle con 2 puertas de entrada. Una de ellas con una rampa de acceso. Dado que la última actividad que en él se realizó fue la de una guardería, actualmente se conse...

Local en calle Oliver, 71
420 000 €

Local en calle Oliver, 71

m² gebaut: 4 167 m² Immobilienstatus: Guter Zustand

Inmobiliarias IMC vende estupenda oportunidad de adquirir este local en Alcoy, en la calle Metge Manuel Rodriguez dotado de 4167 m2 en bruto situado en un bloque de nueva construcción. Si d...

Local en calle Xixona
37 990 €

Local en calle Xixona

Bäder: 1 m² gebaut: 140 m² Immobilienstatus: Renovierungsbedürftig

Se vende local en la zona de SANTA ROSA. Tiene una superficie de 140 m2, dispone de baño. Es exterior, con una excelente situación cerca de colegio, farmacia, ambulatorio, parque y parada de...

Local en calle Joaquim Sorolla, 9
174 900 €

Local en calle Joaquim Sorolla, 9

m² gebaut: 660 m² Immobilienstatus: Guter Zustand

LOCAL COMERCIAL EN SANTA ROSA DIVIDIDO EN DOS PLANTAS 520 M2 divididos en planta baja de 400m2 y segunda planta que da a otra calle de 120m2, dispone de varios escaparates grandes y esquina,...

Local en Barri Santa Rosa
55 000 €

Local en Barri Santa Rosa

Bäder: 2 m² gebaut: 261 m² Immobilienstatus: Guter Zustand

Presentamos este fantástico local de 261 metros cuadrados en la localidad alicantina de Alcoi, comarca del Alcoià. Se ubica en la calle Olivar, zona céntrica de esta maravillosa ciudad, capi...

Local en calle Cronista Vicent Carbonell
49 990 €

Local en calle Cronista Vicent Carbonell

Bäder: 1 m² gebaut: 160 m² Immobilienstatus: Renovierungsbedürftig

Se vende Local muy luminoso en la zona de SANTA ROSA. Tiene una superficie de 160 m2, distribuidos en un ambiente pricnipal diafano, dos oficinas, un baño y patio. Es exterior, con una excel...

Local en Cv-795
55 000 €

Local en Cv-795

Bäder: 2 m² gebaut: 217 m² Immobilienstatus: Guter Zustand

Inmobiliarias IMC vede, oportunidad de adquirir este local comercial en venta en Alcoy, en una zona bien comunicada a 5 minutos del centro de la ciudad. Dispone de una superficie de 250 m² d...

Local en plaza del Centenari
72 000 €

Local en plaza del Centenari

Bäder: 2 m² gebaut: 160 m² Immobilienstatus: Guter Zustand

**¡Descubre una oportunidad excepcional en Santa Rosa, Alcoy! ** Este amplio local de 160 metros cuadrados, situado en una de las zonas más vibrantes de Alcoy, te ofrece la posibilidad de es...

Local en calle Oliver
55 000 €

Local en calle Oliver

m² gebaut: 274 m² Immobilienstatus: Guter Zustand

Se vende local de 274 m² en galería comercial en la zona de Santa Rosa de Alcoy. Dispone de 4 estancias grandes, 2 baños, cocina y un gran patio trasero con mucha luz.

Local en calle Cronista Jordán
46 500 €

Local en calle Cronista Jordán

Bäder: 1 m² gebaut: 114 m² Immobilienstatus: Guter Zustand

LOCAL CON GRAN AMPLITUD EN SANTA ROSA, ALCOY PERSIANA ELÉCTRICA MAS PUERTA LATERAL DE ACCESO PEATONAL. VADO Y CAPACIDAD PARA 4 VEHÍCULOS ASEO OFICINA CON CRISTALERA ZONA ELEVADA EN EL FONDO...

Local en calle Ibi, 43
80 000 €

Local en calle Ibi, 43

Bäder: 1 m² gebaut: 100 m² Immobilienstatus: Guter Zustand

Se vende por próxima jubilación local de 100 m con peluquería montada. En funcionamiento desde el año 1989. No necesita reforma. Se incluye mobiliario, utillaje, existencias y cartera de cli...

Local en calle Ibi, 43
80 000 €

Local en calle Ibi, 43

Bäder: 1 m² gebaut: 100 m² Immobilienstatus: Guter Zustand

se vende local activo, es una peluquería con buen funcionamiento, si interesa dolo el local, se vende por 63.000 euros, se podría negociar.

Local en Barri Santa Rosa
70 000 €

Local en Barri Santa Rosa

Bäder: 1 m² gebaut: 120 m² Immobilienstatus: Guter Zustand

LOCAL COMERCIAL SITUADO EN SANTA ROSA DE ALCOY Dispone de agua, luz y un aseo, todo diáfano, en buen estado de conservación, 100m2 de local con altillo, cerca de todos los servicios, con sue...

Local en calle Murillo
45 000 €

Local en calle Murillo

m² gebaut: 90 m² Immobilienstatus: Renovierungsbedürftig

¡Oportunidad única en la zona de Santa Rosa, Alcoy! Este local comercial de 90 m² es perfecto para emprender tu negocio. Dividido en dos secciones, una de 40 m² lista para ser utilizada y ot...

Local en calle Santa Rosa, Alcoy, 59
345 000 €

Local en calle Santa Rosa, Alcoy, 59

m² gebaut: 939 m² Immobilienstatus: Renovierungsbedürftig

Impresionante local de 938 m2 con el mejor escaparate de Alcoy. Todo el mundo le verá. En la entrada principal de la ciudad, a través del puente de Fernando Reig. Consta de 598m2 de local...

Local en plaza del Centenari
36 000 €

Local en plaza del Centenari

Bäder: 1 m² gebaut: 72 m² Immobilienstatus: Guter Zustand

LOCAL EN VENTA DE 72m2 EN ZONA SANTA ROSA Os presentamos este práctico local de 64m2 en la zona de santa rosa. Con una estupenda ubicación al estar a pie de calle justo al lado de la plaza d...

Local en calle Ibi
61 990 €

Local en calle Ibi

Bäder: 1 m² gebaut: 120 m² Immobilienstatus: Guter Zustand

Se vende Local muy luminoso en la zona de SANTA ROSA. Posibilidad de quedarse todo equipado y licencia para negocio de peluqueria. Tiene una superficie de 120 m2, distribuidos en salón, dos...

Local en calle Oliver, 14
200 000 €

Local en calle Oliver, 14

Bäder: 2 m² gebaut: 250 m² Immobilienstatus: Guter Zustand

¡Oportunidad única en el corazón de Alcoy! Se vende un bar mítico, completamente equipado y listo para abrir sus puertas. Ubicado en la prestigiosa calle Oliver, una de las arterias principa...

Local en calle Murillo, Santa Rosa, Alcoy, La Hoya de Alcoy, Alicante, Comunidad Valenciana, 03802, España
29 000 €

Local en calle Murillo, Santa Rosa, Alcoy, La Hoya de Alcoy, Alicante, Comunidad Valenciana, 03802, España

m² gebaut: 49 m² Immobilienstatus: Guter Zustand

En venta este local comercial que puede tener la funcion de cochera, tiene una superficie de 49 m2 y cuenta con una persiana de entrada ancha, cuenta con trastienda y antiguamente era una ch...

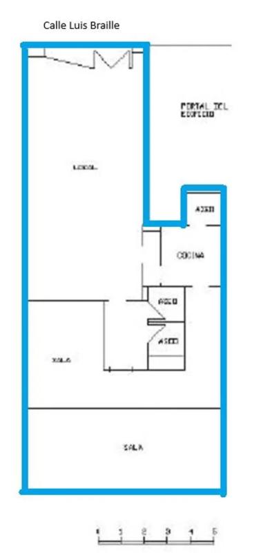
Local en calle Lluís Braille
84 990 €

Local en calle Lluís Braille

Bäder: 2 m² gebaut: 130 m² Immobilienstatus: Guter Zustand

Se vende local muy luminoso en la zona de SANTA ROSA. Es un bar que lleva abierto desde 1973, se vende por jubilación, con licencia y se quedaría con todos los muebles y electrodomesticos, c...

Local en Barri Santa Rosa
55 000 €

Local en Barri Santa Rosa

Bäder: 2 m² gebaut: 261 m² Immobilienstatus: Renovierungsbedürftig

Este local te ofrece la comodidad de un espacio bien distribuido, adaptado a tus necesidades, con todas las instalaciones necesarias para empezar a REFORMAR y en una ubicación privilegiada q...

Local en Barri Santa Rosa
50 000 €

Local en Barri Santa Rosa

Bäder: 1 m² gebaut: 85 m² Immobilienstatus: Guter Zustand

Local muy luminoso de 85 m. todo diáfano sin columnas. La entrada es por una calle y las ventanas  dan a otra calle. Se puede reconvertir en vivienda. Tiene luz y agua y no paga gastos de co...

Local en calle Ibi, 49
33 000 €

Local en calle Ibi, 49

Bäder: 1 m² gebaut: 60 m² Immobilienstatus: Guter Zustand

¡Atención emprendedores y empresarios! Se vende un local comercial en una ubicación inmejorable de Alcoy, ideal para aquellos que buscan establecer su negocio en una zona con alta densidad d...

Local en calle Xixona
42 500 €

Local en calle Xixona

m² gebaut: 79 m² Immobilienstatus: Guter Zustand

Local comercial de 79mts. , consta de una estancia principal con 2 grandes escaparates, 1 salita más pequeña, 1 almacén donde está la instalación de la calefacción, no hay caldera, y   un as...

  • Vorherige
75 870 € (239 €/m2)
Durchschnittspreis für sekundäre Gewerbliche Immobilien Barri Santa Rosa
91 €/m2
Mindestpreis pro m² für sekundäre Gewerbliche Immobilien Barri Santa Rosa
1 324 €/m2
Höchstpreis pro m² für sekundäre Gewerbliche Immobilien Barri Santa Rosa

Zonen, in denen Immobilien in Spanien verkauft werden.

Gebiete mit höherer Beliebtheit und Anzahl von Häusern, Wohnungen, verfügbaren Lokalen, die du verkaufen kannst

Wir verwenden eigene und Drittanbieter-Cookies, um die Nutzung der Website zu analysieren und Ihnen Werbung zu zeigen, die auf der Grundlage eines aus Ihren Surfgewohnheiten erstellten Profils mit Ihren Vorlieben übereinstimmt (z. B. besuchte Seiten). Mehr Informationen. Akzeptieren Sie Cookies?