Local en calle Lluís Braille, 7

Alicante, Alcoi, Barri Santa Rosa, Calle Lluís Braille, 7
55 000 €
393 € / m2
Bewertung hinterlassen
Gewerbliche Immobilien Art der Immobilie
140 m² m² gebaut
2 Bäder
Renovierungsbedürftig Immobilienstatus
Ja Stromversorgung
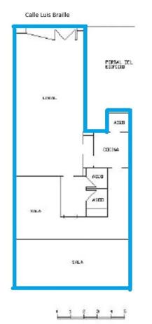
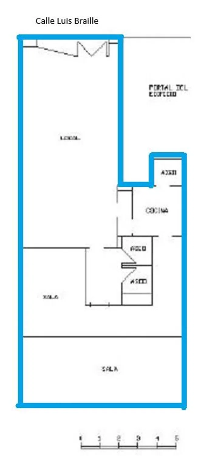
Se vende local para comercio o cafetería (antigua heladería Aitana). 140m2 construidos, 120 m2 útiles con luz y agua dadas de alta, techo muy alto, con altillo, ventana trasera a patio interior. PRECIO NEGOCIABLE.

Merkmale der Immobilie

Complex information

  • Art der Immobilie
    Gewerbliche Immobilien

Projektinformationen / Bauzustand

  • Immobilienstatus
    Renovierungsbedürftig

Eigenschaftsdaten

  • Bäder
    2
  • m² gebaut
    140 m²
  • Immobilientyp
    Gebraucht

Base

  • Stromversorgung
    Ja

Facilities

Wohnungskomfort:

Klimaanlage

Lieferung:

Mit Strom

Staat:

Zu renovieren

Pläne

Statistik der Marktpreise für Local en calle Lluís Braille, 7

Karte

Alicante, Alcoi, Barri Santa Rosa, Calle Lluís Braille, 7 Zu diesem Ort gehen
Eine Bewertung über Local en calle Lluís Braille, 7 abgeben
0
0 Bewertungen
1
0% (0)
2
0% (0)
3
0% (0)
4
0% (0)
5
0% (0)
Jesús García Muñoz
55 000 €
von 393 € / m2
Kontakt zum Inserenten

Für weitere Informationen kontaktieren Sie bitte die Plattform

REF: 323867

Bewertungen über Local en calle Lluís Braille, 7
Loading...

No reviews have been left for this object yet

Nächstgelegene Objekte

Entdecken Sie nahegelegene Immobilien, die wir in unmittelbarer Nähe zu diesem Standort entdeckt haben

Local en venta en Barri Eixample

Alicante, Alcoi, Barri Eixample
39 500 €

Se vende local en la zona del Ensanche de Alcoy, muy bien ubicado, cercano al Me...

0
0 Bewertungen

Local en venta en calle el Camí, 93

Alicante, Alcoi, Zentrum - Zona Alta, Calle el Camí, 93
60 000 €

Local comercial con amplia fachada. Dos accesos independientes desde la calle co...

0
0 Bewertungen

Local en calle Comte de Cocentaina

Alicante, Cocentaina, Calle Comte de Cocentaina
24 400 €

¡Miles de locales, oficinas y naves con descuento! Local de 322 m2 en obra parad...

0
0 Bewertungen

Local en calle Alcoi

Alicante, Cocentaina, Calle Alcoi
80 000 €

Magnífico local en Gormaig Este local en el centro comercial Gormaig, justo en f...

0
0 Bewertungen

Local en calle Alcoi, 1

Alicante, Cocentaina, Calle Alcoi, 1
90 000 €

Local en GORMAIG, hace esquina, en la carretera Alcoy-Cocentaina (Frente Concesi...

0
0 Bewertungen

Local en avenida del País Valencià, 93

Alicante, Cocentaina, Avenida del País Valencià, 93
66 500 €

PRECIO DE VENTA NEGOCIABLE. Local de 90 M2 situado en una de las PRINCIPALES AVE...

0
0 Bewertungen

Local en avenida del País Valencià, 87

Alicante, Cocentaina, Avenida del País Valencià, 87
205 000 €

Local comercial con dos accesos en diferentes avenidas. Precio negociable.

0
0 Bewertungen

Local en calle Rafael Laliga Pérez

Alicante, Alcoi, Barri Zona Nord, Calle Rafael Laliga Pérez
54 000 €

Local comercial en venta en Alcoy, Alicante. Local comercial ubicado en los bajo...

0
0 Bewertungen

Local en calle Na Saurina d'Entença

Alicante, Alcoi, Barri Eixample, Calle Na Saurina d'Entença
180 000 €

**Local en Venta en el Corazón del Ensanche** ¡Oportunidad única! Este amplio lo...

0
0 Bewertungen

Wir verwenden eigene und Drittanbieter-Cookies, um die Nutzung der Website zu analysieren und Ihnen Werbung zu zeigen, die auf der Grundlage eines aus Ihren Surfgewohnheiten erstellten Profils mit Ihren Vorlieben übereinstimmt (z. B. besuchte Seiten). Mehr Informationen. Akzeptieren Sie Cookies?