Alquiler de Oficina en mexico, 20

Alicante, Alicante / Alacant, Benalúa-La Florida-Babel-San Gabriel, Mexico, 20
Ausverkauf
Bewertung hinterlassen
Büros Art der Immobilie
350 m² m² gebaut
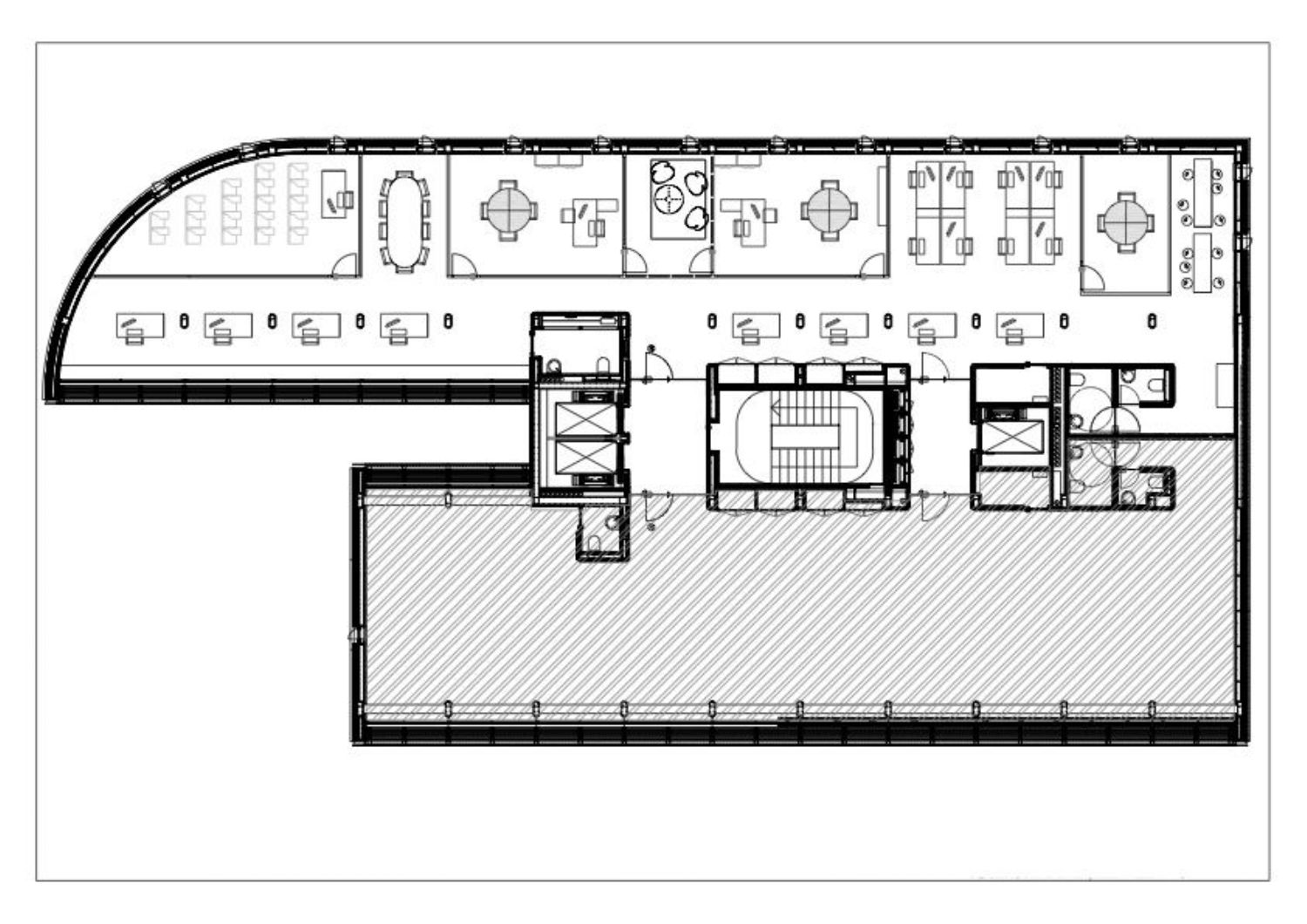
3 Bäder
Außenbereich Fensterverteilung
Alquiler de oficina en el Edificio Marsamar. Este Edificio, destinado exclusivamente para uso de oficinas, se encuentra estratégicamente situado en la Avenida de Méjico, con fachada a la Gran Vía y junto al hotel NH Alicante. La oficina cuenta con una amplia superficie de 350 metros cuadrados distribuidos en 2 amplios espacios de trabajo, diversas salas versátiles susceptibles de ser adaptadas como despachos privados o salas de reuniones, y tres aseos. Equipamiento de primer nivel con aire acondicionado centralizado, iluminación optimizada, sistema avanzado de suelo técnico, control de accesos mediante dispositivos configurables, puntos de red y telecomunicaciones. Para su comodidad; armarios empotrados, ascensor y montacargas con acceso directo al aparcamiento situado en el sótano, además de servicio de conserjería con portero físico.La arquitectura singular del edificio y su ubicación privilegiada en la principal fachada de la entrada sur de la ciudad de Alicante constituyen un valor añadido para su negocio.***IMPORTANTE***MOBILIARIO NO INCLUIDOAlquiler directamente del propietario sin ningún coste por gastos de gestión, comisiones ni intermediarios.*Esta información se proporciona solo con fines informativos y estrictamente para uso comercial y, por lo tanto, no vincula con ninguna obligación contractual.

Merkmale der Immobilie

Complex information

  • Art der Immobilie
    Büros

Eigenschaftsdaten

  • Bäder
    3
  • m² gebaut
    350 m²
  • Immobilientyp
    Gebraucht

Energieausweis

  • Energiezertifikat
    C

Base

  • Fensterverteilung
    Außenbereich

Facilities

Wohnungskomfort:

Klimaanlage
Einbauschränke
Außenfenster

Im Gebäude:

Aufzug
Sicherheit
Spa

Staat:

Guter Zustand

Ausstattungen des Lokals:

Löscharbeiten

Statistik der Marktpreise für Alquiler de Oficina en mexico, 20

Karte

Alicante, Alicante / Alacant, Benalúa-La Florida-Babel-San Gabriel, Mexico, 20 Zu diesem Ort gehen
Eine Bewertung über Alquiler de Oficina en mexico, 20 abgeben
0
0 Bewertungen
1
0% (0)
2
0% (0)
3
0% (0)
4
0% (0)
5
0% (0)
SG Inmuebles
Ausverkauf
Kontakt zum Inserenten

Für weitere Informationen kontaktieren Sie bitte die Plattform

REF: 47328

Bewertungen über Alquiler de Oficina en mexico, 20
Loading...

No reviews have been left for this object yet

Nächstgelegene Objekte

Entdecken Sie nahegelegene Immobilien, die wir in unmittelbarer Nähe zu diesem Standort entdeckt haben

Alquiler de Oficina en calle Bazán, 21

Alicante, Alicante / Alacant, Zentrum, Calle Bazán, 21
660 €

Se alquila oficina en el centro tradicional de Alicante. Dispone tres despachos,...

0
0 Bewertungen

Alquiler de Oficina en plaza de los Luceros, 17

Alicante, Alicante / Alacant, Zentrum, Plaza de los Luceros, 17
367 €

Nuestra oficina cuenta con TODO INCLUIDO: mobiliario moderno, conexión a interne...

0
0 Bewertungen

Alquiler de Oficina en mexico, 20

Alicante, Alicante / Alacant, Benalúa-La Florida-Babel-San Gabriel, Mexico, 20
3 300 €

Alquiler de oficina en el Edificio Marsamar. Este Edificio, destinado exclusivam...

0
0 Bewertungen

Alquiler de Oficina en Santo Domingo

Alicante, Alicante / Alacant, San Blas-Pau
500 €

¡Excelente oportunidad de alquiler de oficina en la zona de San Blas - Santo Dom...

0
0 Bewertungen
Aufruf

Wir verwenden eigene und Drittanbieter-Cookies, um die Nutzung der Website zu analysieren und Ihnen Werbung zu zeigen, die auf der Grundlage eines aus Ihren Surfgewohnheiten erstellten Profils mit Ihren Vorlieben übereinstimmt (z. B. besuchte Seiten). Mehr Informationen. Akzeptieren Sie Cookies?