Verkauf einer Wohnung in Carretera El far, 75, Rosen

Girona, Rosen, Hafen Esportiu - Puig Rom - Canyelles, Carretera El far, 75
Ausverkauf
Bewertung hinterlassen
Wohnungen Art der Immobilie
2022 Übergabedatum
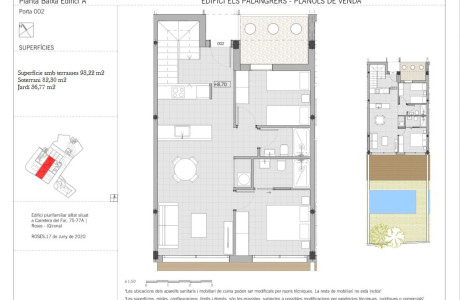
93 m² m² gebaut
2 Bäder
2 Schlafzimmer
In Bau Bundesland
Situada en una posición privilegiada y delante la playa Els Palangrers con una preciosas vistas al mar mediterráneo y la bahía de Roses. La promoción está situada al lado del puerto deportivo de Roses, en PRIMERA LÍNEA DE MAR, a cinco minutos a pie del casco urbano del municipio de Roses y delante de la magnífica playa de Els Palangrers. Sus vistas al mar de la bahía de Roses, el cabo de Begur, la Escala, Empuriabrava, las playas de Sant Pere Pescador y sus aguas cristalinas del mar mediterráneo son impresionantes. En una de las mejores poblaciones de la Costa Brava, con una gastronomía inmejorable gracias al puerto pesquero.Esta lujosa promoción consta de 15 viviendas de 2 y 3 habitaciones y 28 plazas de parking. Impresiona, no sólo por su inmejorable ubicación en PRIMERA LÍNEA DE MAR y por su arquitectura moderna, mediterránea y con los mejores materiales. El complejo tiene 2 bloques, uno de 9 viviendas y otro de 6 viviendas colocadas majestuosamente en forma escalonada para que todas las viviendas disfruten de unas magníficas vistas al mar. En medio de los 2 bloques se sitúa la piscina desbordante.La promoción está en construcción desde junio del 2021 y estará finalizada el 2º semestre de 2022.

Merkmale der Immobilie

Complex information

  • Wohnanlage
    Edifici Els Palangrers
  • Art der Immobilie
    Wohnungen

Projektinformationen / Bauzustand

  • Übergabedatum
    2022
  • Bundesland
    In Bau

Eigenschaftsdaten

  • Schlafzimmer
    2
  • Bäder
    2
  • m² gebaut
    93 m²
  • Immobilientyp
    Neubau

Facilities

Lieferung:

Mit Wasser

Im Gebäude:

Schwimmbad
Aufzug

Aussichten:

Meeresblick

Staat:

Im Bau

Statistik der Marktpreise für Piso en venta en carretera El far, 75

336 150 € (4 014 €/m2)
Durchschnittspreis für primäre Wohnungen in der Stadt Rosen

Karte

Girona, Rosen, Hafen Esportiu - Puig Rom - Canyelles, Carretera El far, 75 Zu diesem Ort gehen
Eine Bewertung über Piso en venta en carretera El far, 75 abgeben
0
0 Bewertungen
1
0% (0)
2
0% (0)
3
0% (0)
4
0% (0)
5
0% (0)
Ausverkauf
Kontakt zum Inserenten

Für weitere Informationen kontaktieren Sie bitte die Plattform

REF: 16071

Bewertungen über Piso en venta en carretera El far, 75
Loading...

No reviews have been left for this object yet

Nächstgelegene Objekte

Entdecken Sie nahegelegene Immobilien, die wir in unmittelbarer Nähe zu diesem Standort entdeckt haben

Obra nueva Edifici Els Palangrers en Roses

Girona, Rosen, Hafen Esportiu - Puig Rom - Canyelles, Carretera El far, 75
650 000 €

Situada en una posición privilegiada y delante la playa Els Palangrers con una p...

0
0 Bewertungen

Obra nueva Edifici Els Palangrers en Roses

Girona, Rosen, Hafen Esportiu - Puig Rom - Canyelles, Carretera El far, 75
550 000 €

Situada en una posición privilegiada y delante la playa Els Palangrers con una p...

0
0 Bewertungen

Obra nueva Edifici Els Palangrers en Roses

Girona, Rosen, Hafen Esportiu - Puig Rom - Canyelles, Carretera El far, 75
650 000 €

Situada en una posición privilegiada y delante la playa Els Palangrers con una p...

0
0 Bewertungen

Obra nueva Edifici Els Palangrers en Roses

Girona, Rosen, Hafen Esportiu - Puig Rom - Canyelles, Carretera El far, 75
715 000 €

Situada en una posición privilegiada y delante la playa Els Palangrers con una p...

0
0 Bewertungen

Obra nueva Edifici Els Palangrers en Roses

Girona, Rosen, Hafen Esportiu - Puig Rom - Canyelles, Carretera El far, 75
745 000 €

Situada en una posición privilegiada y delante la playa Els Palangrers con una p...

0
0 Bewertungen

Obra nueva Av Nautilus - Roses, Girona - en Roses

Girona, Rosen, Santa Margarida, Urb. Av Nautilus
170 000 €

Promoción de viviendas situadas en la localidad de Roses. Se localizan en un ent...

0
0 Bewertungen

Obra nueva Av Nautilus - Roses, Girona - en Roses

Girona, Rosen, Santa Margarida, Urb. Av Nautilus
155 000 €

Promoción de viviendas situadas en la localidad de Roses. Se localizan en un ent...

0
0 Bewertungen

Obra nueva Av Nautilus - Roses, Girona - en Roses

Girona, Rosen, Santa Margarida, Urb. Av Nautilus
159 000 €

Promoción de viviendas situadas en la localidad de Roses. Se localizan en un ent...

0
0 Bewertungen

Obra nueva Av Nautilus - Roses, Girona - en Roses

Girona, Rosen, Santa Margarida, Urb. Av Nautilus
164 000 €

Promoción de viviendas situadas en la localidad de Roses. Se localizan en un ent...

0
0 Bewertungen

Wir verwenden eigene und Drittanbieter-Cookies, um die Nutzung der Website zu analysieren und Ihnen Werbung zu zeigen, die auf der Grundlage eines aus Ihren Surfgewohnheiten erstellten Profils mit Ihren Vorlieben übereinstimmt (z. B. besuchte Seiten). Mehr Informationen. Akzeptieren Sie Cookies?