Neubau Lienzo de Boadilla in Boadilla del Monte

Madrid, Boadilla del Monte, Sektor S, Calle Fco. de Goya, 11
von 1 070 000 €
Bewertung hinterlassen
Grundstücksflächen
Anzahl der Schlafzimmer
Badezimmer
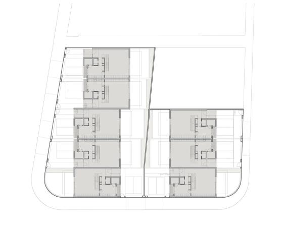
Lienzo de Boadilla es una promoción compuesta por 8 exclusivas viviendas unifamiliares adosadas, configuradas para ofrecer el máximo confort, combinando diseño y funcionalidad en un entorno privilegiado. Donde se optimizan los espacios y la luz se convierte en la gran protagonista. Construidas con los mejores materiales, una excelente carpintería interior y exterior, grandes ventanales, baños porcelánicos de primeras marcas. Situadas en una de las mejores ubicaciones de Boadilla del Monte, que pone a tu disposición todos los servicios necesarios para tu día a día: zonas ajardinadas, rutas naturales, comercio local, locales de ocio, centro de salud, hospitales, colegios, centros comerciales. Viviendas de alta calidad con una cuidada selección de materiales duraderos, excelente aislamiento térmico y acústico, así como sistemas de climatización por aerotermia, suelo radiante y refrescante, ventilación controlada y domótica integrada. Las casas están compuestas por 3 plantas. En la planta principal, encontraremos 2 plazas de aparcamiento, zonas ajardinadas privadas en el acceso y parte posterior a la vivienda, una gran cocina equipada con electrodomésticos de primeras marcas, salón con grandes cristaleras que dan paso a un bonito jardín. Se incluye también un aseo para dar servicio a esta zona. En la primera planta, encontraremos 3 espaciosos dormitorios, y un despacho/estudio, 2 cuartos de baño completos con materiales actuales y porcelánicos de alta calidad. Nuestra planta -1 tiene un gran salón que destaca por su amplitud y luminosidad, una zona de lavadero y un espacioso dormitorio en suite. Casas construidas por SERANCO, a quien le avalan 35 AÑOS de proyectos con los mejores resultados. Creando un entorno de confianza entre todos nuestros clientes.

Hervorgehobene Aktionen in Spanien

10 Einheiten

Nature Views 2

Alicante, Torrevieja, Los Balcones - Los Altos del Edén, Denia s/n
310 000 € - 379 000 €
1 Einheiten

Hotel en venta en Benidorm centro

Alicante, Benidorm, Playa de Poniente
2 250 000 € - 2 250 000 €
28 Einheiten

Residencial Los Balcones De Calpe

Alicante, Kalpe, Calpe Pueblo, Avenida de Madrid, 1
299 000 € - 892 125 €
4 Einheiten

Nature Views

Alicante, Torrevieja, Lago Jardín II, Avenida Denia s/n
309 000 € - 330 000 €
5 Einheiten

ALONIS VILLAS

Alicante, La Villajoyosa / Vila Joiosa, Platja de Torres, Partida Torres s/n
675 000 € - 775 000 €
1 Einheiten

Residencial Royal Beach

Alicante, Guardamar del Segura, Dorf, Miguel Hernández 102
349 500 € - 349 500 €
7 Einheiten

Royal Star

Alicante, Guardamar del Segura
229 500 € - 269 500 €
Diese Informationen stammen aus öffentlichen Quellen und können veraltet sein. Sie stellen keine Verbindung zum Bauträger dar.

Merkmale der Immobilie

Complex information

Eigenschaftsdaten

  • Art der Immobilie
    Neubau

Statistik der Marktpreise für Lienzo de Boadilla

1 834 670 € (5 478 €/m2)
Durchschnittspreis für primäre Häuser in der Stadt Boadilla del Monte
835 257 € (4 787 €/m2)
Durchschnittspreis für primäre Wohnungen in der Stadt Boadilla del Monte
739 825 € (5 160 €/m2)
Durchschnittspreis für primäre Wohnungen im Bezirk Sektor S

Karte

Madrid, Boadilla del Monte, Sektor S, Calle Fco. de Goya, 11 Zu diesem Ort gehen
Eine Bewertung über Lienzo de Boadilla abgeben
0
0 Bewertungen
1
0% (0)
2
0% (0)
3
0% (0)
4
0% (0)
5
0% (0)
LIENZO DE BOADILLA
1 070 000 €
Kontakt zum Inserenten

Für weitere Informationen kontaktieren Sie bitte die Plattform

REF: 392743

Bewertungen über Lienzo de Boadilla
Loading...

No reviews have been left for this object yet

Nächstgelegene Objekte

Entdecken Sie nahegelegene Immobilien, die wir in unmittelbarer Nähe zu diesem Standort entdeckt haben

Obra nueva Islas Medes 3 en Boadilla del Monte

Madrid, Boadilla del Monte, Valdepastores - Las Encinas, Calle Islas Medes, 3
-

Vivienda unifamiliar aislada con una ubicación excelente, en una parcela rodeada...

0
0 Bewertungen
2 Einheiten

Obra nueva Los Altos del Pastel en Boadilla del Monte

Madrid, Boadilla del Monte, Der Kuchen, Calle Cabo de Peñas, 4
695 000 € - 760 000 €

Inmobiliarias Inmoges vende en exclusiva promoción de chalets adosados en la mej...

0
0 Bewertungen
4 Einheiten

Obra nueva Residencial Bosque de Secuoyas en Pozuelo de Alarcón

Madrid, Pozuelo de Alarcón, Арпо, Polígono Dïez, 195
312 700 € - 441 000 €

ADQUIRIDO SUELO POR LA COOPERATIVA¡ÚLTIMAS VIVIENDAS DISPONIBLES!La Cooperativa...

0
0 Bewertungen

Obra nueva El Encinar de Odon en Villaviciosa de Odón

Madrid, Villaviciosa de Odón, Der Wald, Paseo Monte de la Villa s/n
-

Viviendas de diseño contemporáneo y realizadas en solida construcción tradiciona...

0
0 Bewertungen

Obra nueva Residencial El Bosque en Majadahonda

Madrid, Majadahonda, Die Satelliten - Roza Martín, Calle Perseo, 26
-

Lucas Fox Las Rozas presenta, en autopromoción, estas fabulosas viviendas de obr...

0
0 Bewertungen
3 Einheiten

Neubauprojekt Viridis 3.0 in Boadilla del Monte.

Madrid, Boadilla del Monte, El Olivar de Mirabal, Calle Cabo de Creus, 8
995 000 € - 1 010 000 €

Immobilien in Viridis 3.0 Viridis 3.0 ist die neueste Wohnanlage in Boadilla del...

0
0 Bewertungen
3 Einheiten

Neubauprojekt in Villaviciosa de Odón, Monte La Villa 64.

Madrid, Villaviciosa de Odón, Der Wald, Urb. Monte de la Villa, 1
750 000 € - 860 000 €

Immobilien in Monte La Villa 64 Monte La Villa 64 ist das neueste Vorhaben im We...

0
0 Bewertungen

Obra nueva Tribeca Pozuelo en Pozuelo de Alarcón

Madrid, Pozuelo de Alarcón, Zona Pueblo, Calle Isla de Creta, 21
-

TRIBECO POZUELOLucas Fox se enorgullece de presentar Tribeca Pozuelo, una urbani...

0
0 Bewertungen

Obra nueva Tribeca Pozuelo en Pozuelo de Alarcón

Madrid, Pozuelo de Alarcón, Zona Pueblo, Calle Isla de Creta, 19
-

Obras Iniciadas TRIBECA Pozuelo by Quantum, se trata de una urbanización cerrada...

0
0 Bewertungen

Wir verwenden eigene und Drittanbieter-Cookies, um die Nutzung der Website zu analysieren und Ihnen Werbung zu zeigen, die auf der Grundlage eines aus Ihren Surfgewohnheiten erstellten Profils mit Ihren Vorlieben übereinstimmt (z. B. besuchte Seiten). Mehr Informationen. Akzeptieren Sie Cookies?