Verkauf einer Wohnung in Polígono Dïez, 195, Pozuelo de Alarcón

Madrid, Pozuelo de Alarcón, Арпо, Polígono Dïez, 195
Ausverkauf
Bewertung hinterlassen
Wohnungen Art der Immobilie
2 Schlafzimmer
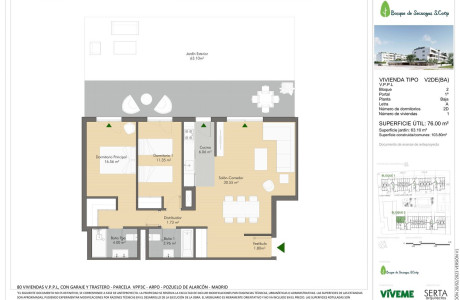
104 m² m² gebaut
2 Bäder
Fußbodenheizung Heizung
ADQUIRIDO SUELO POR LA COOPERATIVA¡ÚLTIMAS VIVIENDAS DISPONIBLES!La Cooperativa Bosque de Secuoyas Sociedad Coop. ha formalizado la adquisición de un suelo en el desarrollo de ARPO Pozuelo., va a promover un conjunto residencial de viviendas protegidas (VPPL) en régimen de cooperativa, de 2, 3 y 4 dormitorios.La promoción cuenta con viviendas adaptadas para personas con discapacidad. Todas las viviendas son exteriores, luminosas y con terrazas. Las zonas comunes contarán con: piscina, área de juegos infantiles, pista de pádel y zona ajardinada. Todas las viviendas disponen de 2 plazas de garaje y trastero incluido.El proyecto ha sido diseñado cuidando al máximo las calidades y primando la alta eficiencia energética. Todas las viviendas cuentan, entre otras, con las siguientes medidas:- Fachada tipo SATE que aísla de las condiciones externas.- Aerotermia y suelo radiante y refrescante.- Ventanas con doble acristalamiento que permiten un mayor aislamiento térmico y acústico.El plazo de entrega previsto de las viviendas es para finales de 2030, tras el desarrollo de las obras de urbanización y la concesión de las licencias urbanísticas del desarrollo que se prevé que estén finalizadas en un plazo de 4-5 años. Dicho plazo se podría reducir en función del grado de avance de la urbanización.Al ser viviendas protegidas VPPL, se tendrán que cumplir los requisitos vigentes en el momento de la firma del contrato de adjudicación que establece la Comunidad de Madrid para acceder a este tipo de viviendas. PROCESO RESERVA VIVIENDALas personas que deseen adherirse a la cooperativa tendrán que: - Formalizar la reserva de la vivienda. - Disponer de la cantidad necesaria para hacer frente al pago del suelo. Si estás interesado, no dudes en ponerte en contacto con nosotros para más información.

Merkmale der Immobilie

Complex information

  • Wohnanlage
    Residencial Bosque de Secuoyas
  • Art der Immobilie
    Wohnungen

Projektinformationen / Bauzustand

  • Format der Promotion
    Geschützte Wohnung

Qualitätsbeschreibung

  • Heizung
    Fußbodenheizung

Eigenschaftsdaten

  • Schlafzimmer
    2
  • Bäder
    2
  • m² gebaut
    104 m²
  • Immobilientyp
    Neubau

Facilities

Wohnungskomfort:

Lagerraum
Außenfenster
Terasse

Im Gebäude:

Schwimmbad
Aufzug
Kinderbereich
Gärten Zonen
Abstellraum
Grüne Zonen
Garten

Statistik der Marktpreise für Piso en venta en Polígono Dïez, 195

1 168 412 € (8 198 €/m2)
Durchschnittspreis für primäre Wohnungen in der Stadt Pozuelo de Alarcón

Karte

Madrid, Pozuelo de Alarcón, Арпо, Polígono Dïez, 195 Zu diesem Ort gehen
Eine Bewertung über Piso en venta en Polígono Dïez, 195 abgeben
0
0 Bewertungen
1
0% (0)
2
0% (0)
3
0% (0)
4
0% (0)
5
0% (0)
Ausverkauf
Kontakt zum Inserenten

Für weitere Informationen kontaktieren Sie bitte die Plattform

REF: 3147

Bewertungen über Piso en venta en Polígono Dïez, 195
Loading...

No reviews have been left for this object yet

Nächstgelegene Objekte

Entdecken Sie nahegelegene Immobilien, die wir in unmittelbarer Nähe zu diesem Standort entdeckt haben

Apartamentos en Venta en Calle Boyero, 3, Madrid

Madrid, Madrid, Moncloa, Calle Boyero, 3
491 920 €

Promoción en excelente ubicación en el centro de Aravaca, a pocos pasos de la Ig...

0
0 Bewertungen

Obra nueva Residencial Boyero 4 en Madrid

Madrid, Madrid, Moncloa, Calle Boyero, 4
384 848 €

Promoción en excelente ubicación en el centro de Aravaca, a pocos pasos de la Ig...

0
0 Bewertungen

Obra nueva Residencial Boyero 4 en Madrid

Madrid, Madrid, Moncloa, Calle Boyero, 4
353 192 €

Promoción en excelente ubicación en el centro de Aravaca, a pocos pasos de la Ig...

0
0 Bewertungen

Obra nueva Residencial Bosque de Secuoyas en Pozuelo de Alarcón

Madrid, Pozuelo de Alarcón, Арпо, Polígono Dïez, 195
325 300 €

ADQUIRIDO SUELO POR LA COOPERATIVA¡ÚLTIMAS VIVIENDAS DISPONIBLES!La Cooperativa...

0
0 Bewertungen

Obra nueva Residencial Bosque de Secuoyas en Pozuelo de Alarcón

Madrid, Pozuelo de Alarcón, Арпо, Polígono Dïez, 195
441 000 €

ADQUIRIDO SUELO POR LA COOPERATIVA¡ÚLTIMAS VIVIENDAS DISPONIBLES!La Cooperativa...

0
0 Bewertungen

Obra nueva Residencial Bosque de Secuoyas en Pozuelo de Alarcón

Madrid, Pozuelo de Alarcón, Арпо, Polígono Dïez, 195
312 700 €

ADQUIRIDO SUELO POR LA COOPERATIVA¡ÚLTIMAS VIVIENDAS DISPONIBLES!La Cooperativa...

0
0 Bewertungen

Obra nueva Residencial Bosque de Secuoyas en Pozuelo de Alarcón

Madrid, Pozuelo de Alarcón, Арпо, Polígono Dïez, 195
439 100 €

ADQUIRIDO SUELO POR LA COOPERATIVA¡ÚLTIMAS VIVIENDAS DISPONIBLES!La Cooperativa...

0
0 Bewertungen

Apartamentos en Venta en Calle aguarón, 3, Madrid

Madrid, Madrid, Moncloa, Calle aguarón, 3
180 000 €

Los metros reflejados incluyen los metros de las terrazas.Edificio sostenible qu...

0
0 Bewertungen

Apartamentos en Venta en Calle aguarón, 3, Madrid

Madrid, Madrid, Moncloa, Calle aguarón, 3
323 000 €

Los metros reflejados incluyen los metros de las terrazas.Edificio sostenible qu...

0
0 Bewertungen

Wir verwenden eigene und Drittanbieter-Cookies, um die Nutzung der Website zu analysieren und Ihnen Werbung zu zeigen, die auf der Grundlage eines aus Ihren Surfgewohnheiten erstellten Profils mit Ihren Vorlieben übereinstimmt (z. B. besuchte Seiten). Mehr Informationen. Akzeptieren Sie Cookies?