Neubau Casa Ponent in Llorenç del Penedès

Tarragona, Llorenç del Penedès, Calle Ponent, 27
von 290 000 €
2 014 € / m2
Bewertung hinterlassen
2025 Übergabedatum
Grundstücksflächen
Anzahl der Schlafzimmer
Badezimmer

Immobilien in Casa Ponent

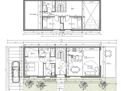
Nutzen Sie die hervorragende Gelegenheit, ein neues Zuhause in der charmanten Stadt Llorenç del Penedès zu erwerben. Diese Immobilie befindet sich in einer ruhigen Wohngegend und zeichnet sich durch ihre Nähe zum Stadtzentrum und zu Bildungseinrichtungen aus. Auf einem Eckgrundstück von 202 Quadratmetern bietet das Einfamilienhaus eine Wohnfläche von 135 m², von denen 115 m² modern und funktional genutzt werden, plus einen großzügig gestalteten Außenbereich mit Garten. Ein weiterer Vorteil ist der Parkplatz im Innenhof des Hauses.

Die Aufteilung des Hauses erfolgt auf zwei Etagen. Im Erdgeschoss befindet sich ein zentraler Eingangsbereich, der in eine offene, stilvolle Küche mit Kochinsel führt, die mit einem beeindruckenden, lichtdurchfluteten Wohn-Essbereich mit Doppelhohe verbunden ist. Der Wohnbereich öffnet sich direkt zum umlaufenden Gartenaußenbereich. Zusätzlich gibt es hier einen Hauswirtschaftsraum, einen Abstellraum unter der Treppe und ein Hauptschlafzimmer mit Ankleideraum und angeschlossenem Badezimmer. Alle Räume sind hell und bieten direkten Zugang zum Garten, was für optimale Leuchtverhältnisse und Frischluftzufuhr sorgt.

Im Obergeschoss befindet sich der Schlafbereich mit zwei großen Schlafzimmern und einem vielseitig nutzbaren Raum, der als Spielbereich oder Büro dienen kann. Durch die Ausrichtung über dem Wohn-Essbereich mit Blick auf den darunterliegenden Raum entsteht ein außergewöhnliches Raumgefühl. Ein komplettes Badezimmer und ein Dachbodenlager vervollständigen diese Etage. Beide Ebenen sind durch eine zentrale, stilvolle Treppe verbunden, die nahtlos die unterschiedlichen Lebensbereiche miteinander verknüpft und vielseitige Nutzungsmöglichkeiten bietet.

Vorteile eines Neubaus Casa Ponent

Die Immobilie ist mit einer vorbereiteten Solaranlageninstallation und einem vollständigen Aerothermiesystem ausgestattet, das für eine konstante, angenehme Raumtemperatur sorgt, egal ob im Sommer oder Winter. Die hochwertige Isolierung und die Aluminiumfenster mit thermischer Trennung tragen zu signifikanter Energieeinsparung im Alltag bei. Das Projekt ist abgeschlossen und wartet darauf, seinen neuen Besitzern übergeben zu werden – die Schlüsselübergabe kann sofort erfolgen. Für weitere Informationen oder um einen Besichtigungstermin zu vereinbaren, stehen wir jederzeit zur Verfügung.

Leben in der Stadt Llorenç del Penedès

Llorenç del Penedès liegt lediglich 2 km vom Bahnhof L’Arboç entfernt und bietet eine hervorragende Anbindung an die Autobahnen AP7 und AP2. Diese Verkehrswege ermöglichen schnellen Zugang zum Flughafen Barcelona (62 km) sowie zu den Städten Tarragona (45 km), Barcelona (75 km), Lleida, Zaragoza und Valencia.

Hervorgehobene Aktionen in Spanien

10 Einheiten

Nature Views 2

Alicante, Torrevieja, Los Balcones - Los Altos del Edén, Denia s/n
310 000 € - 379 000 €
1 Einheiten

Hotel en venta en Benidorm centro

Alicante, Benidorm, Playa de Poniente
2 250 000 € - 2 250 000 €
32 Einheiten

Residencial Los Balcones De Calpe

Alicante, Kalpe, Calpe Pueblo, Avenida de Madrid, 1
299 000 € - 892 125 €
7 Einheiten

Nature Views

Alicante, Torrevieja, Lago Jardín II, Avenida Denia s/n
305 000 € - 330 000 €
5 Einheiten

ALONIS VILLAS

Alicante, La Villajoyosa / Vila Joiosa, Platja de Torres, Partida Torres s/n
675 000 € - 775 000 €
1 Einheiten

Residencial Royal Beach

Alicante, Guardamar del Segura, Dorf, Miguel Hernández 102
349 500 € - 349 500 €
8 Einheiten

Royal Star

Alicante, Guardamar del Segura
224 500 € - 264 500 €
Diese Informationen stammen aus öffentlichen Quellen und können veraltet sein. Sie stellen keine Verbindung zum Bauträger dar.

Merkmale der Immobilie

Complex information

Projektinformationen / Bauzustand

  • Übergabedatum
    2025
  • Förmatted der Promotion
    frei

Eigenschaftsdaten

  • Küchenart
    Amerikanische Küche
  • M2 Mittel
    144 m²
  • Art der Immobilie
    Neubau

Energieausweis

  • Energieverbrauch
    En trámite

Facilities

Im Gebäude:

Garten

Pläne

Statistik der Marktpreise für Casa Ponent

290 000 € (2 013 €/m2)
Durchschnittspreis im Komplex
290 000 € (2 014 €/m2)
Durchschnittspreis für 3-Zimmer-

Karte

Tarragona, Llorenç del Penedès, Calle Ponent, 27 Zu diesem Ort gehen
Eine Bewertung über Casa Ponent abgeben
0
0 Bewertungen
1
0% (0)
2
0% (0)
3
0% (0)
4
0% (0)
5
0% (0)
290 000 €
von 2 014 € / m2
Kontakt zum Inserenten

Für weitere Informationen kontaktieren Sie bitte die Plattform

REF: 216933

Bewertungen über Casa Ponent
Loading...

No reviews have been left for this object yet

Nächstgelegene Objekte

Entdecken Sie nahegelegene Immobilien, die wir in unmittelbarer Nähe zu diesem Standort entdeckt haben

23 Einheiten

Obra nueva 920002978 en Santa Oliva

Tarragona, Santa Oliva
45 000 € - 140 000 €

Promoción de 23 viviendas y 14 plazas de garaje en el Vendrell, Tarragona.

0
0 Bewertungen
1 Einheiten

Obra nueva Castellet i la Gornal en Castellet i la Gornal

Barcelona, Castellet i la Gornal
270 000 € - 270 000 €

Nueva promoción de 6 viviendas unifamiliares pareadas con magníficos acabados y...

0
0 Bewertungen

Promoció Camelies

Tarragona, Banyeres del Penedès
-

1 chalet unifamiliar ecosostenible en el Priorat de Banyeres en Banyeres del Pen...

0
0 Bewertungen

Sant Jaume dels Domenys

Tarragona, Sant Jaume dels Domenys
-

EDIFICIO DE OBRA NUEVA EN SANT JAUME DELS DOMENYS!- OBRA YA TERMINADA!Espectacul...

0
0 Bewertungen

Cami Dels Molins 9

Tarragona, Santa Oliva
-

Promoción de 23 viviendas y 14 plazas de garaje en el Vendrell, Tarragona.

0
0 Bewertungen
1 Einheiten

Nuestra Señora del Pilar

Tarragona, Santa Oliva, De Ntra. Sra. del Pilar, 2
224 000 € - 224 000 €

Immobilien in Nuestra Señora del Pilar Wir präsentieren Ihnen eine exklusive neu...

0
0 Bewertungen

Casa Ponent

Tarragona, Llorenç del Penedès, Calle Ponent, 27
-

Immobilien in Casa Ponent Nutzen Sie die hervorragende Gelegenheit, ein neues Zu...

0
0 Bewertungen
2 Einheiten

Tarragonès

Tarragona, Llorenç del Penedès, Del Tarragonès, 14
214 000 € - 250 000 €

Immobilien in Tarragonès Entdecken Sie ein außergewöhnliches, ökologisch nachhal...

0
0 Bewertungen
3 Einheiten

Antoni Gaudí

Tarragona, Llorenç del Penedès, Antoni Gaudí 1, 3, 5 y, 7
204 000 € - 240 000 €

Immobilien in Antoni Gaudí Entdecken Sie die neu errichteten Reihenhäuser in Eig...

0
0 Bewertungen

Wir verwenden eigene und Drittanbieter-Cookies, um die Nutzung der Website zu analysieren und Ihnen Werbung zu zeigen, die auf der Grundlage eines aus Ihren Surfgewohnheiten erstellten Profils mit Ihren Vorlieben übereinstimmt (z. B. besuchte Seiten). Mehr Informationen. Akzeptieren Sie Cookies?