Spanien Neubau Spanien Neubau Tarragona Neubau Tarragona Jaume I Piso en venta en calle Jaume I, 22, 24

Verkauf einer Wohnung in Calle Jaume I, 22, 24, Tarragona

Tarragona, Tarragona, Nou Eixample Sud, Calle Jaume I, 22, 24
Ausverkauf
Bewertung hinterlassen
Wohnungen Art der Immobilie
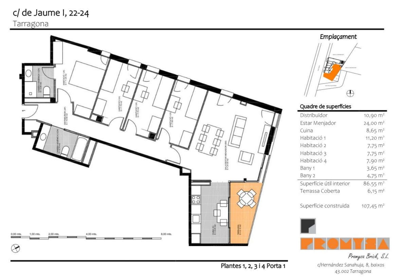
4 Schlafzimmer
107 m² m² gebaut
2 Bäder
Esta promoción está ubicada en una zona céntrica de Tarragona entre Rambla Nova y La Tabacalera. A pocos metros nos encontramos con la Plaza de toros conocida hoy más como el “Tarraco Arena Plaza”, donde se puede disfrutar de una variedad de eventos. También nos encontramos cerca el parque urbano más grande de la ciudad, el “Parc de la Ciutat” donde poder disfrutar de buenos paseos relajantes bajo sus encinas, robles, almendros, pinos y cipreses.La “Necrópolis” es un lugar cercano de gran valor histórico y de interés turístico, y a pocos pasos de él nos encontramos con el “Centro Comercial Parc Central”, el único centro comercial ubicado dentro de la ciudad. Además, la promoción tiene una gran variedad de servicios cerca como el “Mercadona”, “Bon Área”, “EuroSpar”, “La Sirena”, gimnasio municipal, la Escuela Oficial de Idioma, etc.. . La obra dispondrá de 11 viviendas con tipológicas de 2, 3 y 4 dormitorios. Las viviendas se entregarán con cocinas equipadas. Los suelos serán de parqué de alta calidad a escoger en 3 colores, los baños irán alicatados a escoger entre 2 opciones disponibles.Calificación energética C.Edificio dotado de 1 ascensor.Promoción en fase de comercialización. No se lo piense, pídanos toda la información necesaria de nuestras viviendas.

Merkmale der Immobilie

Complex information

  • Wohnanlage
    Jaume I
  • Art der Immobilie
    Wohnungen

Eigenschaftsdaten

  • Schlafzimmer
    4
  • Bäder
    2
  • m² gebaut
    107 m²
  • Immobilientyp
    Neubau

Energieausweis

  • Energiezertifikat
    C

Facilities

Wohnungskomfort:

Außenfenster
Terasse

Im Gebäude:

Aufzug
Fitnessstudio
Spa

Staat:

Neubau

Statistik der Marktpreise für Piso en venta en calle Jaume I, 22, 24

344 615 € (3 094 €/m2)
Durchschnittspreis für primäre Wohnungen in der Stadt Tarragona

Karte

Tarragona, Tarragona, Nou Eixample Sud, Calle Jaume I, 22, 24 Zu diesem Ort gehen
Eine Bewertung über Piso en venta en calle Jaume I, 22, 24 abgeben
0
0 Bewertungen
1
0% (0)
2
0% (0)
3
0% (0)
4
0% (0)
5
0% (0)
Jaume I
Wohnanlage
Ausverkauf
Kontakt zum Inserenten

Für weitere Informationen kontaktieren Sie bitte die Plattform

REF: 9677

Bewertungen über Piso en venta en calle Jaume I, 22, 24
Loading...

No reviews have been left for this object yet

Nächstgelegene Objekte

Entdecken Sie nahegelegene Immobilien, die wir in unmittelbarer Nähe zu diesem Standort entdeckt haben

Apartamentos en Venta en Avenida Cataluña, 21, Tarragona

Tarragona, Tarragona, Nou Eixample Nord, Avenida Cataluña, 21
225 000 €

PROMOCIÓN OBRA NUEVA AVENIDA CATALUÑASituados en el corazón de Tarragona, avenid...

0
0 Bewertungen

Apartamentos en Venta en Avenida Cataluña, 21, Tarragona

Tarragona, Tarragona, Nou Eixample Nord, Avenida Cataluña, 21
225 000 €

PROMOCIÓN OBRA NUEVA AVENIDA CATALUÑASituados en el corazón de Tarragona, avenid...

0
0 Bewertungen

Apartamentos en Venta en Avenida Cataluña, 21, Tarragona

Tarragona, Tarragona, Nou Eixample Nord, Avenida Cataluña, 21
235 000 €

PROMOCIÓN OBRA NUEVA AVENIDA CATALUÑASituados en el corazón de Tarragona, avenid...

0
0 Bewertungen

Apartamentos en Venta en Avenida Cataluña, 21, Tarragona

Tarragona, Tarragona, Nou Eixample Nord, Avenida Cataluña, 21
230 000 €

PROMOCIÓN OBRA NUEVA AVENIDA CATALUÑASituados en el corazón de Tarragona, avenid...

0
0 Bewertungen

Apartamentos en Venta en Carrer de Joan Salvat i Bové, 7, Tarragona

Tarragona, Tarragona, Nou Eixample Nord, Carrer de Joan Salvat i Bové, 7
202 000 €

Tras el éxito de Alden Tarragona promoción de 27 viviendas de 2D y 3D con las úl...

0
0 Bewertungen

Apartamentos en Venta en Carrer de Joan Salvat i Bové, 7, Tarragona

Tarragona, Tarragona, Nou Eixample Nord, Carrer de Joan Salvat i Bové, 7
259 000 €

Tras el éxito de Alden Tarragona promoción de 27 viviendas de 2D y 3D con las úl...

0
0 Bewertungen

Apartamentos en Venta en Carrer de Joan Salvat i Bové, 7, Tarragona

Tarragona, Tarragona, Nou Eixample Nord, Carrer de Joan Salvat i Bové, 7
215 000 €

Tras el éxito de Alden Tarragona promoción de 27 viviendas de 2D y 3D con las úl...

0
0 Bewertungen

Apartamentos en Venta en Calle Jaume I, 22, 24, Tarragona

Tarragona, Tarragona, Nou Eixample Sud, Calle Jaume I, 22, 24
250 000 €

Esta promoción está ubicada en una zona céntrica de Tarragona entre Rambla Nova...

0
0 Bewertungen

Apartamentos en Venta en Calle Jaume I, 22, 24, Tarragona

Tarragona, Tarragona, Nou Eixample Sud, Calle Jaume I, 22, 24
250 000 €

Esta promoción está ubicada en una zona céntrica de Tarragona entre Rambla Nova...

0
0 Bewertungen

Wir verwenden eigene und Drittanbieter-Cookies, um die Nutzung der Website zu analysieren und Ihnen Werbung zu zeigen, die auf der Grundlage eines aus Ihren Surfgewohnheiten erstellten Profils mit Ihren Vorlieben übereinstimmt (z. B. besuchte Seiten). Mehr Informationen. Akzeptieren Sie Cookies?