Terreno en calle das Casas Novas

A Coruña, Santiago de Compostela, Campus norte - S.Caetano, Calle das Casas Novas
190 000 €
Beoordeling achterlaten
Stedelijk Type eigendom
241 m² Oppervlakte van het terrein
Residentieel Gebruik van perceel
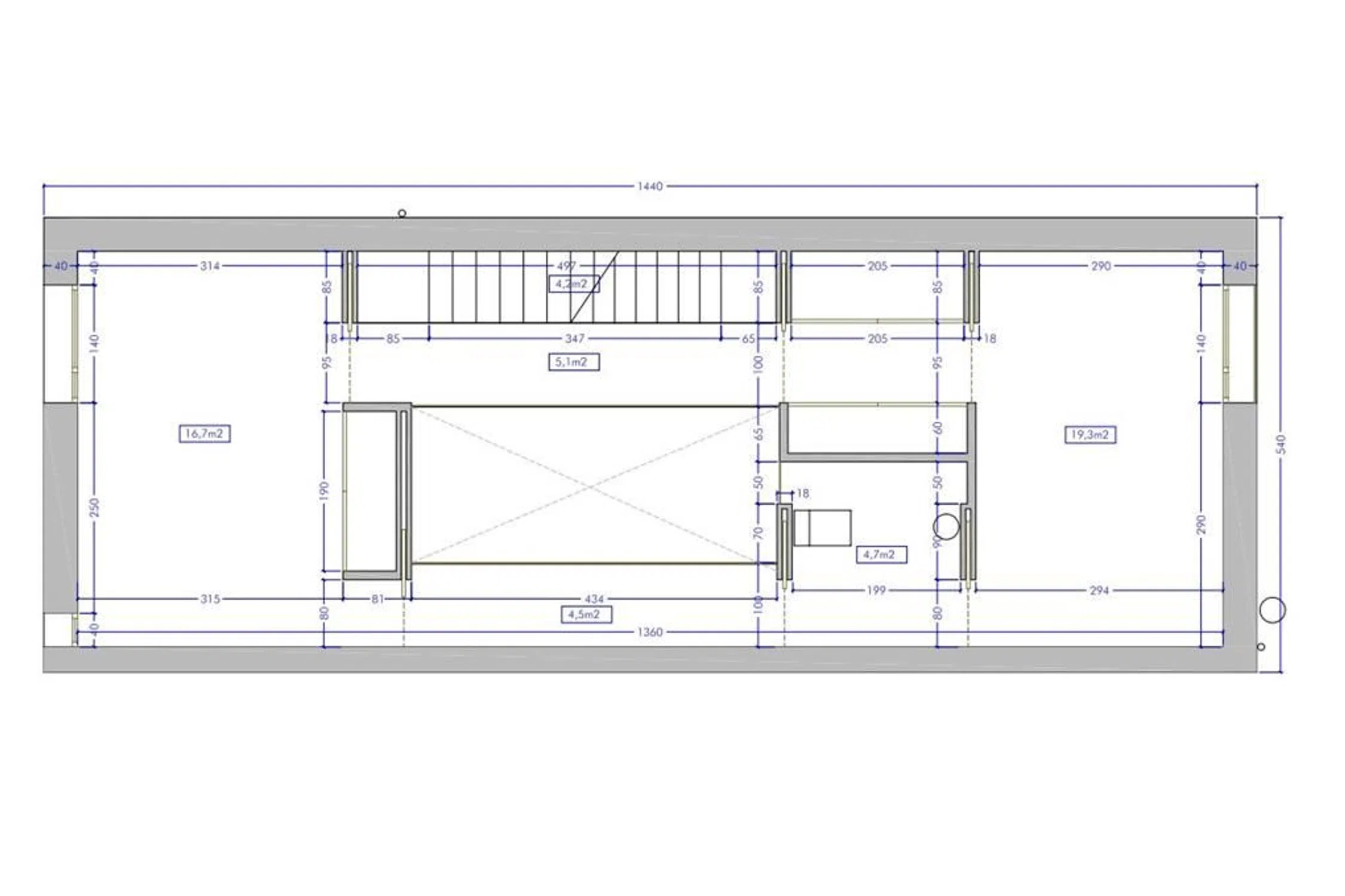
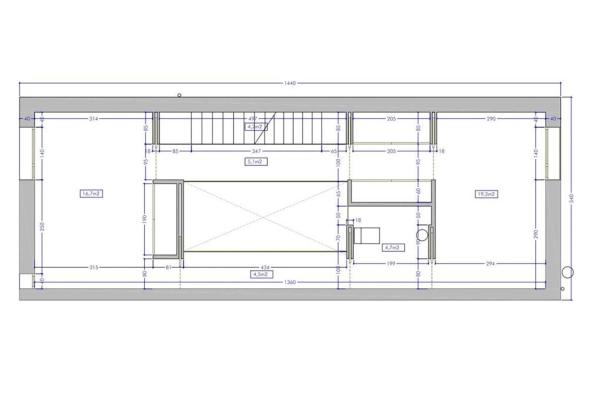
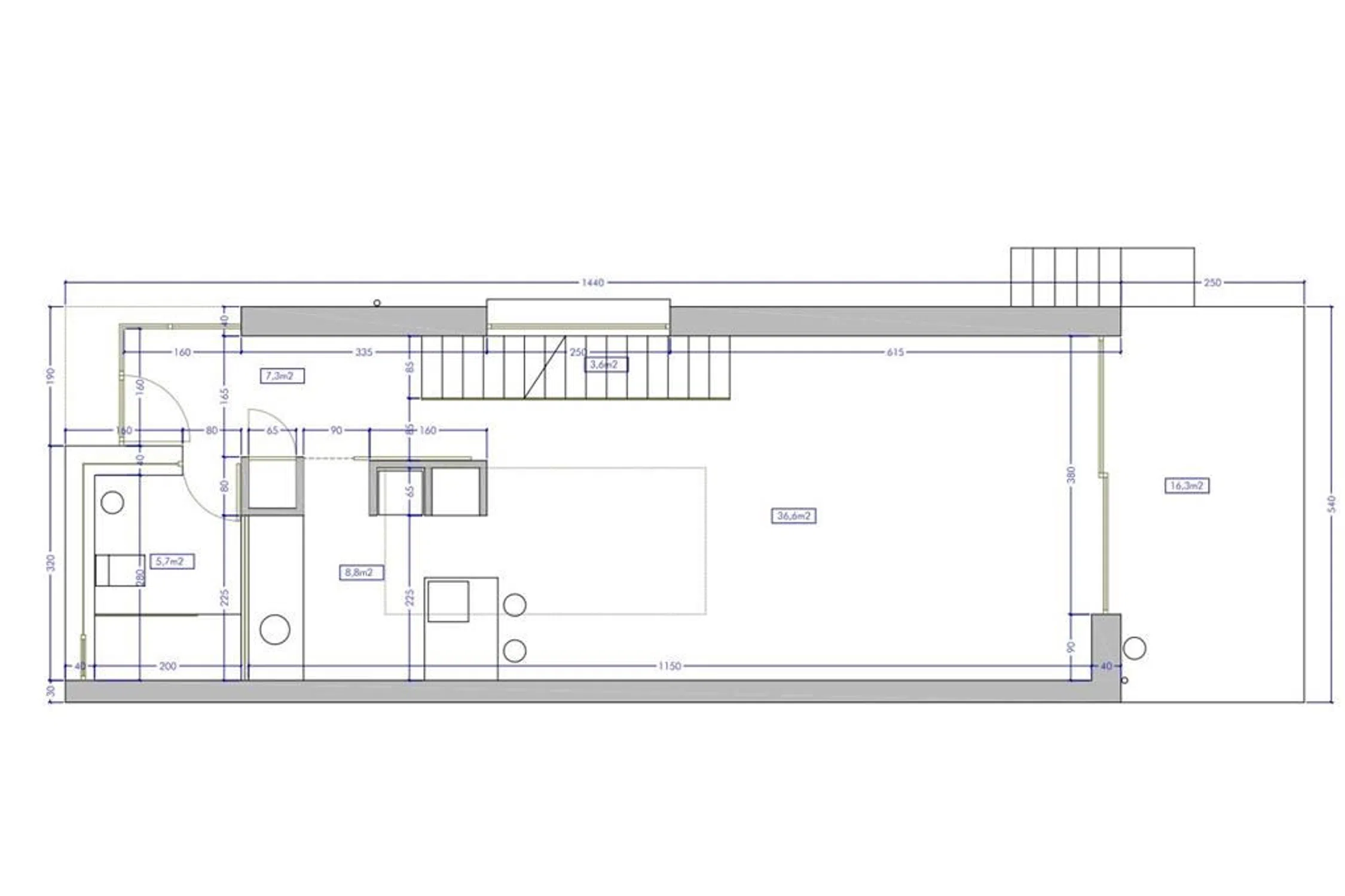
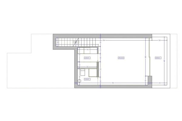
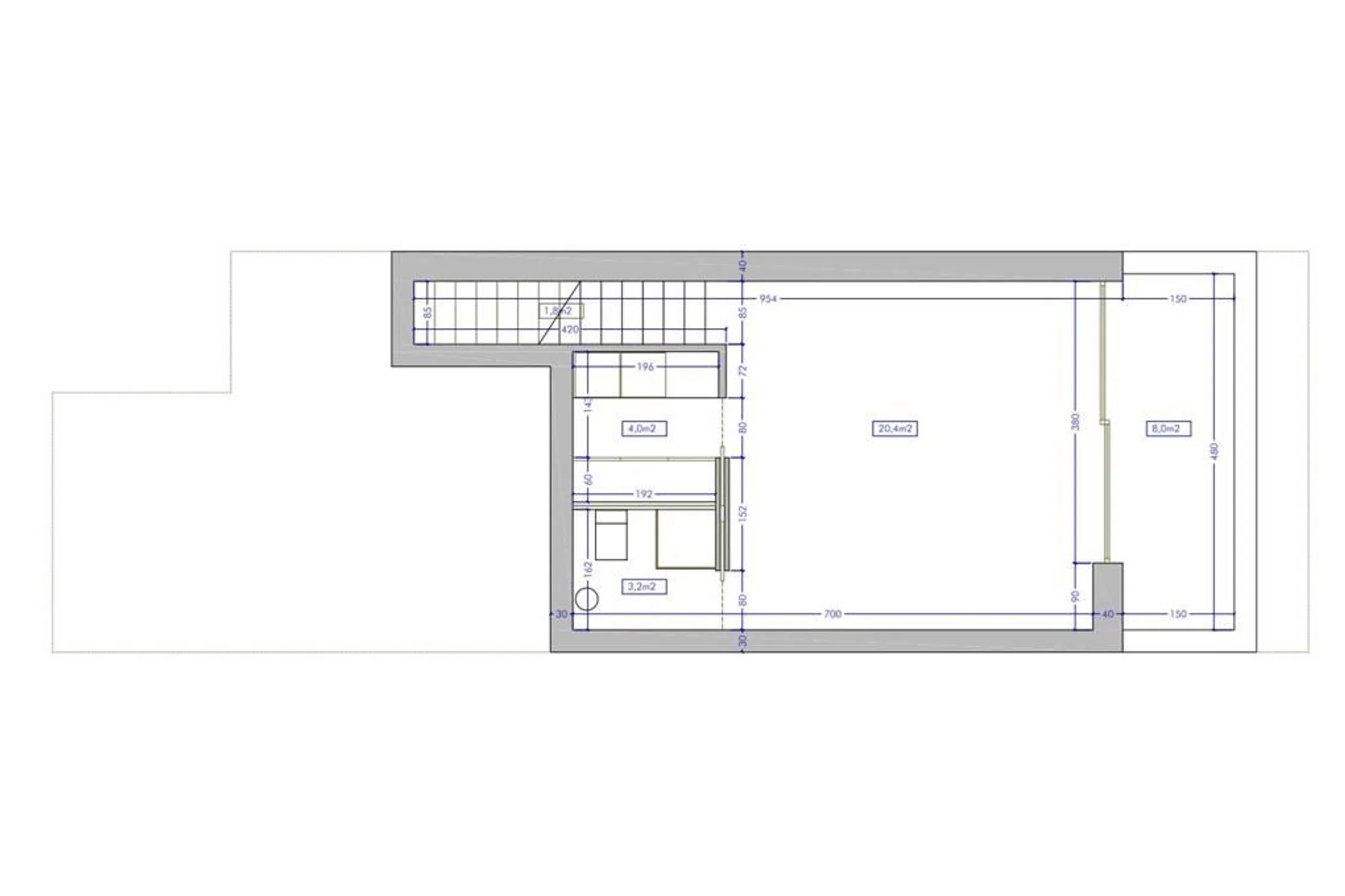
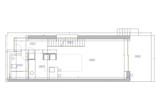
La finca situada en Casas Novas, Santiago de Compostela, de 241m2 actualmente tiene una construcción para ser demolida de 48m2. En el proyecto básico de vivienda unifamiliar se ha proyectado una planta principal, con un vestíbulo, un baño, una cocina, un salón comedor, y una terraza; la planta alta, con dos dormitorios, un vestidor y un aseo; el semisótano, con lavandería, tendedero, un baño y un obrador. Se ha proyectado una terraza que ocupa toda la planta superior. La zona de Casas Novas en Santiago de Compostela es una ubicación excelente. Es una zona de casas unifamiliares, a dos minutos del parque de Galeras, que es sobre todo un gran prado, muy adecuado para el paseo, el juego infantil y la práctica deportiva, que tiene además en sus bordes varias arquitecturas de autor, y cafeterías y restaurantes con vistas sobre el parque. A escasos 10 minutos andando desde el Obradoiro, está el Monte Pío. Corona su cima la residencia presidencial de Galicia anexa a la Finca Monte Pío, antigua sede del Instituto Geográfico Catastral. Desde esta zona se contempla toda la zona histórica de la ciudad con la Catedral de Santiago alzándose magnífica.

Kenmerken

Complex information

  • Type eigendom
    Stedelijk

Gegevens van het onroerend goed

  • Type onroerend goed
    Tweedehands

Oppervlakten

  • Oppervlakte van het terrein
    241 m²

Base

  • Gebruik van perceel
    Residentieel

Marktprijstatistieken voor Terreno en calle das Casas Novas

Kaart

A Coruña, Santiago de Compostela, Campus norte - S.Caetano, Calle das Casas Novas Naar deze locatie gaan
Laat een beoordeling achter over Terreno en calle das Casas Novas
0
0 beoordelingen
1
0% (0)
2
0% (0)
3
0% (0)
4
0% (0)
5
0% (0)
Engel & Völkers Santiago de Compostela .
190 000 €
Contact adverteerder

Neem voor meer informatie contact op met het platform

REF: 238094

Beoordelingen over Terreno en calle das Casas Novas
Loading...

No reviews have been left for this object yet

Dichtstbijzijnde woningen

Verken nabijgelegen eigendommen die we hebben ontdekt in de buurt van deze locatie

Terreno en Campus sur - Santa Marta

A Coruña, Santiago de Compostela, Campus sur - Santa Marta, Campus sur - Santa Marta
27 000 €

Se vende este terreno de suelo urbano de 505m2 en Vilaño, a 2km de A Laracha, cu...

0
0 beoordelingen

Terreno en Aldea Casanova s/n CasanovaAmes

A Coruña, Ames, O Milladoiro, Aldea Casanova s/n CasanovaAmes
86 000 €

Precioso terreno urbanizable en Raíces. Situado en una zona muy tranquila con ca...

0
0 beoordelingen

Terreno en Aldea Lombao

A Coruña, Ames, Amesgebied, Aldea Lombao
90 000 €

Se vende terreno edificable en una zona residencial y tranquila de la localidad...

0
0 beoordelingen

Terreno en Pedrido, 14

A Coruña, Santiago de Compostela, Campus sur - Santa Marta, Pedrido, 14
69 000 €

FINCA URBANA EN PEDRIDO - ROXOS Finca urbana en Pedrido a escasos minutos del ce...

0
0 beoordelingen

Terreno en Aldea Mercuto, 19

A Coruña, Ames, Amesgebied, Aldea Mercuto, 19
45 000 €

SUELO EDIFICABLE EN ZONA AMEIXENDA - AMES Se vende suelo edificableen carretera...

0
0 beoordelingen

Terreno en calle Magdalena

A Coruña, Ames, O Milladoiro, Calle Magdalena
390 000 €

Excelente suelo urbano en Milladoiro, Se trata de una parcela con excelentes vis...

0
0 beoordelingen

Terreno en Castiñeiriño - Cruceiro do Sar

A Coruña, Santiago de Compostela, Castiñeiriño - Cruceiro do Sar, Castiñeiriño - Cruceiro do Sar
380 000 €

Superficie total 245 m², solar superficie solar 169 m², alumbrado.

0
0 beoordelingen

Terreno en calle da Burata

A Coruña, Santiago de Compostela, Campus norte - S.Caetano, Calle da Burata
83 000 €

Se Vende Terreno Edificable DE 288 M2, Ubicado  en una zona residencial tranquil...

0
0 beoordelingen

Terreno en Lugar de Covas, 37

A Coruña, Teo, Lugar de Covas, 37
105 000 €

Finca de 1308 m2 con 824 m2 edificables en núcleo rural de Covas, pegado a Os Ti...

0
0 beoordelingen
Bel

We gebruiken onze eigen cookies en die van derden om het gebruik van de website te analyseren en je advertenties te tonen die zijn afgestemd op je voorkeuren, op basis van een profiel dat is gemaakt op basis van je browsegedrag (bijvoorbeeld bezochte pagina's). Meer informatie. Accepteer je cookies?