Verkoop van appartement in Calle Elda, 3, Alicante / Alacant

Alicante, Alicante / Alacant, Campoamor-Carolinas-Altozano, Calle Elda, 3
143 000 €
2 979 € / m2
Beoordeling achterlaten
Appartements Type eigendom
2 Slaapkamers
1963 Opleveringsjaar
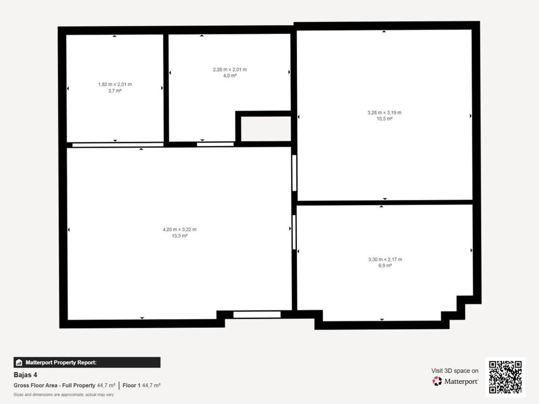
48 m² gebouwde m2
1 Badkamers
Goede staat Vastgoedstatus
Se vende local en planta baja, actualmente reformado y acondicionado como vivienda. Registrado como local comercial en el Registro de la Propiedad, el inmueble ha sido adaptado para uso residencial y cuenta con una distribución práctica y acogedora: dos dormitorios, salón con cocina tipo office y baño completo. Situado en esquina, dispone de excelente luz natural gracias a su orientación y grandes ventanales, lo que lo convierte en un espacio muy luminoso y agradable. El local cuenta actualmente con licencia turística en vigor. No obstante, se desconoce si dicha licencia se mantendría activa tras la transmisión de la propiedad, por lo que se recomienda al comprador verificar este aspecto con el organismo competente. Una propiedad con múltiples posibilidades de uso, ideal como inversión o para vivienda personal. El local se encuentra a pocos minutos de la plaza de toros, del mercado central, del Centro Comercial Plaza Mar 2, de paradas de bus, taxi y tram, de colegios, parques y a 10 minutos andando a la playa del Postiguet. En las agencias Núcleo realizaremos una valoración gratuita de tu piso, casa o inmueble, acorde a la realidad del mercado inmobiliario actual. Los asesores inmobiliarios de Núcleo tienen un amplio conocimiento del mercado local y de sus características y eso aporta un plus de certeza a su valoración. La valoración de un inmueble se presenta de manera escrita e incluye un desglose que comprende todos los gastos fiscales que van unidos a la compraventa. Servicio financiero Ventajas para el comprador Tenemos servicios profesionales de financiación, asesores de intermediación en préstamos y créditos de Núcleo, el comprador obtiene más rapidez en la deliberación de la concesión de la hipoteca, la simplificación de la documentación solicitada, más competitividad de productos financieros y el abaratamiento de los gastos accesorios. Además, los asesores de intermediación financieros ofrecen soluciones personalizadas para la compra de una vivienda, para hacer reformas o para otras necesidades puntuales de financiación. Ventajas para el vendedor El amplio archivo de potenciales clientes compradores de Núcleo facilita que se acorten los tiempos de venta de los inmuebles. Además, el vendedor obtiene información sobre cuánto dinero está dispuesto a pagar el potencial comprador por un piso, casa o vivienda en la zona en la que se encuentra su inmueble. Ventajas para el comprador Con la ayuda de Núcleo, las personas que buscan vivienda multiplican las posibilidades de encontrar el piso, vivienda o casa. Estamos en la calle Sevilla 31 (ALICANTE).

Kenmerken

Complex information

  • Type eigendom
    Appartements

Projectinformatie / Werkstatus

  • Opleveringsjaar
    1963
  • Vastgoedstatus
    Goede staat

Gegevens van het onroerend goed

  • Slaapkamers
    2
  • Badkamers
    1
  • gebouwde m2
    48 m²
  • Type onroerend goed
    Tweedehands

Base

Energiecertificering

  • Energielabel
    E

Faciliteiten

Woonvoorzieningen:

Airconditioning

Staat:

Goede staat

Marktprijstatistieken voor Piso en calle Elda, 3

326 001 € (3 421 €/m2)
Gemiddelde prijs van primaire Appartements in de stad Alicante / Alacant
296 217 € (2 608 €/m2)
Gemiddelde prijs van secundaire Appartements in de stad Alicante / Alacant
222 477 € (3 197 €/m2)
Gemiddelde prijs van primaire Appartements in district Campoamor-Carolinas-Altozano
183 079 € (1 544 €/m2)
Gemiddelde prijs van secundaire Appartements in district Campoamor-Carolinas-Altozano

Kaart

Alicante, Alicante / Alacant, Campoamor-Carolinas-Altozano, Calle Elda, 3 Naar deze locatie gaan
Laat een beoordeling achter over Piso en calle Elda, 3
0
0 beoordelingen
1
0% (0)
2
0% (0)
3
0% (0)
4
0% (0)
5
0% (0)
Núcleo Inmobiliaria Carolinas Bajas
143 000 €
van 2 979 € / m2
Contact adverteerder

Neem voor meer informatie contact op met het platform

REF: 428444

Beoordelingen over Piso en calle Elda, 3
Loading...

No reviews have been left for this object yet

Goedkope appartementen 64626 Te renoveren appartementen 21902 Woningen tot 50.000€ 18663 Appartementen tot 100.000€ 20261 Huizen tot 100.000€ 20261 Appartementen met uitzicht op zee 19409 Luxe appartementen 19115 Goedkope nieuwe appartementen 37510 Te koop: appartementen met 2 slaapkamers Alicante 22543 Te koop appartementen 3 slaapkamers Alicante 20511 Te koop appartementen 4 slaapkamers Alicante 14419 Verkoop appartementen 5 slaapkamers Alicante 13153 Appartements in goede staat Alicante 15864 Woningen om te renoveren Alicante 15406 Tweedehands appartementen Alicante 33569 appartementen met zeezicht Alicante 13120 Goedkope appartementen Alicante 34304 Appartementen te koop met lift Alicante 27435 Appartementen tot 50.000€ Alicante 13233 Woningen tot 100.000€ Alicante 14260 Nieuwe appartementen Alicante 13671 Luxe appartementen Alicante 13110 Buitenappartementen Alicante 13134 Goedkope nieuwe appartementen Alicante 13671 Particuliere Woningen Alicante 7881 Te koop appartementen 2 slaapkamers Alicante / Alacant 150 Te koop appartementen 3 slaapkamers Alicante / Alacant 140 Verkoop appartementen 4 slaapkamers Alicante / Alacant 117 Te koop appartementen 5 slaapkamers Alicante / Alacant 111 Appartementen in goede staat Alicante / Alacant 111 Te verbouwen appartementen Alicante / Alacant 111 Tweedehands appartementen Alicante / Alacant 111 Appartements met uitzicht op zee Alicante / Alacant 117 Goedkope appartementen Alicante / Alacant 197 Appartementen te koop met een lift Alicante / Alacant 180 Woningen tot 100.000€ Alicante / Alacant 111 Nieuwbouw appartementen Alicante / Alacant 179 Woningen tot 50.000€ Alicante / Alacant 111 Luxe appartementen Alicante / Alacant 111 Buitenappartementen Alicante / Alacant 114 Goedkope nieuwe appartementen Alicante / Alacant 179 Particuliere Woningen Alicante / Alacant 106

Dichtstbijzijnde woningen

Verken nabijgelegen eigendommen die we hebben ontdekt in de buurt van deze locatie

Apartamentos en Venta en Calle Deportista Pitu Perramón, 3, Alicante / Alacant

Alicante, Alicante / Alacant, San Blas-Pau, Calle Deportista Pitu Perramón, 3
228 800 €

AEDAS Homes lanza una moderna y exclusiva promoción de 28 viviendas de 2 y 3 hab...

0
0 beoordelingen

Apartamentos en Venta en Calle Deportista Pitu Perramón, 3, Alicante / Alacant

Alicante, Alicante / Alacant, San Blas-Pau, Calle Deportista Pitu Perramón, 3
308 400 €

AEDAS Homes lanza una moderna y exclusiva promoción de 28 viviendas de 2 y 3 hab...

0
0 beoordelingen

Apartamentos en Venta en Calle Deportista Pitu Perramón, 3, Alicante / Alacant

Alicante, Alicante / Alacant, San Blas-Pau, Calle Deportista Pitu Perramón, 3
216 000 €

AEDAS Homes lanza una moderna y exclusiva promoción de 28 viviendas de 2 y 3 hab...

0
0 beoordelingen

Apartamentos en Venta en Calle Deportista Pitu Perramón, 3, Alicante / Alacant

Alicante, Alicante / Alacant, San Blas-Pau, Calle Deportista Pitu Perramón, 3
262 350 €

AEDAS Homes lanza una moderna y exclusiva promoción de 28 viviendas de 2 y 3 hab...

0
0 beoordelingen

Apartamentos en Venta en Calle Deportista Pitu Perramón, 3, Alicante / Alacant

Alicante, Alicante / Alacant, San Blas-Pau, Calle Deportista Pitu Perramón, 3
281 750 €

AEDAS Homes lanza una moderna y exclusiva promoción de 28 viviendas de 2 y 3 hab...

0
0 beoordelingen

Apartamentos en Venta en Calle Deportista Pitu Perramón, 3, Alicante / Alacant

Alicante, Alicante / Alacant, San Blas-Pau, Calle Deportista Pitu Perramón, 3
216 000 €

AEDAS Homes lanza una moderna y exclusiva promoción de 28 viviendas de 2 y 3 hab...

0
0 beoordelingen

Apartamentos en Venta en Calle Deportista Pitu Perramón, 3, Alicante / Alacant

Alicante, Alicante / Alacant, San Blas-Pau, Calle Deportista Pitu Perramón, 3
373 250 €

AEDAS Homes lanza una moderna y exclusiva promoción de 28 viviendas de 2 y 3 hab...

0
0 beoordelingen

Apartamentos en Venta en Calle Deportista Pitu Perramón, 3, Alicante / Alacant

Alicante, Alicante / Alacant, San Blas-Pau, Calle Deportista Pitu Perramón, 3
280 260 €

AEDAS Homes lanza una moderna y exclusiva promoción de 28 viviendas de 2 y 3 hab...

0
0 beoordelingen

Apartamentos en Venta en Calle Deportista Pitu Perramón, 3, Alicante / Alacant

Alicante, Alicante / Alacant, San Blas-Pau, Calle Deportista Pitu Perramón, 3
278 750 €

AEDAS Homes lanza una moderna y exclusiva promoción de 28 viviendas de 2 y 3 hab...

0
0 beoordelingen
Bel

We gebruiken onze eigen cookies en die van derden om het gebruik van de website te analyseren en je advertenties te tonen die zijn afgestemd op je voorkeuren, op basis van een profiel dat is gemaakt op basis van je browsegedrag (bijvoorbeeld bezochte pagina's). Meer informatie. Accepteer je cookies?