Verkoop van appartement in Altea Pueblo, Altea

Alicante, Altea, Altea Pueblo, Altea Pueblo
247 500 €
2 878 € / m2
Beoordeling achterlaten
Appartements Type eigendom
1974 Opleveringsjaar
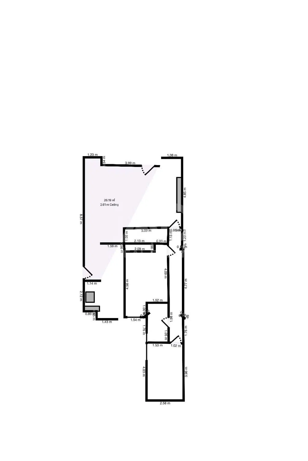
86 m² gebouwde m2
1 Badkamers
2 Slaapkamers
1 Planta
Goede staat Vastgoedstatus
Gran Oportunidad: Piso en el Centro de Altea con Ascensor de Próxima Instalación Se vende un luminoso y encantador piso de 86 m² con una ubicación inmejorable en el corazón de Altea, a tan solo 200 metros de la playa y con acceso inmediato a todos los servicios urbanos (supermercados, tiendas, restaurantes, transporte). La vivienda se encuentra en buen estado y se distribuye en: 2 amplios dormitorios y 1 baño completo. Salón-comedor con cocina americana, totalmente equipada. Una agradable terraza con vistas parciales al mar y la montaña, perfecta para disfrutar del aire libre. Un funcional patio interior y un práctico cuarto de despensa para almacenamiento. ¡Inversión Inteligente! Obras de Mejora Aprobadas Actualmente el edificio no dispone de ascensor, pero la comunidad ha aprobado y presupuestado la próxima instalación de uno, así como el repintado integral de toda la fachada. Esta mejora garantiza una revalorización significativa de la propiedad a corto plazo y un confort superior. Esta propiedad es una excelente oportunidad como residencia habitual, segunda vivienda o inversión de alta rentabilidad y con proyección de crecimiento en la demandada Costa Blanca. No pierda esta oportunidad única. Contáctenos hoy para más información o para concertar una visita.

Kenmerken

Complex information

  • Type eigendom
    Appartements

Projectinformatie / Werkstatus

  • Opleveringsjaar
    1974
  • Vastgoedstatus
    Goede staat

Gegevens van het onroerend goed

  • Planta
    1
  • Slaapkamers
    2
  • Badkamers
    1
  • gebouwde m2
    86 m²
  • Type onroerend goed
    Tweedehands

Base

Energiecertificering

  • Energielabel
    E
  • CEE Emissie
    E
  • Uitzendingen
    24 kg CO2/m² year
  • Energieverbruik
    117 kwh/m² year

Faciliteiten

Woonvoorzieningen:

Airconditioning

Staat:

Goede staat

Marktprijstatistieken voor Piso en Altea Pueblo

1 002 333 € (6 772 €/m2)
Gemiddelde prijs van primaire Appartements in de stad Altea
462 623 € (3 309 €/m2)
Gemiddelde prijs van secundaire Appartements in de stad Altea

Kaart

Alicante, Altea, Altea Pueblo, Altea Pueblo Naar deze locatie gaan
Laat een beoordeling achter over Piso en Altea Pueblo
0
0 beoordelingen
1
0% (0)
2
0% (0)
3
0% (0)
4
0% (0)
5
0% (0)
iad España
247 500 €
van 2 878 € / m2
Contact adverteerder

Neem voor meer informatie contact op met het platform

REF: 436479

Beoordelingen over Piso en Altea Pueblo
Loading...

No reviews have been left for this object yet

Goedkope appartementen 62853 Te renoveren appartementen 30825 Woningen tot 50.000€ 28908 Appartementen tot 100.000€ 30136 Huizen tot 100.000€ 30136 Appartementen met uitzicht op zee 29678 Luxe appartementen 29343 Goedkope nieuwe appartementen 47675 Te koop: appartementen met 2 slaapkamers Alicante 23568 Te koop appartementen 3 slaapkamers Alicante 24026 Te koop appartementen 4 slaapkamers Alicante 21222 Verkoop appartementen 5 slaapkamers Alicante 20334 Appartements in goede staat Alicante 21933 Woningen om te renoveren Alicante 21238 Tweedehands appartementen Alicante 28822 appartementen met zeezicht Alicante 20304 Goedkope appartementen Alicante 29459 Appartementen te koop met lift Alicante 26238 Appartementen tot 50.000€ Alicante 20387 Woningen tot 100.000€ Alicante 21044 Nieuwe appartementen Alicante 20765 Luxe appartementen Alicante 20247 Buitenappartementen Alicante 20292 Goedkope nieuwe appartementen Alicante 20765 Particuliere Woningen Alicante 17388 Te koop appartementen 2 slaapkamers Altea 466 Te koop appartementen 3 slaapkamers Altea 489 Verkoop appartementen 4 slaapkamers Altea 427 Te koop appartementen 5 slaapkamers Altea 407 Appartementen in goede staat Altea 408 Te verbouwen appartementen Altea 416 Tweedehands appartementen Altea 576 Appartements met uitzicht op zee Altea 407 Goedkope appartementen Altea 585 Appartementen te koop met een lift Altea 547 Woningen tot 100.000€ Altea 406 Nieuwbouw appartementen Altea 410 Woningen tot 50.000€ Altea 406 Luxe appartementen Altea 412 Buitenappartementen Altea 406 Goedkope nieuwe appartementen Altea 410 Particuliere Woningen Altea 368

Dichtstbijzijnde woningen

Verken nabijgelegen eigendommen die we hebben ontdekt in de buurt van deze locatie

Obra nueva Residencial Bahía Costa Blanca en Calpe

Alicante, Calpe, Maryvilla, Calle Llevant s/n
355 000 €

Exclusivos apartamentos de obra nueva de 2 y 3 dormitorios con impresionantes te...

0
0 beoordelingen

Obra nueva Residencial Bahía Costa Blanca en Calpe

Alicante, Calpe, Maryvilla, Calle Llevant s/n
360 000 €

Exclusivos apartamentos de obra nueva de 2 y 3 dormitorios con impresionantes te...

0
0 beoordelingen

Obra nueva Residencial Bahía Costa Blanca en Calpe

Alicante, Calpe, Maryvilla, Calle Llevant s/n
360 000 €

Exclusivos apartamentos de obra nueva de 2 y 3 dormitorios con impresionantes te...

0
0 beoordelingen

Obra nueva Residencial Bahía Costa Blanca en Calpe

Alicante, Calpe, Maryvilla, Calle Llevant s/n
345 000 €

Exclusivos apartamentos de obra nueva de 2 y 3 dormitorios con impresionantes te...

0
0 beoordelingen

Obra nueva Residencial Bahía Costa Blanca en Calpe

Alicante, Calpe, Maryvilla, Calle Llevant s/n
340 000 €

Exclusivos apartamentos de obra nueva de 2 y 3 dormitorios con impresionantes te...

0
0 beoordelingen

Obra nueva Residencial Bahía Costa Blanca en Calpe

Alicante, Calpe, Maryvilla, Calle Llevant s/n
335 000 €

Exclusivos apartamentos de obra nueva de 2 y 3 dormitorios con impresionantes te...

0
0 beoordelingen

Obra nueva Residencial Bahía Costa Blanca en Calpe

Alicante, Calpe, Maryvilla, Calle Llevant s/n
360 000 €

Exclusivos apartamentos de obra nueva de 2 y 3 dormitorios con impresionantes te...

0
0 beoordelingen

Apartamentos en Venta en Camino de la Cantera, 1, Alfaz del Pi

Alicante, Alfaz del Pi, L'Albir, Camino de la Cantera, 1
574 000 €

Delfin Natura se localiza en una parcela de más de 30.000 m2 en la mejor ubicaci...

0
0 beoordelingen

Apartamentos en Venta en Camino de la Cantera, 1, Alfaz del Pi

Alicante, Alfaz del Pi, L'Albir, Camino de la Cantera, 1
333 000 €

Delfin Natura se localiza en una parcela de más de 30.000 m2 en la mejor ubicaci...

0
0 beoordelingen
Bel

We gebruiken onze eigen cookies en die van derden om het gebruik van de website te analyseren en je advertenties te tonen die zijn afgestemd op je voorkeuren, op basis van een profiel dat is gemaakt op basis van je browsegedrag (bijvoorbeeld bezochte pagina's). Meer informatie. Accepteer je cookies?