Terreno en calle La Rioja

Alicante, Benissa, La Viña - Montemar - San Jaime, Calle la Rioja
600 000 €
Beoordeling achterlaten
Stedelijk Type eigendom
936 m² Oppervlakte van het terrein
936 Bouwvolume
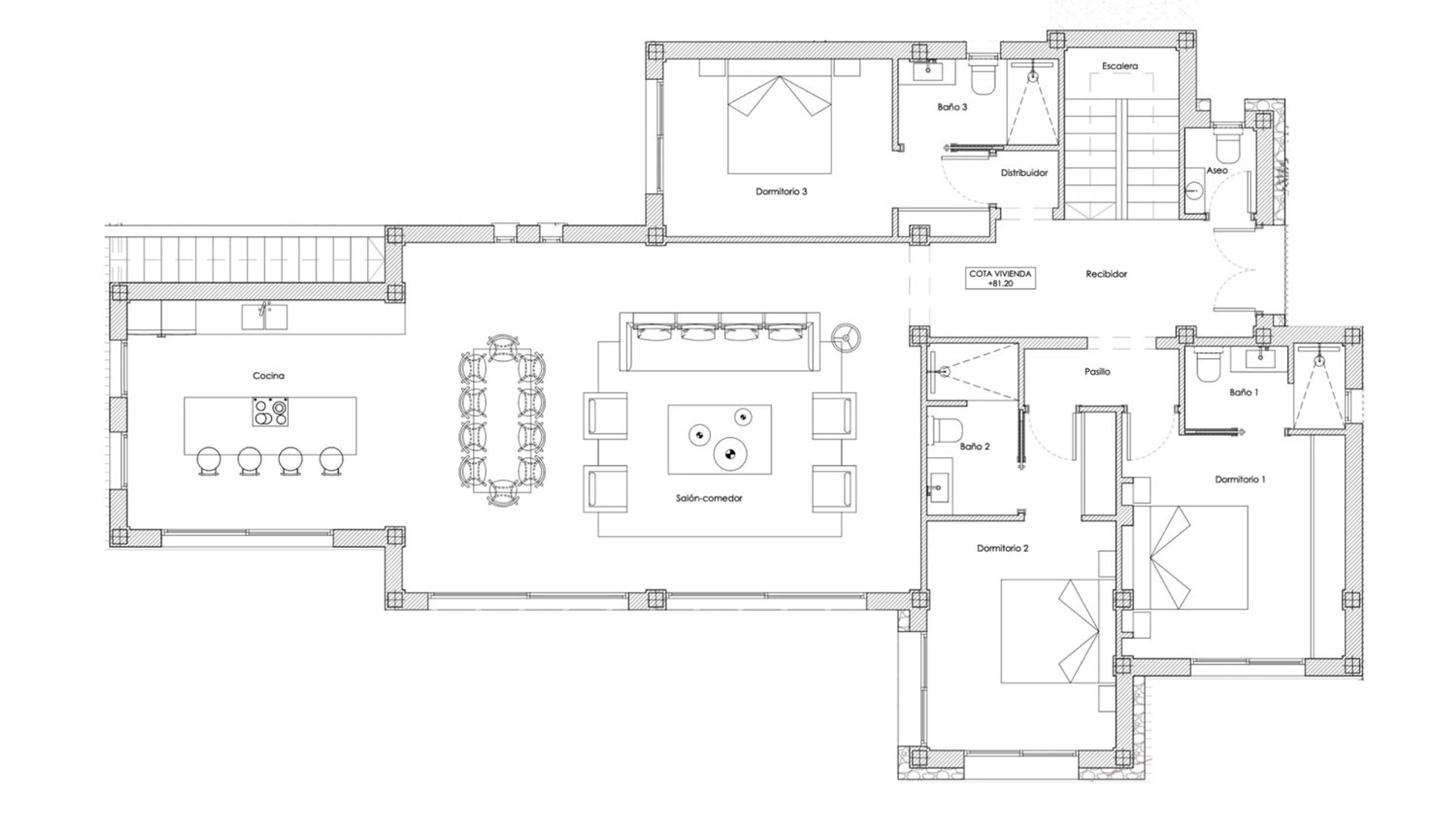
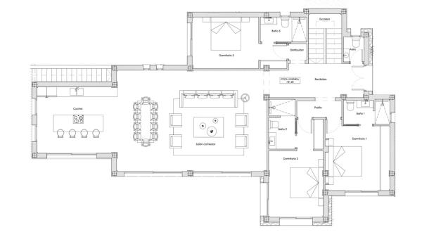
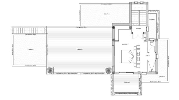
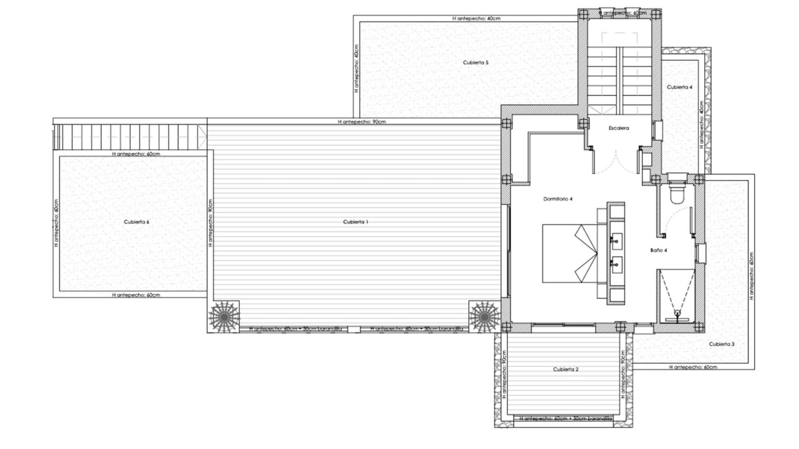
Sueña con una villa de lujo en la Costa Blanca? Descubra esta excepcional parcela edificable de 936 m², situada en la apreciada zona verde de San Jaime en Benissa Costa, que le ofrece la oportunidad única de hacer realidad este sueño. Descripción de la parcela Esta parcela única se entregará lista para construir, incluyendo un elegante proyecto de construcción de una espaciosa villa de estilo ibicenco con cuatro amplios dormitorios y cuatro cuartos de baño. Además, el diseño sigue siendo totalmente personalizable según sus requisitos personales, dándole la oportunidad de crear su hogar ideal bajo el sol. Desde la planta baja, disfrutará de impresionantes vistas sobre el mar Mediterráneo, el verde valle y la icónica silueta del Peñón de Ifach. Gracias al doble acceso a la parcela tanto en la parte delantera como en la trasera, la parcela tiene un acceso excelente y ofrece vistas despejadas permanentes. San Jaime es conocido por su encanto: cerca de calas idílicas como Cala Advocat y Cala Baladrar, acogedores chiringuitos y el cercano Golf Ifach, donde se juega al golf con vistas al famoso peñón de Calpe. En el momento de la compra, la parcela se entregará completamente limpia. En otras palabras, la propiedad será completamente demolida. Tenga en cuenta que la construcción del proyecto no está incluida en el precio. Características - Parcela edificable de 936 m²Incluye proyecto de construcción flexible de estilo ibicenco - Proyecto de 4 dormitorios, 4 baños - Espectaculares vistas al mar y al valle - Situado en la codiciada zona de San Jaime - Cerca de playas, golf y servicios Haga realidad la villa de sus sueños en Benissa, en la Costa Blanca! Póngase en contacto con nosotros hoy para obtener más información o una visita.

Kenmerken

Complex information

  • Type eigendom
    Stedelijk

Gegevens van het onroerend goed

  • Type onroerend goed
    Tweedehands

Oppervlakten

  • Oppervlakte van het terrein
    936 m²

Base

  • Minimale verkoopperceel
    936 m²
  • Bouwvolume
    936

Faciliteiten

Uitzichten:

Uitzichten op zee

Extra kenmerken:

Bouwgrond

Plannen

Marktprijstatistieken voor Terreno en calle La Rioja

Kaart

Alicante, Benissa, La Viña - Montemar - San Jaime, Calle la Rioja Naar deze locatie gaan
Laat een beoordeling achter over Terreno en calle La Rioja
0
0 beoordelingen
1
0% (0)
2
0% (0)
3
0% (0)
4
0% (0)
5
0% (0)
BoCasa Real Estate
600 000 €
Contact adverteerder

Neem voor meer informatie contact op met het platform

REF: 234439

Beoordelingen over Terreno en calle La Rioja
Loading...

No reviews have been left for this object yet

Dichtstbijzijnde woningen

Verken nabijgelegen eigendommen die we hebben ontdekt in de buurt van deze locatie

Terreno en venta en Grupo Pinos los Urban

Alicante, Calpe, Cometa-Carrió, Grupo Pinos los Urban
149 000 €

Descubre una oportunidad única para construir la casa de tus sueños en una parce...

0
0 beoordelingen

Terreno en venta en Benissa pueblo

Alicante, Benissa, Benissa pueblo
180 000 €

Descubre 15,000 m2 de paraíso en la codiciada costa de Benissa, a solo 7 minutos...

0
0 beoordelingen

Terreno en venta en Partida Empedrola II

Alicante, Calpe, Cometa-Carrió, Partida Empedrola II
145 000 €

Calpe Urb Empedrola II. Parcela de 1. 000 m2, apta para construir una vivienda u...

0
0 beoordelingen

Se vende atractivo solar urbano de 1350m2 en urbanización de lujo entre Calpe y Moraira

Alicante, Benissa
184 000 €

Onroerend goed in Se vende atractivo solar urbano de 1350m2 en urbanización de l...

0
0 beoordelingen

En venta solar urbano de 1350m2 en urbanización de lujo entre Calpe y Moraira

Alicante, Benissa
175 000 €

Onroerend goed in En venta solar urbano de 1350m2 en urbanización de lujo tussen...

0
0 beoordelingen

Terreno en Benissa pueblo

Alicante, Benissa, Benissa pueblo, Benissa pueblo
90 000 €

Onroerend goed in Terreno en Benissa pueblo Deze ruime landelijke kavel van iets...

0
0 beoordelingen

Terreno en Teulada

Alicante, Teulada
275 000 €

Onroerend goed in Terreno en Teulada Deze indrukwekkende kavel van rustiek land...

0
0 beoordelingen

Terreno en Cometa-Carrió

Alicante, Calpe, Cometa-Carrió, Cometa-Carrió
1 100 000 €

Investeren in onroerend goed: 856 m² perceel voor de bouw van een luxe villa in...

0
0 beoordelingen

Terreno en Teulada

Alicante, Teulada
2 000 000 €

Onroerend goed in Terreno en Teulada Perceel te koop met fantastische, open uitz...

0
0 beoordelingen
Bel

We gebruiken onze eigen cookies en die van derden om het gebruik van de website te analyseren en je advertenties te tonen die zijn afgestemd op je voorkeuren, op basis van een profiel dat is gemaakt op basis van je browsegedrag (bijvoorbeeld bezochte pagina's). Meer informatie. Accepteer je cookies?