Spanje Huizen Spanje Huizen Alicante Huizen Cox Casa independiente en calle Dinamarca

Nieuwe obra Casa independiente en calle Dinamarca in Cox

Alicante, Cox, Calle Dinamarca
235 000 €
2 901 € / m2
Beoordeling achterlaten
81 m² gebouwde m2
2 Badkamers
3 Slaapkamers
Inbegrepen in de prijs Garage
Goede staat Vastgoedstatus
VIVIENDAS VEGA SOL HOMES Te presentamos este fantástico chalet adosado con 3 dormitorios y 2 baños, ideal para disfrutar en familia o como segunda residencia. Se trata de una vivienda con solárium, terrazas, patio y estacionamiento privado. Además, la propiedad cuenta con áreas comunes que incluyen una piscina comunitaria, spa y zonas comunes. Incluido en el precio: Zona ajardinada con césped artificial y rodadura en zona de parking en parcela. Preinstalación para motor puerta parking. Portero automático. Iluminación led interior y exterior. Persianas eléctricas en dormitorios Enchufe para carga lenta en zona de parking. Puntos TV en todas las estancias, porche y solárium. Puerta de entrada de seguridad. Cocina amueblada con encimera y frente de Silestone, electrodomésticos (horno, vitrocerámica, campana extractora, lavavajillas, frigorífico y calentador aerotérmico). Palillera decorativa en salón. Preinstalación de AC por conductos con rejillas de retorno. Máquina de recuperador de calor. Las ventanas correderas y balconeras son de alta seguridad, con acristalamiento de doble cámara, bajo emisivo, filtro solar y gas argón. Aparatos sanitarios, ducha efecto lluvia, mampara fija, mueble y espejo iluminado. preinstalación Placas Fotovoltaicas. Armarios empotrados terminados con cajoneras y altillos. Solárium equipado con cocina de verano. Piscina comunitaria y zonas comunes. Ubicado a una altitud de 16 metros sobre el nivel del mar, VegaSol Homes goza de una localización privilegiada, con excelentes conexiones de transporte. El Aeropuerto Internacional de Alicante-Elche se encuentra a solo 40 km de distancia. Además, está estratégicamente situado a 8 km de Orihuela, 20 km de Elche, 48 km de Alicante y 38 km de Murcia. Para los aficionados al golf, la cercanía a campos como La Finca (a 12 km) y Vistabella (a 14 km) añade un atractivo adicional. La localidad de Cox dispone de fácil acceso tanto a la autopista AP-7 como a la A-7 (Autovía del Mediterráneo), además de carreteras comarcales que la conectan con municipios vecinos como Granja de Rocamora y Callosa de Segura, en una zona que agrupa a más de 35.000 habitantes. Vivir en VegaSol Homes es sinónimo de tranquilidad y calidad de vida, gracias a su clima templado y a la completa oferta de servicios. En el entorno se encuentran comercios de proximidad, centros educativos, instalaciones deportivas, servicios médicos y un cómodo acceso a las playas de la Costa Blanca, como Guardamar del Segura y Torrevieja. ¡Ven a visitarla con nosotros, te encantará!

Uitgelichte promoties in Spanje

10 eenheden

Nature Views 2

Alicante, Torrevieja, Los Balcones - Los Altos del Edén, Denia s/n
310 000 € - 379 000 €
1 eenheden

Hotel en venta en Benidorm centro

Alicante, Benidorm, Playa de Poniente
2 250 000 € - 2 250 000 €
32 eenheden

Residencial Los Balcones De Calpe

Alicante, Calpe, Calpe Pueblo, Avenida de Madrid, 1
299 000 € - 892 125 €
7 eenheden

Nature Views

Alicante, Torrevieja, Lago Jardín II, Avenida Denia s/n
305 000 € - 330 000 €
5 eenheden

ALONIS VILLAS

Alicante, La Villajoyosa / Vila Joiosa, Platja de Torres, Partida Torres s/n
675 000 € - 775 000 €
1 eenheden

Residencial Royal Beach

Alicante, Guardamar del Segura, dorp, Miguel Hernández 102
349 500 € - 349 500 €
7 eenheden

Royal Star

Alicante, Guardamar del Segura
229 500 € - 269 500 €

Kenmerken

Complex information

Projectinformatie / Werkstatus

  • Vastgoedstatus
    Goede staat

Gegevens van het onroerend goed

  • Garage
    Inbegrepen in de prijs
  • Slaapkamers
    3
  • Badkamers
    2
  • gebouwde m2
    81 m²
  • Type onroerend goed
    Tweedehands

Faciliteiten

In gebouw:

Privé parkeren

Staat:

Goede staat

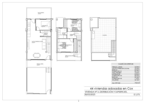
Plannen

Marktprijstatistieken voor Casa independiente en calle Dinamarca

Kaart

Alicante, Cox, Calle Dinamarca Naar deze locatie gaan
Laat een beoordeling achter over Casa independiente en calle Dinamarca
0
0 beoordelingen
1
0% (0)
2
0% (0)
3
0% (0)
4
0% (0)
5
0% (0)
Fercana Inmobiliaria
235 000 €
van 2 901 € / m2
Contact adverteerder

Neem voor meer informatie contact op met het platform

REF: 327355

Beoordelingen over Casa independiente en calle Dinamarca
Loading...

No reviews have been left for this object yet

Dichtstbijzijnde woningen

Verken nabijgelegen eigendommen die we hebben ontdekt in de buurt van deze locatie

Obra nueva 930007783 en Benferri

Alicante, Benferri
72 000 €

Preciosa promoción de dúplex de obra nueva ubicados en la carretera de Abanilla....

0
0 beoordelingen

Obra nueva 930007783 en Benferri

Alicante, Benferri
73 000 €

Preciosa promoción de dúplex de obra nueva ubicados en la carretera de Abanilla....

0
0 beoordelingen

Obra nueva 930007783 en Benferri

Alicante, Benferri
75 000 €

Preciosa promoción de dúplex de obra nueva ubicados en la carretera de Abanilla....

0
0 beoordelingen

Obra nueva 930007783 en Benferri

Alicante, Benferri
73 000 €

Preciosa promoción de dúplex de obra nueva ubicados en la carretera de Abanilla....

0
0 beoordelingen

Obra nueva 930007783 en Benferri

Alicante, Benferri
74 000 €

Preciosa promoción de dúplex de obra nueva ubicados en la carretera de Abanilla....

0
0 beoordelingen

Obra nueva 930007783 en Benferri

Alicante, Benferri
73 000 €

Preciosa promoción de dúplex de obra nueva ubicados en la carretera de Abanilla....

0
0 beoordelingen

Obra nueva 930007783 en Benferri

Alicante, Benferri
73 000 €

Preciosa promoción de dúplex de obra nueva ubicados en la carretera de Abanilla....

0
0 beoordelingen

Casa o chalet independiente en venta en calle Tosca

Alicante, Orihuela, Orihuela Costa, Calle Tosca
140 000 €

-salón con cocina abierta todo amueblado-dos dormitorios, uno de ellos con baño...

0
0 beoordelingen

Casa o chalet independiente en venta en calle José Maria Sicilia, 1

Alicante, Orihuela, Orihuela Costa, Calle José Maria Sicilia, 1
499 000 €

Impresionante villa ubicada en la prestigiosa zona de Playa Flamenca, Orihuela C...

0
0 beoordelingen
Bel

We gebruiken onze eigen cookies en die van derden om het gebruik van de website te analyseren en je advertenties te tonen die zijn afgestemd op je voorkeuren, op basis van een profiel dat is gemaakt op basis van je browsegedrag (bijvoorbeeld bezochte pagina's). Meer informatie. Accepteer je cookies?