Verkoop van onafhankelijke chalet in Golf Bahía, Finestrat

Alicante, Finestrat, Golf Bahía, Golf Bahía
1 065 000 €
7 100 € / m2
Beoordeling achterlaten
Vrijstaand chalet Type eigendom
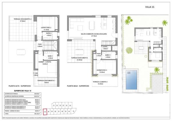
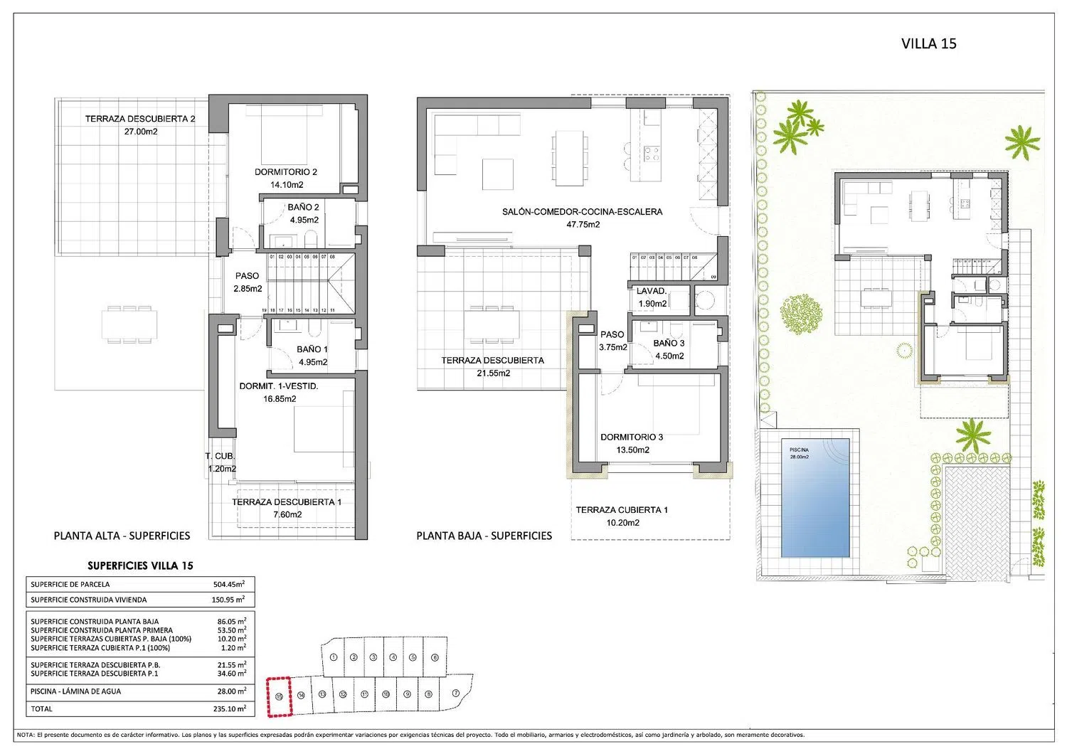
150 m² gebouwde m2
3 Badkamers
3 Slaapkamers
Ingericht Keukenapparatuur

Onroerend goed in Casa independiente

Gelegen in een schilderachtige urbanisatie, op een steenworp afstand van de levendige kust, ligt een waar paradijs van luxe en rust. Deze exclusieve ruimte belooft de perfecte samensmelting van natuurlijke schoonheid en modern comfort, en biedt de kans om de droom van een nieuw gebouwde villa met privézwembad en tuin te realiseren.

De villa's, zorgvuldig ontworpen, vormen het ideale canvas voor een mediterrane levensstijl. Elk van hen beschikt over drie ruime slaapkamers en drie elegant ingerichte badkamers, naast een gezellige woonkamer en een open keuken die perfect in de gemeenschappelijke ruimtes is geïntegreerd. De keuken is volledig uitgerust met hoogwaardige apparatuur die functionaliteit en elegantie garanderen. Voor buitenliefhebbers is er in de tuin een houtskoolbarbecue, perfect voor gezellige bijeenkomsten met vrienden en familie.

Bovendien zijn deze villa's voorzien van airconditioning voor zowel warmte als kou en een domoticasysteem, zodat comfort en gemak altijd voorop staan. Kwaliteit is het kenmerk van deze eigendommen, waar geen enkel detail over het hoofd is gezien in de selectie van hoogwaardige materialen en afwerkingen, wat elke villa transformeert in een uitdrukking van luxe en verfijning.

Voordelen van een nieuw gebouw Casa independiente

Buiten de grenzen van uw huis bevindt deze urbanisatie zich op een van de meest gewilde locaties van de mediterrane kust, omgeven door adembenemende bergen en zeezichten die een serene en gastvrije omgeving bieden. Slechts enkele minuten verderop trekt de bruisende nabijgelegen stad aan met zijn brede scala aan recreatieve activiteiten, diensten en winkels, waardoor deze locatie perfect is voor zowel permanente bewoners als diegenen die op zoek zijn naar een tweede huis.

Leven in de stad Finestrat

Voor slimme investeerders is dit een uitzonderlijke gelegenheid om een eigendom te verwerven met enorm verhuurpotentieel. Het is niet alleen een woning; het is een levensstijl. Mis de kans niet om het beste van de Middellandse Zee te ontdekken, waar natuur, luxe en comfort in perfecte harmonie samenkomen. Zeker je toekomst in deze buitengewone urbanisatie en begin het leven te leiden waar je altijd van hebt gedroomd.

*De verstrekte informatie is louter informatief en foutjes kunnen optreden.

Kenmerken

Complex information

  • Type eigendom
    Vrijstaand chalet

Gegevens van het onroerend goed

  • Keukenapparatuur
    Ingericht
  • Slaapkamers
    3
  • Badkamers
    3
  • gebouwde m2
    150 m²
  • Type onroerend goed
    Tweedehands

Faciliteiten

Woonvoorzieningen:

Airconditioning
Terraza

In gebouw:

Zwembad
Tuin

Marktprijstatistieken voor Casa independiente

732 776 € (3 430 €/m2)
Gemiddelde prijs van primaire Vrijstaand chalet in de stad Finestrat
782 754 € (2 963 €/m2)
Gemiddelde prijs van secundaire Vrijstaand chalet in de stad Finestrat
999 667 € (2 884 €/m2)
Gemiddelde prijs van primaire Vrijstaand chalet in district Golf Bahía
944 671 € (3 337 €/m2)
Gemiddelde prijs van secundaire Vrijstaand chalet in district Golf Bahía

Kaart

Alicante, Finestrat, Golf Bahía, Golf Bahía Naar deze locatie gaan
Laat een beoordeling achter over Casa independiente
0
0 beoordelingen
1
0% (0)
2
0% (0)
3
0% (0)
4
0% (0)
5
0% (0)
Luminar Estates
1 065 000 €
van 7 100 € / m2
Contact adverteerder

Neem voor meer informatie contact op met het platform

REF: 144360

Beoordelingen over Casa independiente
Loading...

No reviews have been left for this object yet

Dichtstbijzijnde woningen

Verken nabijgelegen eigendommen die we hebben ontdekt in de buurt van deze locatie

Chalet independiente en Venta en Calle roma, 23, Finestrat

Alicante, Finestrat, Golf Bahía, Calle roma, 23
1 750 000 €

Nueva villa terminada en Sierra Cortina de Finestrat (Alicante).Les ofrecemos un...

0
0 beoordelingen

Chalet independiente en Venta en Calle d'Equador s/n, Finestrat

Alicante, Finestrat, Balcón de Finestrat-Terra Marina, Calle d'Equador s/n
545 000 €

Este exclusivo complejo residencial de nueva construcción se ubica en una encant...

0
0 beoordelingen

Chalet independiente en Venta en Calle d'Equador s/n, Finestrat

Alicante, Finestrat, Balcón de Finestrat-Terra Marina, Calle d'Equador s/n
635 000 €

Este moderno complejo residencial, ubicado en la hermosa localidad de Finestrat,...

0
0 beoordelingen

Chalet independiente en Venta en Calle d'Equador s/n, Finestrat

Alicante, Finestrat, Balcón de Finestrat-Terra Marina, Calle d'Equador s/n
1 250 000 €

Este moderno complejo residencial, ubicado en una zona privilegiada, ofrece una...

0
0 beoordelingen

Chalet independiente en Venta en Calle d'Equador s/n, Finestrat

Alicante, Finestrat, Balcón de Finestrat-Terra Marina, Calle d'Equador s/n
550 000 €

Este impresionante complejo residencial de nueva construcción está situado en la...

0
0 beoordelingen

Chalet independiente en Venta en Calle d'Equador s/n, Finestrat

Alicante, Finestrat, Balcón de Finestrat-Terra Marina, Calle d'Equador s/n
640 000 €

Este nuevo complejo residencial está ubicado en una encantadora zona de Finestra...

0
0 beoordelingen

Chalet independiente en Venta en Calle d'Equador s/n, Finestrat

Alicante, Finestrat, Balcón de Finestrat-Terra Marina, Calle d'Equador s/n
645 000 €

Este moderno complejo residencial se ubica en Finestrat y presenta una variada o...

0
0 beoordelingen

Obra nueva Campana Garden en Finestrat

Alicante, Finestrat, Balcón de Finestrat-Terra Marina, Calle d'Equador s/n
639 000 €

Este complejo residencial de obra nueva se encuentra en Finestrat y ofrece vivie...

0
0 beoordelingen

Obra nueva Campana Garden en Finestrat

Alicante, Finestrat, Balcón de Finestrat-Terra Marina, Calle d'Equador s/n
1 900 000 €

Este complejo residencial de obra nueva se encuentra en Finestrat y ofrece vivie...

0
0 beoordelingen
Bel

We gebruiken onze eigen cookies en die van derden om het gebruik van de website te analyseren en je advertenties te tonen die zijn afgestemd op je voorkeuren, op basis van een profiel dat is gemaakt op basis van je browsegedrag (bijvoorbeeld bezochte pagina's). Meer informatie. Accepteer je cookies?