Verkoop van onafhankelijke chalet in Platja Vila Joiosa , La Villajoyosa / Vila Joiosa

Alicante, La Villajoyosa / Vila Joiosa, Platja Vila Joiosa
Uitverkopen
Beoordeling achterlaten
Vrijstaand chalet Type eigendom
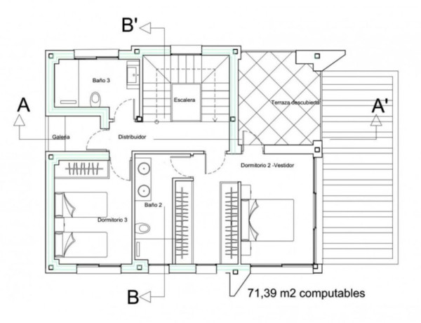
3 Slaapkamers
148 m² gebouwde m2
3 Badkamers
Geen verwarming Verwarming
Ingericht Keukenapparatuur
1 Planta

VILLAS DE NUEVA CONSTRUCCIÓN CON VISTAS AL MAR

Descubre tres exclusivas villas de nueva construcción ubicadas a solo 400 metros de la costa, en un entorno privilegiado. Estas residencias cuentan con 3 dormitorios y 3 baños, perfectas para disfrutar del confort y la privacidad. La cocina de estilo americano se integra con el salón, brindando un espacio luminoso y acogedor, mientras que los armarios empotrados ofrecen almacenamiento eficiente.

Cada villa incluye un jardín privado con piscina, un aparcamiento con capacidad para dos coches y un solárium, ideal para relajarse y disfrutar del clima mediterráneo. Además, hay opción de añadir un sótano por un coste adicional, ampliando así las posibilidades de personalización. Las cocinas están completamente equipadas con electrodomésticos de alta calidad, muebles elegantes y encimeras de piedra, mientras que los baños cuentan con modernos muebles, ducha, mamparas y sanitarios de diseño.

El sistema de aerotermia garantiza una climatización eficiente, complementado por aire acondicionado y doble acristalamiento con filtro UV, que aseguran un ambiente agradable y sostenible.

La localidad donde se encuentran estas villas es un auténtico tesoro de la Costa Blanca. Este pintoresco pueblo costero, situado entre otras conocidas ciudades, está a menos de 30 minutos del aeropuerto local, lo que lo convierte en un destino accesible. Con su amplia playa de arena y las encantadoras calles coloridas del centro histórico, el lugar atrae tanto a residentes como a turistas que buscan un refugio en un entorno idílico.

Hoy en día, la comunidad supera los treinta mil habitantes, quienes se sienten inspirados por las vibrantes casas que llenan de vida el paisaje. Además, la localidad es famosa por su delicioso chocolate, que se puede descubrir en su reconocido museo. Sin duda, es un lugar que combina belleza, cultura y un estilo de vida envidiable.

Kenmerken

Complex information

  • Type eigendom
    Vrijstaand chalet

Kwaliteitsoverzicht

  • Verwarming
    Geen verwarming

Gegevens van het onroerend goed

  • Type keuken
    Amerikaanse keuken
  • Keukenapparatuur
    Ingericht
  • Planta
    1
  • Slaapkamers
    3
  • Badkamers
    3
  • gebouwde m2
    148 m²
  • Type onroerend goed
    Tweedehands

Faciliteiten

Woonvoorzieningen:

Airconditioning
Inbouwkasten
Meubels
Badkamer
Verwarming

In gebouw:

Zwembad
Spa
Zonneterras
Tuin

Uitzichten:

Uitzichten op zee

Soort keuken:

Amerikaanse keuken

Keukeninrichting:

Volledig uitgerust

Staat:

Goede staat
Nieuwbouw

Marktprijstatistieken voor Casa o chalet independiente en venta en Platja Vila Joiosa

Kaart

Alicante, La Villajoyosa / Vila Joiosa, Platja Vila Joiosa Naar deze locatie gaan
Laat een beoordeling achter over Casa o chalet independiente en venta en Platja Vila Joiosa
0
0 beoordelingen
1
0% (0)
2
0% (0)
3
0% (0)
4
0% (0)
5
0% (0)
Mivo Business Centre
Uitverkopen
Contact adverteerder

Neem voor meer informatie contact op met het platform

REF: 46062

Beoordelingen over Casa o chalet independiente en venta en Platja Vila Joiosa
Loading...

No reviews have been left for this object yet

Dichtstbijzijnde woningen

Verken nabijgelegen eigendommen die we hebben ontdekt in de buurt van deze locatie

Chalet independiente en Venta en Calle roma, 23, Finestrat

Alicante, Finestrat, Golf Bahía, Calle roma, 23
1 750 000 €

Nueva villa terminada en Sierra Cortina de Finestrat (Alicante).Les ofrecemos un...

0
0 beoordelingen

Chalet independiente en Venta en Calle d'Equador s/n, Finestrat

Alicante, Finestrat, Balcón de Finestrat-Terra Marina, Calle d'Equador s/n
545 000 €

Este exclusivo complejo residencial de nueva construcción se ubica en una encant...

0
0 beoordelingen

Chalet independiente en Venta en Calle d'Equador s/n, Finestrat

Alicante, Finestrat, Balcón de Finestrat-Terra Marina, Calle d'Equador s/n
635 000 €

Este moderno complejo residencial, ubicado en la hermosa localidad de Finestrat,...

0
0 beoordelingen

Chalet independiente en Venta en Calle d'Equador s/n, Finestrat

Alicante, Finestrat, Balcón de Finestrat-Terra Marina, Calle d'Equador s/n
1 250 000 €

Este moderno complejo residencial, ubicado en una zona privilegiada, ofrece una...

0
0 beoordelingen

Chalet independiente en Venta en Calle d'Equador s/n, Finestrat

Alicante, Finestrat, Balcón de Finestrat-Terra Marina, Calle d'Equador s/n
550 000 €

Este impresionante complejo residencial de nueva construcción está situado en la...

0
0 beoordelingen

Chalet independiente en Venta en Calle d'Equador s/n, Finestrat

Alicante, Finestrat, Balcón de Finestrat-Terra Marina, Calle d'Equador s/n
640 000 €

Este nuevo complejo residencial está ubicado en una encantadora zona de Finestra...

0
0 beoordelingen

Chalet independiente en Venta en Calle d'Equador s/n, Finestrat

Alicante, Finestrat, Balcón de Finestrat-Terra Marina, Calle d'Equador s/n
645 000 €

Este moderno complejo residencial se ubica en Finestrat y presenta una variada o...

0
0 beoordelingen

Obra nueva Campana Garden en Finestrat

Alicante, Finestrat, Balcón de Finestrat-Terra Marina, Calle d'Equador s/n
639 000 €

Este complejo residencial de obra nueva se encuentra en Finestrat y ofrece vivie...

0
0 beoordelingen

Obra nueva Campana Garden en Finestrat

Alicante, Finestrat, Balcón de Finestrat-Terra Marina, Calle d'Equador s/n
1 900 000 €

Este complejo residencial de obra nueva se encuentra en Finestrat y ofrece vivie...

0
0 beoordelingen
Bel

We gebruiken onze eigen cookies en die van derden om het gebruik van de website te analyseren en je advertenties te tonen die zijn afgestemd op je voorkeuren, op basis van een profiel dat is gemaakt op basis van je browsegedrag (bijvoorbeeld bezochte pagina's). Meer informatie. Accepteer je cookies?