Verkoop van appartement in Calle Balmes, 202, Barcelona

Barcelona, Barcelona, Sarrià-Sant Gervasi, Calle Balmes, 202
900 000 €
7 200 € / m2
Beoordeling achterlaten
Appartements Type eigendom
2025 Opleveringsjaar
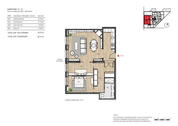
125 m² gebouwde m2
2 Badkamers
3 Slaapkamers
Ingericht Keukenapparatuur
4 Planta
Buitenruimte Vensterdistributie

Ontdek een exclusieve ontwikkeling in een van de meest gewilde gebieden van Barcelona. Dit project op de vierde verdieping biedt drie unieke woningen, elk met een ruime hoofdhal en een functionele dienstingang. Met een oppervlakte van 125 m² weerspiegelt de constructie een nieuwe bouw in voortdurende evolutie.

De interieurarchitectuur combineert klassieke en eigentijdse elementen, van parketvloeren tot details in wit satijnhout. De keukens zijn volledig uitgerust met hoogwaardige apparatuur. Bovendien is de technische infrastructuur ultramodern, met geavanceerde klimaatsystemen, nieuwe elektrische installaties en een modern gemeenschappelijk verwarmingssysteem. De woningen zijn in afwachting van het verkrijgen van de energiecertificering.

Voor degenen die op zoek zijn naar exclusiviteit in het hart van de stad is de locatie ongeëvenaard. Het gebied biedt rust en een groot karakter, in een omgeving waar gerenommeerde restaurants, luxueuze boetieks, groene ruimtes, markten, prestigieuze scholen, en diverse recreatiemogelijkheden samenkomen. Barcelona, met zijn bruisende stadsleven, belooft een unieke ervaring voor al haar bewoners.

Kenmerken

Complex information

  • Wooncomplex
    Balmes 202
  • Type eigendom
    Appartements

Projectinformatie / Werkstatus

  • Opleveringsjaar
    2025

Gegevens van het onroerend goed

  • Keukenapparatuur
    Ingericht
  • Planta
    4
  • Slaapkamers
    3
  • Badkamers
    2
  • gebouwde m2
    125 m²
  • Type onroerend goed
    Nieuwbouw

Energiecertificering

  • Energielabelstatus
    In behandeling
  • Energieverbruik
    En trámite

Base

  • Vensterdistributie
    Buitenruimte

Faciliteiten

Woonvoorzieningen:

Verwarming
Binnenramen

In gebouw:

Lift
Bar
Tuinen zona's
Groene zones

Marktprijstatistieken voor Piso en venta en calle Balmes, 202

764 178 € (7 808 €/m2)
Gemiddelde prijs van primaire Appartements in de stad Barcelona
434 385 € (4 489 €/m2)
Gemiddelde prijs van secundaire Appartements in de stad Barcelona
1 067 444 € (8 505 €/m2)
Gemiddelde prijs van primaire Appartements in district Sarrià-Sant Gervasi

Kaart

Barcelona, Barcelona, Sarrià-Sant Gervasi, Calle Balmes, 202 Naar deze locatie gaan
Laat een beoordeling achter over Piso en venta en calle Balmes, 202
0
0 beoordelingen
1
0% (0)
2
0% (0)
3
0% (0)
4
0% (0)
5
0% (0)
Duran Carasso Obra Nueva
Balmes 202
Wooncomplex
900 000 €
van 7 200 € / m2
Contact adverteerder

Neem voor meer informatie contact op met het platform

REF: 84269

Beoordelingen over Piso en venta en calle Balmes, 202
Loading...

No reviews have been left for this object yet

Dichtstbijzijnde woningen

Verken nabijgelegen eigendommen die we hebben ontdekt in de buurt van deze locatie

Apartamentos en Venta en Calle Vinya , 28, Barcelona

Barcelona, Barcelona, Horta Guinardó, Calle Vinya , 28
395 000 €

Promoción de obra nueva para seis viviendas, dos oficinas y aparcamiento, en una...

0
0 beoordelingen

Apartamentos en Venta en Calle Vinya , 28, Barcelona

Barcelona, Barcelona, Horta Guinardó, Calle Vinya , 28
495 000 €

Promoción de obra nueva para seis viviendas, dos oficinas y aparcamiento, en una...

0
0 beoordelingen

Apartamentos en Venta en Calle Vinya , 28, Barcelona

Barcelona, Barcelona, Horta Guinardó, Calle Vinya , 28
515 000 €

Promoción de obra nueva para seis viviendas, dos oficinas y aparcamiento, en una...

0
0 beoordelingen

Apartamentos en Venta en Calle de Sant Antoni Maria Claret, Esplugues de Llobregat

Barcelona, Esplugues de Llobregat, La Plana - Montesa, Calle de Sant Antoni Maria Claret
296 000 €

OBRAS INICIADAS. Próxima promoción de viviendas de 2 y 3 dormitorios en frente d...

0
0 beoordelingen

Apartamentos en Venta en Calle de Sant Antoni Maria Claret, Esplugues de Llobregat

Barcelona, Esplugues de Llobregat, La Plana - Montesa, Calle de Sant Antoni Maria Claret
292 000 €

OBRAS INICIADAS. Próxima promoción de viviendas de 2 y 3 dormitorios en frente d...

0
0 beoordelingen

Apartamentos en Venta en Calle de Sant Antoni Maria Claret, Esplugues de Llobregat

Barcelona, Esplugues de Llobregat, La Plana - Montesa, Calle de Sant Antoni Maria Claret
383 000 €

OBRAS INICIADAS. Próxima promoción de viviendas de 2 y 3 dormitorios en frente d...

0
0 beoordelingen

Apartamentos en Venta en Calle de Sant Antoni Maria Claret, Esplugues de Llobregat

Barcelona, Esplugues de Llobregat, La Plana - Montesa, Calle de Sant Antoni Maria Claret
373 000 €

OBRAS INICIADAS. Próxima promoción de viviendas de 2 y 3 dormitorios en frente d...

0
0 beoordelingen

Apartamentos en Venta en Calle de Sant Antoni Maria Claret, Esplugues de Llobregat

Barcelona, Esplugues de Llobregat, La Plana - Montesa, Calle de Sant Antoni Maria Claret
373 000 €

OBRAS INICIADAS. Próxima promoción de viviendas de 2 y 3 dormitorios en frente d...

0
0 beoordelingen

Apartamentos en Venta en Calle de Sant Antoni Maria Claret, Esplugues de Llobregat

Barcelona, Esplugues de Llobregat, La Plana - Montesa, Calle de Sant Antoni Maria Claret
395 000 €

OBRAS INICIADAS. Próxima promoción de viviendas de 2 y 3 dormitorios en frente d...

0
0 beoordelingen
Bel

We gebruiken onze eigen cookies en die van derden om het gebruik van de website te analyseren en je advertenties te tonen die zijn afgestemd op je voorkeuren, op basis van een profiel dat is gemaakt op basis van je browsegedrag (bijvoorbeeld bezochte pagina's). Meer informatie. Accepteer je cookies?