Terreno en camp de la serra s/n

Barcelona, Els Hostalets de Pierola, Camp de la serra s/n
740 250 €
Beoordeling achterlaten
Stedelijk Type eigendom
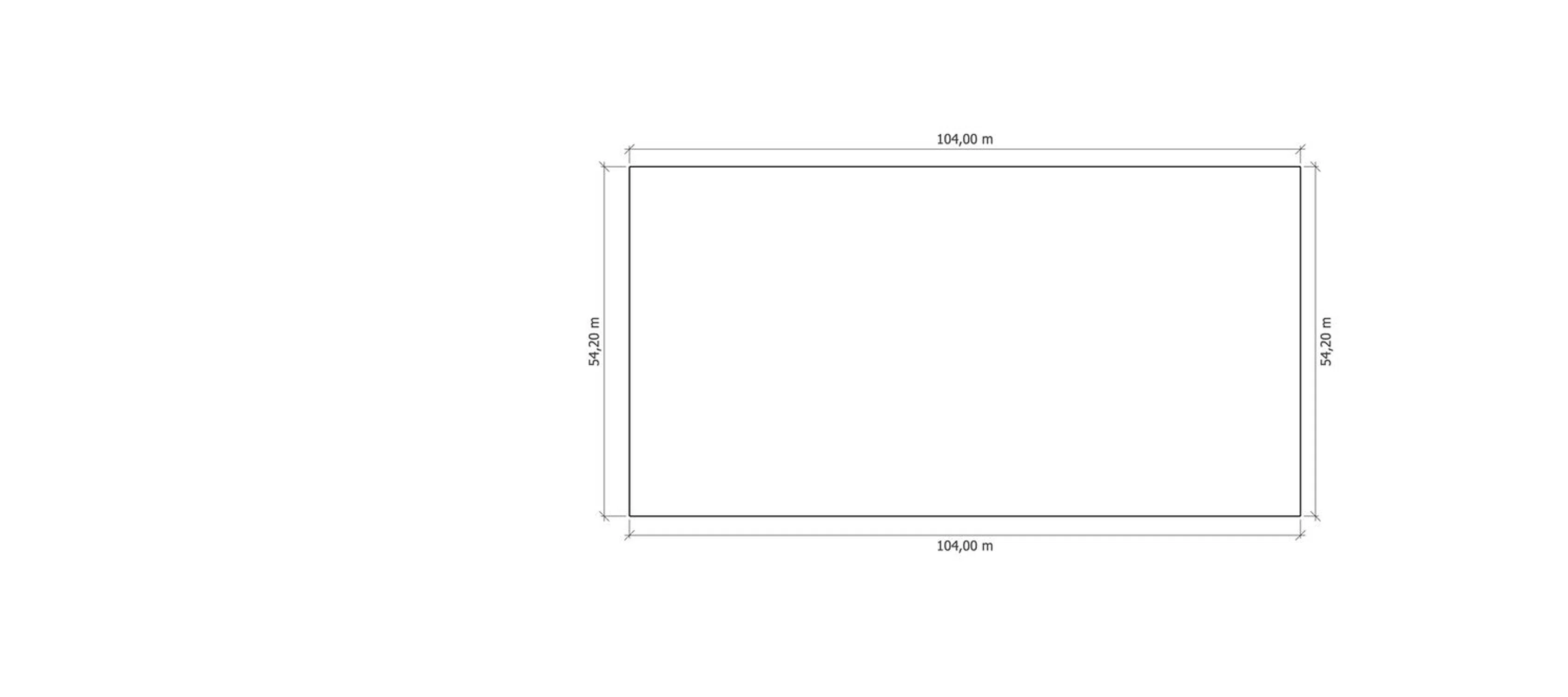
5 922 m² Oppervlakte van het terrein
5 922 m² Bouwvolume
Solar Industrial urbanizado. Ocupación 60%. Edificabilidad 1 m2t/m2s Altura máxima permitida 11 m. Posibilidad de comprar más metros. Muy bien comunicado por la A-2. Integrado en la comarca de Anoia, se sitúa a 52 kilómetros de la capital catalana. El término municipal está atravesado por la Autovía del Nordeste A-2 entre los pK 566-571 y en el pK 573, además de por la antigua carretera N-II y por la carretera provincial BP-1101 que se dirige al Parque Natural de la Muntanya de Montserrat. Por carretera Autovía A-2 de Barcelona a Lleida. Autopista AP-2 de Tarragona en Barcelona y a Girona (salida a Martorell para enlazar con la A-2) Carreteras comarcales BP-1101 de El Bruc a Manresa y carretera BP-1103 de Can Massana a La Abadía de Montserrat. Servicio de autobuses de línea Desde Igualada Estación de autobuses, Ps. Verdaguer s/n Desde Barcelona Estación de autobuses de Sants Estación.

Kenmerken

Complex information

  • Type eigendom
    Stedelijk

Gegevens van het onroerend goed

  • Type onroerend goed
    Tweedehands

Oppervlakten

  • Oppervlakte van het terrein
    5 922 m²

Base

  • Minimale verkoopperceel
    5 922 m²
  • Bouwvolume
    5 922 m²

Marktprijstatistieken voor Terreno en camp de la serra s/n

Kaart

Barcelona, Els Hostalets de Pierola, Camp de la serra s/n Naar deze locatie gaan
Laat een beoordeling achter over Terreno en camp de la serra s/n
0
0 beoordelingen
1
0% (0)
2
0% (0)
3
0% (0)
4
0% (0)
5
0% (0)
Franklin Franklin
740 250 €
Contact adverteerder

Neem voor meer informatie contact op met het platform

REF: 372518

Beoordelingen over Terreno en camp de la serra s/n
Loading...

No reviews have been left for this object yet

Dichtstbijzijnde woningen

Verken nabijgelegen eigendommen die we hebben ontdekt in de buurt van deze locatie

2 TERRENOS COLINDANTES (2124m2) EN LA URBANIZACIÓN CAMPARELLADA

Barcelona, Masquefa
95 000 €

¡Gran oportunidad de inversión! Se venden dos terrenos colindantes en la prestig...

0
0 beoordelingen

GRAN TERRENO EDIFICABLE EN URBANIZACION CAMPARELLADA

Barcelona, Masquefa
77 000 €

¡Increíble oportunidad! Se vende terreno de 1355m2 en la Urbanización Camparella...

0
0 beoordelingen

¡OPORTUNIDAD! TERRENO URBANO EN URBANIZACION CAMPARELLADA

Barcelona, Masquefa
29 000 €

¡Oportunidad única! Se vende terreno con pendiente en la hermosa urbanización Ca...

0
0 beoordelingen

Terreno en Bv-2249

Barcelona, Sant Llorenç d'Hortons, BV-2249
1 260 000 €

Ref. OS461 - Indusrial. Terreno con frente a carretera, en el polígono consolida...

0
0 beoordelingen

Terreno en avenida Mirador, 8 Parcela

Barcelona, Piera, Avenida Mirador, 8 Parcela
55 000 €

Terreno urbano en venta – Piera (Can Martí) Vallado Acceso por ambas calles asfa...

0
0 beoordelingen

Terreno en Els Hostalets de Pierola

Barcelona, Els Hostalets de Pierola, Els Hostalets de Pierola
49 000 €

Sòl urbà en venda no consolidat als Hostalets de Pierola, província de Barcelona...

0
0 beoordelingen

Terreno en calle Sant Sebastià

Barcelona, Piera, Calle Sant Sebastià
43 000 €

Solar en suelo urbano consolidado situado en la calle Major, localidad de Piera,...

0
0 beoordelingen

Terreno en calle Ramon Llull, 18

Barcelona, Masquefa, Calle Ramón Llull, 18
100 000 €

Se vende terreno para edificar en la urbanización de Can Parellada con transport...

0
0 beoordelingen

Terreno en calle Corona Australis, 9

Barcelona, Piera, Calle Corona Australis, 9
35 450 €

¡Construye tus Sueños a Solo una Hora de Barcelona! Terreno Urbano en Can Musarr...

0
0 beoordelingen
Bel

We gebruiken onze eigen cookies en die van derden om het gebruik van de website te analyseren en je advertenties te tonen die zijn afgestemd op je voorkeuren, op basis van een profiel dat is gemaakt op basis van je browsegedrag (bijvoorbeeld bezochte pagina's). Meer informatie. Accepteer je cookies?