Apartamentos en Venta, Sant Vicenç Dels Horts

Barcelona, Sant Vicenç Dels Horts
Uitverkopen
Beoordeling achterlaten
Appartements Type eigendom
80 m² gebouwde m2
2 Badkamers
3 Slaapkamers
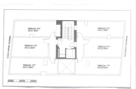
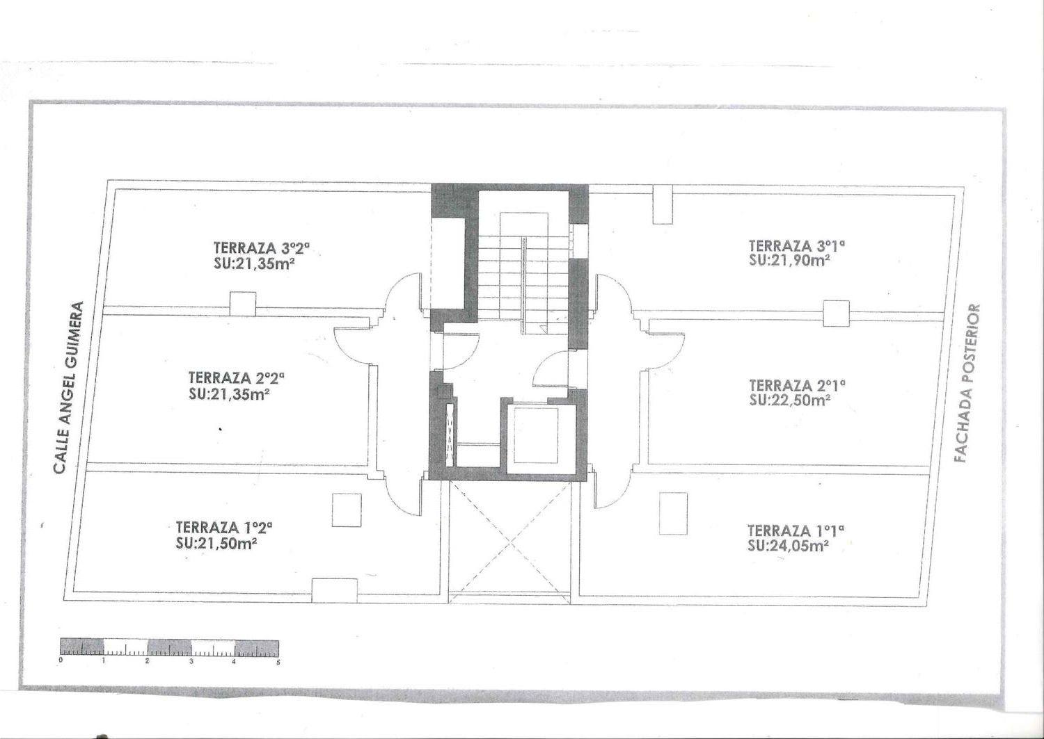
Proyecto de 7 pisos exclusivos con terraza, parkings y trasteros opcionales - En el centro Diseñado para ofrecer al cliente la máxima sostenibilidad, diseño, confort y calidad. Ven a vivir al centro junto a todos los servicios a un paso.El exclusivo edificio Centre SVH tiene una ubicación privilegiada, en una zona con servicios (CAP, Colegios y comercios cercanos (Centre Comercial La Vailet). Con una excelente comunicación con accesos cercanos a la A-2, B-23 y cercana a las estaciones FGC de Sant Vicenç y Can Ros. Una oportunidad única para mejorar tu calidad de vida y la de tu familia.Calidades pensadas para ti. Un uso exquisito de los materiales y acabados, todos ellos de calidad premium. Calificación energética. Promoción de baja demanda energética.Para más información, concierta una visita.Bajo con salón comedor y cocina office, además de terraza de 40,75 m2 y demás viviendas cocina independientes y con terraza privada (aprox. 20 m2) en la parte de arriba del edificio. Las puertas 2ª con balcón. Parking y trastero opcional. Viviendas a partir de 270,000. -€.

Kenmerken

Complex information

  • Wooncomplex
    Centre Svh
  • Type eigendom
    Appartements

Gegevens van het onroerend goed

  • Slaapkamers
    3
  • Badkamers
    2
  • gebouwde m2
    80 m²
  • Type onroerend goed
    Nieuwbouw

Energiecertificering

  • Energielabel
    B

Faciliteiten

Woonvoorzieningen:

Opslagruimte
Terraza

In gebouw:

Lift
Berging

Soort keuken:

Onafhankelijke keuken

Marktprijstatistieken voor Piso en venta en calle Angel Guimerà, 57

325 206 € (4 193 €/m2)
Gemiddelde prijs van primaire Appartements in de stad Sant Vicenç Dels Horts

Kaart

Barcelona, Sant Vicenç Dels Horts Naar deze locatie gaan
Laat een beoordeling achter over Piso en venta en calle Angel Guimerà, 57
0
0 beoordelingen
1
0% (0)
2
0% (0)
3
0% (0)
4
0% (0)
5
0% (0)
Centre Svh
Wooncomplex
Uitverkopen
Contact adverteerder

Neem voor meer informatie contact op met het platform

REF: 9197

Beoordelingen over Piso en venta en calle Angel Guimerà, 57
Loading...

No reviews have been left for this object yet

Dichtstbijzijnde woningen

Verken nabijgelegen eigendommen die we hebben ontdekt in de buurt van deze locatie

Apartamentos en Venta, Pallejà

Barcelona, Pallejà
315 000 €

Can Vinyet es una promoción de 35 viviendas de obra nueva situada en la Avenida...

0
0 beoordelingen

Obra nueva Once de Septiembre en Sant Boi de Llobregat

Barcelona, Sant Boi de Llobregat, Plaça Catalunya - Vinyets, Avenida Onze de Setembre, 18
345 000 €

¡Último piso en venta!Edificio de obra nueva en Carrer L´Onze de Setembre 18 de...

0
0 beoordelingen

Apartamentos en Venta en Calle Serra Montsec s/n, Esplugues de Llobregat

Barcelona, Esplugues de Llobregat, La Plana - Montesa, Calle Serra Montsec s/n
390 000 €

Conjunto residencial de 48 viviendas, compuesto por 2 edificios independiente. U...

0
0 beoordelingen

Apartamentos en Venta en Calle Serra Montsec s/n, Esplugues de Llobregat

Barcelona, Esplugues de Llobregat, La Plana - Montesa, Calle Serra Montsec s/n
385 000 €

Conjunto residencial de 48 viviendas, compuesto por 2 edificios independiente. U...

0
0 beoordelingen

Apartamentos en Venta en Calle Serra Montsec s/n, Esplugues de Llobregat

Barcelona, Esplugues de Llobregat, La Plana - Montesa, Calle Serra Montsec s/n
355 000 €

Conjunto residencial de 48 viviendas, compuesto por 2 edificios independiente. U...

0
0 beoordelingen

Apartamentos en Venta en Calle Serra Montsec s/n, Esplugues de Llobregat

Barcelona, Esplugues de Llobregat, La Plana - Montesa, Calle Serra Montsec s/n
330 000 €

Conjunto residencial de 48 viviendas, compuesto por 2 edificios independiente. U...

0
0 beoordelingen

Apartamentos en Venta en Calle Serra Montsec s/n, Esplugues de Llobregat

Barcelona, Esplugues de Llobregat, La Plana - Montesa, Calle Serra Montsec s/n
399 000 €

Conjunto residencial de 48 viviendas, compuesto por 2 edificios independiente. U...

0
0 beoordelingen

Apartamentos en Venta en Calle Serra Montsec s/n, Esplugues de Llobregat

Barcelona, Esplugues de Llobregat, La Plana - Montesa, Calle Serra Montsec s/n
270 000 €

Conjunto residencial de 48 viviendas, compuesto por 2 edificios independiente. U...

0
0 beoordelingen

Apartamentos en Venta en Calle Serra Montsec s/n, Esplugues de Llobregat

Barcelona, Esplugues de Llobregat, La Plana - Montesa, Calle Serra Montsec s/n
385 000 €

Conjunto residencial de 48 viviendas, compuesto por 2 edificios independiente. U...

0
0 beoordelingen

We gebruiken onze eigen cookies en die van derden om het gebruik van de website te analyseren en je advertenties te tonen die zijn afgestemd op je voorkeuren, op basis van een profiel dat is gemaakt op basis van je browsegedrag (bijvoorbeeld bezochte pagina's). Meer informatie. Accepteer je cookies?