Verkoop van een geschakelde woning in , Ajalvir

Uitverkopen
Beoordeling achterlaten
Tussenwoningen Type eigendom
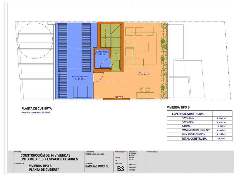
186 m² gebouwde m2
3 Badkamers
4 Slaapkamers
Vloerverwarming Verwarming
2 Planta
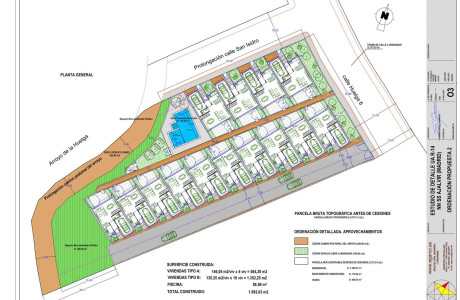
CHALETS DE OBRA NUEVA CON JARDÍN Y GARAJE PRIVADO. URBANIZACIÓN PRIVADA CON PISCINA.NUEVOS PLANOS PUBLICADOS CON SUPERFICIES ACTUALIZADAS. PLACAS SOLARES EN CUBIERTA Y AEROTERMIA CON SUELO RADIANTE Y REFRESCANTE. CERTIFICACIÓN ENERGÉTICA A. AHORRO APROXIMADO del 80% EN LOS COSTES DE SUMINISTROS ANUALES, EN LUZ Y GAS!Diseño cálido y familiar.Ajalvir es una zona muy bien comunicada por M-50, con la carretera A-2 y la A-1, así como el Aeropuerto de Madrid, Torrejón, Alcalá de Henares y con la autovía M-40. La promoción a su vez, se encuentra en una zona tranquila, a 100 metros de la parada de autobús a Madrid, Paracuellos y Daganzo.La promoción consta de 14 chalets, con piscina comunitaria y zonas comunesUbicación: Calle Huelga 6. Ajalvir. MadridLa urbanización está integrada por 14 chalets en urbanización cerrada con control de acceso automático, todos ellos de 4 dormitorios (si bien, pudieran adaptarse a 3 según necesidades de cada familia). Cada chalet está distribuido en 2 alturas más terraza-solárium, donde también se ubicarán las placas solares. Este diseño ha sido pensado con el objetivo primordial de procurar el máximo confort y calidad de vida, teniendo en cuenta, para ello, el aprovechamiento de la luz y el calor solar.La planta calle se distribuye en un amplio salón con cocina abierta a modo isla, baño, jardín privado, porche y parking junto a la entrada. En la primera planta se distribuye con 4 dormitorios y 2 baños. El dormitorio principal a modo suite, con su baño dentro y terraza y en planta segunda zona de terraza-solárium, instalaciones y otros usos.Garaje privado dentro del chalet.300 metros cuadrados de zonas comunes con piscina y zona de solárium.Solicite su cita previa y visítenos en nuestra oficina de ventas instalada en Ajalvir. Calle Atlántico nº 1.CP. 28864 Madrid. ( cerca de gasolineras Repsol y Plenoil ).*Precios sin IVA.

Kenmerken

Complex information

  • Wooncomplex
    Aqua Dorf M-50
  • Type eigendom
    Tussenwoningen

Kwaliteitsoverzicht

  • Verwarming
    Vloerverwarming

Gegevens van het onroerend goed

  • Type keuken
    Amerikaanse keuken
  • Planta
    2
  • Slaapkamers
    4
  • Badkamers
    3
  • gebouwde m2
    186 m²
  • Type onroerend goed
    Nieuwbouw

Faciliteiten

Woonvoorzieningen:

Terraza

In gebouw:

Zwembad
Tuinen zona's
Groene zones
Tuin

Staat:

Nieuwbouw

Marktprijstatistieken voor Chalet adosado en venta en calle Huelga, 6

Kaart

Madrid, Ajalvir Naar deze locatie gaan
Laat een beoordeling achter over Chalet adosado en venta en calle Huelga, 6
0
0 beoordelingen
1
0% (0)
2
0% (0)
3
0% (0)
4
0% (0)
5
0% (0)
Aqua Dorf M-50
Wooncomplex
Uitverkopen
Contact adverteerder

Neem voor meer informatie contact op met het platform

REF: 3278

Beoordelingen over Chalet adosado en venta en calle Huelga, 6
Loading...

No reviews have been left for this object yet

Dichtstbijzijnde woningen

Verken nabijgelegen eigendommen die we hebben ontdekt in de buurt van deze locatie

Pareados en Venta en Calle Río Guadiana s/n, Paracuellos de Jarama

Madrid, Paracuellos de Jarama, Miramadrid, Calle Río Guadiana s/n
779 900 €

·26 chalets en Paracuellos de Jarama, Miramadrid. A 15 minutos en coche de Madri...

0
0 beoordelingen

Pareados en Venta en Calle Río Guadiana s/n, Paracuellos de Jarama

Madrid, Paracuellos de Jarama, Miramadrid, Calle Río Guadiana s/n
799 900 €

·26 chalets en Paracuellos de Jarama, Miramadrid. A 15 minutos en coche de Madri...

0
0 beoordelingen

Pareados en Venta en Calle Río Guadiana s/n, Paracuellos de Jarama

Madrid, Paracuellos de Jarama, Miramadrid, Calle Río Guadiana s/n
799 900 €

·26 chalets en Paracuellos de Jarama, Miramadrid. A 15 minutos en coche de Madri...

0
0 beoordelingen

Pareados en Venta en Calle Río Guadiana s/n, Paracuellos de Jarama

Madrid, Paracuellos de Jarama, Miramadrid, Calle Río Guadiana s/n
819 900 €

·26 chalets en Paracuellos de Jarama, Miramadrid. A 15 minutos en coche de Madri...

0
0 beoordelingen

Pareados en Venta en Calle Río Guadiana s/n, Paracuellos de Jarama

Madrid, Paracuellos de Jarama, Miramadrid, Calle Río Guadiana s/n
799 900 €

·26 chalets en Paracuellos de Jarama, Miramadrid. A 15 minutos en coche de Madri...

0
0 beoordelingen

Pareados en Venta en Calle Río Guadiana s/n, Paracuellos de Jarama

Madrid, Paracuellos de Jarama, Miramadrid, Calle Río Guadiana s/n
784 900 €

·26 chalets en Paracuellos de Jarama, Miramadrid. A 15 minutos en coche de Madri...

0
0 beoordelingen

Pareados en Venta en Calle Río Guadiana s/n, Paracuellos de Jarama

Madrid, Paracuellos de Jarama, Miramadrid, Calle Río Guadiana s/n
784 900 €

·26 chalets en Paracuellos de Jarama, Miramadrid. A 15 minutos en coche de Madri...

0
0 beoordelingen

Adosados en Venta, Ajalvir

Madrid, Ajalvir
405 000 €

CHALETS DE OBRA NUEVA CON JARDÍN Y GARAJE PRIVADO. URBANIZACIÓN PRIVADA CON PISC...

0
0 beoordelingen

Adosados en Venta, Ajalvir

Madrid, Ajalvir
415 000 €

CHALETS DE OBRA NUEVA CON JARDÍN Y GARAJE PRIVADO. URBANIZACIÓN PRIVADA CON PISC...

0
0 beoordelingen

We gebruiken onze eigen cookies en die van derden om het gebruik van de website te analyseren en je advertenties te tonen die zijn afgestemd op je voorkeuren, op basis van een profiel dat is gemaakt op basis van je browsegedrag (bijvoorbeeld bezochte pagina's). Meer informatie. Accepteer je cookies?