Verkoop van een geschakelde woning in Calle San Fernando, 1 , Arroyomolinos

Madrid, Arroyomolinos, Las Castañeras - Bulevar, Calle San Fernando, 1
Uitverkopen
Beoordeling achterlaten
Tussenwoningen Type eigendom
2024 Opleveringsjaar
228 m² gebouwde m2
3 Badkamers
4 Slaapkamers
3 Planta
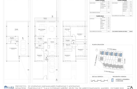
Chalets pareados y adosados con suelo refrigerado y calefactado por aerotermia, ventanas con vidrios bajo emisivos y garaje en planta sótano con cuarto lavadero. Fecha de entrega estimada Junio de 2024. Obras en curso. Con facilidades de pago.Cuentan con tres habitaciones más despacho o cuatro habitaciones, tres baños, cocina amueblada con horno, microondas y placa de inducción, comunicada con el salón por puerta corredera y salón amplio con acceso directo a la parcela sin escaleras. La construcción es de calidad, con ladrillo Blinker destonificado que requiere poco mantenimiento y suelo porcelánico en las estancias principales. Las ventanas son de PVC color gris antracita por fuera y blancas por dentro. La ubicación es excelente, entre la Calle Cádiz, San Fernando, Corcubión y la Avd. del Cantábrico, muy cerca del nuevo ambulatorio y de la zona de restaurantes y tiendas. La constructora tiene gran experiencia, nacida en 1971, y ha construido en Arroyomolinos: Villa Europa l y II, Los Altos del Pinar y en Navalcarnero: Las Terrazas del Pinar o el Pinar de Navalcarnero, l, II, III y IV. Las fotos adjuntas son de chalets pareados de la promoción Villa Europa Il. En la nueva promoción, los chalets pareados o adosados son similares, pero pueden haber algunas diferencias. Consulte los planos comerciales y la memoria de calidades para más información.

Kenmerken

Complex information

  • Wooncomplex
    Villa Europa III
  • Type eigendom
    Tussenwoningen

Projectinformatie / Werkstatus

  • Opleveringsjaar
    2024

Gegevens van het onroerend goed

  • Planta
    3
  • Slaapkamers
    4
  • Badkamers
    3
  • gebouwde m2
    228 m²
  • Type onroerend goed
    Nieuwbouw
  • Meubels
    Met meubels

Faciliteiten

Woonvoorzieningen:

Terraza

In gebouw:

Spa

Marktprijstatistieken voor Chalet pareado en venta en calle San Fernando, 1

Kaart

Madrid, Arroyomolinos, Las Castañeras - Bulevar, Calle San Fernando, 1 Naar deze locatie gaan
Laat een beoordeling achter over Chalet pareado en venta en calle San Fernando, 1
0
0 beoordelingen
1
0% (0)
2
0% (0)
3
0% (0)
4
0% (0)
5
0% (0)
Dorotea Hills
Villa Europa III
Wooncomplex
Uitverkopen
Contact adverteerder

Neem voor meer informatie contact op met het platform

REF: 24281

Beoordelingen over Chalet pareado en venta en calle San Fernando, 1
Loading...

No reviews have been left for this object yet

Dichtstbijzijnde woningen

Verken nabijgelegen eigendommen die we hebben ontdekt in de buurt van deze locatie

Adosados en Venta en Calle Estrella Polar s/n, Móstoles

Madrid, Móstoles, Sur, Calle Estrella Polar s/n
450 000 €

LICENCIA CONCEDIDA. OBRA INICIADADescubre tu nuevo chalet en Caelia III y disfru...

0
0 beoordelingen

Pareados en Venta en Calle Estrella Polar s/n, Móstoles

Madrid, Móstoles, Sur, Calle Estrella Polar s/n
525 000 €

LICENCIA CONCEDIDA. OBRA INICIADADescubre tu nuevo chalet en Caelia III y disfru...

0
0 beoordelingen

Adosados en Venta en Calle Estrella Polar s/n, Móstoles

Madrid, Móstoles, Sur, Calle Estrella Polar s/n
538 000 €

LICENCIA CONCEDIDA. OBRA INICIADADescubre tu nuevo chalet en Caelia III y disfru...

0
0 beoordelingen

Adosados en Venta en Calle Estrella Polar s/n, Móstoles

Madrid, Móstoles, Sur, Calle Estrella Polar s/n
478 000 €

LICENCIA CONCEDIDA. OBRA INICIADADescubre tu nuevo chalet en Caelia III y disfru...

0
0 beoordelingen

Adosados en Venta en Calle Estrella Polar s/n, Móstoles

Madrid, Móstoles, Sur, Calle Estrella Polar s/n
475 000 €

LICENCIA CONCEDIDA. OBRA INICIADADescubre tu nuevo chalet en Caelia III y disfru...

0
0 beoordelingen

Obra nueva Móstoles en Móstoles

Madrid, Móstoles, Sur, Calle Geminis s/n
490 000 €

TRINOSA pone a la venta su nueva promoción de VENTA LIBRE Y PRECIO CERRADO, de v...

0
0 beoordelingen

Obra nueva Móstoles en Móstoles

Madrid, Móstoles, Sur, Calle Geminis s/n
560 000 €

TRINOSA pone a la venta su nueva promoción de VENTA LIBRE Y PRECIO CERRADO, de v...

0
0 beoordelingen

Obra nueva Móstoles en Móstoles

Madrid, Móstoles, Sur, Calle Geminis s/n
520 000 €

TRINOSA pone a la venta su nueva promoción de VENTA LIBRE Y PRECIO CERRADO, de v...

0
0 beoordelingen

Obra nueva Móstoles en Móstoles

Madrid, Móstoles, Sur, Calle Geminis s/n
530 000 €

TRINOSA pone a la venta su nueva promoción de VENTA LIBRE Y PRECIO CERRADO, de v...

0
0 beoordelingen
Bel

We gebruiken onze eigen cookies en die van derden om het gebruik van de website te analyseren en je advertenties te tonen die zijn afgestemd op je voorkeuren, op basis van een profiel dat is gemaakt op basis van je browsegedrag (bijvoorbeeld bezochte pagina's). Meer informatie. Accepteer je cookies?