Spanje Nieuwe bouw Spanje Nieuwe bouw Madrid Nieuwe bouw Galapagar Residencial La Colonia Casa o chalet independiente en venta en calle de los pozos s/n

Verkoop van onafhankelijke chalet in Calle de los pozos s/n, Galapagar

Madrid, Galapagar, Parquelagos - Puente Nuevo, Calle de los pozos s/n
Uitverkopen
Beoordeling achterlaten
Vrijstaand chalet Type eigendom
309 m² gebouwde m2
3 Badkamers
3 Slaapkamers
Vloerverwarming Verwarming
2 Planta
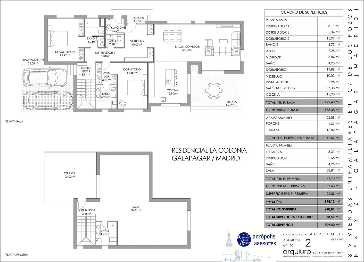
6 chalets de obra nueva en la mejor zona de Galapagar; junto a la Colonia de Torrelodones, rodeado de naturaleza en un entorno inmejorable, con excelentes vistas.Cada chalet cuenta con una superficie construida total de 309,40 m2, incluidos porches y aparcamiento; PLANTA BAJA: •Salón amplio con acceso directo a la terraza.•Cocina también con acceso directo a la terraza.•Dormitorio principal con vestidor y baño en suite.•Dormitorio con baño en suite.•Aseo de cortesía.•Vestíbulo.•Cuarto de instalaciones de aerotermia y recuperador de calor.•Porche.•Terraza.•Aparcamiento para 2 coches.PLANTA PRIMERA:•Amplio estudio de 60 m2 (se puede adaptar para 2 ó 3 dormitorios o un apartamento)•Baño completo.•Amplia terraza con excelentes vistas.Construcción de primera calidad con el mejor aislamiento del mercado, suelo radiante con aerotermia para calefacción y refrigeración, sistema de ventilación mecánica con recuperación de calor, ventanas con triple cristal, suelo porcelanico, paredes lisas, amplios armarios empotrados, etc lo que garantiza un confort y ahorro energético superior al 70% comparado con una construcción convencional. Calificación energética A.La planta primera se puede adaptar para acomodar 2 ó 3 dormitorios más o bien hacer una zona independiente ya que el acceso aunque está comunicado con la planta baja se puede dejar totalmente separado.Aprovecha esta oportunidad para adquirir un chalet independiente de obra nueva en parcela superior a 600 a 900 m2 que se elegirán en el orden de reserva.

Kenmerken

Complex information

  • Wooncomplex
    Residencial La Colonia
  • Type eigendom
    Vrijstaand chalet

Kwaliteitsoverzicht

  • Verwarming
    Vloerverwarming

Gegevens van het onroerend goed

  • Planta
    2
  • Slaapkamers
    3
  • Badkamers
    3
  • gebouwde m2
    309 m²
  • Type onroerend goed
    Nieuwbouw

Energiecertificering

  • Energielabel
    A

Faciliteiten

Woonvoorzieningen:

Inbouwkasten
Verwarming
Terraza

Staat:

Nieuwbouw

Marktprijstatistieken voor Casa o chalet independiente en venta en calle de los pozos s/n

Kaart

Madrid, Galapagar, Parquelagos - Puente Nuevo, Calle de los pozos s/n Naar deze locatie gaan
Laat een beoordeling achter over Casa o chalet independiente en venta en calle de los pozos s/n
0
0 beoordelingen
1
0% (0)
2
0% (0)
3
0% (0)
4
0% (0)
5
0% (0)
Uitverkopen
Contact adverteerder

Neem voor meer informatie contact op met het platform

REF: 9604

Beoordelingen over Casa o chalet independiente en venta en calle de los pozos s/n
Loading...

No reviews have been left for this object yet

Dichtstbijzijnde woningen

Verken nabijgelegen eigendommen die we hebben ontdekt in de buurt van deze locatie

Chalet independiente en Venta, Torrelodones

Madrid, Torrelodones, Los Robles
1 225 000 €

Obra nueva de 4 exclusivas viviendas unifamiliares en la Urbanización Los Robles...

0
0 beoordelingen

Obra nueva La Quinta de Torrelodones , Tablanca Del Nansa en Torrelodones

Madrid, Torrelodones, Kolonia, Calle Vicente Téllez & C. Miralprado, 9
1 280 000 €

OBRAS INICIADAS.CONSTRUCTORA: RICO CONSTRUCCIONES S. A.OBRA FINANCIADA POR BANCO...

0
0 beoordelingen

Obra nueva La Quinta de Torrelodones , Tablanca Del Nansa en Torrelodones

Madrid, Torrelodones, Kolonia, Calle Vicente Téllez & C. Miralprado, 9
1 210 000 €

OBRAS INICIADAS.CONSTRUCTORA: RICO CONSTRUCCIONES S. A.OBRA FINANCIADA POR BANCO...

0
0 beoordelingen

Obra nueva La Quinta de Torrelodones , Tablanca Del Nansa en Torrelodones

Madrid, Torrelodones, Kolonia, Calle Vicente Téllez & C. Miralprado, 9
1 250 000 €

OBRAS INICIADAS.CONSTRUCTORA: RICO CONSTRUCCIONES S. A.OBRA FINANCIADA POR BANCO...

0
0 beoordelingen

Obra nueva La Quinta de Torrelodones , Tablanca Del Nansa en Torrelodones

Madrid, Torrelodones, Kolonia, Calle Vicente Téllez & C. Miralprado, 9
1 290 000 €

OBRAS INICIADAS.CONSTRUCTORA: RICO CONSTRUCCIONES S. A.OBRA FINANCIADA POR BANCO...

0
0 beoordelingen

Obra nueva Las Rozas en Las Rozas de Madrid

Madrid, Las Rozas de Madrid, Golfclub
3 900 000 €

Exclusiva villa en Engel & Völkers presenta esta magnífica villa de obra nueva,...

0
0 beoordelingen

Chalet independiente en Venta en Calle Pascual Saorin, 4, Torrelodones

Madrid, Torrelodones, Las Marías, Calle Pascual Saorin, 4
1 800 000 €

Kronos Homes presenta KREST, diseñada por el prestigioso estudio de arquitectura...

0
0 beoordelingen

Chalet independiente en Venta en Calle Pascual Saorin, 4, Torrelodones

Madrid, Torrelodones, Las Marías, Calle Pascual Saorin, 4
1 165 000 €

Kronos Homes presenta KREST, diseñada por el prestigioso estudio de arquitectura...

0
0 beoordelingen

Chalet independiente en Venta en Calle Marsil, 89, Las Rozas de Madrid

Madrid, Las Rozas de Madrid, Golfclub, Calle Marsil, 89
3 900 000 €

GILMAR vende Chalet Independiente para entrar a vivir con licencia aprobada en C...

0
0 beoordelingen

We gebruiken onze eigen cookies en die van derden om het gebruik van de website te analyseren en je advertenties te tonen die zijn afgestemd op je voorkeuren, op basis van een profiel dat is gemaakt op basis van je browsegedrag (bijvoorbeeld bezochte pagina's). Meer informatie. Accepteer je cookies?