Spanje Stedelijk Spanje Stedelijk Malaga Stedelijk Manilva Terreno en calle Tubalitas, 129

Terreno en calle Tubalitas, 129

Malaga, Manilva, Chullera, Calle Tubalitas, 129
249 950 €
Beoordeling achterlaten
Stedelijk Type eigendom
849 m² Oppervlakte van het terrein

Onroerend goed in Terreno en calle Tubalitas, 129

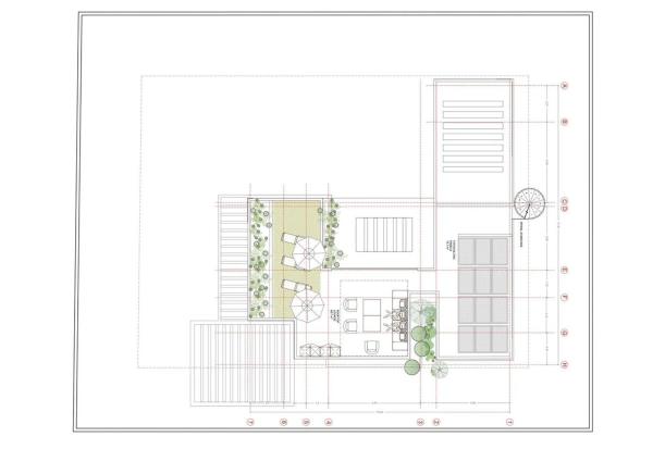
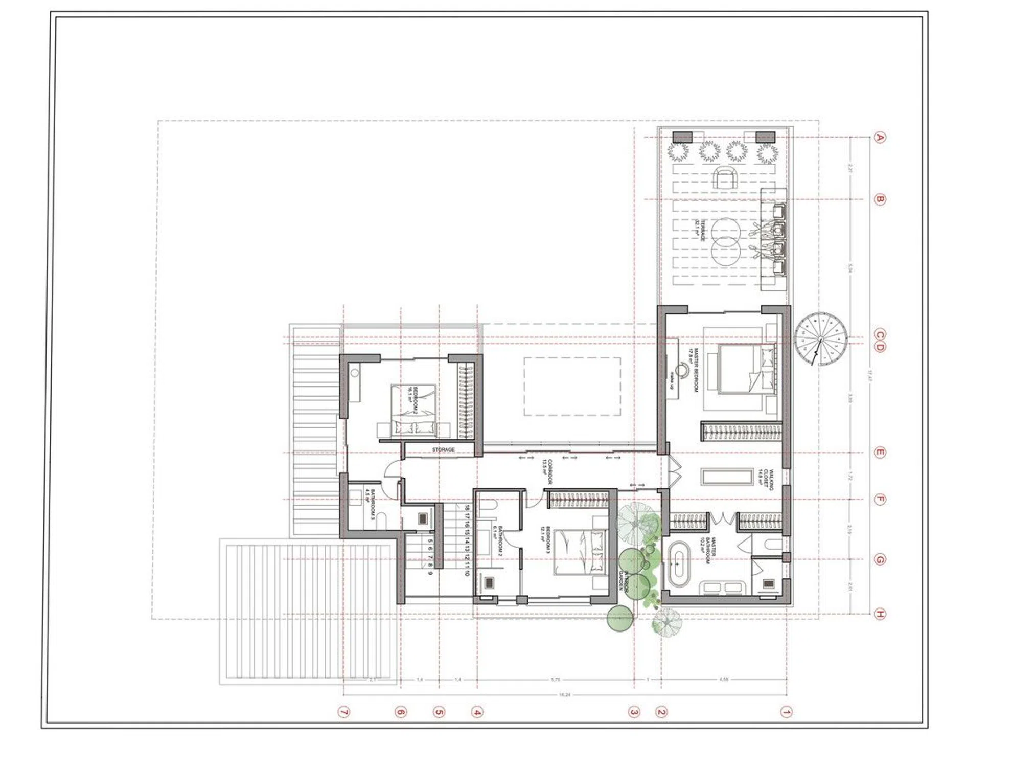
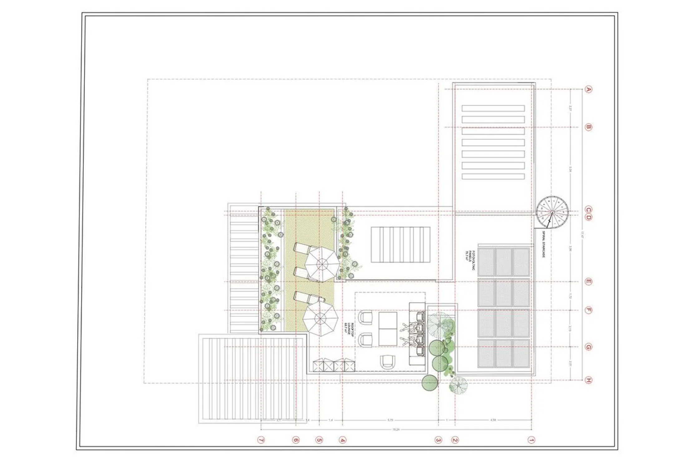
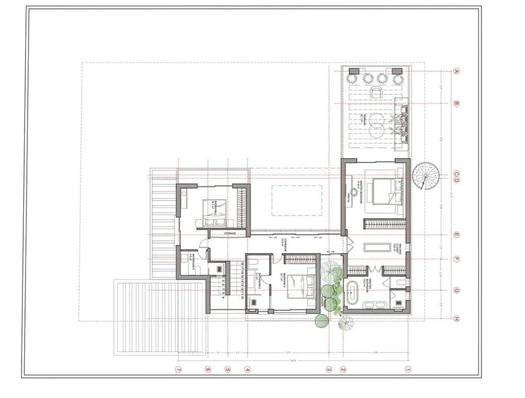
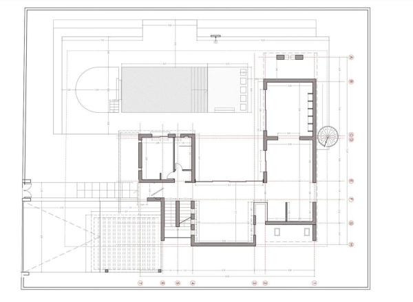
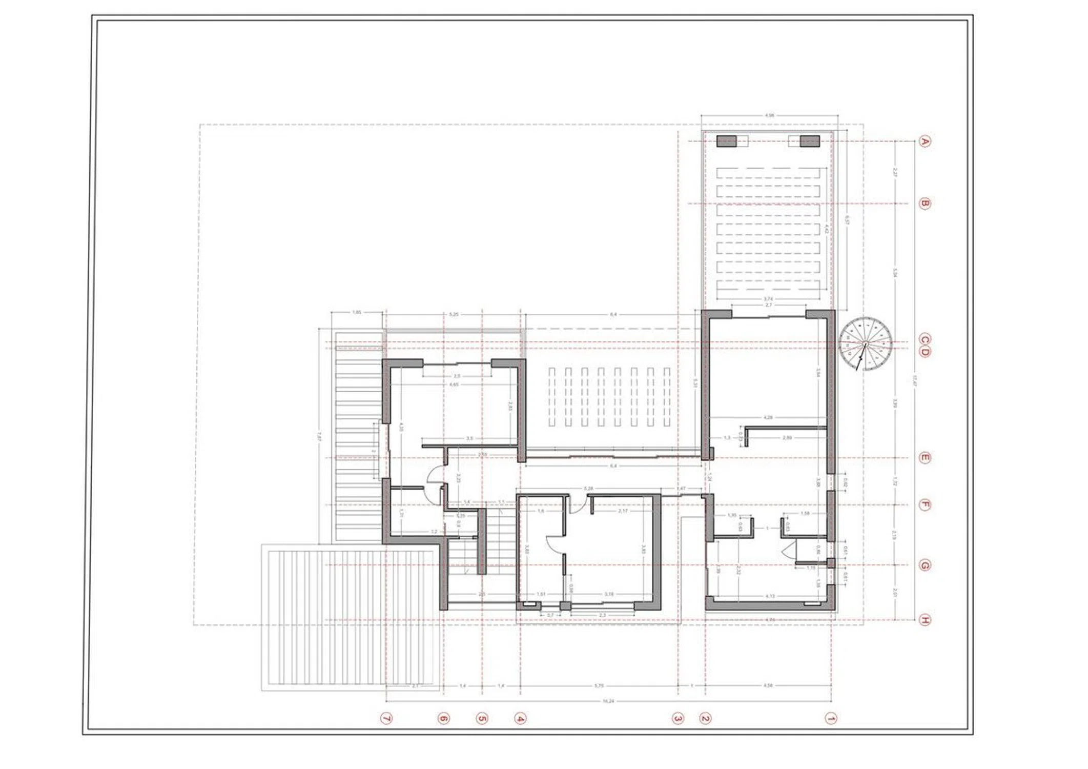
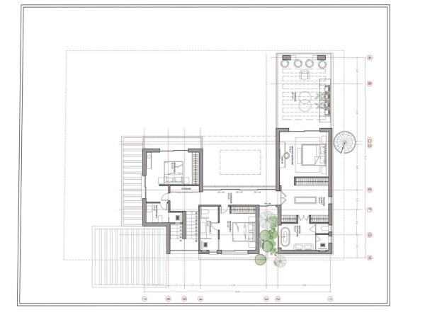
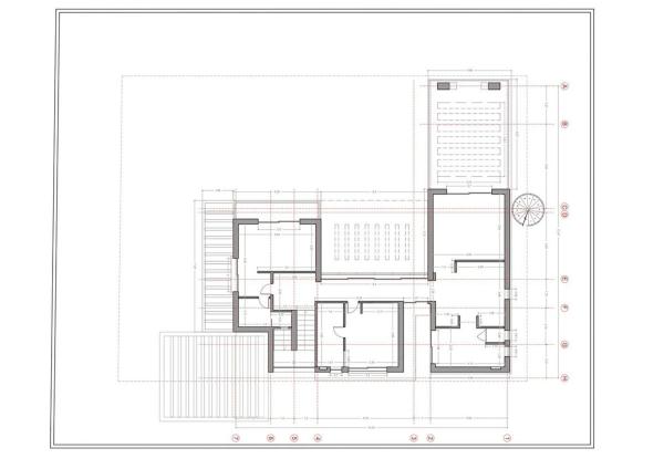
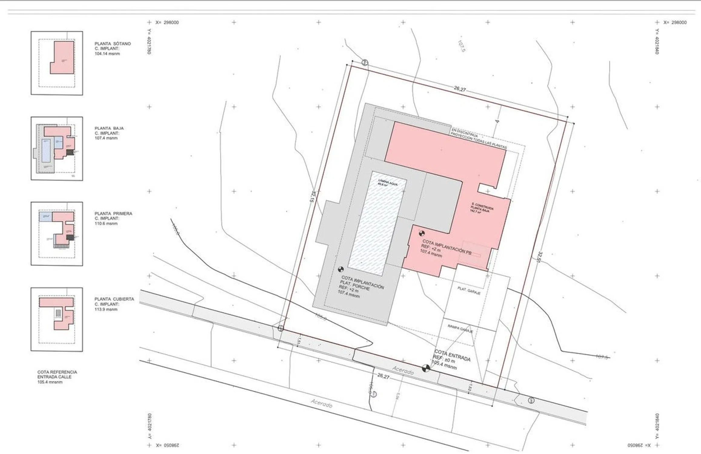
Parcela bouwgrond met project in vergunning in de prachtige kuststreek. De vergunning werd verleend in november 2023. Deze prachtige zuidoostelijk georiënteerde kavel heeft een prachtig uitzicht op zee en ligt op minder dan 500 meter van het strand. Het bouwpotentieel van het land bedraagt een royale 33%, waardoor naast de 280 vierkante meter die bovengronds kan worden gebouwd, ook een enorme kelder kan worden gerealiseerd. Vanwege de helling van het terrein kan deze kelder worden gebouwd met belangrijke natuurlijke lichtbronnen.

Voordelen van een nieuw gebouw Terreno en calle Tubalitas, 129

De westelijke Costa del Sol wordt steeds meer de favoriete plek voor veeleisende kopers die willen verhuizen naar de indrukwekkende zuidkust van Spanje, maar die op zoek zijn naar een authentiekere en meer ontspannen ervaring. Binnen de provincie Málaga, maar zeer dicht bij de grens met de provincie Cádiz, profiteert dit deel van de Costa del Sol van zijn grotere nabijheid tot de Atlantische Oceaan, wat zijn stranden veel aantrekkelijker maakt en het zeewater veel koeler.

Leven in de stad Manilva

Kenmerken

Complex information

  • Type eigendom
    Stedelijk

Gegevens van het onroerend goed

  • Type onroerend goed
    Tweedehands

Oppervlakten

  • Oppervlakte van het terrein
    849 m²

Base

Faciliteiten

Uitzichten:

Uitzichten op zee

Extra kenmerken:

Bouwgrond

Marktprijstatistieken voor Terreno en calle Tubalitas, 129

Kaart

Malaga, Manilva, Chullera, Calle Tubalitas, 129 Naar deze locatie gaan
Laat een beoordeling achter over Terreno en calle Tubalitas, 129
0
0 beoordelingen
1
0% (0)
2
0% (0)
3
0% (0)
4
0% (0)
5
0% (0)
JONES IN MARBELLA
249 950 €
Contact adverteerder

Neem voor meer informatie contact op met het platform

REF: 243100

Beoordelingen over Terreno en calle Tubalitas, 129
Loading...

No reviews have been left for this object yet

Dichtstbijzijnde woningen

Verken nabijgelegen eigendommen die we hebben ontdekt in de buurt van deze locatie

Terreno en calle Tubalitas, 7

Malaga, Manilva, Chullera, Calle Tubalitas, 7
460 000 €

Indrukwekkend perceel met prachtige uitzichten op zee in La Paloma, Manilva. Kla...

0
0 beoordelingen

Terreno en calle Picasso

Malaga, Manilva, San Luis de Sabinillas, Calle Picasso
620 000 €

Was je op zoek naar een plek om te bouwen of te investeren? Hier is het perfecte...

0
0 beoordelingen

Terreno en Manilva

Malaga, Manilva, Manilva, Manilva
1 176 000 €

Onroerend goed in Terreno en Manilva Parcela met panoramisch uitzicht op zee, ge...

0
0 beoordelingen

Terreno en calle del Granate, 11

Malaga, Manilva, El Castillo, Calle del Granate, 11
1 200 000 €

Ontdek een unieke investeringsmogelijkheid in het hart van Manilva! Deze 5 exclu...

0
0 beoordelingen

Terreno en calle Tubalitas

Malaga, Manilva, Chullera, Calle Tubalitas
249 950 €

Onroerend goed in Terreno en calle Tubalitas Een stedelijk terrein met uitzonde...

0
0 beoordelingen

Terreno en calle Tubalitas, 20

Malaga, Manilva, Chullera, Calle Tubalitas, 20
2 250 000 €

Onroerend goed in Terreno en calle Tubalitas, 20 Parcela unifamiliar met prachti...

0
0 beoordelingen

Terreno en calle Cristobal Morales, 9

Malaga, Manilva, Haven van de Hertogin, Calle Cristobal Morales, 9
340 000 €

Onroerend goed in Terreno en calle Cristobal Morales, 9 Er is een stedelijk perc...

0
0 beoordelingen

Terreno en Manilva

Malaga, Manilva, Manilva, Manilva
265 000 €

Onroerend goed in Terreno en Manilva Een grote kavel nabij het dorp Manilva. Dic...

0
0 beoordelingen

Terreno en Chullera

Malaga, Manilva, Chullera, Chullera
1 450 000 €

Te koop: perceel voor residentieel gebruik en vrijstaande eengezinswoning in de...

0
0 beoordelingen
Bel

We gebruiken onze eigen cookies en die van derden om het gebruik van de website te analyseren en je advertenties te tonen die zijn afgestemd op je voorkeuren, op basis van een profiel dat is gemaakt op basis van je browsegedrag (bijvoorbeeld bezochte pagina's). Meer informatie. Accepteer je cookies?