Terreno en Barrio Guadalmina Baja

Malaga, Marbella, San Pedro de Alcántara, Barrio Guadalmina Baja
1 999 900 €
Beoordeling achterlaten
Stedelijk ontwikkelbaar Type eigendom
2 000 m² Oppervlakte van het terrein
3 Bebouwbare percelen
718 Bouwvolume
Residentieel Gebruik van perceel
```

Onroerend goed in Terreno en Barrio Guadalmina Baja

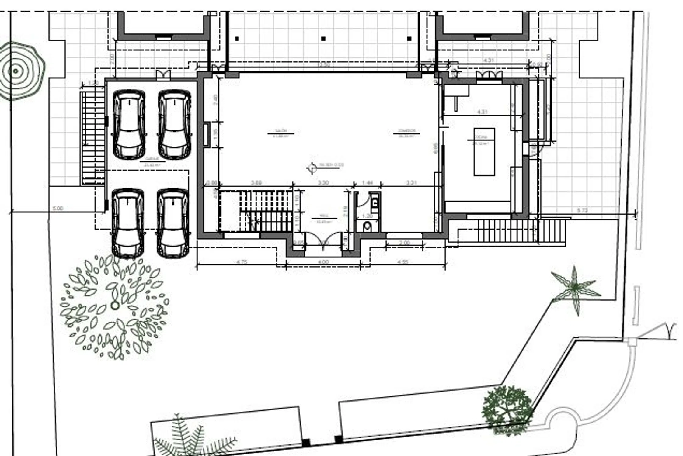
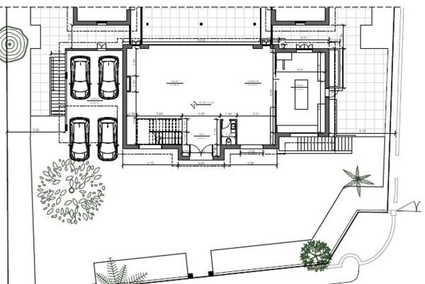
Parcela - Indrukwekkend terrein met goedgekeurd bouwproject en snel verkrijgbare vergunning - Uniekheid! Gelegen in een populaire woonwijk voor privélandhuizen dicht bij het strand, biedt dit indrukwekkende bouwterrein een afmeting van 2000 m², volledig vlakke grond met weelderige tuinen en ongeëvenaarde privacy. Met uitstekende toegankelijkheid en een bebouwbaarheidspercentage van ca. 25%, kan dit perceel de perfecte locatie zijn voor een nieuwe woning in een natuurlijke omgeving dicht bij het strand, in een zeer gewild gebied voor individuele landhuizen.

Voordelen van een nieuw gebouw Terreno en Barrio Guadalmina Baja

Inclusief een al goedgekeurd bouwproject voor een eigentijdse villa, verdeeld over 3 verdiepingen, inclusief kelder en zwembad, wat betekent dat de bouwvergunning in korte tijd kan worden verkregen. Genietend van een zuidelijke oriëntatie is dit een geweldige kans om een uitgestrekt terrein te bemachtigen in een rustige zone van een veelgevraagde urbanisatie die internationale scholen, tennis- en golfclubs, restaurants en zandstranden biedt!

Leven in de stad Marbella

Gebied: West Marbella Terras(sen): (project) m² Zwembad: Ja (project) Airconditioning: Ja (project) Verwarming: Vloerverwarming (project) Keuken: Volledig uitgerust (project) Garage: Dubbele garage (project) Uitzicht: op de tuin Oriëntatie: Zuid, Zuidwest Bouwjaar: ca. 2024 I.B.I. / Gemeenschap: Actuele informatie op aanvraag Extra's Ca. 25% bebouwbaarheid, goedgekeurd bouwproject inbegrepen, vergunning snel verkrijgbare, op wandelafstand van stranden en de sportclub met olympisch zwembad, nabijgelegen internationale scholen en golfbanen, 5 minuten rijden van Puerto Banús of de stad San Pedro.

```

Kenmerken

Complex information

  • Type eigendom
    Stedelijk ontwikkelbaar

Gegevens van het onroerend goed

  • Type onroerend goed
    Tweedehands

Oppervlakten

  • Oppervlakte van het terrein
    2 000 m²

Base

  • Minimale verkoopperceel
    2 000 m²
  • Bebouwbare percelen
    3
  • Bouwvolume
    718
  • Gebruik van perceel
    Residentieel

Faciliteiten

Extra kenmerken:

Bouwgrond

Marktprijstatistieken voor Terreno en Barrio Guadalmina Baja

Kaart

Malaga, Marbella, San Pedro de Alcántara, Barrio Guadalmina Baja Naar deze locatie gaan
Laat een beoordeling achter over Terreno en Barrio Guadalmina Baja
0
0 beoordelingen
1
0% (0)
2
0% (0)
3
0% (0)
4
0% (0)
5
0% (0)
Residencias Lujosas Vitalux S.L.
1 999 900 €
Contact adverteerder

Neem voor meer informatie contact op met het platform

REF: 244392

Beoordelingen over Terreno en Barrio Guadalmina Baja
Loading...

No reviews have been left for this object yet

Dichtstbijzijnde woningen

Verken nabijgelegen eigendommen die we hebben ontdekt in de buurt van deze locatie

Terreno en venta en San Pedro Pueblo

Malaga, Marbella, San Pedro de Alcántara
975 000 €

Nueva parcela de 1.300m2 a la venta en la cotizada zona de Altavista Baja, cerca...

0
0 beoordelingen

Terreno en Barrio Guadalmina Alta

Malaga, Marbella, San Pedro de Alcántara, Barrio Guadalmina Alta
3 150 000 €

Onroerend goed in Terreno en Barrio Guadalmina Alta Er wordt een ruime stedelijk...

0
0 beoordelingen

Terreno en calle Gladiolo, 19 -1

Malaga, Estepona, Benamara - Atalaya, Calle Gladiolo, 19 -1
3 150 000 €

Onroerend goed in Terreno en calle Gladiolo, 19 -1 Dit betreft twee percelen die...

0
0 beoordelingen

Terreno en calle Toledo, 132

Malaga, Marbella, San Pedro de Alcántara, Calle Toledo, 132
400 000 €

Onroerend goed in Terreno en calle Toledo, 132 Perceel bestemd voor bebouwing,...

0
0 beoordelingen

Terreno en C. Clarin

Malaga, Estepona, Benamara - Atalaya, C. Clarin
550 000 €

Onroerend goed in Terreno en C. Clarin Met een uitzonderlijke ligging, wordt dit...

0
0 beoordelingen

Terreno en Montemayor-Marbella Club

Malaga, Benahavís, Montemayor-Marbella Club, Montemayor-Marbella Club
6 400 000 €

Onroerend goed in Terreno en Montemayor-Marbella Club Een unieke kans om een vo...

0
0 beoordelingen

Terreno en Los Arqueros-Puerto del Almendro

Malaga, Benahavís, Los Arqueros-Puerto del Almendro, Los Arqueros-Puerto del Almendro
795 000 €

Onroerend goed in Terreno en Los Arqueros-Puerto del Almendro Villa de luxe in B...

0
0 beoordelingen

Terreno en Urbanizacion el Herrojo, 129

Malaga, Benahavís, La Quinta, Urbanizacion el Herrojo, 129
790 000 €

Onroerend goed in Terreno en Urbanizacion el Herrojo, 129 Terreno Urbano Exclus...

0
0 beoordelingen

Terreno en La Quinta

Malaga, Benahavís, La Quinta, La Quinta
1 180 000 €

Onroerend goed in Terreno en La Quinta Gelegen in het prestigieuze gebied van Re...

0
0 beoordelingen
Bel

We gebruiken onze eigen cookies en die van derden om het gebruik van de website te analyseren en je advertenties te tonen die zijn afgestemd op je voorkeuren, op basis van een profiel dat is gemaakt op basis van je browsegedrag (bijvoorbeeld bezochte pagina's). Meer informatie. Accepteer je cookies?