Terreno en calle de los Alcotanes, 97 -15

Malaga, Marbella, Elviria-Cabopino, Calle de los Alcotanes, 97 -15
800 000 €
Beoordeling achterlaten
Stedelijk ontwikkelbaar Type eigendom
560 m² Oppervlakte van het terrein
Fruitbomen Teelten

Onroerend goed in Terreno en calle de los Alcotanes, 97 -15

Te koop in Carib Playa, Marbesa: een perceel met project en vergunning, klaar voor de bouw van een prachtige villa met modern ontwerp. Met een oppervlakte van 560 m² is dit perceel een geweldige investeringsmogelijkheid, aangezien alle gemeentelijke procedures zijn afgehandeld en de Licentie van Grootschalige Bouw is verleend. U hoeft dus niet twee jaar te wachten op de licentie om te beginnen met de bouw van uw nieuwe huis in Marbella.

Voordelen van een nieuw gebouw Terreno en calle de los Alcotanes, 97 -15

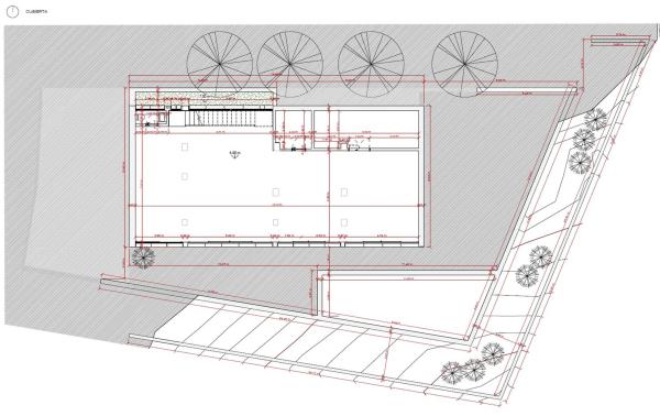
De geplande villa bestaat uit een open kelder met toilet, een hoofdverdieping met een grote woonkamer met uitzicht en een open keuken naar de eetkamer, evenals een gastentoilet. Het enorme terras verbindt de woonkamer en de eetkamer en biedt toegang tot het zwembad. Op de bovenverdieping bevindt zich de master bedroom met inloopkast en en-suite badkamer, evenals twee slaapkamers met gezamenlijke badkamer en een groot privéterras. De master bedroom heeft een eigen terras met prachtig uitzicht op zee. Als u overweegt om uw moderne huis te bouwen in het beste deel van Marbella, is dit uw kans om het binnen 14 maanden te voltooien.

Leven in de stad Marbella

Met meer dan 20 jaar ervaring en uitstekende resultaten in de nationale vastgoedsector, bieden wij altijd service aan onze klanten, van het zoeken naar een huis tot het laatste detail van de koop of huur. Bereik nieuwe hoogten met uw tweedehands eigendom in deze prachtige stad.

Kenmerken

Complex information

  • Type eigendom
    Stedelijk ontwikkelbaar

Gegevens van het onroerend goed

  • Type onroerend goed
    Tweedehands

Oppervlakten

  • Oppervlakte van het terrein
    560 m²

Base

  • Teelten
    Fruitbomen

Faciliteiten

Uitzichten:

Uitzichten op zee

Cultivo:

Voedselteelt

Plannen

Marktprijstatistieken voor Terreno en calle de los Alcotanes, 97 -15

Kaart

Malaga, Marbella, Elviria-Cabopino, Calle de los Alcotanes, 97 -15 Naar deze locatie gaan
Laat een beoordeling achter over Terreno en calle de los Alcotanes, 97 -15
0
0 beoordelingen
1
0% (0)
2
0% (0)
3
0% (0)
4
0% (0)
5
0% (0)
Quality Keys Marbella
800 000 €
Contact adverteerder

Neem voor meer informatie contact op met het platform

REF: 243476

Beoordelingen over Terreno en calle de los Alcotanes, 97 -15
Loading...

No reviews have been left for this object yet

Dichtstbijzijnde woningen

Verken nabijgelegen eigendommen die we hebben ontdekt in de buurt van deze locatie

Terreno en calle del Alce, 81 -13

Malaga, Marbella, Rio Real-Los Monteros, Calle del Alce, 81 -13
12 000 000 €

Er wordt een uitzonderlijke kans geboden om een terrein met groot ontwikkelingsp...

0
0 beoordelingen

Terreno en calle Tenerife, 436 -2

Malaga, Marbella, Elviria-Cabopino, Calle Tenerife, 436 -2
1 500 000 €

Perceel van 872 m² gelegen op enkele meters van de zee in Marbesa, een van de me...

0
0 beoordelingen

Terreno en Barrio El Rosario-Ricmar

Malaga, Marbella, Las Chapas-El Rosario, Barrio El Rosario-Ricmar
750 000 €

Onroerend goed in Terreno en Barrio El Rosario-Ricmar Perfecte locatie om het h...

0
0 beoordelingen

Terreno en Barrio Marbesa

Malaga, Marbella, Elviria-Cabopino, Barrio Marbesa
1 500 000 €

Onroerend goed in Terreno en Barrio Marbesa Een uitzonderlijke kans voor zowel i...

0
0 beoordelingen

Terreno en Trebol-santa Maria Golf, 10

Malaga, Marbella, Elviria-Cabopino, TREBOL-SANTA MARIA GOLF, 10
540 000 €

Zonder titels of specifieke namen te vermelden, presenteren we een uitzonderlijk...

0
0 beoordelingen

Terreno en calle Sirius-Riviera Sol F-2, 21

Malaga, Mijas, Riviera del Sol, Calle Sirius-Riviera Sol F-2, 21
730 000 €

Te koop: twee fantastische percelen samen in de urbanisatie in fase II, 568m² +...

0
0 beoordelingen

Terreno en paseo del Golf, 1

Malaga, Marbella, Elviria-Cabopino, Paseo del Golf, 1
513 840 €

Onroerend goed in Terreno en paseo del Golf, 1 Dit ruime perceel biedt een uniek...

0
0 beoordelingen

Terreno en Barrio Reserva de Marbella

Malaga, Marbella, Elviria-Cabopino, Barrio Reserva de Marbella
800 000 €

Onroerend goed in Terreno en Barrio Reserva de Marbella Parcela commercieel na...

0
0 beoordelingen

Terreno en La Mairena

Malaga, Ojén, La Mairena, La Mairena
6 448 800 €

Fantastische investeringsperceel van 15.399 m² om 9 villa's te bouwen in Terreno...

0
0 beoordelingen
Bel

We gebruiken onze eigen cookies en die van derden om het gebruik van de website te analyseren en je advertenties te tonen die zijn afgestemd op je voorkeuren, op basis van een profiel dat is gemaakt op basis van je browsegedrag (bijvoorbeeld bezochte pagina's). Meer informatie. Accepteer je cookies?