Terreno en Barrio Casco Antiguo

Malaga, Marbella, Marbella Pueblo, Barrio Casco Antiguo
535 000 €
Beoordeling achterlaten
Stedelijk Type eigendom
123 m² Oppervlakte van het terrein
Naranjos Teelten
Residentieel Gebruik van perceel

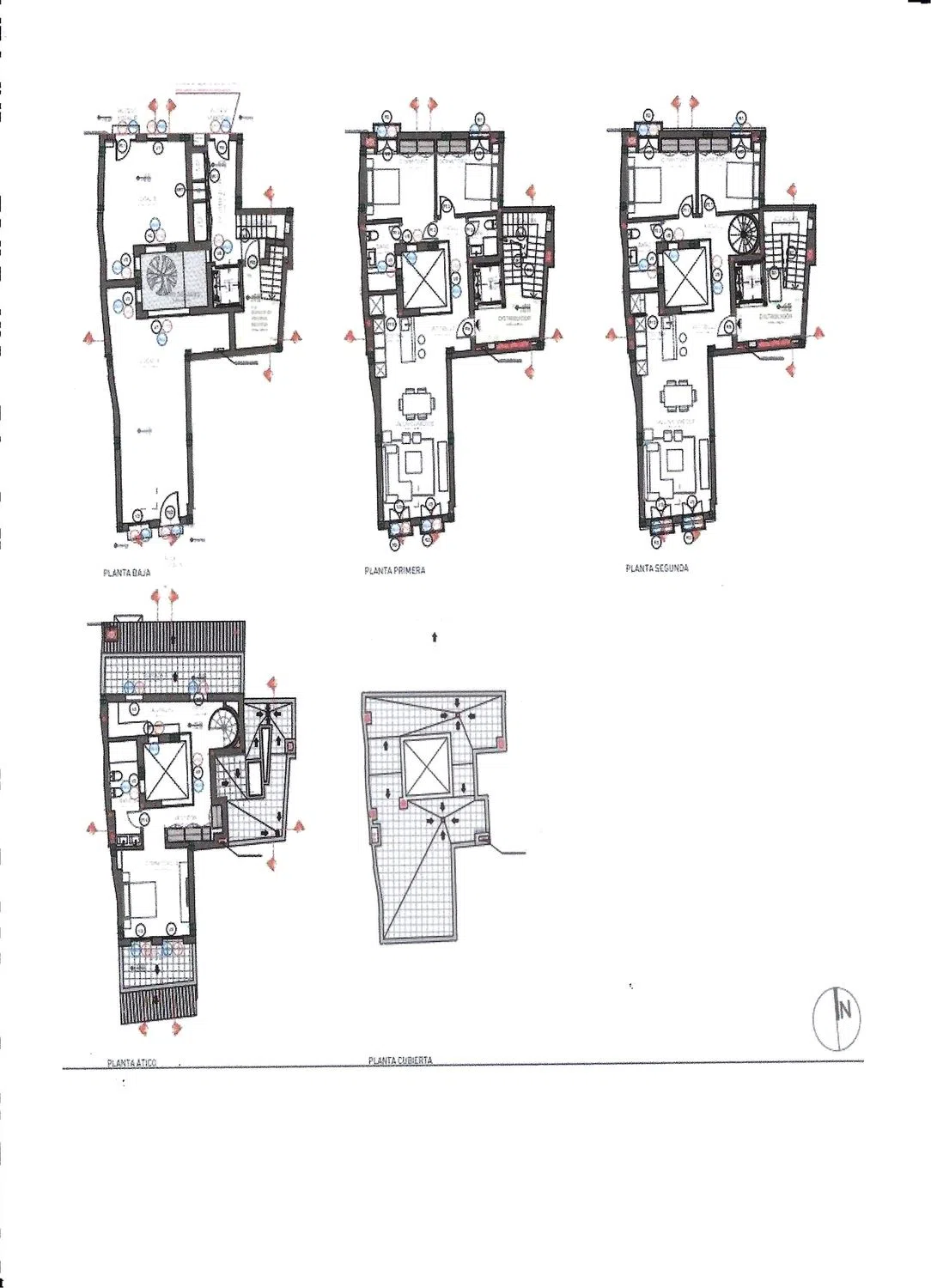
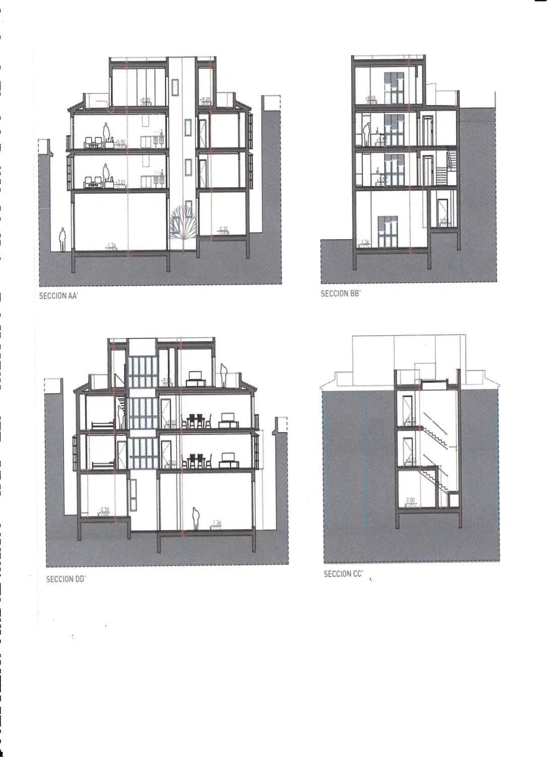
Unieke kans in het hart van het oude centrum van Marbella! Dit perceel, met een totale oppervlakte van 123 m² en een bouwmogelijkheid van ongeveer 400 m², is ideaal voor wie wil investeren in een van de meest emblematische delen van de stad. Met een geldige vergunning voorziet het project in de bouw van een gebouw met vier verdiepingen met lift, bestaande uit twee commerciële ruimtes en twee moderne appartementen. Het eerste appartement biedt 2 slaapkamers en 2 badkamers, beide met charmante balkons die uitkijken op een rustige voetgangersstraat. Het duplex penthouse beschikt over 3 slaapkamers en 2 badkamers, evenals ruime terrassen die perfect zijn om te genieten van het mediterrane klimaat. De locatie is onovertroffen, op een steenworp afstand van het iconische plein van Los Naranjos en omringd door de rijke geschiedenis en cultuur die Marbella kenmerkt. Dit stedelijke perceel is een juweel voor diegenen die een hoogbouwresidentieel project willen ontwikkelen in een bevoorrechte omgeving. Mis de kans niet om deel uit te maken van de levendige stedelijke kern van Marbella, waar traditie en moderniteit samenkomen om een unieke levensstijl te bieden. Neem contact met ons op voor meer informatie en maak uw visie werkelijkheid op deze exclusieve locatie!

Kenmerken

Complex information

  • Type eigendom
    Stedelijk

Gegevens van het onroerend goed

  • Type onroerend goed
    Tweedehands

Oppervlakten

  • Oppervlakte van het terrein
    123 m²

Base

  • Teelten
    Naranjos
  • Gebruik van perceel
    Residentieel

Faciliteiten

Extra kenmerken:

Bouwgrond

Plannen

Marktprijstatistieken voor Terreno en Barrio Casco Antiguo

Kaart

Malaga, Marbella, Marbella Pueblo, Barrio Casco Antiguo Naar deze locatie gaan
Laat een beoordeling achter over Terreno en Barrio Casco Antiguo
0
0 beoordelingen
1
0% (0)
2
0% (0)
3
0% (0)
4
0% (0)
5
0% (0)
Marbella property box
535 000 €
Contact adverteerder

Neem voor meer informatie contact op met het platform

REF: 243045

Beoordelingen over Terreno en Barrio Casco Antiguo
Loading...

No reviews have been left for this object yet

Dichtstbijzijnde woningen

Verken nabijgelegen eigendommen die we hebben ontdekt in de buurt van deze locatie

Terreno en calle Teba s/n

Malaga, Marbella, Nagüeles-Milla de Oro, Calle Teba s/n
3 700 000 €

Ontdek een exclusieve kans op de prestigieuze Gouden Mijl van Marbella met dit u...

0
0 beoordelingen

Terreno en avenida del Norte

Malaga, Marbella, Nueva Andalucía, Avenida del Norte
2 800 000 €

Prime Locatie | Zeezicht | Klaar om te Bouwen | Puur Luxe We presenteren twee ui...

0
0 beoordelingen

Terreno en calle Buitrago

Malaga, Marbella, Marbella Pueblo, Calle Buitrago
3 300 000 €

Dit betreft de verkoop van NPL in de veilingfase, met een totale schuld van 6.40...

0
0 beoordelingen

Terreno en Barrio Valdeolletas-Las Cancelas-Xarblanca

Malaga, Marbella, Marbella Pueblo, Barrio Valdeolletas-Las Cancelas-Xarblanca
1 195 000 €

Perceel van 1.493 m² op een paar minuten van het centrum van Marbella We bieden...

0
0 beoordelingen

Terreno en Barrio Casco Antiguo

Malaga, Marbella, Marbella Pueblo, Barrio Casco Antiguo
16 500 000 €

Gefeliciteerd, u heeft een van de beste kansen gevonden voor de verkoop van perc...

0
0 beoordelingen

Terreno en avenida Don Jaime de Mora y Aragon, 2 j

Malaga, Marbella, Nagüeles-Milla de Oro, Avenida Don Jaime de Mora y Aragon, 2 J
8 500 000 €

Onroerend goed in Terreno en avenida Don Jaime de Mora y Aragon, 2 j Aanbod van...

0
0 beoordelingen

Terreno en calle Jubrique

Malaga, Marbella, Nagüeles-Milla de Oro, Calle Jubrique
3 500 000 €

Ontdek de kans om het huis van je dromen te bouwen in een van de meest exclusiev...

0
0 beoordelingen

Terreno en calle Fernando Vii, 45

Malaga, Marbella, Marbella Pueblo, Calle Fernando VII, 45
380 000 €

Onroerend goed in Terreno en calle Fernando Vii, 45 Stadsperceel van ongeveer 4...

0
0 beoordelingen

Terreno en carretera de Lomas de Marbella, 182

Malaga, Marbella, Rio Real-Los Monteros, Carretera de Lomas de Marbella, 182
690 000 €

Onroerend goed in Terreno en carretera de Lomas de Marbella, 182Perceel met basi...

0
0 beoordelingen
Bel

We gebruiken onze eigen cookies en die van derden om het gebruik van de website te analyseren en je advertenties te tonen die zijn afgestemd op je voorkeuren, op basis van een profiel dat is gemaakt op basis van je browsegedrag (bijvoorbeeld bezochte pagina's). Meer informatie. Accepteer je cookies?