Terreno en calle Alora

Malaga, Marbella, Nagüeles-Milla de Oro, Calle Alora
2 900 000 €
Beoordeling achterlaten
Stedelijk Type eigendom
1 850 m² Oppervlakte van het terrein

Onroerend goed in Terreno en calle Alora

Perceel in Urbanización Rocío de Nagüeles, strategisch gelegen in het hart van de Gouden Mijl van Marbella, biedt een prachtig uitzicht op zowel de zee als de bergen. Met directe toegang vanaf de Autovía del Mediterráneo (A7), bevindt het zich op slechts 5 minuten rijden van het centrum van Marbella en Puerto Banús, evenals van de beste scholen, zoals internationale scholen, en golfbanen aan de Costa del Sol. Dit alles maakt deze locatie ideaal voor zowel ontspanning, dankzij de idyllische omgeving, als voor het genieten van het bruisende leven in Marbella.

Voordelen van een nieuw gebouw Terreno en calle Alora

Wij bieden twee aangrenzende percelen te koop aan, met vergelijkbare kenmerken en prijzen. Beide delen een gemeenschappelijke grens, wat grotere kansen biedt voor geïntegreerd architectonisch ontwerp en de ontwikkeling van exclusieve projecten. Voor meer informatie, neem contact met ons op.

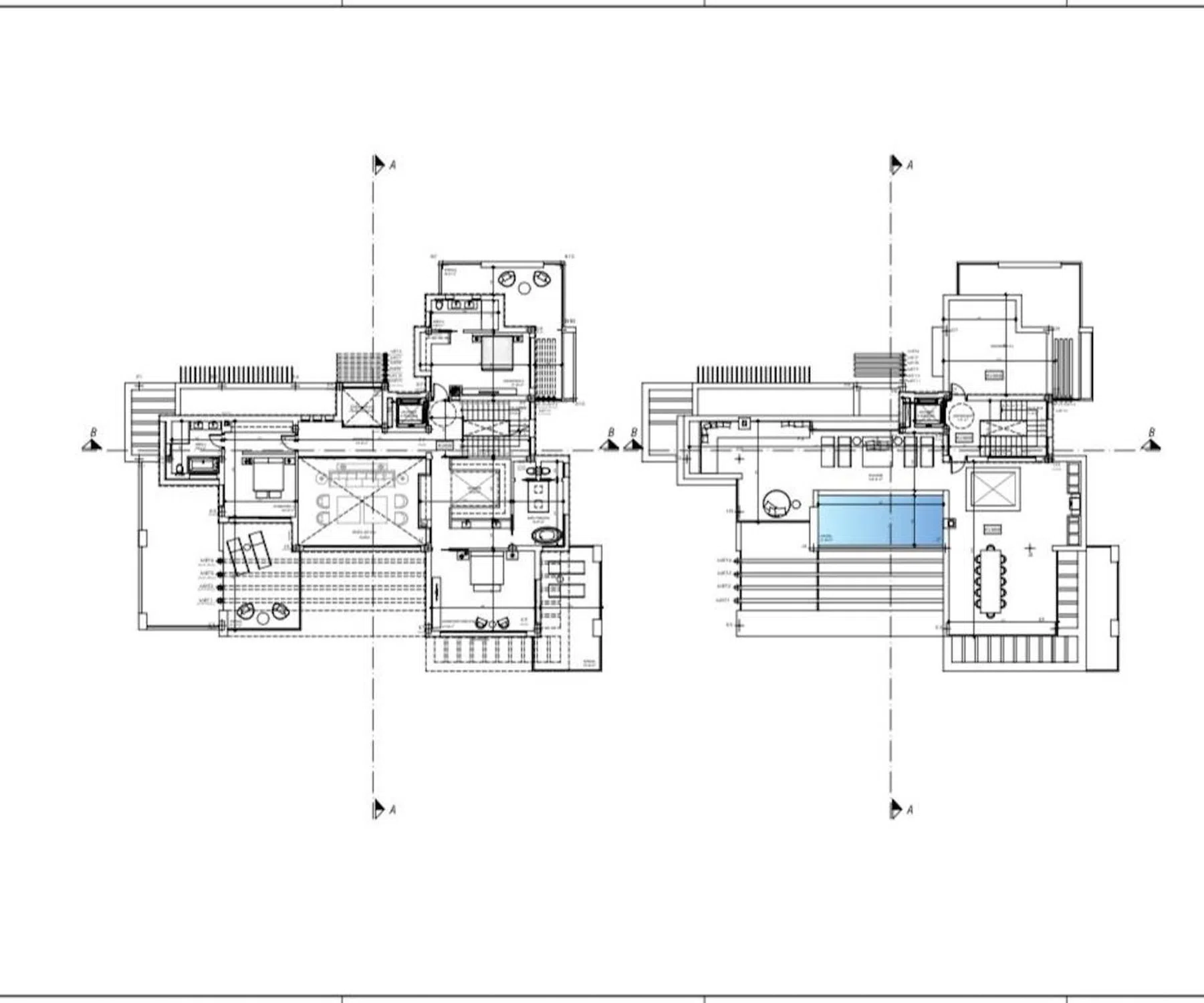
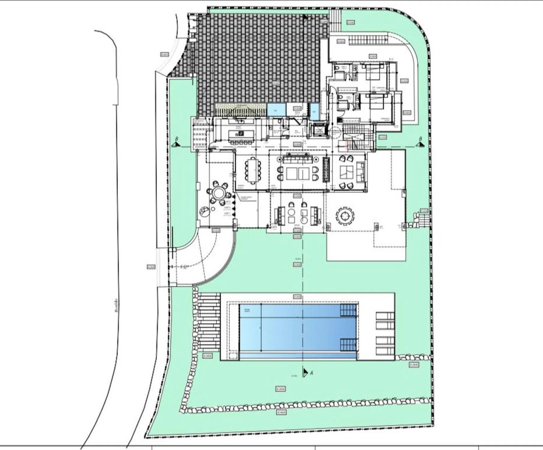
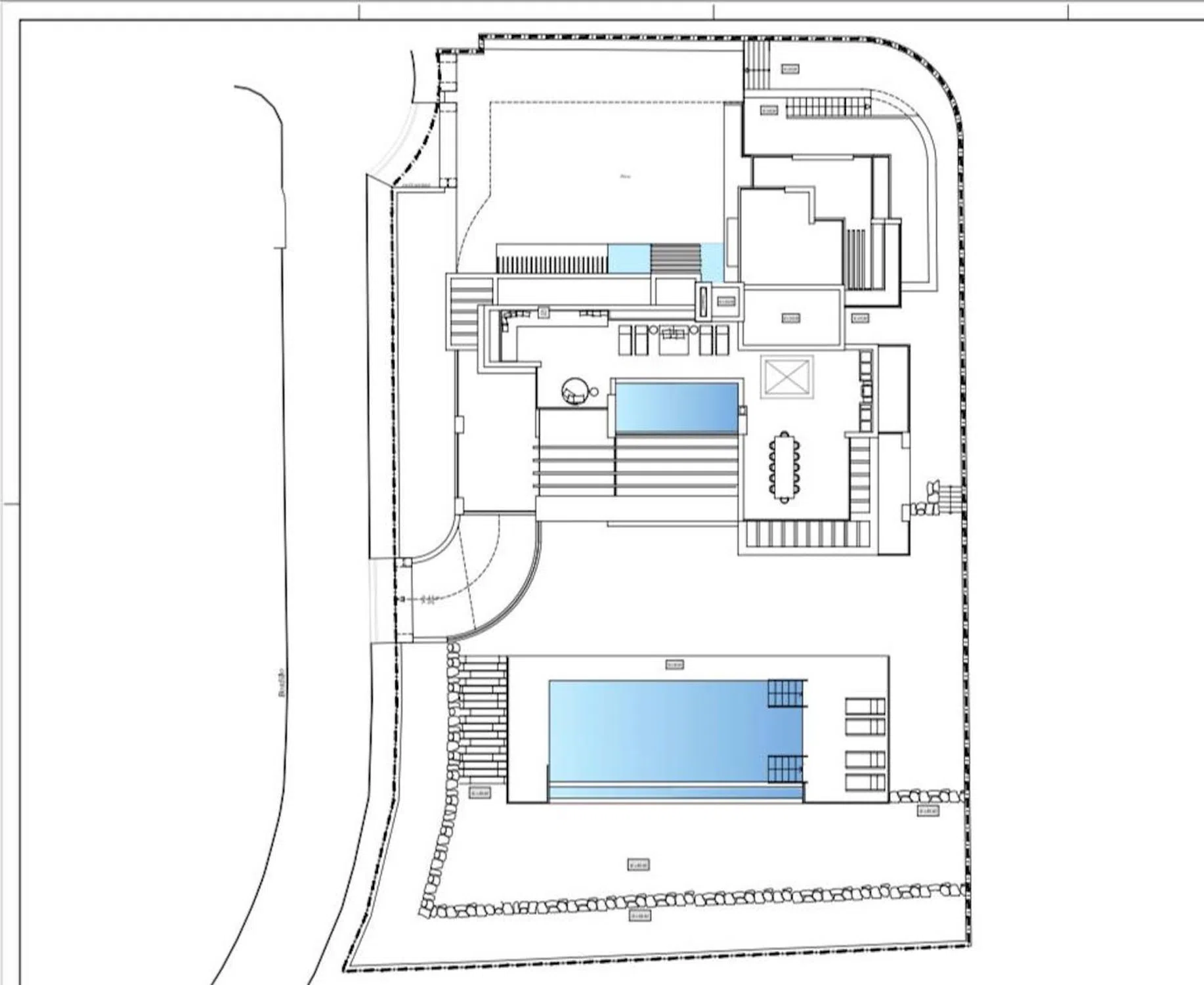
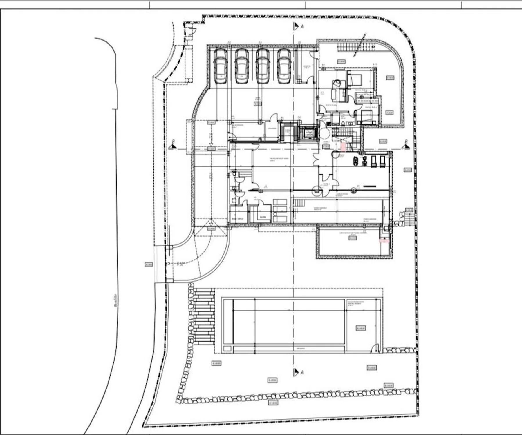
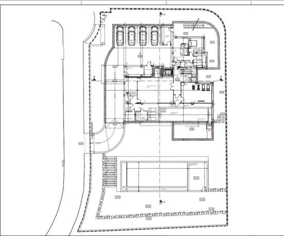
Details van het perceel: Uitbreidingsmogelijkheid: 0,26 (m²t / m²s). Totale bebouwbaarheid: 481 m². Maximale bezetting: 462,5 m². Toegestaan aantal woningen: 1. Bouwmogelijkheid: 2 verdiepingen + kelder.

Leven in de stad Marbella

Kenmerken

Complex information

  • Type eigendom
    Stedelijk

Gegevens van het onroerend goed

  • Type onroerend goed
    Tweedehands

Oppervlakten

  • Oppervlakte van het terrein
    1 850 m²

Base

Faciliteiten

Extra kenmerken:

Bouwgrond

Plannen

Marktprijstatistieken voor Terreno en calle Alora

Kaart

Malaga, Marbella, Nagüeles-Milla de Oro, Calle Alora Naar deze locatie gaan
Laat een beoordeling achter over Terreno en calle Alora
0
0 beoordelingen
1
0% (0)
2
0% (0)
3
0% (0)
4
0% (0)
5
0% (0)
LINEA INVEST ESTATES
2 900 000 €
Contact adverteerder

Neem voor meer informatie contact op met het platform

REF: 242404

Beoordelingen over Terreno en calle Alora
Loading...

No reviews have been left for this object yet

Dichtstbijzijnde woningen

Verken nabijgelegen eigendommen die we hebben ontdekt in de buurt van deze locatie

Terreno en calle Teba s/n

Malaga, Marbella, Nagüeles-Milla de Oro, Calle Teba s/n
3 700 000 €

Ontdek een exclusieve kans op de prestigieuze Gouden Mijl van Marbella met dit u...

0
0 beoordelingen

Terreno en avenida del Norte

Malaga, Marbella, Nueva Andalucía, Avenida del Norte
2 800 000 €

Prime Locatie | Zeezicht | Klaar om te Bouwen | Puur Luxe We presenteren twee ui...

0
0 beoordelingen

Terreno en calle Buitrago

Malaga, Marbella, Marbella Pueblo, Calle Buitrago
3 300 000 €

Dit betreft de verkoop van NPL in de veilingfase, met een totale schuld van 6.40...

0
0 beoordelingen

Terreno en Urbanizacion Real de la Quinta

Malaga, Benahavís, El Madroñal, Urbanizacion Real de la Quinta
1 350 000 €

Onroerend goed in Terreno en Urbanizacion Real de la Quinta Stedelijk perceel...

0
0 beoordelingen

Terreno en Barrio Valdeolletas-Las Cancelas-Xarblanca

Malaga, Marbella, Marbella Pueblo, Barrio Valdeolletas-Las Cancelas-Xarblanca
1 195 000 €

Perceel van 1.493 m² op een paar minuten van het centrum van Marbella We bieden...

0
0 beoordelingen

Terreno en Barrio Casco Antiguo

Malaga, Marbella, Marbella Pueblo, Barrio Casco Antiguo
16 500 000 €

Gefeliciteerd, u heeft een van de beste kansen gevonden voor de verkoop van perc...

0
0 beoordelingen

Terreno en calle Lago de la Concepción

Malaga, Benahavís, El Madroñal, Calle Lago de la Concepción
7 000 000 €

Onroerend goed in Terreno en calle Lago de la Concepción Wij presenteren een uni...

0
0 beoordelingen

Terreno en avenida Don Jaime de Mora y Aragon, 2 j

Malaga, Marbella, Nagüeles-Milla de Oro, Avenida Don Jaime de Mora y Aragon, 2 J
8 500 000 €

Onroerend goed in Terreno en avenida Don Jaime de Mora y Aragon, 2 j Aanbod van...

0
0 beoordelingen

Terreno en calle Osa Mayor

Malaga, Marbella, Nueva Andalucía, Calle Osa Mayor
6 900 000 €

Gelegen in het prestigieuze hart van La Cerquilla, een van Marbella's meest gewi...

0
0 beoordelingen
Bel

We gebruiken onze eigen cookies en die van derden om het gebruik van de website te analyseren en je advertenties te tonen die zijn afgestemd op je voorkeuren, op basis van een profiel dat is gemaakt op basis van je browsegedrag (bijvoorbeeld bezochte pagina's). Meer informatie. Accepteer je cookies?