Terreno en Riogordo

Malaga, Riogordo, Riogordo
174 000 €
Beoordeling achterlaten
Stedelijk Type eigendom
724 m² Oppervlakte van het terrein
```

Deze grote kavel beschikt over een voorlopig ontwerp in werking om verschillende opties te kunnen bouwen voor een rendabele investering. De meest haalbare optie is een stedelijk plan voor één, twee of zelfs drie eengezinswoningen, volgens een infografie die we beschikbaar hebben om te tonen. Gelegen in het centrale actiegebied van Riogordo met het goedgekeurde project van de toegangs- en uitvalsweg naar het dorp, wat resulteert in een ideale toegang om eenvoudig in en uit de stad te komen. Dichtbij recreatiegebied, school, voetbalveld, supermarkten, sportcentrum etc.

Iets heel belangrijks om op te merken is dat de investering klein is in vergelijking met het voordeel en het resultaat. Naast het bouwen van het woningproject is een belangrijk aspect de grote commerciële ruimte van meer dan 800 m2 die zich in de benedenverdieping van het gebouw zal bevinden, waar met groot gemak een groot bedrijf kan worden gestart en een referentie zal zijn in alle omliggende dorpen. Mogelijkheid om een commerciële galerij te creëren of voor een groot filiaal van een supermarktketen etc.

Riogordo is een prachtig dorp in de Axarquía van Málaga dat voortdurend in ontwikkeling is en veel toekomstmogelijkheden biedt. Deze promotie is bedacht zodat de toekomstige generaties van onze kinderen in ons dorp Riogordo kunnen blijven wonen, waardoor onze hele bevolking een impuls krijgt. Een investering voor de toekomst voor iedereen. Het is een zeer interessant project en we staan klaar om persoonlijk informatie te verstrekken aan bedrijven in de sector en investeerders. Tot slot is het belangrijk om te vermelden dat heel de regio Axarquía, Riogordo, Colmenar, Casabermeja het unieke gebied is van zakelijke en industriële expansie volgens de nieuwe ontwikkelingsplannen van Málaga met betrekking tot industriële loodsen en met gemakkelijke toegang tot de belangrijkste snelwegverbinding vanuit Antequera. Laat deze zakelijke en toekomstige kans niet aan u voorbijgaan.

```

Kenmerken

Complex information

  • Type eigendom
    Stedelijk

Gegevens van het onroerend goed

  • Type onroerend goed
    Tweedehands

Oppervlakten

  • Oppervlakte van het terrein
    724 m²

Base

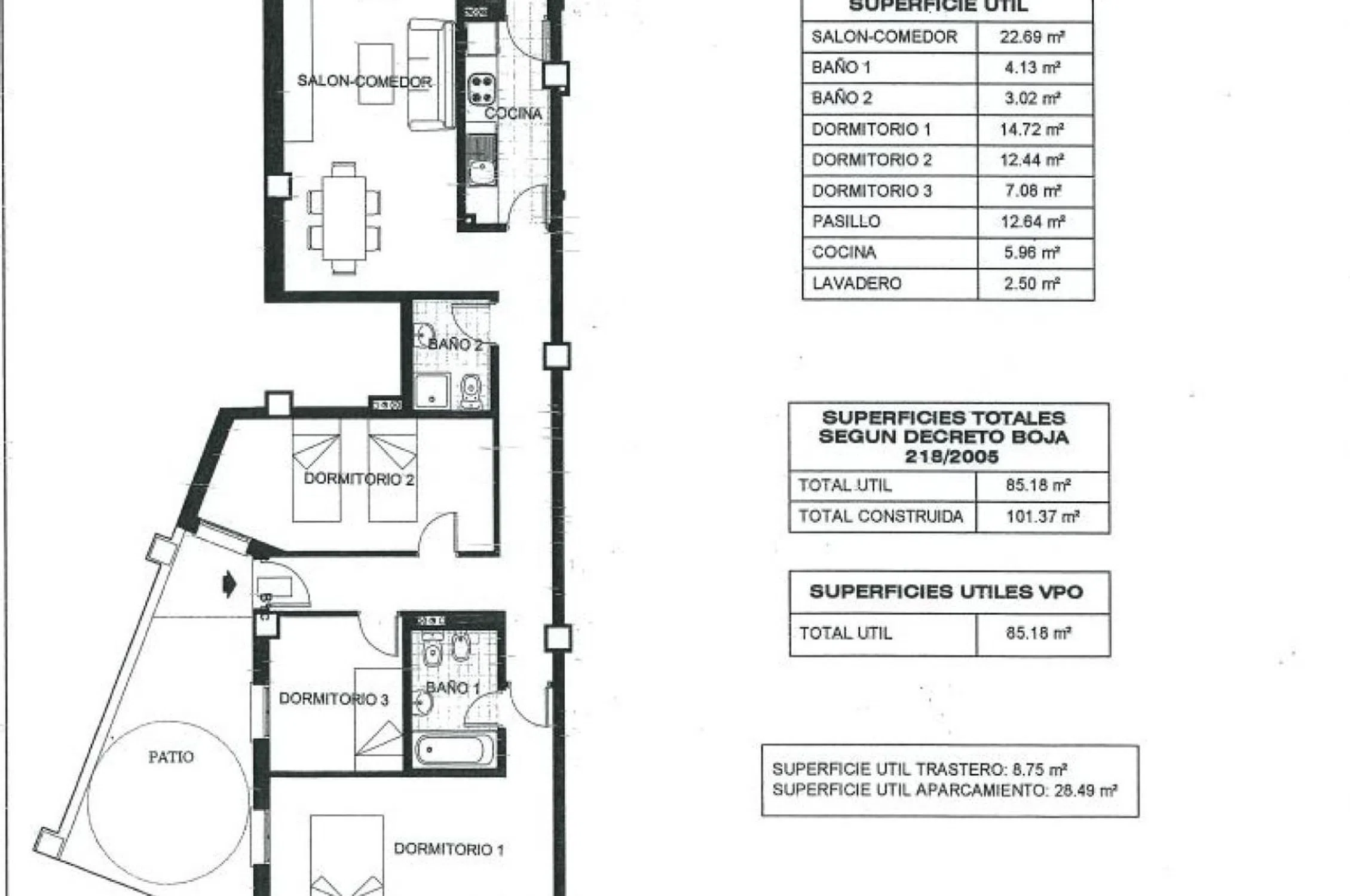
Plannen

Marktprijstatistieken voor Terreno en Riogordo

Kaart

Malaga, Riogordo, Riogordo Naar deze locatie gaan
Laat een beoordeling achter over Terreno en Riogordo
0
0 beoordelingen
1
0% (0)
2
0% (0)
3
0% (0)
4
0% (0)
5
0% (0)
174 000 €
Contact adverteerder

Neem voor meer informatie contact op met het platform

REF: 244461

Beoordelingen over Terreno en Riogordo
Loading...

No reviews have been left for this object yet

Dichtstbijzijnde woningen

Verken nabijgelegen eigendommen die we hebben ontdekt in de buurt van deze locatie

Terreno en camino de Magiaza

Malaga, Riogordo, Camino de Magiaza
49 500 €

Bouw de woning van je dromen. Deze stedelijke bouwgrond in een nieuw voltooide u...

0
0 beoordelingen

Terreno en calle Julio Romero de Torres, 25

Malaga, Colmenar, Calle Julio Romero de Torres, 25
60 000 €

Te koop: bouwkavel in C/Júlio Romero de Torres, Colmenar (Málaga). De kavel heef...

0
0 beoordelingen

Terreno en Colmenar

Malaga, Colmenar, Colmenar
75 000 €

Onroerend goed in Terreno en Colmenar Voordelen van een nieuw gebouw Terreno en...

0
0 beoordelingen

Terreno en calle Sierra del Jobo

Malaga, Colmenar, Calle Sierra del Jobo
68 250 €

Welkom bij dit fantastische bouwkavel gelegen in Colmenar, een charmante gemeent...

0
0 beoordelingen

Terreno en Lugar Ventorros, 15

Malaga, Colmenar, Lugar Ventorros, 15
35 000 €

Te koop: stedelijk terrein op het platteland in de gemeente Colmenar in Málaga,...

0
0 beoordelingen

Terreno en calle Quinta

Malaga, Colmenar, Calle Quinta
26 000 €

Te koop: stedelijk terrein in Colmenar. Perfect om je ideale huis te bouwen in e...

0
0 beoordelingen

Terreno en pasaje del Poeta

Malaga, Colmenar, Pasaje del Poeta
71 000 €

Onroerend goed in Terreno en pasaje del Poeta Te koop: perceel van 200 vierkante...

0
0 beoordelingen

Terreno en Colmenar

Malaga, Colmenar, Colmenar
390 000 €

Onroerend goed in Terreno en Colmenar Deze exclusieve woning biedt twee onafhank...

0
0 beoordelingen

Terreno en Rosas del Pozuelo, km 20

Malaga, Colmenar, Rosas del Pozuelo, km 20
90 000 €

Landhuis gelegen op een terrein met olijf- en amandelbomen. Het huis is gelegali...

0
0 beoordelingen

We gebruiken onze eigen cookies en die van derden om het gebruik van de website te analyseren en je advertenties te tonen die zijn afgestemd op je voorkeuren, op basis van een profiel dat is gemaakt op basis van je browsegedrag (bijvoorbeeld bezochte pagina's). Meer informatie. Accepteer je cookies?