Verkoop van appartement in , Poio

Uitverkopen
Beoordeling achterlaten
Appartements Type eigendom
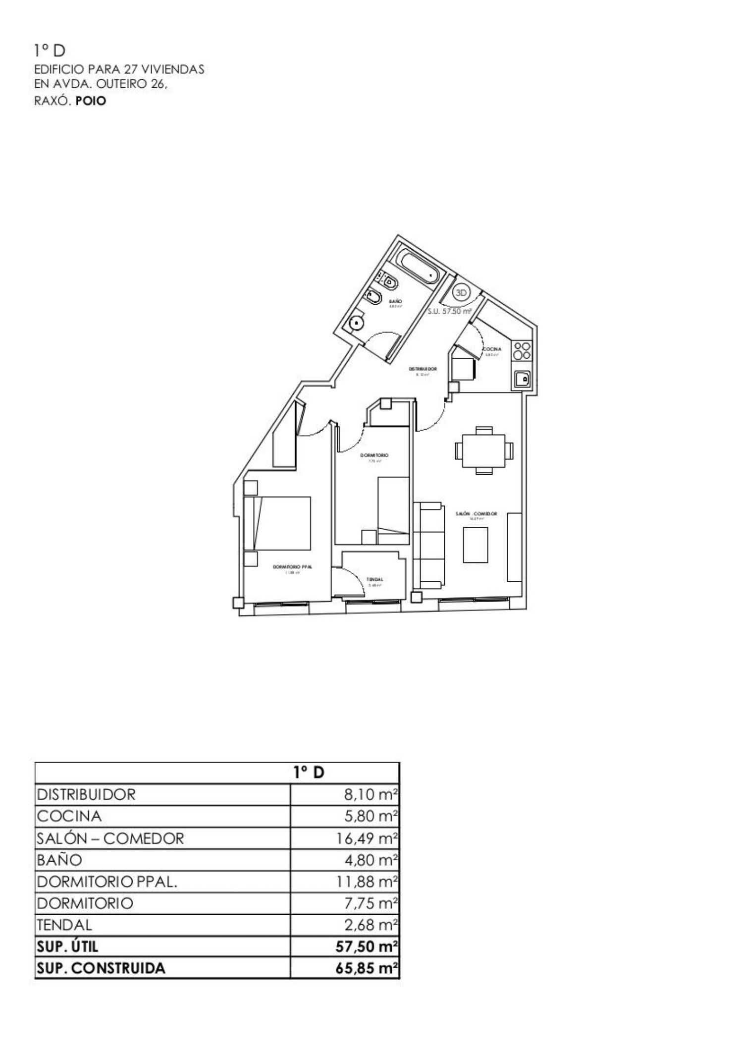
78 m² gebouwde m2
2 Badkamers
2 Slaapkamers
VIVIENDAS A ESTRENAR Promoción de viviendas en Raxo.Distintas tipologías, de 1, 2 y 3 dormitorios, plaza de garaje y trastero incluidos en el precio.El edificio se distribuye en 4 plantas, que dispone de 2 ascensores y de un espacio común exterior.La promoción se localiza a escasos 350m de la playa más cercana.En las inmediaciones del edificio existen todo tipo de servicios como colegios públicos y un centro deportivo o comercios dedicados al sector turístico: bares y restaurantes, farmacias, supermercados o entidades bancarias. Está situado en la avenida principal de la población por lo que goza de buenas y rápidas comunicaciones, con Sanxenxo a 5 min o con el centro de Pontevedra, a unos 15 minutos, disponiendo así a mayores de todos los servicios que puede ofrecerte la capital de la provincia: centro de salud, hospitales, comercios de todo tipo y supermercados y todo lo que puedas necesitar en tu día a día.No lo dude, contacte con nosotros y amplié la información.* Consulte precios y disponibilidad. IVA no incluidoInformación a título enunciativo, carente de validez contractual.

Kenmerken

Complex information

  • Wooncomplex
    Raxo-Outeiro
  • Type eigendom
    Appartements

Gegevens van het onroerend goed

  • Slaapkamers
    2
  • Badkamers
    2
  • gebouwde m2
    78 m²
  • Type onroerend goed
    Nieuwbouw

Faciliteiten

Woonvoorzieningen:

Opslagruimte
Buitenkamer

In gebouw:

Garage
Lift
Bar
Spa
Berging

Marktprijstatistieken voor Piso en venta en avenida de Outeiro, 26

124 438 € (1 458 €/m2)
Gemiddelde prijs van primaire Appartements in de stad Poio

Kaart

Pontevedra, Poio Naar deze locatie gaan
Laat een beoordeling achter over Piso en venta en avenida de Outeiro, 26
0
0 beoordelingen
1
0% (0)
2
0% (0)
3
0% (0)
4
0% (0)
5
0% (0)
Raxo-Outeiro
Wooncomplex
Uitverkopen
Contact adverteerder

Neem voor meer informatie contact op met het platform

REF: 10252

Beoordelingen over Piso en venta en avenida de Outeiro, 26
Loading...

No reviews have been left for this object yet

Dichtstbijzijnde woningen

Verken nabijgelegen eigendommen die we hebben ontdekt in de buurt van deze locatie

Apartamentos en Venta en Rua de Madrid, 14, Sanxenxo

Pontevedra, Sanxenxo, Sanxenxo, Rua de Madrid, 14
514 700 €

Vamos a desarrollar una exclusiva promoción de viviendas en altura en la última...

0
0 beoordelingen

Apartamentos en Venta en Rua de Madrid, 14, Sanxenxo

Pontevedra, Sanxenxo, Sanxenxo, Rua de Madrid, 14
537 600 €

Vamos a desarrollar una exclusiva promoción de viviendas en altura en la última...

0
0 beoordelingen

Apartamentos en Venta en Rua de Madrid, 14, Sanxenxo

Pontevedra, Sanxenxo, Sanxenxo, Rua de Madrid, 14
504 600 €

Vamos a desarrollar una exclusiva promoción de viviendas en altura en la última...

0
0 beoordelingen

Apartamentos en Venta en Rua de Madrid, 14, Sanxenxo

Pontevedra, Sanxenxo, Sanxenxo, Rua de Madrid, 14
519 100 €

Vamos a desarrollar una exclusiva promoción de viviendas en altura en la última...

0
0 beoordelingen

Apartamentos en Venta en Calle Orense, 8, Sanxenxo

Pontevedra, Sanxenxo, Sanxenxo, Calle Orense, 8
490 000 €

Exclusiva promoción de viviendas 1 -3 -4 dormitorios, con acabados y calidades ú...

0
0 beoordelingen

Apartamentos en Venta en Calle Orense, 8, Sanxenxo

Pontevedra, Sanxenxo, Sanxenxo, Calle Orense, 8
320 000 €

Exclusiva promoción de viviendas 1 -3 -4 dormitorios, con acabados y calidades ú...

0
0 beoordelingen

Apartamentos en Venta en Calle Orense, 8, Sanxenxo

Pontevedra, Sanxenxo, Sanxenxo, Calle Orense, 8
420 000 €

Exclusiva promoción de viviendas 1 -3 -4 dormitorios, con acabados y calidades ú...

0
0 beoordelingen

Apartamentos en Venta en Rúa Ramón Cabanillas, Sanxenxo

Pontevedra, Sanxenxo, Sanxenxo, Rúa Ramón Cabanillas
187 500 €

Espacioso piso en Sanxenxo, Pontevedra, idóneo para parejas. La vivienda cuenta...

0
0 beoordelingen

Apartamentos en Venta en Rúa Ramón Cabanillas, Sanxenxo

Pontevedra, Sanxenxo, Sanxenxo, Rúa Ramón Cabanillas
206 500 €

Piso en Sanxenxo, Pontevedra, perfecto para parejas. El inmueble dispone de una...

0
0 beoordelingen

We gebruiken onze eigen cookies en die van derden om het gebruik van de website te analyseren en je advertenties te tonen die zijn afgestemd op je voorkeuren, op basis van een profiel dat is gemaakt op basis van je browsegedrag (bijvoorbeeld bezochte pagina's). Meer informatie. Accepteer je cookies?