Nieuwe obra Jardines De Montesano in San Antonio de Benagéber

Valencia, San Antonio de Benagéber
Uitverkopen
Beoordeling achterlaten
2025 Opleveringsjaar
Eigenschap oppervlakken
Aantal slaapkamers
Badkamers
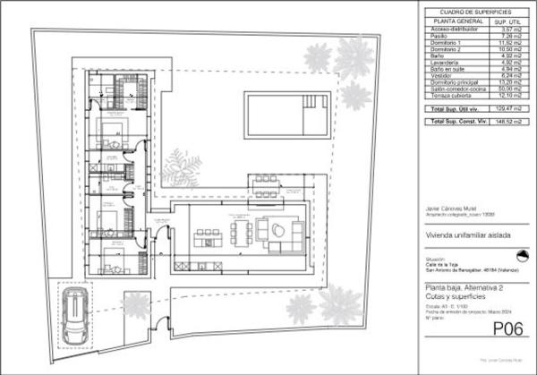
BQ (JN) En exclusiva magnífico CHALET UNIFAMILIAR proyectado en parcela de 602m2 y de ubicación privilegiada en Jardines de Montesano Fase 1, a tan solo 450 metros del Supermercado Consum, del Decathlon, y del acceso a la autovía (salida La Eliana).La vivienda consta de 149m2 construidos en una única planta, con marcada definición de dos sectores o módulos como la zona de día y la de noche, todo con excepcionales calidades de construcción de vivienda y detalles personalizados que la hacen única y especial.Al ingresar al chalet encontramos hacia la derecha y gracias a sus amplios ventanales de PVC con doble acristalamiento y 5 cámaras intermedias, un precioso y luminoso sector cocina-salón-comedor, con cocina diáfana e isla equipada con muebles altos y bajos lacados en blanco, horno encastrado y microondas, placa de inducción y campana extractora.Asimismo, al ingresar a la vivienda pero orientándonos hacia la izquierda, nos encontramos con el sector noche o descanso que cuenta con un dormitorio doble principal con baño completo en suite y vestidor, otras dos habitaciones con armarios empotrados, el segundo baño, y el lavadero.La instalación de climatización es por conducto frío/calor, Aerotermia para el ACS, instalación de sistema de recuperación de calor según normativa vigente, calificación energética A+.Incluido en el precio PISCINA con revestimiento interior gris porcelánico rectificado con zona de playa, totalmente terminada con iluminación mediante dos focos en superficie. Caseta depuradora enterrada. FORMA DE PAGO: MÉTODO AUTOPROMOCIÓN LLAVE EN MANO-RESERVA: €10.000 (a cuenta compra parcela)-SALDO PARCELA: €130.000 (al momento de escrituración)-A LA FIRMA DEL CONTRATO EN CONCEPTO DE LICENCIAS: 10.000 €-RESTO SEGÚN CERTIFICACIÓNImpuestos no incluidos, Honorarios Agencia, Registro Gestoría, Notaria.Fecha de entrega 15 mesesPosibilidad de modificaciones y extras opcionales.

Uitgelichte promoties in Spanje

10 eenheden

Nature Views 2

Alicante, Torrevieja, Los Balcones - Los Altos del Edén, Denia s/n
310 000 € - 379 000 €
1 eenheden

Hotel en venta en Benidorm centro

Alicante, Benidorm, Playa de Poniente
2 250 000 € - 2 250 000 €
28 eenheden

Residencial Los Balcones De Calpe

Alicante, Calpe, Calpe Pueblo, Avenida de Madrid, 1
299 000 € - 892 125 €
7 eenheden

Nature Views

Alicante, Torrevieja, Lago Jardín II, Avenida Denia s/n
305 000 € - 330 000 €
5 eenheden

ALONIS VILLAS

Alicante, La Villajoyosa / Vila Joiosa, Platja de Torres, Partida Torres s/n
675 000 € - 775 000 €
1 eenheden

Residencial Royal Beach

Alicante, Guardamar del Segura, dorp, Miguel Hernández 102
349 500 € - 349 500 €
7 eenheden

Royal Star

Alicante, Guardamar del Segura
229 500 € - 269 500 €
Deze informatie is afkomstig uit openbare bronnen en is mogelijk niet actueel. Het vormt geen verbinding met de ontwikkelaar.

Kenmerken

Complex information

Projectinformatie / Werkstatus

  • Opleveringsjaar
    2025
  • Opleverdatum
    III Kwartaal
  • Staat
    In aanbouwing

Gegevens van het onroerend goed

  • M2 tussenliggende
    149 m²
  • Type onroerend goed
    Nieuwbouw

Energiecertificering

  • Energiecertificaatstatus
    In behandeling
  • Energiecertificaat
    A
  • Energieverbruik
    En trámite

Faciliteiten

Woonvoorzieningen:

Inbouwkasten
Meubels
Verwarming
Binnenramen

In gebouw:

Zwembad
Tuin

Marktprijstatistieken voor Jardines De Montesano

457 268 € (2 965 €/m2)
Gemiddelde prijs van primaire Huizen in de stad San Antonio de Benagéber

Kaart

Valencia, San Antonio de Benagéber Naar deze locatie gaan
Laat een beoordeling achter over Jardines De Montesano
0
0 beoordelingen
1
0% (0)
2
0% (0)
3
0% (0)
4
0% (0)
5
0% (0)
Uitverkopen
Contact adverteerder

Neem voor meer informatie contact op met het platform

REF: 69271

Beoordelingen over Jardines De Montesano
Loading...

No reviews have been left for this object yet

Dichtstbijzijnde woningen

Verken nabijgelegen eigendommen die we hebben ontdekt in de buurt van deze locatie

1 eenheden

5 Villas Independientes en Avenida de Riba- Roja de Túria

Valencia, L'Eliana, Montepilar, Avenida de Riba- Roja de Túria, 49
690 000 € - 690 000 €

Exclusiva Promoción de 5 Villas Independientes en L’Eliana Te presentamos una pr...

0
0 beoordelingen
6 eenheden

Ribabella

Valencia, Riba-Roja de Túria, Avenida del Castaño, 25
395 000 € - 478 300 €

Valencia La Vella Vivirás rodeado de naturaleza, tranquilidad y luz. Despierta c...

0
0 beoordelingen
25 eenheden

Beterhomes 2

Valencia, Bétera, Centrum, Calle Dr. Fleming, 41
161 500 € - 274 500 €

"Rover Homes te ofrece nuevamente la posibilidad de vivir en un residencial mode...

0
0 beoordelingen
3 eenheden

La Eliana

Valencia, L'Eliana, Montealegre, Avenida de Ribarroja de Túria
660 000 € - 660 000 €

Esta vivienda se plantea desde la vista contemporánea de la calidez del mediterr...

0
0 beoordelingen
7 eenheden

Jardines del Turia

Valencia, Riba-Roja de Túria, Calle Holanda, 8
472 500 € - 575 750 €

Chalet Independiente en Jardines del Turia — Exclusividad, Diseño y Confort en u...

0
0 beoordelingen

Los Albatros

Valencia, Bétera, Torre en Conill-Cumbres de San Antonio, Calle Albatros, 44
-

Te queremos presentar esta nueva promoción de 9 viviendas unifamiliares con una...

0
0 beoordelingen
2 eenheden

Residencial Atalaya de San Antonio

Valencia, San Antonio de Benagéber
250 574 € - 250 963 €

In onroerend goed in Residencial Atalaya de San Antonio Ontdek een unieke kans...

0
0 beoordelingen
1 eenheden

Mansión de lujo en L'Eliana

Valencia, L'Eliana, El Carme-Sant Agustí-Bonavista, Concepción Arenal esq Martí L'humà s/n
1 390 000 € - 1 390 000 €

Onroerend goed in Mansión de lujo en L'Eliana Wij bieden exclusief een indrukwe...

0
0 beoordelingen

Residencial Unifamiliar Pareado En Maravisa

Valencia, La Pobla de Vallbona, Maravisa, Calle Plutó, 14
-

Tilers gimenez slu os presenta una maravillosa oportunidad de pareados unifamili...

0
0 beoordelingen

We gebruiken onze eigen cookies en die van derden om het gebruik van de website te analyseren en je advertenties te tonen die zijn afgestemd op je voorkeuren, op basis van een profiel dat is gemaakt op basis van je browsegedrag (bijvoorbeeld bezochte pagina's). Meer informatie. Accepteer je cookies?