Новостройка Noya 25 y 27 в А Coruña

Ла-Коруня, А Coruña, Ос Маллос, Calle Noya, 25
от 330 000 €
Оставить отзыв
Площадь объекта
Количество спален
Ванные комнаты
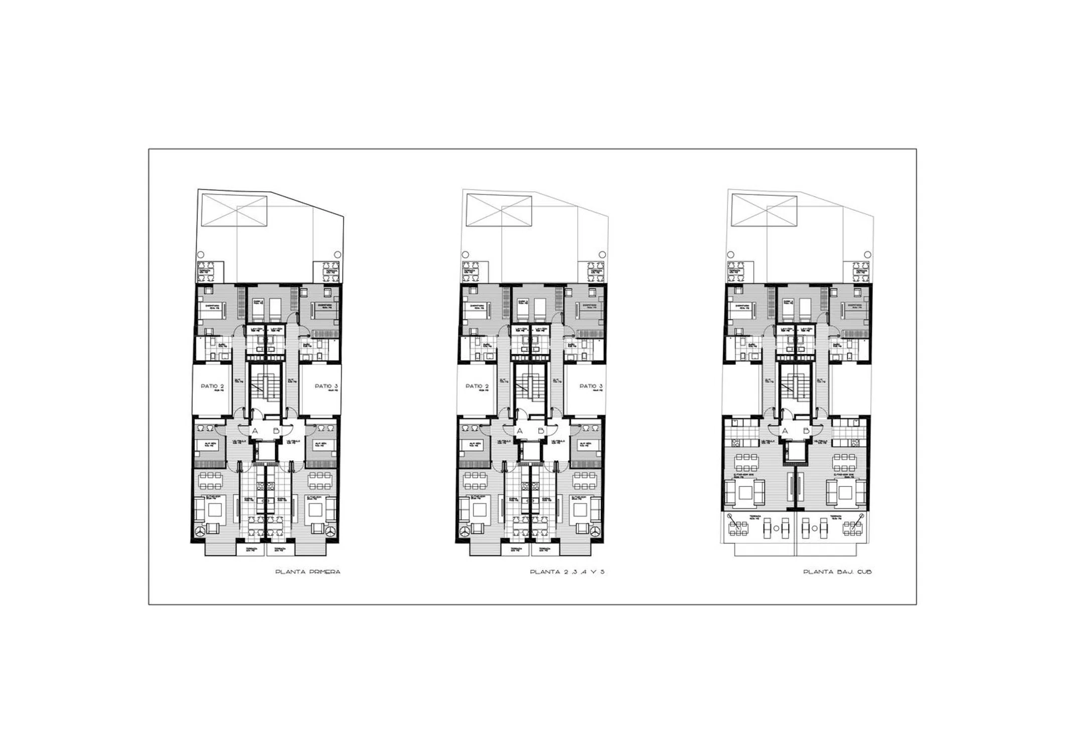
12 viviendas de 1, 2 y 3 dormitorios con 12 plazas de garaje y 12 trasteros. PRIMERAS DOS VIVIENDAS YA RESERVADAS Viviendas eficientes, modernas y sostenibles en pleno corazón urbano. Desde 65.80m2 útiles (75.67m2 construidos) el piso de 1 dormitorio con terraza, 2 baños (uno en suite), salón-comedor con terraza de 18.5m2 y cocina independiente, hasta 91.25m2 útiles (104.9m2 construidos) el piso de 3 dormitorios (con terraza de 44.5m2), 2 baños (uno en suite), salón-comedor y cocina independiente con terraza. Plaza de garaje con preinstalación para coche eléctrico. Trastero incluido. Calificación energética A. Cocina y baños de PORCELANOSA. Electrodomésticos BALAY. Suelo radiante por aerotermia. Ventilación de doble flujo con filtrado de aire. Armarios empotrados. Carpintería en PVC, con ventanas abatibles, con vidrios de alta eficacia de aislamiento térmico y acústico. Producción de energía fotovoltaica para el edificio. Materiales sostenibles y de bajo impacto. Pinturas ecológicas en las zonas vivideras. Excelente aislamiento térmico y acústico. Vegetación integrada en zonas comunes. Opción de carga para coche eléctrico. Parking de bicicletas con zona de limpieza. Ubicada en pleno corazón urbano, a 5m andando de los Juzgados, a un paso de Cuatro Caminos, 8 en coche de la nueva INTERMODAL de RENFE, y de la salida de la ciudad y a 9 minutos andando de Juan Flórez y poco más de la Plaza de Vigo, en pleno centro de la ciudad de La Coruña. Está contemplado un plan para la peatonalización de la zona, una vez se terminen los trabajos de la INTERMODAL, lo que va a revalorizarla y dinamizarla todavía más. Es una zona de la ciudad de La Coruña en pleno desarrollo y rejuvenecimiento urbanístico, que guarda en su identidad el carácter centenario de muchas de sus casas. Zona en proceso de peatonalización y renovación urbana, lo que revaloriza aún más esta inversión. GARANTÍA DE SEGURIDAD: Las cantidades aportadas están avaladas y depositadas en la cuenta notarial. "Este anuncio no es vinculante ni contractual. Se muestra a título informativo y puede contener errores o estar sujeto a variaciones”.

Топ новостройки Испании

Обратите ваше внимание на эти ЖК

10 единиц

Nature Views 2

Аликанте, Торревьеха, Лос-Балконес - Лос-Альтос дель Эден, Denia s/n
310 000 € - 379 000 €
1 единиц

Hotel en venta en Benidorm centro

Аликанте, Бенидорм, Плая де Поньенте
2 250 000 € - 2 250 000 €
28 единиц

Residencial Los Balcones De Calpe

Аликанте, Кальпе, Кальпе Пуэбло, Avenida de Madrid, 1
299 000 € - 892 125 €
4 единиц

Nature Views

Аликанте, Торревьеха, Лаго Хардин II, Avenida Denia s/n
309 000 € - 330 000 €
5 единиц

ALONIS VILLAS

Аликанте, Ла Виллахойоса / Вила Хойоса, Платха де Торрес, Partida Torres s/n
675 000 € - 775 000 €
1 единиц

Residencial Royal Beach

Аликанте, Гуардамар-дель-Сегура, побло, Miguel Hernández 102
349 500 € - 349 500 €
7 единиц

Royal Star

Аликанте, Гуардамар-дель-Сегура
229 500 € - 269 500 €
Эта информация получена из публичных источников и может быть устаревшей. Она не представляет собой связь с застройщиком.

Характеристики недвижимости

Complex information

Данные о недвижимости

  • Тип недвижимости
    Новостройка

Статистика рыночных цен на Noya 25 y 27

460 556 € (1 754 €/m2)
Средняя цена на первичные Дома в городе А Coruña
379 566 € (3 256 €/m2)
Средняя цена на первичные Квартиры в городе А Coruña

Карта

Ла-Коруня, А Coruña, Ос Маллос, Calle Noya, 25 Поехать в это место
Оставьте отзыв о Noya 25 y 27
0
0 reviews
1
0% (0)
2
0% (0)
3
0% (0)
4
0% (0)
5
0% (0)
Cisbar Inmobiliaria
330 000 €
Свяжитесь с рекламодателем

Для получения дополнительной информации свяжитесь с платформой

REF: 445474

Отзывы о Noya 25 y 27
Loading...

No reviews have been left for this object yet

Жилье с государственной защитой (ЖГЗ) 2560 Сдача в 2025 году 3210 Сдача в 2024 году 2817 Сдача в 2026 году 3330 Сдача в 2027 году 2892 На этапе строительства 2546 В строительстве 2947 Сданный в эксплуатацию новострой 2719 Новая постройка с видом на море 2780 Будущие акции 4430 Сдача в 2022 году 2519 Сдача в 2024 Ла-Коруня 33 Сдача в 2025 году Ла-Коруня 39 Новостройки с видом на море Ла-Коруня 34 В процессе строительства Ла-Коруня 36 Новые построенные объекты Ла-Коруня 36 Жилища (VPO) Ла-Коруня 31 Сдача в 2027 году Ла-Коруня 32 Сдача в 2026 году Ла-Коруня 38 Сдача в 2023 году Ла-Коруня 34 Сдача в 2022 году Ла-Коруня 30 Новостройка с тренажерным залом Ла-Коруня 38 Будущие акции Ла-Коруня 50 Сдача в 2028 году Ла-Коруня 31 На этапе планировки Ла-Коруня 30 Жилищный кооператив Ла-Коруня 32 Entrega en 2029 Ла-Коруня 20 Сдача в 2024 году А Coruña 7 Сдача в 2023 году А Coruña 6 На этапе планировки А Coruña 5 В процессе строительства А Coruña 9 Новостройка завершена А Coruña 8 Новостройка с видом на море А Coruña 6 Жилища с государственной защитой (ЖГЗ) А Coruña 5 Жилища ВПО А Coruña 5 Сдача в 2025 году А Coruña 7 Сдача в 2026 году А Coruña 6 Будущие акции А Coruña 10 Сдача в 2022 году А Coruña 5 Сдача в 2027 году А Coruña 6 Жилищный кооператив А Coruña 6 Сдача в 2028 году А Coruña 6

Ближайшие объекты

Исследуйте близлежащие объекты, которые мы обнаружили неподалеку от этого местоположения.

2 единиц

Новый жилой комплекс в Корунье по улице Бразилия и улице Мексика.

Ла-Коруня, А Coruña, Куатро Каминас - Пласа де ла Кубела, Calle Méjico, 8
435 000 € - 435 000 €

En A Coruña, в знаменитом районе Cuatro Caminos, представлена наша новая недвижи...

0
0 отзывов

Obra nueva Edificio Ártabros en Oleiros

Ла-Коруня, Олейруш, Перильо, Avenida Che Guevara, 41
-

EDIFICIO ARBATROS. EL DISEÑO LLEGA A OLEIROS.Solo 10 exclusivas viviendas y 5 im...

0
0 отзывов

Obra nueva de viviendas de Vpa, Valle del Mesoiro en A Coruña

Ла-Коруня, А Coruña, Месойро, Avenida Novo Mesoiro, 17 -, 19
-

Promoción de viviendas de VPA de 2 y 3 dormitorios con plaza de garaje y traster...

0
0 отзывов

Obra nueva Residencial Novo Mesoiro en A Coruña

Ла-Коруня, А Coruña, Месойро, Avenida Novo Mesoiro, 17
-

Obra nueva en régimen de VPA ubicada en la parte baja de Novo Mesoiro, zona con...

0
0 отзывов

Obra nueva Antonio Viñes en A Coruña

Ла-Коруня, А Coruña, Ос Маллос, Calle Antonio Viñes, 19
-

Viviendas de 1, 2 y 3 dormitorios sitas en la Calle ANTONIO VIÑES 19Carpintería...

0
0 отзывов

Obra nueva Anella Coruña en A Coruña

Ла-Коруня, А Coruña, Энсанче - Хуан Флорес, Ronda Nelle, 90
-

¡Últimas viviendas! Tu nuevo hogar cada día mas cerca. ¡Plazas de garaje disponi...

0
0 отзывов
1 единиц

Obra nueva Domus Maianca en Oleiros

Ла-Коруня, Олейруш, Майанка, Calle Rio do Campo s/n
425 000 € - 425 000 €

Vivienda unifamiliar de 4 dormitorios desarrollada en 3 plantas, con garaje, tra...

0
0 отзывов

Obra nueva Edificio Vioño en A Coruña

Ла-Коруня, А Coruña, Вионьо, Calle Revolución Francesa, 11
-

PISOS DE OBRA NUEVA.Ubicados en el Parque Vioño con fácil acceso.Tenemos disponi...

0
0 отзывов

Obra nueva Xaz Natura Villas en Oleiros

Ла-Коруня, Олейруш, Лианс, Calle Italia s/n
-

El conjunto XAZ NATURA Villas, se encuentra ubicado en Oleiros, A Coruña, a esca...

0
0 отзывов
Звонок

Мы используем собственные и сторонние файлы cookie для анализа использования веб-сайта и показа вам рекламы, соответствующей вашим предпочтениям, на основе профиля, созданного по вашим привычкам просмотра (например, посещенные страницы). Подробнее. Вы принимаете файлы cookie?