Terreno en Pinoso

Аликанте, Пиносo
39 995 €
Оставить отзыв
Земля под застройку Тип недвижимости
12 000 m² Площадь участка
Поле или опция 'Да' Электроснабжение
Альмендрос Культивирование
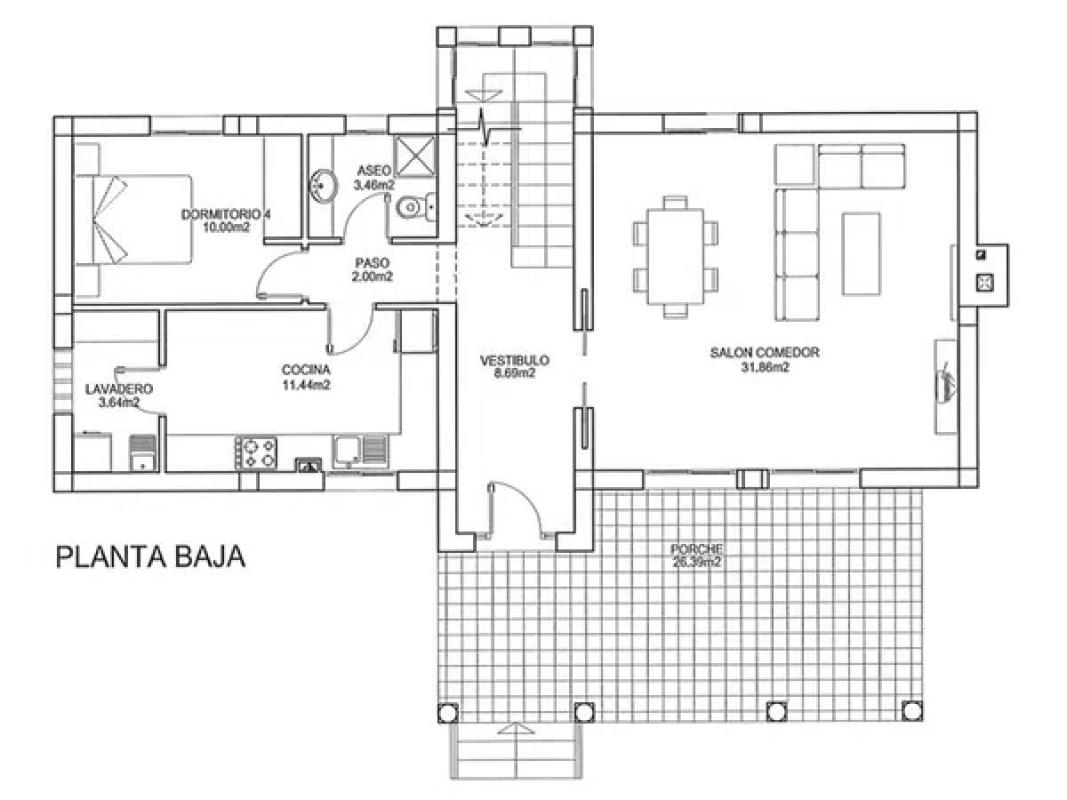
Esta parcela de 12.000 m² cerca de Pinoso ofrece una excelente oportunidad para crear la casa de sus sueños. El permiso de construcción ya se ha concedido en 2007 para una espaciosa villa de 4 dormitorios y 3 baños, existe la posibilidad de renovar la licencia a cargo del comprador. La parcela está equipada con electricidad y se necesitará un depósito de agua para el suministro de agua. Con almendros esparcidos por el terreno, esta parcela combina la belleza natural con la comodidad de estar lista para el desarrollo. Ideal para quienes buscan construir una casa personalizada en un entorno rural tranquilo. Vivimos y trabajamos en la zona desde 2004 y, como tal, contamos con una excelente red de contactos que incluye arquitectos, constructores, comerciantes, etc. Estamos aquí para ayudarle en cada paso del proceso de diseño y construcción de la nueva casa de sus sueños. Nos aseguramos de que todo el proceso transcurra sin problemas y sin complicaciones, lo que le dará total tranquilidad. Con nosotros, está en buenas manos. Si desea obtener más información sobre esta parcela o sobre nuestros servicios de diseño y construcción, no dude en ponerse en contacto con nosotros. Con varios constructores y parcelas para elegir, estamos seguros de ayudarle a crear su nuevo momento perfecto. Contáctenos ahora para ver este y otros posibles terrenos edificables para su nuevo proyecto. Contamos con una amplia cartera de propiedades en las zonas de la Costa Blanca y Costa Cálida, especializándonos en propiedades en el campo, villas, fincas, parcelas edificables y opciones de diseño y construcción en las regiones de Alicante y Murcia, con especial énfasis en Elda, Monovar, Pinoso, Sax, Villena, Aspe, Fortuna, Albacete y muchas más áreas circundantes. Estamos establecidos desde 2004 y contamos con décadas de experiencia entre el equipo que ponemos a su disposición para ayudarle a encontrar y asegurar la nueva casa de sus sueños. Le ayudamos en cada paso del proceso para asegurarnos de que su compra en España sea segura y sin complicaciones. No estamos aquí para venderle una propiedad, estamos aquí para ayudarle a hacer realidad su sueño y encontrar lo que es adecuado para usted. Con nosotros está en las mejores manos. Póngase en contacto con nosotros ahora para tener una charla sin compromiso sobre cómo usted también puede hacer realidad sus sueños.

Характеристики недвижимости

Complex information

  • Тип недвижимости
    Земля под застройку

Данные о недвижимости

  • Тип недвижимости
    Вторичка

Площади

  • Площадь участка
    12 000 m²

Base

  • Земля не подлежит застройке
    Сельский или деревенский
  • Электроснабжение
    Поле или опция 'Да'
  • Культивирование
    Альмендрос

Удобства

Культиво:

Выращивание продуктов питания

Дополнительные характеристики:

Строительный участок

Статистика рыночных цен на Terreno en Pinoso

Карта

Аликанте, Пиносo Поехать в это место
Оставьте отзыв о Terreno en Pinoso
0
0 reviews
1
0% (0)
2
0% (0)
3
0% (0)
4
0% (0)
5
0% (0)
STRATUS INTERNATIONAL
39 995 €
Свяжитесь с рекламодателем

Для получения дополнительной информации свяжитесь с платформой

REF: 159457

Отзывы о Terreno en Pinoso
Loading...

No reviews have been left for this object yet

Ближайшие объекты

Исследуйте близлежащие объекты, которые мы обнаружили неподалеку от этого местоположения.

Terreno en Pinoso

Аликанте, Пиносo
24 995 €

Espaciosa parcela de 18.589 m² a tan solo 10 minutos de Pinoso, que ofrece impre...

0
0 отзывов

Terreno en Pinoso

Аликанте, Пиносo
39 995 €

Esta parcela de 12.000 m² cerca de Pinoso ofrece una excelente oportunidad para...

0
0 отзывов

Terreno en Pinoso

Аликанте, Пиносo
40 500 €

Esta parcela de 17.156 m² ofrece unas vistas impresionantes y se encuentra a tan...

0
0 отзывов

Terreno en Pinoso

Аликанте, Пиносo
36 995 €

Esta amplia parcela de 15.179 m² ofrece vistas impresionantes y se encuentra a s...

0
0 отзывов

Terreno en Pinoso

Аликанте, Пиносo
35 995 €

Preciosa parcela situada aproximadamente a 5 minutos del pueblo de Pinoso que of...

0
0 отзывов

Terreno en Pinoso

Аликанте, Пиносo
32 500 €

Preciosa parcela situada aproximadamente a 5 minutos del pueblo de Pinoso que of...

0
0 отзывов

Terreno en Pinoso

Аликанте, Пиносo
90 100 €

Preciosa parcela situada aproximadamente a 5 minutos del pueblo de Pinoso que of...

0
0 отзывов

Terreno en Pinoso

Аликанте, Пиносo
14 500 €

Preciosa parcela situada aproximadamente a 5 minutos del pueblo de Pinoso que of...

0
0 отзывов

Terreno en Pinoso

Аликанте, Пиносo
32 995 €

Preciosa parcela situada aproximadamente a 5 minutos del pueblo de Pinoso que of...

0
0 отзывов
Звонок

Мы используем собственные и сторонние файлы cookie для анализа использования веб-сайта и показа вам рекламы, соответствующей вашим предпочтениям, на основе профиля, созданного по вашим привычкам просмотра (например, посещенные страницы). Подробнее. Вы принимаете файлы cookie?