Продажа пентхауса на Calle Marqués de Molins , 6, Санта Пола

Аликанте, Санта Пола, Центро, Calle Marqués de Molins , 6
Распродано
Оставить отзыв
Пентхаусы Тип недвижимости
4 Спальни
199 m² м2 построенных
3 Ванные комнаты

Новый проект жилого комплекса предлагает квартиры с 2, 3 и 4 спальнями, а также террасами и кладовыми в центре города. Этот современный комплекс строится с использованием высококачественных материалов и технологий, направленных на улучшение теплоизоляции и устойчивости. Он создан для обеспечения высокого уровня жизни.

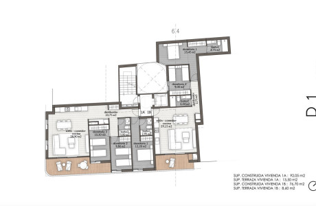
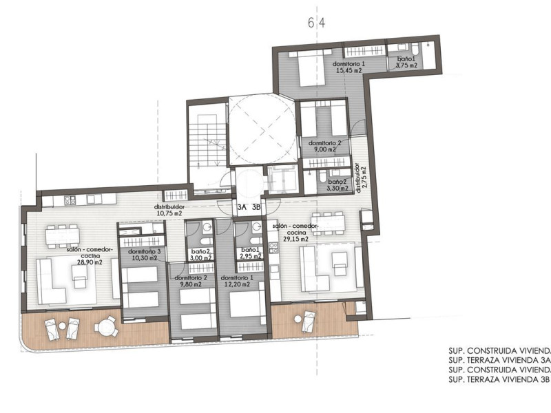
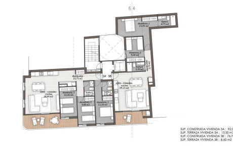
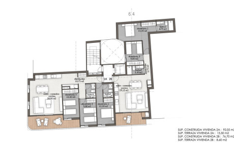
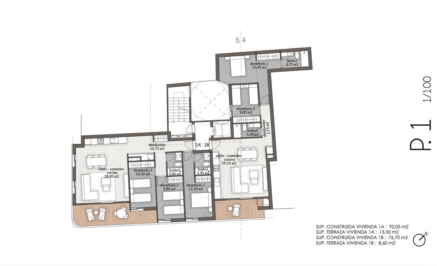
В комплексе доступны различные типы квартир. На первых трех этажах находятся квартиры типа A и B. Квартиры типа A занимают 105 квадратных метров (92 м² жилой площади и 13 м² террасы) и включают три спальни, два санузла, а также просторную гостиную с террасой. Квартиры типа B имеют площадь 85 квадратных метров (77 м² жилой площади и 8 м² террасы) и предлагают две спальни, два санузла и удобную гостиную с доступом на террасу.

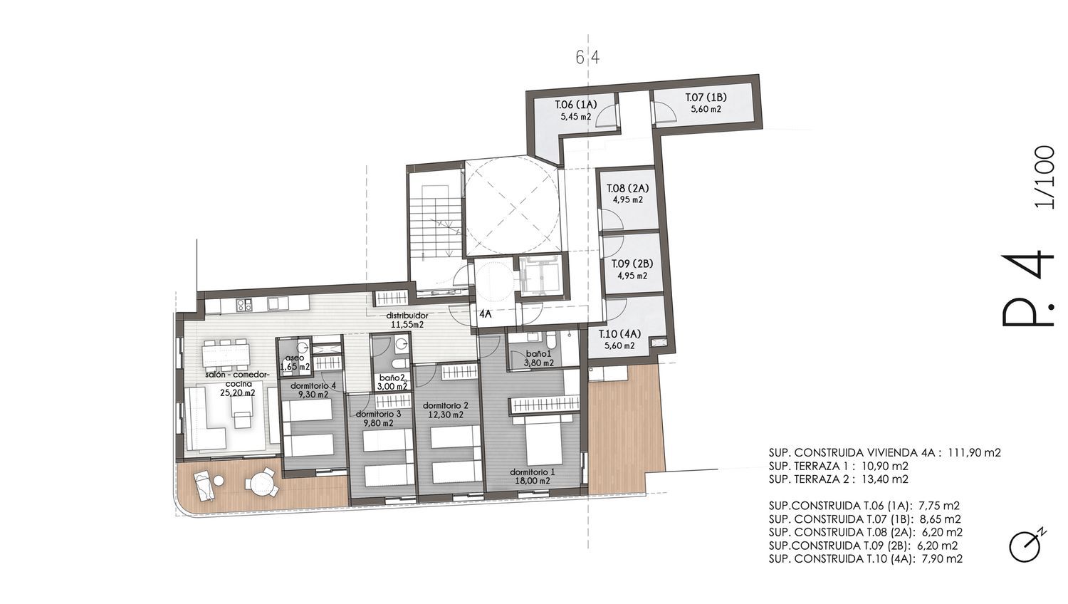
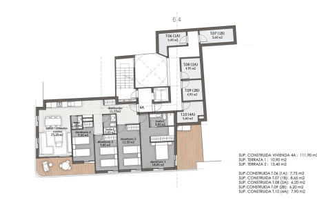
На четвертом этаже расположена одна квартира площадью 135 квадратных метров (111 м² жилой площади и 24 м² террас). Она включает 4 спальни (одна из которых с собственной террасой), два санузла (один из которых — смежный) и большую гостиную с террасой. На пятом этаже находится отдельный пентхаус площадью 199 квадратных метров (110 м² жилой площади и 89 м² террас), состоящий из четырех спален, двух санузлов и просторного пространства с кухней и гостиной, а также с выходом на террасу. Отсюда можно подняться на солярий площадью 76 м², где можно построить бассейн и обустроить зоны отдыха с барбекю и туалетом.

Все квартиры снабжены достаточно просторными кладовыми и оборудованы современными кондиционерами. Есть возможность персонализировать пространство с помощью установки домотики, встраиваемых шкафов и расширенной столешницы на кухне. Комплекс находится в стратегически удобном месте, всего в нескольких минутах ходьбы от пляжа. Он строится без архитектурных барьеров, что обеспечивает доступность для людей с ограниченными возможностями.

Транспортное сообщение с главными городами провинции идеально, а аэропорт располагается всего в 15 минутах езды на автомобиле. Вся необходимая инфраструктура, включая супермаркеты, банки, рестораны, детские площадки, школы и спортивные школы, находится буквально на расстоянии вытянутой руки. Это безусловно, рай на побережье!

Характеристики недвижимости

Complex information

  • Жилой комплекс
    Edificio Marqués de Molins
  • Тип недвижимости
    Пентхаусы

Данные о недвижимости

  • Спальни
    4
  • Ванные комнаты
    3
  • м2 построенных
    199 m²
  • Тип недвижимости
    Новостройка

Удобства

Удобства жилья:

Кондиционер
Кладовка
Терасса

В здании:

Бассейн
Лифт
Тренажёрный зал
Бар
Спа
Детская зона
Склад

Вистас:

Виды на море

Серкa де:

Пляж

Эстадо:

Новое строительство

Статистика рыночных цен на Ático en venta en calle Marqués de Molins , 6

365 194 € (2 665 €/m2)
Средняя цена на первичные Пентхаусы в городе Санта Пола
311 379 € (2 866 €/m2)
Средняя цена на вторичные Пентхаусы в городе Санта Пола
450 142 € (4 053 €/m2)
Средняя цена на первичные Пентхаусы в районе Центро
410 498 € (3 372 €/m2)
Средняя цена на вторичные Пентхаусы в районе Центро

Карта

Аликанте, Санта Пола, Центро, Calle Marqués de Molins , 6 Поехать в это место
Оставьте отзыв о Ático en venta en calle Marqués de Molins , 6
0
0 reviews
1
0% (0)
2
0% (0)
3
0% (0)
4
0% (0)
5
0% (0)
Edificio Marqués de Molins
Жилой комплекс
Распродано
Свяжитесь с рекламодателем

Для получения дополнительной информации свяжитесь с платформой

REF: 9276

Отзывы о Ático en venta en calle Marqués de Molins , 6
Loading...

No reviews have been left for this object yet

Ближайшие объекты

Исследуйте близлежащие объекты, которые мы обнаружили неподалеку от этого местоположения.

Новый жилой комплекс у побережья в Санта-Поле.

Аликанте, Санта Пола, Плайя Тамарит, Calle Elda, 228
495 000 €

Современный жилой комплекс закрытого типа состоит из квартир с 2 и 3 спальнями,...

0
0 отзывов

Новый жилой комплекс у побережья в Санта-Поле.

Аликанте, Санта Пола, Плайя Тамарит, Calle Elda, 228
420 000 €

Современный жилой комплекс закрытого типа состоит из квартир с 2 и 3 спальнями,...

0
0 отзывов

Просторные пентхаусы на продажу в живописном районе Санта Пола. Это идеальная возможность стать владельцем уютного жилья с прекрасными видами и комфортными условиями для жизни.

Аликанте, Санта Пола, Пляжа Леванте, Calle José Alejo Bonmatí s/n
215 000 €

Новостройка на курорте представляет собой уникальный комплекс, который отвечает...

0
0 отзывов

Áticos en Venta en Calle Orden Dórico, 551, Gran Alacant

Аликанте, Гран-Алакант, Монте и Мар, Calle Orden Dórico, 551
395 000 €

ICONIC GRAN ALACANT – NUEVOS APARTAMENTOS EN VENTA, A 20 MINUTOS DE ALICANTE y E...

0
0 отзывов

Áticos en Venta en Calle Orden Dórico, 551, Gran Alacant

Аликанте, Гран-Алакант, Монте и Мар, Calle Orden Dórico, 551
395 000 €

ICONIC GRAN ALACANT – NUEVOS APARTAMENTOS EN VENTA, A 20 MINUTOS DE ALICANTE y E...

0
0 отзывов

Áticos en Venta en Calle Orden Dórico, 551, Gran Alacant

Аликанте, Гран-Алакант, Монте и Мар, Calle Orden Dórico, 551
395 000 €

ICONIC GRAN ALACANT – NUEVOS APARTAMENTOS EN VENTA, A 20 MINUTOS DE ALICANTE y E...

0
0 отзывов

Áticos en Venta en Calle Orden Dórico, 551, Gran Alacant

Аликанте, Гран-Алакант, Монте и Мар, Calle Orden Dórico, 551
395 000 €

ICONIC GRAN ALACANT – NUEVOS APARTAMENTOS EN VENTA, A 20 MINUTOS DE ALICANTE y E...

0
0 отзывов

Áticos en Venta en Avenida D'Escandinàvia s/n, Gran Alacant

Аликанте, Гран-Алакант, Гран Виста-Оливо де Оро, Avenida D'Escandinàvia s/n
285 000 €

NUEVOS APARTAMENTOS EN VENTA EN GRAN ALACANT, A 20 MINUTOS DE ALICANTE y ELCHE,...

0
0 отзывов

Мы используем собственные и сторонние файлы cookie для анализа использования веб-сайта и показа вам рекламы, соответствующей вашим предпочтениям, на основе профиля, созданного по вашим привычкам просмотра (например, посещенные страницы). Подробнее. Вы принимаете файлы cookie?