Продажа таунхауса в Calle Gloria Fuertes s/n , Аavila

Авила, Аavila, Хервенсиас, Calle Gloria Fuertes s/n
Распродано
Оставить отзыв
Таунхаусы Тип недвижимости
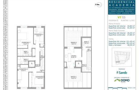
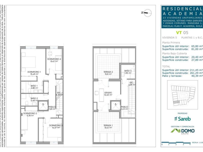
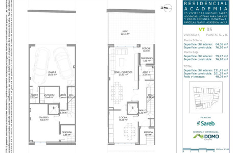
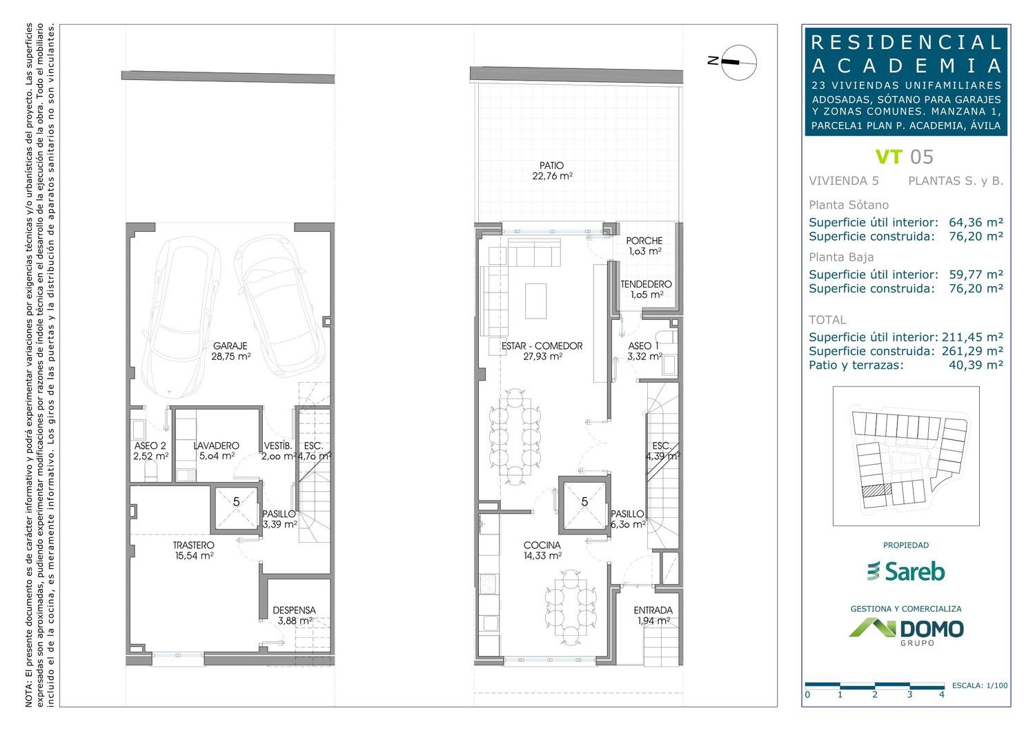
261 m² м2 построенных
5 Ванные комнаты
4 Спальни
4 Планировка
Promoción de 23 viviendas unifamiliares adosadas en manzana cerrada con piscina comunitaria. La parcela se encuentra situada entre las calles Rosalía de Castro, Pintor Caprotti, Gloria Fuertes y Emilia Pardo Bazán. Junto a la Escuela Nacional de Policía y a escasos minutos del Hospital Nuestra Señora de Sonsoles. Todas las viviendas disponen de 4 dormitorios, 3 baños y dos aseos distribuidos en 4 plantas:En la planta baja se encuentra el acceso a la vivienda, el salón, cocina, tendedero y aseo de cortesía. Desde esta planta se accede al patio privado y a la zona común de piscina.En primera planta se distribuyen los 4 dormitorios y dos baños, uno en suite en la habitación principal.La planta Bajocubierta dispone de una estancia cuyo uso pudiera ser como despacho o cuarto de estar con salida a dos terrazas en zona bajo cubierta tendríamos un estudio dos terrazas y un baño.Por último, en planta sótano se encuentra el garaje cubierto con espacio para dos coches, una amplia estancia multiusos, un aseo y la zona de lavadero y despensa.UBICACIÓNEsta promoción se encuentra ubicada en la ciudad amurallada de Ávila, declarada patrimonio de la Humanidad, a menos de cuatro kilómetros del centro de la ciudad y a tan solo 500 metros de la Academia de la Policía Nacional, referente de la zona ya que es una de las infraestructuras con más importancia de la ciudad. Se trata de una zona residencial, muy cerca de la Senda verde de la Sierra, ruta ideal para los amantes del senderismo. Está dotada de todos los servicios (comercial, deportivo, ocio, educación, …). Nuestra parcela se encuentra a escasos minutos del Centro Comercial El Bulevar, Carrefour, Decathlon, Leroy Merlin… y a tan solo cinco minutos el Hospital Nuestra Señora de Sonsoles. Muy bien comunicada, con fácil acceso a la AV-20 y AP51 al igual que al centro de la ciudad. Y a tan solo siete minutos de la estación de Renfe y Autobuses de la ciudad. Ponte en contacto con nosotros para ampliar información o reservar vivienda. También puedes pinchar en el enlace de nuestra página Web y dejarnos tus datos, para ponernos en contacto contigo.

Характеристики недвижимости

Complex information

  • Жилой комплекс
    Residencial Academia
  • Тип недвижимости
    Таунхаусы

Данные о недвижимости

  • Планировка
    4
  • Спальни
    4
  • Ванные комнаты
    5
  • м2 построенных
    261 m²
  • Тип недвижимости
    Новостройка

Энергетическая сертификация

  • Энергоаудитный сертификат
    B

Удобства

Удобства жилья:

Кладовая
Терасса

В здании:

Бассейн
Спа

Статистика рыночных цен на Chalet adosado en venta en calle Gloria Fuertes s/n

Карта

Авила, Аavila, Хервенсиас, Calle Gloria Fuertes s/n Поехать в это место
Оставьте отзыв о Chalet adosado en venta en calle Gloria Fuertes s/n
0
0 reviews
1
0% (0)
2
0% (0)
3
0% (0)
4
0% (0)
5
0% (0)
Residencial Academia
Жилой комплекс
Распродано
Свяжитесь с рекламодателем

Для получения дополнительной информации свяжитесь с платформой

REF: 2357

Отзывы о Chalet adosado en venta en calle Gloria Fuertes s/n
Loading...

No reviews have been left for this object yet

Ближайшие объекты

Исследуйте близлежащие объекты, которые мы обнаружили неподалеку от этого местоположения.

Adosados en Venta en Calle Gloria Fuertes s/n, Ávila

Авила, Аavila, Хервенсиас, Calle Gloria Fuertes s/n
233 000 €

Promoción de 23 viviendas unifamiliares adosadas en manzana cerrada con piscina...

0
0 отзывов

Adosados en Venta en Calle Gloria Fuertes s/n, Ávila

Авила, Аavila, Хервенсиас, Calle Gloria Fuertes s/n
227 400 €

Promoción de 23 viviendas unifamiliares adosadas en manzana cerrada con piscina...

0
0 отзывов

Adosados en Venta en Calle Gloria Fuertes s/n, Ávila

Авила, Аavila, Хервенсиас, Calle Gloria Fuertes s/n
231 400 €

Promoción de 23 viviendas unifamiliares adosadas en manzana cerrada con piscina...

4
0 отзывов

Adosados en Venta en Calle Gloria Fuertes s/n, Ávila

Авила, Аavila, Хервенсиас, Calle Gloria Fuertes s/n
243 700 €

Promoción de 23 viviendas unifamiliares adosadas en manzana cerrada con piscina...

0
0 отзывов

Adosados en Venta en Calle Gloria Fuertes s/n, Ávila

Авила, Аavila, Хервенсиас, Calle Gloria Fuertes s/n
247 000 €

Promoción de 23 viviendas unifamiliares adosadas en manzana cerrada con piscina...

0
0 отзывов

Adosados en Venta en Calle Gloria Fuertes s/n, Ávila

Авила, Аavila, Хервенсиас, Calle Gloria Fuertes s/n
227 300 €

Promoción de 23 viviendas unifamiliares adosadas en manzana cerrada con piscina...

0
0 отзывов

Adosados en Venta en Calle Gloria Fuertes s/n, Ávila

Авила, Аavila, Хервенсиас, Calle Gloria Fuertes s/n
238 800 €

Promoción de 23 viviendas unifamiliares adosadas en manzana cerrada con piscina...

0
0 отзывов

Adosados en Venta en Calle Gloria Fuertes s/n, Ávila

Авила, Аavila, Хервенсиас, Calle Gloria Fuertes s/n
243 200 €

Promoción de 23 viviendas unifamiliares adosadas en manzana cerrada con piscina...

0
0 отзывов

Adosados en Venta en Calle Gloria Fuertes s/n, Ávila

Авила, Аavila, Хервенсиас, Calle Gloria Fuertes s/n
237 200 €

Promoción de 23 viviendas unifamiliares adosadas en manzana cerrada con piscina...

0
0 отзывов

Мы используем собственные и сторонние файлы cookie для анализа использования веб-сайта и показа вам рекламы, соответствующей вашим предпочтениям, на основе профиля, созданного по вашим привычкам просмотра (например, посещенные страницы). Подробнее. Вы принимаете файлы cookie?