Obra nueva Promoció Olot Volcà Croscat en Olot

Распродано
Оставить отзыв
Квартиры Тип недвижимости
68 m² м2 построенных
1 Ванные комнаты
2 Спальни
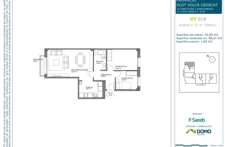
Pisos de 1, 2 y 3 Dormitorios de obra nueva en Olot – Girona.Promoción de obra nueva que consta de 32 viviendas en altura y 48 plazas de garaje, situada en el carrer Volcà Croscat de Olot (Girona).El edificio cuenta con planta baja, 3 plantas sobre rasante y 2 plantas sótano. El proyecto se plantea como una urbanización cerrada en la que los bajos dispondrán de terraza privada.Ofrece una amplia variedad de viviendas de 1, 2 y 3 dormitorios, con terrazas o balcón en función de la tipología. Es un edificio ubicado en un entorno tranquilo y bien conectado. Las superficies de los pisos van de una media de 52 m2 construidos en el caso de los de 1 dormitorios a una media 100 m2 en los de 3 dormitorios.Todas las viviendas de 2 dormitorios incorporan una plaza de garaje vinculada con un precio adicional de 11.500 € + IVA y 2 plazas de aparcamiento las de 3 dormitorios.Olot es uno de los municipios más importantes de Cataluña y nuestra promoción tiene una localización céntrica y bien comunicada.Es un municipio moderno, adecuado a las necesidades de nuestro tiempo, con una amplia oferta de servicios públicos y privados en todos los ámbitos: educativo, cultural, deportivo, de ocio… Dispone de una buena red de comunicaciones: carreteras, autopistas, líneas ferroviarias (R2 y R3) y diversas líneas de autobuses urbanas e interurbanas.El tiempo de trayecto en coche hacia los grandes núcleos urbanos son: Ripoll (40 min) Vic (40 min) Girona (50 min).Hay gran variedad de supermercados de cercanía y el hipermercado "Mercadona" se encuentra a 900 metros. Hay diversos colegios e institutos públicos, como "Colegio Público Volca Bisaroques" que se encuentra a 300 metros. El centro de atención primaria "Garrotxa" se encuentra a 2 km y el ayuntamiento del municipio está a 1,5 km.Olot también es especialmente conocido por sus lugares de interés natural ya que todo su término municipal se encuentra dentro del parque natural de la Zona Volcánica de la Garrocha. También despierta un gran interés el Hayedo de Jordà (Reserva natural que comprende un bosque de hayas de características únicas).Ponte en contacto con nosotros para ampliar información o reservar vivienda ( o ). También puedes pinchar en el enlace de nuestra página Web y dejarnos tus datos, para ponernos en contacto contigo.

Характеристики недвижимости

Complex information

  • Жилой комплекс
    Promoció Olot Volcà Croscat
  • Тип недвижимости
    Квартиры

Данные о недвижимости

  • Спальни
    2
  • Ванные комнаты
    1
  • м2 построенных
    68 m²
  • Тип недвижимости
    Новостройка

Энергетическая сертификация

  • Энергоаудитный сертификат
    B

Удобства

Удобства жилья:

Терасса

В здании:

Гараж
Лифт
Подвал

Эстадо:

Новое строительство

Статистика рыночных цен на Piso en venta en calle Volcà Croscat, 29

207 048 € (2 594 €/m2)
Средняя цена на первичные Квартиры в городе Олот

Карта

Оставьте отзыв о Piso en venta en calle Volcà Croscat, 29
0
0 reviews
1
0% (0)
2
0% (0)
3
0% (0)
4
0% (0)
5
0% (0)
Promoció Olot Volcà Croscat
Жилой комплекс
Распродано
Свяжитесь с рекламодателем

Для получения дополнительной информации свяжитесь с платформой

REF: 3310

Отзывы о Piso en venta en calle Volcà Croscat, 29
Loading...

No reviews have been left for this object yet

Ближайшие объекты

Исследуйте близлежащие объекты, которые мы обнаружили неподалеку от этого местоположения.

Obra nueva Edifici Girona en Castellfollit de la Roca

Жирона, Кастельфольит-де-ла-Рока
105 000 €

Edificio plurifamiliar, a tres fachadas, de 9 viviendas de 1 y 2 dormitorios con...

0
0 отзывов

Obra nueva Edifici Girona en Castellfollit de la Roca

Жирона, Кастельфольит-де-ла-Рока
163 000 €

Edificio plurifamiliar, a tres fachadas, de 9 viviendas de 1 y 2 dormitorios con...

0
0 отзывов

Obra nueva Edifici Girona en Castellfollit de la Roca

Жирона, Кастельфольит-де-ла-Рока
120 000 €

Edificio plurifamiliar, a tres fachadas, de 9 viviendas de 1 y 2 dormitorios con...

0
0 отзывов

Obra nueva Edifici Girona en Castellfollit de la Roca

Жирона, Кастельфольит-де-ла-Рока
131 000 €

Edificio plurifamiliar, a tres fachadas, de 9 viviendas de 1 y 2 dormitorios con...

0
0 отзывов

Obra nueva Promoció Olot Volcà Croscat en Olot

Жирона, Олот
105 400 €

Pisos de 1, 2 y 3 Dormitorios de obra nueva en Olot – Girona.Promoción de obra n...

0
0 отзывов

Obra nueva Promoció Olot Volcà Croscat en Olot

Жирона, Олот
129 400 €

Pisos de 1, 2 y 3 Dormitorios de obra nueva en Olot – Girona.Promoción de obra n...

0
0 отзывов

Obra nueva Promoció Olot Volcà Croscat en Olot

Жирона, Олот
147 000 €

Pisos de 1, 2 y 3 Dormitorios de obra nueva en Olot – Girona.Promoción de obra n...

0
0 отзывов

Obra nueva Promoció Olot Volcà Croscat en Olot

Жирона, Олот
139 000 €

Pisos de 1, 2 y 3 Dormitorios de obra nueva en Olot – Girona.Promoción de obra n...

0
0 отзывов

Obra nueva Promoció Olot Volcà Croscat en Olot

Жирона, Олот
169 000 €

Pisos de 1, 2 y 3 Dormitorios de obra nueva en Olot – Girona.Promoción de obra n...

0
0 отзывов

Мы используем собственные и сторонние файлы cookie для анализа использования веб-сайта и показа вам рекламы, соответствующей вашим предпочтениям, на основе профиля, созданного по вашим привычкам просмотра (например, посещенные страницы). Подробнее. Вы принимаете файлы cookie?