Casa en venta de 239 m² Calle General Mola, 18811 Zújar (Granada)

Гранада, Жуджар
115 000 €
481 € / m2
Оставить отзыв
Деревенские дома Тип недвижимости
6 Спальни
1950 Год сдачи
239 m² м2 построенных
3 Ванные комнаты
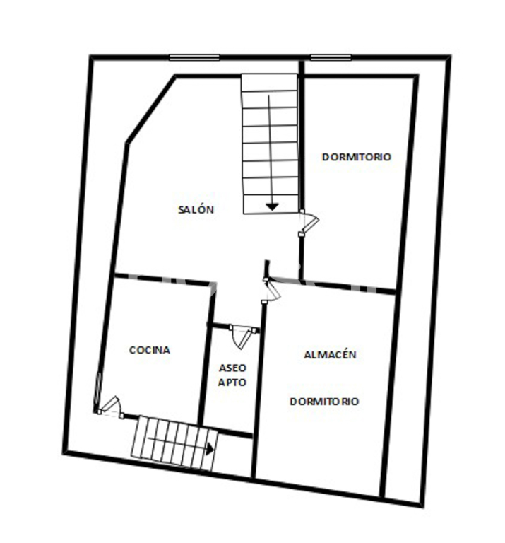
Llámanos y visita esta vivienda. Casa de pueblo de 239 m² de superficie, en calle semi-peatonal de Zújar, provincia de Granada. Por el espacio que te ofrece, esta casa rural es ideal para una familia con hijos e inversores, cuenta con licencia turística. Esta casa rural se distribuye en cuatro plantas, distribuido en: Planta baja con salón-cocina, dos dormitorios, baño completo y armarios empotrados en el pasillo. Apta para también para uso comercial, con entrada independiente a calle Alquería. Estado semi-terminado para adecuarla al uso final deseado. Planta primera con vivienda tipo estudio, consta de cocina independiente, dormitorio-salón con balcón, baño completo y amplio armario empotrado. Plantas segunda y tercera con vivienda tipo dúplex, con amplia estancia de almacenaje, dos dormitorios (uno de ellos usado ahora como biblioteca y el otro como despacho), comedor interior independiente (hoy usado como tercer dormitorio), salón con cocina americana y generosa terraza con vistas despejadas al pueblo y el entorno. El inmueble es todo exterior y se encuentra situado en una vía de fácil acceso, por su orientación norte, es una casa que recibe el sol por las mañanas pero no es calurosa en los meses de verano. La vivienda, se vende amueblada y en perfecto estado, lista para entrar a vivir. En cuanto a las calidades, esta casa rural cuenta con calefacción eléctrica, carpintería exterior de aluminio y suelos de gres, de fácil mantenimiento y gran resistencia. Existe proyecto de división horizontal. Ubicada en Zújar, corazón del Geoparque de Granada de la UNESCO y con espaciosos servicios (instituto, colegio, farmacia, piscina, etc). A 10 minutos de los famosos baños termales , a 15 de Baza (hospital comarcal) y a 40 de Granada (aeropuerto). En Housell te ofrecemos una gran selección de inmuebles que se adaptan a tu estilo de vida. No dejes escapar esta oportunidad para encontrar la casa perfecta para ti. h1o4u0s9e1l7l

Характеристики недвижимости

Complex information

  • Тип недвижимости
    Деревенские дома

Информация о проекте / Статус работы

  • Год сдачи
    1950

Данные о недвижимости

  • Тип кухни
    Отдельная кухня
  • Спальни
    6
  • Ванные комнаты
    3
  • м2 построенных
    239 m²
  • Тип недвижимости
    Вторичка

Энергетическая сертификация

  • Энергоаудитный сертификат
    G

Расходы

  • Муниципальные налоги
    182 €

Удобства

Удобства жилья:

Модульные шкафы
Терасса

Статистика рыночных цен на Casa en venta de 239 m² Calle General Mola, 18811 Zújar (Granada)

Карта

Гранада, Жуджар Поехать в это место
Оставьте отзыв о Casa en venta de 239 m² Calle General Mola, 18811 Zújar (Granada)
0
0 reviews
1
0% (0)
2
0% (0)
3
0% (0)
4
0% (0)
5
0% (0)
Housell
115 000 €
от 481 € / m2
Свяжитесь с рекламодателем

Для получения дополнительной информации свяжитесь с платформой

REF: 64256

Отзывы о Casa en venta de 239 m² Calle General Mola, 18811 Zújar (Granada)
Loading...

No reviews have been left for this object yet

Ближайшие объекты

Исследуйте близлежащие объекты, которые мы обнаружили неподалеку от этого местоположения.

Casa en venta de 239 m² Calle General Mola, 18811 Zújar (Granada)

Гранада, Жуджар
115 000 €

Llámanos y visita esta vivienda. Casa de pueblo de 239 m² de superficie, en cal...

0
0 отзывов
Звонок

Мы используем собственные и сторонние файлы cookie для анализа использования веб-сайта и показа вам рекламы, соответствующей вашим предпочтениям, на основе профиля, созданного по вашим привычкам просмотра (например, посещенные страницы). Подробнее. Вы принимаете файлы cookie?