Terreno en calle Dinamarca, 13

Мадрид, Арройомолинос, Зона Европа, Calle Dinamarca, 13
380 000 €
Оставить отзыв
Земля под застройку Тип недвижимости
500 m² Площадь участка
3 Строительные участки
300 m² Застройка
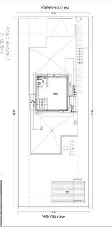
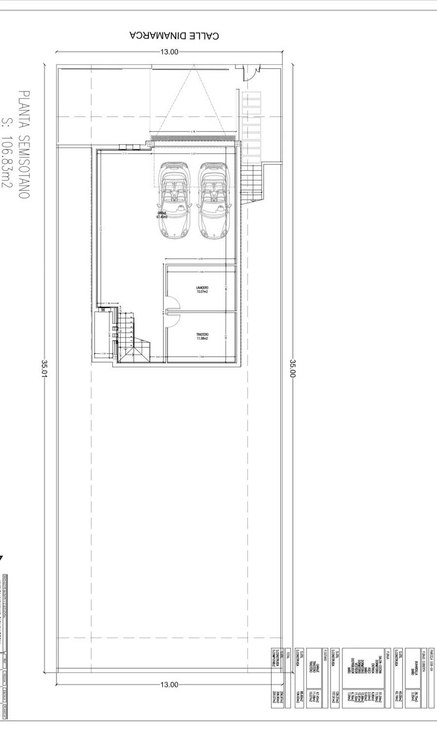
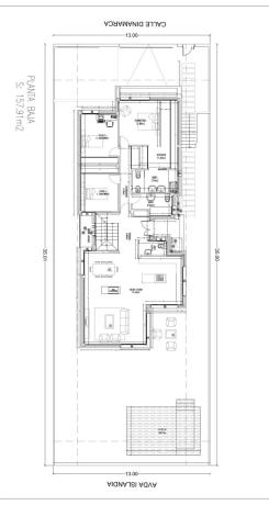
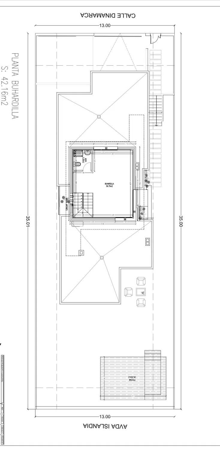
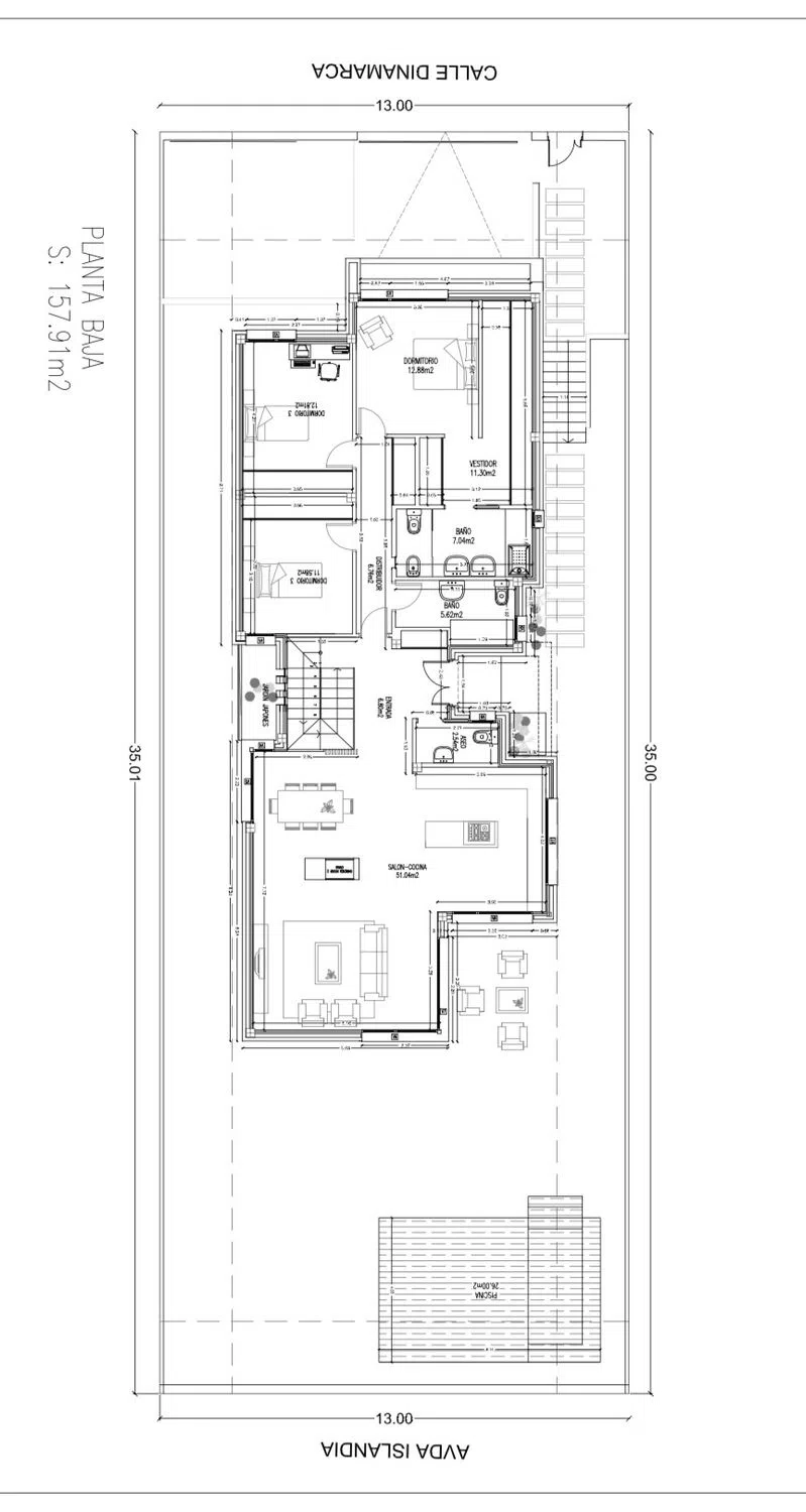
Abstenerse agencias Se vende terreno urbano con proyecto arquitectónico aprobado y todas las licencias en vigor. Además, todas las tasas municipales ya están abonadas, lo que permite iniciar de inmediato la construcción de la vivienda proyectada. Importante: Se vende el terreno, no una vivienda ya construida. El comprador podrá ejecutar la obra conforme al proyecto autorizado o adaptarlo a sus necesidades. Características del proyecto aprobado: •Superficie del terreno: 500 m² aprox. •Proyecto de vivienda unifamiliar de 3 plantas: •Planta semisótano (106,83 m²): amplio garaje con capacidad para hasta 3 coches, trastero y sala de instalaciones. •Planta baja (157,91 m²): luminoso salón-comedor con cocina de concepto abierto, aseo de cortesía, 3 dormitorios (el principal con vestidor y baño en suite), además de un baño completo adicional. •Planta buhardilla (42,16 m²): espacio diáfano ideal como sala de estar, despacho o dormitorio extra, con baño completo y acceso a terraza-solárium. •Zona exterior: jardín privado con espacio previsto para piscina y área de ocio familiar. Ventajas de esta oportunidad: •No tendrás que esperar: proyecto visado y licencias ya concedidas. •Todas las tasas municipales pagadas por adelantado. •Ubicación privilegiada de Arroyomolinos, zona residencial consolidada con colegios, comercios, transporte y zonas verdes.

Характеристики недвижимости

Complex information

  • Тип недвижимости
    Земля под застройку

Данные о недвижимости

  • Тип недвижимости
    Вторичка

Площади

  • Площадь участка
    500 m²

Base

  • Минимальный участок для продажи
    500 m²
  • Строительные участки
    3
  • Застройка
    300 m²

Удобства

В здании:

Подвал

Статистика рыночных цен на Terreno en calle Dinamarca, 13

Карта

Мадрид, Арройомолинос, Зона Европа, Calle Dinamarca, 13 Поехать в это место
Оставьте отзыв о Terreno en calle Dinamarca, 13
0
0 reviews
1
0% (0)
2
0% (0)
3
0% (0)
4
0% (0)
5
0% (0)
pedro
380 000 €
Свяжитесь с рекламодателем

Для получения дополнительной информации свяжитесь с платформой

REF: 371200

Отзывы о Terreno en calle Dinamarca, 13
Loading...

No reviews have been left for this object yet

Ближайшие объекты

Исследуйте близлежащие объекты, которые мы обнаружили неподалеку от этого местоположения.

Terreno en Centro

Мадрид, Виллависиоса де Одон, Центр, Centro
2 600 000 €

Complejo rústico de más de 35 hectáreas a solo 15 minutos de Madrid capital. Eng...

0
0 отзывов

Terreno en vereda del Cerro de los Olivares y de la Cueva de la Mora

Мадрид, Виллависиоса де Одон, Центр, Vereda del Cerro de los Olivares y de la Cueva de la Mora
72 900 €

¡Gran oportunidad! Terreno en venta en Paraje Barronco Hongo, Villaviciona de Od...

0
0 отзывов

Terreno en calle Dinamarca, 13

Мадрид, Арройомолинос, Зона Европа, Calle Dinamarca, 13
380 000 €

Abstenerse agencias Se vende terreno urbano con proyecto arquitectónico aprobado...

0
0 отзывов

Terreno en calle de Valdearenal Norte

Мадрид, Арройомолинос, Лас Кастаньерас - Бульвар, Calle de Valdearenal Norte
1 000 000 €

Oportunidad Única de Inversión: Parcela Urbana de Alto Potencial en Arroyomolino...

0
0 отзывов

Terreno en calle de Juan de la Cierva

Мадрид, Арройомолинос, Лас Кастаньерас - Бульвар, Calle de Juan de la Cierva
1 100 000 €

suelo INDUSTRIAL//DOTACIONAL en Arroyomolinos MADRID es una oportunidad interesa...

0
0 отзывов

Terreno en calle de Juan de la Cierva

Мадрид, Арройомолинос, Лас Кастаньерас - Бульвар, Calle de Juan de la Cierva
1 100 000 €

Suelo INDUSTRIAL//DOTACIONAL en Arroyomolinos - MADRID ¡Oportunidad única en una...

0
0 отзывов

Terreno en calle de Santoña

Мадрид, Арройомолинос, Лас Кастаньерас - Бульвар, Calle de Santoña
145 000 €

¡Terreno en Venta! - Oportunidad Única en Los Mosquitos Descubre la oportunidad...

0
0 отзывов

Terreno en Las Castañeras - Bulevar

Мадрид, Арройомолинос, Лас Кастаньерас - Бульвар, Las Castañeras - Bulevar
974 900 €

IMPRESIONANTE Terreno con esqueleto de 1.538m² Situada en una gran ubicación en...

0
0 отзывов

Terreno en avenida de la Unión Europea

Мадрид, Арройомолинос, Лас Кастаньерас - Бульвар, Avenida de la Unión Europea
1 500 000 €

Inmobiliaria Arroyohouse vende en exclusiva Terreno Comercial en la mejor zona d...

0
0 отзывов

Мы используем собственные и сторонние файлы cookie для анализа использования веб-сайта и показа вам рекламы, соответствующей вашим предпочтениям, на основе профиля, созданного по вашим привычкам просмотра (например, посещенные страницы). Подробнее. Вы принимаете файлы cookie?